賃貸マンション
アドバンス神戸プリンスパークの賃貸物件情報(1K/6階)
| 家賃 | 管理費等 | 敷金 | 礼金 | 間取り | 専有面積 |
|---|---|---|---|---|---|
| 6.36万円 | 5,500円 | なし | 12.72万円 | 1K | 21.98m2 |
入居決定でお祝い金最大100,000円
- 保証金
- -
- 償却・敷引
- -
- 築年数
- 築10年
- 所在階
- 6階
- 向き
- 南
Point
セキュリティ面は、オートロック・TVインターホンなど充実しているので、防犯対策もばっちりです。宅配ボックスがあるので再配達依頼をする手間が省けます。こちらの物件は閑静な住宅地にあります。
提供:(株)SuMirai(SUUMO経由)

詳細情報 アドバンス神戸プリンスパーク
物件紹介
アドバンス神戸プリンスパークは阪急神戸線春日野道駅から徒歩4分にあり、駅近で通勤通学に便利なマンションです。
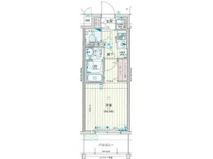
このお部屋は2階以上に位置しているので、通行人や周囲の住人からの視線が気になりにくく、防犯面でも安心。建物のエントランスはオートロックがついており、インターホンにはTVモニタもついているため、相手の顔を確認してから来客対応することができます。
人気の南向きのお部屋。また、フローリングなのでお掃除もラクラク。キッチンはシステムキッチン仕様になっていますので、お料理好きの方にもぴったり。バス・トイレは別なので、のんびりお風呂タイムも楽しめるでしょう。また、雨の日でも浴室乾燥機を使えば、お洗濯も問題ありません。
通信設備面では、インターネットが無料で使えるので、月々の出費を抑えられるのも魅力です。また、BSアンテナ・CSアンテナがありCATVにも対応しているので、おうち時間も充実するでしょう(別途工事、BS・CS・CATVの契約料等が必要な場合あり)。
建物にはエレベーターがついているので、重い荷物があっても安心。共用部には宅配ボックスが設定されているので、不在の時にも荷物を受け取ることができます。
このお部屋は2階以上に位置しているので、通行人や周囲の住人からの視線が気になりにくく、防犯面でも安心。建物のエントランスはオートロックがついており、インターホンにはTVモニタもついているため、相手の顔を確認してから来客対応することができます。
人気の南向きのお部屋。また、フローリングなのでお掃除もラクラク。キッチンはシステムキッチン仕様になっていますので、お料理好きの方にもぴったり。バス・トイレは別なので、のんびりお風呂タイムも楽しめるでしょう。また、雨の日でも浴室乾燥機を使えば、お洗濯も問題ありません。
通信設備面では、インターネットが無料で使えるので、月々の出費を抑えられるのも魅力です。また、BSアンテナ・CSアンテナがありCATVにも対応しているので、おうち時間も充実するでしょう(別途工事、BS・CS・CATVの契約料等が必要な場合あり)。
建物にはエレベーターがついているので、重い荷物があっても安心。共用部には宅配ボックスが設定されているので、不在の時にも荷物を受け取ることができます。
お金・契約の情報
※「-」と表示されているものは、実際は料金が発生するものもございます。詳細はお問い合わせください。
| 家賃 | 6.36万円 | 管理費・共益費 | 5,500円 |
|---|---|---|---|
| 敷金 | なし | 礼金 | 12.72万円 |
| 入居決定でお祝い金最大100,000円 | |||
| 保証金 | - | 償却・敷引 | - |
| 住宅保険料 | - | 更新料 | - |
| 契約形態 | - | 契約期間 | - |
| 入居・引渡期間 | 相談 | 現況 | - |
| 契約備考 | 巡回管理 1K 普通借家1年 損保【要】 バストイレ別、エアコン、ガスコンロ対応、クロゼット、フローリング、TVインターホン、浴室乾燥機、オートロック、室内洗濯置、陽当り良好、シューズボックス、システムキッチン、南向き、温水洗浄便座、脱衣所、エレベーター、洗面所独立、洗面化粧台、2口コンロ、駐輪場、宅配ボックス、CATV、光ファイバー、外壁タイル張り、閑静な住宅地、BS・CS、防犯カメラ、独立型キッチン、分譲賃貸、保証人不要、2沿線利用可、クッションフロア、ディンプルキー、CS、駅まで平坦、ネット使用料不要、ダブルロックキー、保証金不要、平坦地、人感照明センサー、耐火構造、耐震構造、未入居、2駅利用可、3駅以上利用可、3沿線以上利用可、駅徒歩5分以内、駅徒歩10分以内、敷地内ごみ置き場、平面駐車場、都市ガス、洗面所にドア、南面バルコニー、間接照明、オートライト、ダウンライト、BS、礼金2ヶ月 | ||
部屋の情報
| 間取り | 1K | 専有面積 | 21.98m2 |
|---|---|---|---|
| 所在階 / 向き | 6階 / 南 | バルコニー面積 | - |
| 水道 / ガス | - | ||
| 設備 | バス・トイレ別、2階以上、オートロック、テレビドアホン、宅配ボックス、浴室乾燥機、インターネット対応、システムキッチン、エアコン、エレベーター、温水洗浄便座、南向き、バルコニー、フローリング、洗髪洗面化粧台、2口コンロ、コンロ:ガス、CATV、CSアンテナ、BSアンテナ、インターネット使用料無料、洗濯機:室内 | ||
| 当社物件ID | 160565142 | ||
建物の情報
| 建物名 | アドバンス神戸プリンスパーク | ||
|---|---|---|---|
| 所在地 | 兵庫県神戸市中央区旗塚通 | ||
| 交通 | 阪急神戸線 春日野道駅(阪急) 徒歩4分 阪神本線 春日野道駅(阪神) 徒歩11分 JR東海道本線 灘駅 徒歩17分 | ||
| 階数 | 9階建 | 総戸数 | 45戸 |
| 築年月 | 2016年06月 / 築10年 | エレベーター | あり |
| 駐車場 | 近隣 100m18000円 | バイク置き場 | - |
| 駐輪場 | あり | 管理人/管理会社 | - |
| 周辺環境 | その他 ゴールドジム新神戸兵庫プール(その他)まで606m その他 セブンイレブン 神戸国香通2丁目店(コンビニ)まで199m その他 生活協同組合コープこうべ コープミニ春日野道(スーパー)まで423m その他 神戸平成病院(病院)まで726m その他 神戸春日野郵便局(郵便局)まで466m その他 葺合警察署 割塚交番(警察署・交番)まで556m | ||
| 建物種別 | マンション | 建物構造 | RC(鉄筋コンクリート) |
この部屋の取扱い不動産会社
| 会社名 | (株)SuMirai(SUUMO経由) | ||
|---|---|---|---|
| 所在地 | 兵庫県神戸市中央区琴ノ緒町5-29-501 | 交通 | - |
| 営業時間 | 9:00~19:00 | 定休日 | 水曜日 |
| 免許番号 | 兵庫県知事12483 | 取引態様 | 仲介 |
| 不動産会社管理番号 | 100493936040 | 当社管理番号 | 89 |
| 所属団体 | (公社)全日本不動産協会兵庫県本部会員 | ||
| 公正取引協議会 | (公社)近畿地区不動産公正取引協議会加盟 | ||
| 取扱い物件情報 | 物件詳細へ | ||
※各種情報と現状に差異がある場合は、現状優先となります。問い合わせをすることで、より詳しい条件、情報を確認する事ができます。
提供:(株)SuMirai(SUUMO経由)
この物件が気になったら掲載期限まであと10日
アドバンス神戸プリンスパークに条件(家賃・エリア)が近い物件一覧
| 写真 | 家賃 管理費等 | 敷金 礼金 | 間取り 専有面積 | 築年数 | 最寄り駅 所在地 | キープ | 詳細 |
|---|---|---|---|---|---|---|---|
アパート リブソレイユS(2LDK/1階) | |||||||
![]() | 7.1万円 4,500円 | 2万円 なし | 2LDK 54.04m2 | 築17年 | 神戸電鉄粟生線 大村駅(兵庫) 徒歩13分 神戸電鉄粟生線 三木駅(神戸電鉄) 徒歩14分 神戸電鉄粟生線 三木上の丸駅 徒歩25分 兵庫県三木市末広3丁目 | 詳細を見る | |
アパート ビビエンタ甲東園(2DK/1階) | |||||||
![]() | 6.6万円 3,000円 | なし なし | 2DK 39.74m2 | 築31年 | 阪急電鉄今津線 甲東園駅 徒歩9分 阪急電鉄今津線 門戸厄神駅 徒歩11分 兵庫県西宮市上甲東園6丁目 | 詳細を見る | |
アパート ジェルメ・ウエスト2(1LDK/1階) | |||||||
![]() | 5.4万円 3,200円 | なし なし | 1LDK 46.49m2 | 築20年 | 山陽本線 土山駅 徒歩25分 兵庫県加古郡稲美町六分一 | 詳細を見る | |
アパート ガーデンハウス・KⅤ(1K/1階) | |||||||
![]() | 7.4万円 3,500円 | なし 7.4万円 | 1K 33.2m2 | 新築 | 東海道・山陽新幹線 西明石駅 徒歩8分 山陽本線 西明石駅 徒歩8分 山陽電気鉄道本線 藤江駅 徒歩16分 兵庫県明石市西明石西町2丁目 | 詳細を見る | |
アパート カーサアリビオ(ワンルーム/2階) | |||||||
![]() | 5.9万円 4,000円 | 3万円 10万円 | ワンルーム 30.08m2 | 築21年 | 山陽電鉄本線 東二見駅 徒歩7分 山陽電鉄本線 西二見駅 徒歩15分 山陽電鉄本線 山陽魚住駅 徒歩23分 兵庫県明石市二見町東二見 | 詳細を見る | |
アパート ウエストハイツ(2LDK/1階) | |||||||
![]() | 6.8万円 4,000円 | 2万円 8万円 | 2LDK 56.3m2 | 築28年 | 神戸電鉄粟生線 大村駅(兵庫) 徒歩13分 神戸電鉄粟生線 三木駅(神戸電鉄) 徒歩19分 神戸電鉄粟生線 三木上の丸駅 徒歩32分 兵庫県三木市大村 | 詳細を見る | |
アパート メゾンドアポロン(2LDK/2階) | |||||||
![]() | 9.2万円 4,100円 | なし 18.4万円 | 2LDK 58.57m2 | 築2年 | 神戸電鉄粟生線 三木駅(神戸電鉄) 徒歩10分 神戸電鉄粟生線 三木上の丸駅 徒歩19分 神戸電鉄粟生線 大村駅(兵庫) 徒歩23分 兵庫県三木市福井 | 詳細を見る | |
アパート ヒシヤハイツ(2LDK/1階) | |||||||
![]() | 6.2万円 3,000円 | なし 6.2万円 | 2LDK 51.81m2 | 築27年 | 神戸電鉄粟生線 緑が丘駅(兵庫) 徒歩6分 神戸電鉄粟生線 広野ゴルフ場前駅 徒歩12分 神戸電鉄粟生線 押部谷駅 徒歩27分 兵庫県三木市緑が丘町中 | 詳細を見る | |









