賃貸アパート
メゾンド須磨の賃貸物件情報(1K/2階)
| 家賃 | 管理費等 | 敷金 | 礼金 | 間取り | 専有面積 |
|---|---|---|---|---|---|
| 3.8万円 | 2,200円 | なし | 5万円 | 1K | 27m2 |
入居決定でお祝い金最大100,000円
- 保証金
- -
- 償却・敷引
- -
- 築年数
- 築60年
- 所在階
- 2階
- 向き
- -
Point
ピタットハウス垂水店ではインターネット掲載物件は他社掲載分を含めエリア問わずご紹介可能です。何社も不動産会社を回る手間なくお部屋探しができます!
提供:ピタットハウス垂水店(株)ライブデザイン兵庫(SUUMO経由)

詳細情報 メゾンド須磨
物件紹介
メゾンド須磨は地下鉄西神・山手線妙法寺駅から徒歩15分にあるアパートです。
このお部屋は2階以上に位置しているので、通行人や周囲の住人からの視線が気になりにくく、防犯面でも安心。インターホンにはTVモニタもついているため、相手の顔を確認してから来客対応することができます。
人気の角部屋で周囲の居住者の生活音も気になりにくく、また、フローリングのお部屋なのでお掃除もラクラク。バス・トイレ別の仕様で、のんびりお風呂タイムも楽しめます。
通信設備面ではBSアンテナがありCATVにも対応しているので、おうち時間も充実するでしょう(別途工事、契約料が必要な場合あり)。
このお部屋は2階以上に位置しているので、通行人や周囲の住人からの視線が気になりにくく、防犯面でも安心。インターホンにはTVモニタもついているため、相手の顔を確認してから来客対応することができます。
人気の角部屋で周囲の居住者の生活音も気になりにくく、また、フローリングのお部屋なのでお掃除もラクラク。バス・トイレ別の仕様で、のんびりお風呂タイムも楽しめます。
通信設備面ではBSアンテナがありCATVにも対応しているので、おうち時間も充実するでしょう(別途工事、契約料が必要な場合あり)。
お金・契約の情報
※「-」と表示されているものは、実際は料金が発生するものもございます。詳細はお問い合わせください。
| 家賃 | 3.8万円 | 管理費・共益費 | 2,200円 |
|---|---|---|---|
| 敷金 | なし | 礼金 | 5万円 |
| 入居決定でお祝い金最大100,000円 | |||
| 保証金 | - | 償却・敷引 | - |
| 住宅保険料 | - | 更新料 | - |
| 契約形態 | - | 契約期間 | - |
| 入居・引渡期間 | 即時 | 現況 | - |
| 契約備考 | 物件情報ページをご覧いただき誠にありがとうございます!インターネットで募集中の物件は全て弊社でご紹介可能です!もちろんまとめてご案内も可能です!また、他社様でご紹介されている物件も弊社でご紹介の場合、様々な交渉が可能な物件も多数ございます。お問い合わせは【TEL:】までお電話ください!※当日のご内見予約も可能!是非、ピタットハウス垂水店へお越しください! 1K 単身者可/二人入居可 普通借家2年 損保【1.5万円2年】 バストイレ別、エアコン、クロゼット、フローリング、シャワー付洗面台、TVインターホン、室内洗濯置、角住戸、温水洗浄便座、脱衣所、洗面所独立、2口コンロ、駐輪場、CATV、即入居可、閑静な住宅地、最上階、敷金不要、照明付、バイク置場、全居室フローリング、2沿線利用可、ディンプルキー、眺望良好、高台に立地、3駅以上利用可、バス停徒歩3分以内、上階無し、洗面所にドア、BS、IT重説対応物件、初期費用カード決済可、通風良好 | ||
部屋の情報
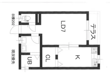
| 間取り | 1K | 専有面積 | 27m2 |
|---|---|---|---|
| 所在階 / 向き | 2階 / - | バルコニー面積 | - |
| 水道 / ガス | - | ||
| 設備 | バス・トイレ別、2階以上、テレビドアホン、エアコン、温水洗浄便座、角部屋、フローリング、洗髪洗面化粧台、2口コンロ、CATV、BSアンテナ、洗濯機:室内 | ||
| 当社物件ID | 157712437 | ||
建物の情報
| 建物名 | メゾンド須磨 | ||
|---|---|---|---|
| 所在地 | 兵庫県神戸市須磨区妙法寺岡 | ||
| 交通 | 地下鉄西神・山手線 妙法寺駅(兵庫) 徒歩15分 地下鉄西神・山手線 板宿駅 徒歩29分 山陽電鉄本線 板宿駅 バス乗車時間:10分 最寄りバス停で下車 徒歩1分 | ||
| 階数 | 2階建 | 総戸数 | 8戸 |
| 築年月 | 1966年04月 / 築60年 | エレベーター | - |
| 駐車場 | なし | バイク置き場 | あり |
| 駐輪場 | あり | 管理人/管理会社 | - |
| 周辺環境 | その他 マルアイ 妙法寺店(スーパー)まで826m その他 コープ横尾(スーパー)まで1424m その他 須磨警察署 妙法寺交番(警察署・交番)まで1008m その他 アルカ北須磨薬局(ドラッグストア)まで1197m その他 ファミリーマート 妙法寺インター店(コンビニ)まで1182m その他 ローソン 神戸妙法寺荒打店(コンビニ)まで1376m | ||
| 建物種別 | アパート | 建物構造 | 木造 |
この部屋の取扱い不動産会社
| 会社名 | ピタットハウス垂水店(株)ライブデザイン兵庫(SUUMO経由) | ||
|---|---|---|---|
| 所在地 | 兵庫県神戸市垂水区宮本町 3-13 1階 | 交通 | - |
| 営業時間 | 09:00~19:00 | 定休日 | - |
| 免許番号 | 兵庫県知事12246 | 取引態様 | 仲介 |
| 不動産会社管理番号 | 100434224612 | 当社管理番号 | 89 |
| 所属団体 | (公社)全日本不動産協会兵庫県本部会員 | ||
| 公正取引協議会 | (公社)近畿地区不動産公正取引協議会加盟 | ||
| 取扱い物件情報 | 物件詳細へ | ||
※各種情報と現状に差異がある場合は、現状優先となります。問い合わせをすることで、より詳しい条件、情報を確認する事ができます。
提供:ピタットハウス垂水店(株)ライブデザイン兵庫(SUUMO経由)
この物件が気になったら掲載期限まであと10日
メゾンド須磨に条件(家賃・エリア)が近い物件一覧
| 写真 | 家賃 管理費等 | 敷金 礼金 | 間取り 専有面積 | 築年数 | 最寄り駅 所在地 | キープ | 詳細 |
|---|---|---|---|---|---|---|---|
一戸建て 神戸電鉄粟生線 大村駅(兵庫) 徒歩7分 築46年(5DK) | |||||||
![]() | 4.5万円 なし | なし 9万円 | 5DK 60m2 | 築46年 | 神戸電鉄粟生線 大村駅(兵庫) 徒歩7分 神戸電鉄粟生線 三木駅(神戸電鉄) 徒歩16分 神戸電鉄粟生線 三木上の丸駅 徒歩26分 兵庫県三木市平田 | 詳細を見る | |
アパート アニヴェルセルⅠ(1K/2階) | |||||||
![]() | 4.8万円 4,000円 | 4.8万円 10万円 | 1K 33.05m2 | 築19年 | 兵庫県加古郡稲美町国岡3丁目 | 詳細を見る | |
マンション 兵庫県神戸市須磨区 築41年(2LDK/5階) | |||||||
![]() | 5.96万円 4,200円 | 11.92万円 なし | 2LDK 61m2 | 築41年 | 兵庫県神戸市須磨区北落合1丁目 | 詳細を見る | |
マンション ソプラリア(ワンルーム/1階) | |||||||
![]() | 5万円 4,000円 | なし 5万円 | ワンルーム 24.68m2 | 築22年 | 神戸電鉄粟生線 広野ゴルフ場前駅 徒歩10分 神戸電鉄粟生線 緑が丘駅(兵庫) 徒歩21分 神戸電鉄粟生線 志染駅 徒歩25分 兵庫県三木市緑が丘町西5 | 詳細を見る | |
一戸建て 神戸電鉄粟生線 広野ゴルフ場前駅 徒歩11分 築53年(4DK) | |||||||
![]() | 4.8万円 なし | 9.6万円 9.6万円 | 4DK 60.74m2 | 築53年 | 神戸電鉄粟生線 広野ゴルフ場前駅 徒歩11分 神戸電鉄粟生線 緑が丘駅(兵庫) 徒歩19分 兵庫県三木市志染町東自由が丘1丁目 | 詳細を見る | |
マンション 兵庫県神戸市須磨区 築53年(2DK/6階) | |||||||
![]() | 4.96万円 1,600円 | 9.92万円 なし | 2DK 48m2 | 築53年 | 兵庫県神戸市須磨区高倉台4丁目 | 詳細を見る | |
マンション 山陽本線 西明石駅 徒歩3分 築41年(1K/1階) | |||||||
![]() | 4万円 5,000円 | なし 4万円 | 1K 21m2 | 築41年 | 山陽本線 西明石駅 徒歩3分 山陽電気鉄道本線 藤江駅 徒歩17分 山陽電気鉄道本線 林崎松江海岸駅 徒歩30分 兵庫県明石市西明石西町1丁目 | 詳細を見る | |
マンション メゾン・ド・ウィングⅣ(ワンルーム/2階) | |||||||
![]() | 3.9万円 なし | なし 5万円 | ワンルーム 19.8m2 | 築23年 | 神戸電鉄粟生線 三木上の丸駅 徒歩9分 神戸電鉄粟生線 三木駅(神戸電鉄) 徒歩9分 神戸電鉄粟生線 恵比須駅 徒歩23分 兵庫県三木市本町2 | 詳細を見る | |







