賃貸アパート
山陰本線 太秦駅(JR) 徒歩15分 3階建 築10年の賃貸物件情報(1LDK/3階)
| 家賃 | 管理費等 | 敷金 | 礼金 | 間取り | 専有面積 |
|---|---|---|---|---|---|
| 8.5万円 | 8,500円 | なし | 10万円 | 1LDK | 43.04m2 |
入居決定でお祝い金最大100,000円
Point
大手ハウスメーカー施工 大手ハウスメーカー・大和ハウス施工の物件登場です。
提供:株式会社 京都ライフ 西大路店(賃貸スモッカ経由)

詳細情報 山陰本線 太秦駅(JR) 徒歩15分 3階建 築10年
物件紹介
山陰本線太秦駅から徒歩15分にあるアパートです。
このお部屋は2階以上に位置しているので通行人や周囲の住人からの視線が気になりにくく、建物のエントランスはオートロックがついているので防犯性が高くなっています。
人気の南向き・フローリングのお部屋。角部屋でもあるため、周囲の居住者の生活音も気になりにくい場所です。室内にはウォークインクローゼットがありますので、たくさんの荷物も効率的に収納ができます。キッチンはシステムキッチン仕様になっていますので、お料理好きの方にもぴったり。バス・トイレは別なので、のんびりお風呂タイムも楽しめるでしょう。また、雨の日でも浴室乾燥機を使えば、お洗濯も問題ありません。
通信設備面ではBSアンテナがありますので、おうち時間も充実するでしょう(別途工事、契約料が必要な場合あり)。
このお部屋は2階以上に位置しているので通行人や周囲の住人からの視線が気になりにくく、建物のエントランスはオートロックがついているので防犯性が高くなっています。
人気の南向き・フローリングのお部屋。角部屋でもあるため、周囲の居住者の生活音も気になりにくい場所です。室内にはウォークインクローゼットがありますので、たくさんの荷物も効率的に収納ができます。キッチンはシステムキッチン仕様になっていますので、お料理好きの方にもぴったり。バス・トイレは別なので、のんびりお風呂タイムも楽しめるでしょう。また、雨の日でも浴室乾燥機を使えば、お洗濯も問題ありません。
通信設備面ではBSアンテナがありますので、おうち時間も充実するでしょう(別途工事、契約料が必要な場合あり)。
お金・契約の情報
※「-」と表示されているものは、実際は料金が発生するものもございます。詳細はお問い合わせください。
| 家賃 | 8.5万円 | 管理費・共益費 | 8,500円 |
|---|---|---|---|
| 敷金 | なし | 礼金 | 10万円 |
| 入居決定でお祝い金最大100,000円 | |||
| 保証金 | - | 償却・敷引 | - |
| 住宅保険料 | 住宅保険料あり | 更新料 | - |
| 契約形態 | - | 契約期間 | 1年 |
| 入居・引渡期間 | 2026年02月中旬 | 現況 | 賃貸中 |
| 契約備考 | 大手ハウスメーカー・大和ハウス施工の物件登場です。間取りは1LDKと2LDKの2タイプございますので、ファミリーさん、新婚さんにオススメの物件となっております。また設備も充実しており、ホームセキュリティーも完備しておりますので安全にお過ごしいただけると思います。駐車場もセット契約ですので、お車お持ちの方にもばっちりです。是非一度京都市右京区は京都ライフ西院店までお問い合わせください 入居者サポート:880円 更新料:30,000円 その他設備/条件:最上階の物件、コンロ2口以上、独立洗面台、TVドアホン | ||
部屋の情報
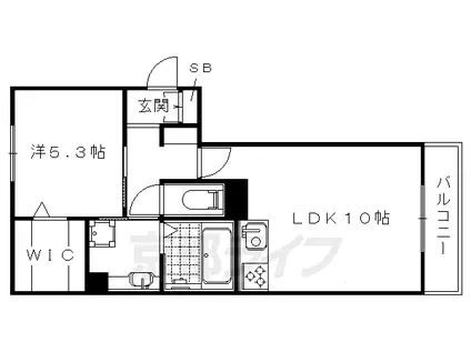
| 間取り | 1LDK | 専有面積 | 43.04m2 |
|---|---|---|---|
| 間取り詳細 | 洋室(5.3帖)、LDK(10.4帖) | ||
| 所在階 / 向き | 3階 / 南 | バルコニー面積 | - |
| 水道 / ガス | ガス【都市】 | ||
| 設備 | バス・トイレ別、2階以上、オートロック、浴室乾燥機、ウォークインクローゼット、追い焚き、システムキッチン、エアコン、温水洗浄便座、南向き、角部屋、バルコニー、フローリング、コンロ:ガス、BSアンテナ、洗濯機:室内 | ||
| 当社物件ID | 160178144 | ||
建物の情報
| 建物名 | 山陰本線 太秦駅(JR) 徒歩15分 3階建 築10年 | ||
|---|---|---|---|
| 所在地 | 京都府京都市右京区嵯峨野芝野町 | ||
| 交通 | 山陰本線 太秦駅(JR) 徒歩15分 京都市東西線 太秦天神川駅 徒歩22分 | ||
| 階数 | 3階建 | 総戸数 | - |
| 築年月 | 2016年09月 / 築10年 | エレベーター | - |
| 駐車場 | - | バイク置き場 | - |
| 駐輪場 | あり | 管理人/管理会社 | - |
| 建物種別 | アパート | 建物構造 | 軽量鉄骨造 |
この部屋の取扱い不動産会社
| 会社名 | 株式会社 京都ライフ 西大路店(賃貸スモッカ経由) | ||
|---|---|---|---|
| 所在地 | 京都市南区唐橋西平垣町38-1 ルミエール唐橋1階 | 交通 | - |
| 営業時間 | - | 定休日 | - |
| 免許番号 | 京都府知事(11)第6353号 | 取引態様 | 仲介 |
| 不動産会社管理番号 | kyotolife_57047-303-29 | 当社管理番号 | 463 |
| 所属団体 | 京都府宅地建物取引業協会\n公益社団法人近畿地区不動産公正取引協議会 | ||
| 公正取引協議会 | 全国宅地建物取引業保証協会 | ||
| 取扱い物件情報 | 物件詳細へ | ||
※各種情報と現状に差異がある場合は、現状優先となります。問い合わせをすることで、より詳しい条件、情報を確認する事ができます。
提供:株式会社 京都ライフ 西大路店(賃貸スモッカ経由)
この物件が気になったら掲載期限まであと5日
山陰本線 太秦駅(JR) 徒歩15分 3階建 築10年に条件(家賃・エリア)が近い物件一覧
| 写真 | 家賃 管理費等 | 敷金 礼金 | 間取り 専有面積 | 築年数 | 最寄り駅 所在地 | キープ | 詳細 |
|---|---|---|---|---|---|---|---|
一戸建て 京阪電気鉄道京阪線 橋本駅(京都) 徒歩7分 築48年(3LDK) | |||||||
![]() | 8.5万円 なし | なし 8.5万円 | 3LDK 72.58m2 | 築48年 | 京阪電気鉄道京阪線 橋本駅(京都) 徒歩7分 京阪電気鉄道京阪線 樟葉駅 徒歩33分 京阪電気鉄道京阪線 石清水八幡宮駅 徒歩37分 京都府八幡市橋本塩釜 | 詳細を見る | |
アパート 山陰本線 太秦駅(JR) 徒歩27分 築1年(2LDK/1階) | |||||||
![]() | 11.3万円 8,000円 | なし 6万円 | 2LDK 60.27m2 | 築1年 | 山陰本線 太秦駅(JR) 徒歩27分 京都市東西線 太秦天神川駅 徒歩27分 京都府京都市右京区梅津構口町 | 詳細を見る | |
マンション 阪急電鉄嵐山線 松尾大社駅 徒歩15分 築35年(1LDK/4階) | |||||||
![]() | 6万円 4,000円 | なし 6万円 | 1LDK 40.16m2 | 築35年 | 阪急電鉄嵐山線 松尾大社駅 徒歩15分 山陰本線 嵯峨嵐山駅 徒歩18分 京都府京都市右京区嵯峨石ケ坪町 | 詳細を見る | |
マンション 山陰本線 花園駅(京都) 徒歩1分 築49年(1LDK/4階) | |||||||
![]() | 6.5万円 4,000円 | なし なし | 1LDK 41m2 | 築49年 | 山陰本線 花園駅(京都) 徒歩1分 山陰本線 円町駅 徒歩15分 京都府京都市右京区花園伊町 | 詳細を見る | |
マンション 阪急電鉄京都線 西京極駅 徒歩9分 新築(1K/5階) | |||||||
![]() | 7.21万円 7,490円 | なし 7.959万円 | 1K 24.56m2 | 新築 | 阪急電鉄京都線 西京極駅 徒歩9分 阪急電鉄京都線 西院駅(阪急) 徒歩12分 京都府京都市右京区西院月双町 | 詳細を見る | |
マンション 阪急電鉄京都線 西京極駅 徒歩10分 築16年(ワンルーム/2階) | |||||||
![]() | 5.2万円 7,000円 | なし 10.4万円 | ワンルーム 25.74m2 | 築16年 | 阪急電鉄京都線 西京極駅 徒歩10分 阪急電鉄京都線 西院駅(阪急) 徒歩21分 京都府京都市右京区西京極北庄境町 | 詳細を見る | |
マンション 阪急電鉄京都線 西院駅(阪急) 徒歩10分 築30年(1K/6階) | |||||||
![]() | 5.9万円 3,000円 | なし なし | 1K 23m2 | 築30年 | 阪急電鉄京都線 西院駅(阪急) 徒歩10分 山陰本線 丹波口駅 徒歩13分 京都府京都市右京区西院南高田町 | 詳細を見る | |
マンション 阪急電鉄京都線 西院駅(阪急) 徒歩10分 築30年(1K/8階) | |||||||
![]() | 6万円 3,000円 | なし なし | 1K 23m2 | 築30年 | 阪急電鉄京都線 西院駅(阪急) 徒歩10分 山陰本線 丹波口駅 徒歩13分 京都府京都市右京区西院南高田町 | 詳細を見る | |








