賃貸マンション
ミッドタワーいわきの賃貸物件情報(4LDK/8階)
| 家賃 | 管理費等 | 敷金 | 礼金 | 間取り | 専有面積 |
|---|---|---|---|---|---|
| 18万円 | なし | 18万円 | 18万円 | 4LDK | 81.98m2 |
入居決定でお祝い金最大100,000円
Point
2024年11月新築!!インターネットUCOM光導入済み(全世帯共用)収納多、ハウスワークスペースあり。
提供:エイブルネットワークいわき店石井企画(株)(SUUMO経由)

詳細情報 ミッドタワーいわき
物件紹介
ミッドタワーいわきはJR磐越東線いわき駅から徒歩3分にあり、駅近で通勤通学に便利なマンションです。
このお部屋は2階以上に位置しているので、通行人や周囲の住人からの視線が気になりにくく、防犯面でも安心。建物のエントランスはオートロックがついており、インターホンにはTVモニタもついているため、相手の顔を確認してから来客対応することができます。
人気の南向き・フローリングのお部屋。角部屋でもあるため、周囲の居住者の生活音も気になりにくい場所です。室内にはウォークインクローゼットがありますので、たくさんの荷物も効率的に収納ができます。バス・トイレ別の仕様で、のんびりお風呂タイムも楽しめます。また、浴室乾燥機を使えば、雨の日でもお洗濯は問題ありません。
通信設備面では、インターネット接続が可能です(別途工事、契約料が必要な場合あり)。
床暖房があり、冬も足元から暖かく快適に過ごすことができます。共用部には宅配ボックスが設定されているので、不在の時にも荷物を受け取ることができます。
このお部屋は2階以上に位置しているので、通行人や周囲の住人からの視線が気になりにくく、防犯面でも安心。建物のエントランスはオートロックがついており、インターホンにはTVモニタもついているため、相手の顔を確認してから来客対応することができます。
人気の南向き・フローリングのお部屋。角部屋でもあるため、周囲の居住者の生活音も気になりにくい場所です。室内にはウォークインクローゼットがありますので、たくさんの荷物も効率的に収納ができます。バス・トイレ別の仕様で、のんびりお風呂タイムも楽しめます。また、浴室乾燥機を使えば、雨の日でもお洗濯は問題ありません。
通信設備面では、インターネット接続が可能です(別途工事、契約料が必要な場合あり)。
床暖房があり、冬も足元から暖かく快適に過ごすことができます。共用部には宅配ボックスが設定されているので、不在の時にも荷物を受け取ることができます。
お金・契約の情報
※「-」と表示されているものは、実際は料金が発生するものもございます。詳細はお問い合わせください。
| 家賃 | 18万円 | 管理費・共益費 | なし |
|---|---|---|---|
| 敷金 | 18万円 | 礼金 | 18万円 |
| 入居決定でお祝い金最大100,000円 | |||
| 保証金 | - | 償却・敷引 | - |
| 住宅保険料 | - | 更新料 | - |
| 契約形態 | 定期借家 | 契約期間 | 5年 |
| 入居・引渡期間 | 即時 | 現況 | - |
| 契約備考 | 未入居/2024年11月新築!!インターネットUCOM光導入済み(全世帯共用)収納多、ハウスワークスペースあり。駅まで徒歩圏内かつ眺望が非常に良い物件です! 4LDK 定期借家5年 損保【2.4万円2年】 バストイレ別、ガスコンロ対応、クロゼット、TVインターホン、浴室乾燥機、室内洗濯置、南向き、追焚機能浴室、温水洗浄便座、洗面所独立、洗面化粧台、即入居可、3口以上コンロ、対面式キッチン、敷金1ヶ月、全居室フローリング、LDK15畳以上、築2年以内、エアコン4台、未入居、駅徒歩5分以内、アルコーブ、ガラストップコンロ、洗面所にドア、ウォークインクロゼット2、礼金1ヶ月、全室照明付 | ||
部屋の情報
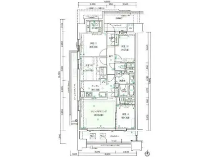
| 間取り | 4LDK | 専有面積 | 81.98m2 |
|---|---|---|---|
| 所在階 / 向き | 8階 / 南 | バルコニー面積 | - |
| 水道 / ガス | - | ||
| 設備 | バス・トイレ別、2階以上、テレビドアホン、浴室乾燥機、ウォークインクローゼット、追い焚き、エアコン、温水洗浄便座、南向き、フローリング、洗髪洗面化粧台、2口コンロ、コンロ:ガス、洗濯機:室内 | ||
| 当社物件ID | 158280017 | ||
建物の情報
| 建物名 | ミッドタワーいわき | ||
|---|---|---|---|
| 所在地 | 福島県いわき市平並木の杜 | ||
| 交通 | JR常磐線 いわき駅 徒歩3分 | ||
| 階数 | 21階建 | 総戸数 | 216戸 |
| 築年月 | 2024年11月 / 築2年 | エレベーター | - |
| 駐車場 | 空有 付無料 | バイク置き場 | - |
| 駐輪場 | - | 管理人/管理会社 | - |
| 周辺環境 | その他 いわき市立 平 第一小学校(小学校)まで500m その他 いわき市立平第一中学校(中学校)まで900m その他 マルト SC平尼子店(スーパー)まで1200m | ||
| 建物種別 | マンション | 建物構造 | RC(鉄筋コンクリート) |
この部屋の取扱い不動産会社
| 会社名 | アドレス賃貸(株)(SUUMO経由) | ||
|---|---|---|---|
| 所在地 | 福島県いわき市平上荒川字長尾 74-8 | 交通 | - |
| 営業時間 | 9:00-18:00 | 定休日 | 毎週火・水曜日 |
| 免許番号 | 福島県知事2998 | 取引態様 | 仲介 |
| 不動産会社管理番号 | 100420076592 | 当社管理番号 | 89 |
| 所属団体 | (公社)全日本不動産協会福島県本部会員 | ||
| 公正取引協議会 | 東北地区不動産公正取引協議会加盟 | ||
| 取扱い物件情報 | 物件詳細へ | ||
※各種情報と現状に差異がある場合は、現状優先となります。問い合わせをすることで、より詳しい条件、情報を確認する事ができます。
提供:アドレス賃貸(株)(SUUMO経由)
この物件が気になったら掲載期限まであと10日
ミッドタワーいわきに条件(家賃・エリア)が近い物件一覧
| 写真 | 家賃 管理費等 | 敷金 礼金 | 間取り 専有面積 | 築年数 | 最寄り駅 所在地 | キープ | 詳細 |
|---|---|---|---|---|---|---|---|
一戸建て 常磐線 広野駅(福島) 徒歩19分 築13年(6DK) | |||||||
![]() | 12万円 なし | 12万円 なし | 6DK 118.42m2 | 築13年 | 常磐線 広野駅(福島) 徒歩19分 福島県双葉郡広野町大字折木字大平 | 詳細を見る | |
マンション アパートメントハウス・アーデル(3LDK/2階) | |||||||
![]() | 13万円 5,000円 | 13.52万円 なし | 3LDK 67.6m2 | 築28年 | JR常磐線 いわき駅 徒歩15分 JR磐越東線 いわき駅 徒歩15分 福島県いわき市平新田前 | 詳細を見る | |
マンション グランフォセット平中央公園II(3LDK/14階) | |||||||
![]() | 15.8万円 なし | 31.6万円 15.8万円 | 3LDK 75.9m2 | 築9年 | JR常磐線 いわき駅 徒歩15分 福島県いわき市平童子町 | 詳細を見る | |
一戸建て 磐越東線 小川郷駅 徒歩24分 築37年(6DK) | |||||||
![]() | 13万円 なし | 26万円 13万円 | 6DK 136.88m2 | 築37年 | 磐越東線 小川郷駅 徒歩24分 福島県いわき市小川町上小川字和具 | 詳細を見る | |
一戸建て 常磐線 木戸駅 徒歩9分 築32年(6LDK) | |||||||
![]() | 12万円 なし | 12万円 なし | 6LDK 172.06m2 | 築32年 | 常磐線 木戸駅 徒歩9分 福島県双葉郡楢葉町大字前原字研下 | 詳細を見る | |
一戸建て 常磐線 竜田駅 徒歩4分 築66年(7LDK) | |||||||
![]() | 27.5万円 なし | なし なし | 7LDK 335.11m2 | 築66年 | 常磐線 竜田駅 徒歩4分 福島県双葉郡楢葉町大字井出字西原 | 詳細を見る | |
マンション 並木の杜 ミッドタワーいわき(3LDK/3階) | |||||||
![]() | 19.9万円 なし | 39.8万円 19.9万円 | 3LDK 70.76m2 | 築2年 | JR常磐線 いわき駅 徒歩4分 福島県いわき市平並木の杜 | 詳細を見る | |


/105x80-f1-q70-wp1)


/105x80-f1-q70-wp1)
/105x80-f1-q70-wp1)
/105x80-f1-q70-wp1)
