賃貸マンション
エステムコート和歌山CITYステーションフロントの賃貸物件情報(3LDK/12階)
| 家賃 | 管理費等 | 敷金 | 礼金 | 間取り | 専有面積 |
|---|---|---|---|---|---|
| 13.2万円 | 1.74万円 | 13.2万円 | 13.2万円 | 3LDK | 69.6m2 |
入居決定でお祝い金最大100,000円
- 保証金
- -
- 償却・敷引
- -
- 築年数
- 築4年
- 所在階
- 12階
- 向き
- 東
Point
人もお部屋も出会いは一期一会。。。素敵な新生活をここから♪
和歌山市駅すぐそばに人気シリーズの分譲マンション♪なかなか出ないお部屋です♪素敵な新生活ここから♪
提供:株式会社PLUS HOME 和歌山駅店(賃貸スモッカ経由)

詳細情報 エステムコート和歌山CITYステーションフロント
物件紹介
エステムコート和歌山CITYステーションフロントは南海電鉄南海本線和歌山市駅から徒歩3分にあり、駅近で通勤通学に便利なマンションです。
このお部屋は2階以上に位置しているので通行人や周囲の住人からの視線が気になりにくく、建物のエントランスはオートロックがついているので防犯性が高くなっています。
フローリングのお部屋なのでお掃除もラクラク。室内には人気のウォークインクローゼットがありますので、たくさんの荷物も効率的に収納ができます。キッチンはシステムキッチン仕様になっていますので、お料理好きの方にもぴったり。バス・トイレは別なので、のんびりお風呂タイムも楽しめるでしょう。また、雨の日でも浴室乾燥機を使えば、お洗濯も問題ありません。
通信設備面では、インターネット接続が可能です。また、BSアンテナ・CSアンテナもありますので、おうち時間も充実するでしょう(別途工事、契約料が必要な場合あり)。
床暖房があり、冬も足元から暖かく快適に過ごすことができます。建物にはエレベーターがついているので、重い荷物があっても安心。共用部には宅配ボックスが設定されているので、不在の時にも荷物を受け取ることができます。
このお部屋は2階以上に位置しているので通行人や周囲の住人からの視線が気になりにくく、建物のエントランスはオートロックがついているので防犯性が高くなっています。
フローリングのお部屋なのでお掃除もラクラク。室内には人気のウォークインクローゼットがありますので、たくさんの荷物も効率的に収納ができます。キッチンはシステムキッチン仕様になっていますので、お料理好きの方にもぴったり。バス・トイレは別なので、のんびりお風呂タイムも楽しめるでしょう。また、雨の日でも浴室乾燥機を使えば、お洗濯も問題ありません。
通信設備面では、インターネット接続が可能です。また、BSアンテナ・CSアンテナもありますので、おうち時間も充実するでしょう(別途工事、契約料が必要な場合あり)。
床暖房があり、冬も足元から暖かく快適に過ごすことができます。建物にはエレベーターがついているので、重い荷物があっても安心。共用部には宅配ボックスが設定されているので、不在の時にも荷物を受け取ることができます。
お金・契約の情報
※「-」と表示されているものは、実際は料金が発生するものもございます。詳細はお問い合わせください。
| 家賃 | 13.2万円 | 管理費・共益費 | 1.74万円 |
|---|---|---|---|
| 敷金 | 13.2万円 | 礼金 | 13.2万円 |
| 入居決定でお祝い金最大100,000円 | |||
| 保証金 | - | 償却・敷引 | - |
| 住宅保険料 | 住宅保険料あり | 更新料 | - |
| 契約形態 | - | 契約期間 | 1年 |
| 入居・引渡期間 | 2026年05月中旬 | 現況 | 居住中 |
| 契約備考 | 鍵交換費:55,000円 安心クラブ入会金:5,500円 その他設備/条件:分譲賃貸、コンロ2口以上、独立洗面台、TVドアホン | ||
部屋の情報
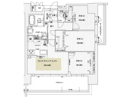
| 間取り | 3LDK | 専有面積 | 69.6m2 |
|---|---|---|---|
| 所在階 / 向き | 12階 / 東 | バルコニー面積 | - |
| 水道 / ガス | ガス【都市】 | ||
| 設備 | バス・トイレ別、2階以上、オートロック、宅配ボックス、浴室乾燥機、ウォークインクローゼット、追い焚き、インターネット対応、システムキッチン、カウンターキッチン、エレベーター、バルコニー、フローリング、床暖房、コンロ:ガス、CSアンテナ、BSアンテナ、洗濯機:室内 | ||
| 当社物件ID | 160560553 | ||
建物の情報
| 建物名 | エステムコート和歌山CITYステーションフロント | ||
|---|---|---|---|
| 所在地 | 和歌山県和歌山市伝法橋南ノ丁 | ||
| 交通 | 南海電鉄南海本線 和歌山市駅 徒歩3分 紀勢本線 紀和駅 徒歩26分 阪和線 和歌山駅 徒歩36分 | ||
| 階数 | 15階建 | 総戸数 | - |
| 築年月 | 2023年02月 / 築4年 | エレベーター | あり |
| 駐車場 | 空有 1.87万円/月 | バイク置き場 | あり |
| 駐輪場 | あり | 管理人/管理会社 | - |
| 周辺環境 | 病院 JR札幌病院 徒歩5分(364m) その他 ホテルクラビーサッポロ 徒歩3分(175m) その他 北3東3 徒歩3分(217m) その他 北3東3 徒歩3分(233m) その他 サッポロファクトリー レンガ館 徒歩4分(269m) その他 セブンイレブン 徒歩6分(420m) その他 (株)サッポロファクトリー3条館1階北洋銀行/苗穂支店 徒歩4分(313m) その他 まいばすけっと北1条東1丁目店 徒歩6分(418m) | ||
| 建物種別 | マンション | 建物構造 | RC(鉄筋コンクリート) |
この部屋の取扱い不動産会社
| 会社名 | 株式会社PLUS HOME PLUS HOME和歌山市駅店(賃貸スモッカ経由) | ||
|---|---|---|---|
| 所在地 | 和歌山県和歌山市杉ノ馬場1-23 | 交通 | - |
| 営業時間 | - | 定休日 | - |
| 免許番号 | 和歌山県知事免許(1)第4045号 | 取引態様 | 一般 |
| 不動産会社管理番号 | plushome_67279812 | 当社管理番号 | 463 |
| 所属団体 | (公社)全日本不動産協会\n(公社)全日本不動産協会和歌山県本部\n(公社)近畿圏不動産流通機構\n公益社団法人近畿地区不動産公正取引協議会 | ||
| 公正取引協議会 | (公社)不動産保証協会 | ||
| 取扱い物件情報 | 物件詳細へ | ||
※各種情報と現状に差異がある場合は、現状優先となります。問い合わせをすることで、より詳しい条件、情報を確認する事ができます。
提供:株式会社PLUS HOME PLUS HOME和歌山市駅店(賃貸スモッカ経由)
この物件が気になったら掲載期限まであと5日
エステムコート和歌山CITYステーションフロントに条件(家賃・エリア)が近い物件一覧
| 写真 | 家賃 管理費等 | 敷金 礼金 | 間取り 専有面積 | 築年数 | 最寄り駅 所在地 | キープ | 詳細 |
|---|---|---|---|---|---|---|---|
アパート アルビネス田中町(1LDK/1階) | |||||||
![]() | 9.4万円 6,000円 | なし 20万円 | 1LDK 42.2m2 | 築3年 | 和歌山電鐵貴志川線 田中口駅 徒歩5分 阪和線 和歌山駅 徒歩7分 和歌山電鐵貴志川線 日前宮駅 徒歩16分 和歌山県和歌山市田中町5丁目 | 詳細を見る | |
アパート D-ROOM Y(1LDK/3階) | |||||||
![]() | 8万円 4,000円 | なし 15万円 | 1LDK 53.9m2 | 築3年 | 阪和線 和歌山駅 徒歩29分 阪和線 紀伊中ノ島駅 徒歩29分 和歌山線 田井ノ瀬駅 徒歩31分 和歌山県和歌山市松島 | 詳細を見る | |
マンション ベレオ金龍寺丁(1LDK/2階) | |||||||
![]() | 8.7万円 6,000円 | 1万円 12万円 | 1LDK 45.9m2 | 築6年 | 南海電鉄和歌山港線 和歌山港駅 徒歩26分 南海電鉄南海本線 和歌山市駅 徒歩29分 紀勢本線 宮前駅 徒歩35分 和歌山県和歌山市金龍寺丁 | 詳細を見る | |
アパート D-LUCE黒田-イースト(1LDK/1階) | |||||||
![]() | 8.3万円 5,000円 | なし なし | 1LDK 37.2m2 | 築2年 | 阪和線 和歌山駅 徒歩12分 阪和線 紀伊中ノ島駅 徒歩14分 和歌山電鐵貴志川線 田中口駅 徒歩17分 和歌山県和歌山市黒田 | 詳細を見る | |
アパート アトラス西高松 B棟(3LDK/1階) | |||||||
![]() | 9.5万円 5,500円 | なし 5万円 | 3LDK 80.5m2 | 築22年 | 紀勢本線 宮前駅 徒歩38分 紀勢本線 紀三井寺駅 徒歩46分 南海電鉄南海本線 和歌山市駅 徒歩55分 和歌山県和歌山市西高松2丁目 | 詳細を見る | |
アパート アルヴィスコート(2LDK/1階) | |||||||
![]() | 10万円 6,000円 | なし 20万円 | 2LDK 60.8m2 | 築8年 | 紀勢本線 紀和駅 徒歩11分 南海電鉄南海本線 和歌山市駅 徒歩15分 阪和線 紀伊中ノ島駅 徒歩22分 和歌山県和歌山市元寺町南ノ丁 | 詳細を見る | |
アパート モンテリザイア紀和(1LDK/3階) | |||||||
![]() | 8.3万円 3,300円 | なし 8.3万円 | 1LDK 36.5m2 | 築1年 | 紀勢本線 紀和駅 徒歩6分 南海電鉄南海本線 和歌山市駅 徒歩16分 阪和線 紀伊中ノ島駅 徒歩17分 和歌山県和歌山市北新博労町 | 詳細を見る | |
マンション ベレオ和歌山駅東(2LDK/3階) | |||||||
![]() | 12.2万円 5,500円 | 1万円 15万円 | 2LDK 62.6m2 | 築8年 | 阪和線 和歌山駅 徒歩9分 和歌山電鐵貴志川線 田中口駅 徒歩10分 和歌山電鐵貴志川線 日前宮駅 徒歩12分 和歌山県和歌山市太田3丁目 | 詳細を見る | |









