賃貸アパート
ルナール東伏見の賃貸物件情報(1K/3階)
| 家賃 | 管理費等 | 敷金 | 礼金 | 間取り | 専有面積 |
|---|---|---|---|---|---|
| 6.2万円 | 1万円 | 6.2万円 | 6.2万円 | 1K | 17.22m2 |
入居決定でお祝い金最大100,000円
Point
まずはお問い合わせ!
不動産会社は街のプロ、あなたに合った物件がきっと見つかります。
提供:ハウスコム西東京株式会社 吉祥寺店

詳細情報 ルナール東伏見
物件紹介
ルナール東伏見は西武鉄道新宿線東伏見駅から徒歩11分にあるアパートです。
このお部屋は2階以上に位置しているので、通行人や周囲の住人からの視線が気になりにくく、防犯面でも安心です。
このお部屋は2階以上に位置しているので、通行人や周囲の住人からの視線が気になりにくく、防犯面でも安心です。
お金・契約の情報
※「-」と表示されているものは、実際は料金が発生するものもございます。詳細はお問い合わせください。
| 家賃 | 6.2万円 | 管理費・共益費 | 1万円 |
|---|---|---|---|
| 敷金 | 6.2万円 | 礼金 | 6.2万円 |
| 入居決定でお祝い金最大100,000円 | |||
| 保証金 | - | 償却・敷引 | - |
| 住宅保険料 | 1円 | 更新料 | - |
| その他費用 | 契約事務手数料:1.1万円 | ||
| 保証会社利用 | 必須 | 保証会社名 | - |
| 保証会社費用 | - | 保証会社備考 | 初回100% |
| 契約形態 | - | 契約期間 | 2年 |
| 入居・引渡期間 | 相談 | 現況 | - |
| 契約備考 | 月額:Life Assist24 1980円 初期:契約事務手数料 11000円 保証会社利用必須 初回100% 月額(Life Assist24 1980円) | ||
部屋の情報
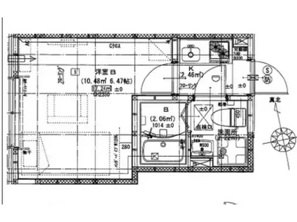
| 間取り | 1K | 専有面積 | 17.22m2 |
|---|---|---|---|
| 間取り詳細 | 洋室(6.5帖) | ||
| 所在階 / 向き | 3階 / 北 | バルコニー面積 | - |
| 水道 / ガス | - | ||
| 当社物件ID | 160561348 | ||
建物の情報
| 建物名 | ルナール東伏見 | ||
|---|---|---|---|
| 所在地 | 東京都西東京市東伏見4丁目 | ||
| 交通 | 西武鉄道新宿線 東伏見駅 徒歩11分 西武鉄道新宿線 西武柳沢駅 徒歩17分 | ||
| 階数 | 3階建 | 総戸数 | - |
| 築年月 | 2026年03月 / 築1年 | エレベーター | - |
| 駐車場 | - | バイク置き場 | - |
| 駐輪場 | - | 管理人/管理会社 | - |
| 周辺環境 | その他 ドラッグストア その他 公園 その他 銀行 その他 * | ||
| 建物種別 | アパート | 建物構造 | 木造 |
この部屋の取扱い不動産会社
| 会社名 | ハウスコム西東京株式会社 ひばりヶ丘店 | ||
|---|---|---|---|
| 所在地 | 東京都西東京市27-9JCビルⅡ1階 | 交通 | - |
| 営業時間 | 10:00~18:00 | 定休日 | - |
| 免許番号 | 東京都知事(1)第108225号 | 取引態様 | 仲介 |
| 不動産会社管理番号 | HC2-5401823-302-0264 | 当社管理番号 | 468 |
| 所属団体 | 、 | ||
| 取扱い物件情報 | 物件詳細へ | ||
※各種情報と現状に差異がある場合は、現状優先となります。問い合わせをすることで、より詳しい条件、情報を確認する事ができます。
提供:ハウスコム西東京株式会社 ひばりヶ丘店
この物件が気になったら掲載期限まであと5日
ルナール東伏見に条件(家賃・エリア)が近い物件一覧
| 写真 | 家賃 管理費等 | 敷金 礼金 | 間取り 専有面積 | 築年数 | 最寄り駅 所在地 | キープ | 詳細 |
|---|---|---|---|---|---|---|---|
アパート アート ヴィレッジ1(1K/1階) | |||||||
![]() | 6.6万円 2,000円 | 6.6万円 6.6万円 | 1K 20m2 | 築23年 | 都営大江戸線 練馬春日町駅 徒歩5分 東京メトロ有楽町線 平和台駅(東京) 徒歩15分 都営大江戸線 光が丘駅 徒歩16分 東京都練馬区春日町 | 詳細を見る | |
アパート 保谷ハイツC(2K/2階) | |||||||
![]() | 5.6万円 なし | なし なし | 2K 29.16m2 | 築43年 | 西武新宿線 東伏見駅 徒歩10分 西武新宿線 武蔵関駅 徒歩24分 西武池袋線 保谷駅 徒歩25分 東京都西東京市富士町 | 詳細を見る | |
マンション レオネクストラベンダー(ワンルーム/3階) | |||||||
![]() | 9.2万円 5,500円 | なし 9.2万円 | ワンルーム 33.12m2 | 築11年 | 東京都練馬区西大泉4丁目 | 詳細を見る | |
アパート クレア上石神井(1K/1階) | |||||||
![]() | 6.2万円 3,000円 | 6.2万円 なし | 1K 16.14m2 | 築8年 | 西武新宿線 上石神井駅 徒歩8分 東京都練馬区上石神井 | 詳細を見る | |
マンション グランディール5(1K/2階) | |||||||
![]() | 6.4万円 7,000円 | なし 6.4万円 | 1K 20.81m2 | 築18年 | 西武池袋線 清瀬駅 徒歩18分 西武池袋線 東久留米駅 徒歩32分 西武池袋線 秋津駅 徒歩35分 東京都東久留米市野火止 | 詳細を見る | |
アパート 岡孝アパート(ワンルーム/1階) | |||||||
![]() | 5.37万円 なし | なし なし | ワンルーム 18.5m2 | 築43年 | 西武拝島線 東大和市駅 徒歩15分 西武国分寺線 鷹の台駅 徒歩25分 多摩都市モノレール 泉体育館駅 徒歩30分 東京都小平市上水新町 | 詳細を見る | |
アパート ミランダヴィーブルIV(ワンルーム/3階) | |||||||
![]() | 8.2万円 5,000円 | なし 8.2万円 | ワンルーム 27.8m2 | 築10年 | 西武拝島線 小川駅(東京) 徒歩19分 西武国分寺線 小川駅(東京) 徒歩19分 JR武蔵野線 新小平駅 徒歩25分 東京都小平市栄町 | 詳細を見る | |
マンション YOLK江古田(1K/1階) | |||||||
![]() | 9.5万円 3,000円 | 9.5万円 なし | 1K 23.58m2 | 築1年 | 都営大江戸線 新江古田駅 徒歩4分 西武池袋線 江古田駅 徒歩5分 西武池袋線 桜台駅(東京) 徒歩5分 東京都練馬区豊玉上 | 詳細を見る | |








