賃貸マンション
阪急電鉄京都線 桂駅 徒歩9分 7階建 築23年の賃貸物件情報(2SLDK/2階)
| 家賃 | 管理費等 | 敷金 | 礼金 | 間取り | 専有面積 |
|---|---|---|---|---|---|
| 14.5万円 | なし | 14.5万円 | 14.5万円 | 2SLDK | 72.24m2 |
入居決定でお祝い金最大100,000円
- 保証金
- -
- 償却・敷引
- -
- 築年数
- 築23年
- 所在階
- 2階
- 向き
- 南
Point
分譲賃貸のネバーランド桂 阪急桂駅徒歩10分圏内の好立地。桂駅は特急停車駅です。
提供:株式会社 京都ライフ 長岡店(賃貸スモッカ経由)

詳細情報 阪急電鉄京都線 桂駅 徒歩9分 7階建 築23年
物件紹介
阪急電鉄京都線桂駅から徒歩9分にあり、駅近で通勤通学に便利なマンションです。
このお部屋は2階以上に位置しているので、通行人や周囲の住人からの視線が気になりにくく、防犯面でも安心。建物のエントランスはオートロックがついており、インターホンにはTVモニタもついているため、相手の顔を確認してから来客対応することができます。
おしゃれなデザイナーズ物件!人気の南向き・フローリングのお部屋。角部屋でもあるため、周囲の居住者の生活音も気になりにくい場所です。キッチンはシステムキッチン仕様になっていますので、お料理好きの方にもぴったり。バス・トイレは別なので、のんびりお風呂タイムも楽しめるでしょう。また、雨の日でも浴室乾燥機を使えば、お洗濯も問題ありません。
通信設備面では、インターネットが無料で使えるので、月々の出費を抑えられるのも魅力です。また、BSアンテナもありますので、おうち時間も充実するでしょう(別途工事、BSの契約料等が必要な場合あり)。
床暖房があり、冬も足元から暖かく快適に過ごすことができます。建物にはエレベーターがついているので、重い荷物があっても安心。共用部には宅配ボックスが設定されているので、不在の時にも荷物を受け取ることができます。
このお部屋は2階以上に位置しているので、通行人や周囲の住人からの視線が気になりにくく、防犯面でも安心。建物のエントランスはオートロックがついており、インターホンにはTVモニタもついているため、相手の顔を確認してから来客対応することができます。
おしゃれなデザイナーズ物件!人気の南向き・フローリングのお部屋。角部屋でもあるため、周囲の居住者の生活音も気になりにくい場所です。キッチンはシステムキッチン仕様になっていますので、お料理好きの方にもぴったり。バス・トイレは別なので、のんびりお風呂タイムも楽しめるでしょう。また、雨の日でも浴室乾燥機を使えば、お洗濯も問題ありません。
通信設備面では、インターネットが無料で使えるので、月々の出費を抑えられるのも魅力です。また、BSアンテナもありますので、おうち時間も充実するでしょう(別途工事、BSの契約料等が必要な場合あり)。
床暖房があり、冬も足元から暖かく快適に過ごすことができます。建物にはエレベーターがついているので、重い荷物があっても安心。共用部には宅配ボックスが設定されているので、不在の時にも荷物を受け取ることができます。
お金・契約の情報
※「-」と表示されているものは、実際は料金が発生するものもございます。詳細はお問い合わせください。
| 家賃 | 14.5万円 | 管理費・共益費 | なし |
|---|---|---|---|
| 敷金 | 14.5万円 | 礼金 | 14.5万円 |
| 入居決定でお祝い金最大100,000円 | |||
| 保証金 | - | 償却・敷引 | - |
| 住宅保険料 | 住宅保険料あり | 更新料 | - |
| 契約形態 | - | 契約期間 | 1年 |
| 入居・引渡期間 | 相談 | 現況 | 空室 |
| 契約備考 | 阪急桂駅まで徒歩9分の分譲賃貸マンションです。嬉しい3点セパレートに浴室乾燥機、追い焚き機能付浴室、システムキッチンなど充実の設備。オートロック、防犯カメラでセキュリティも安心です。コンビニ、スーパーなど近くにあって便利ですよ。光ファイバー対応しています。 害虫駆除費:16,500円 更新料:無し 保証会社:利用必須 初回:月額賃料等の50%、更新時:1.3万円/1年(初回保証料 総賃料120% 更新保証料なしプランあり) その他設備/条件:分譲賃貸、コンロ2口以上、独立洗面台 | ||
部屋の情報
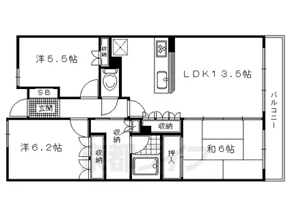
| 間取り | 2SLDK | 専有面積 | 72.24m2 |
|---|---|---|---|
| 間取り詳細 | 洋室(9.1帖)、K(2帖)、洋室(7帖)、洋室(6帖)、その他(5帖)、LDK(17帖) | ||
| 所在階 / 向き | 2階 / 南 | バルコニー面積 | - |
| 水道 / ガス | ガス【都市】 | ||
| 設備 | バス・トイレ別、2階以上、オートロック、テレビドアホン、宅配ボックス、浴室乾燥機、追い焚き、インターネット対応、システムキッチン、カウンターキッチン、エレベーター、温水洗浄便座、南向き、角部屋、バルコニー、フローリング、床暖房、コンロ:ガス、デザイナーズ、BSアンテナ、インターネット使用料無料、シャワー、給湯、洗濯機:室内 | ||
| 当社物件ID | 160528219 | ||
建物の情報
| 建物名 | 阪急電鉄京都線 桂駅 徒歩9分 7階建 築23年 | ||
|---|---|---|---|
| 所在地 | 京都府京都市西京区桂市ノ前町 | ||
| 交通 | 阪急電鉄京都線 桂駅 徒歩9分 東海道本線 桂川駅(京都) 徒歩29分 東急大井町線 上野毛駅 徒歩11分 東急田園都市線 用賀駅 徒歩18分 | ||
| 階数 | 7階建 | 総戸数 | - |
| 築年月 | 2004年02月 / 築23年 | エレベーター | あり |
| 駐車場 | 空有 3.3万円/月 | バイク置き場 | あり |
| 駐輪場 | あり | 管理人/管理会社 | - |
| 周辺環境 | 販売店 徒歩4分(289m) その他 ドラッグストア その他 公園 その他 銀行 その他 * | ||
| 建物種別 | マンション | 建物構造 | RC(鉄筋コンクリート) |
この部屋の取扱い不動産会社
| 会社名 | 株式会社 京都ライフ 長岡店(賃貸スモッカ経由) | ||
|---|---|---|---|
| 所在地 | 長岡京市開田3丁目1番地24 | 交通 | - |
| 営業時間 | - | 定休日 | - |
| 免許番号 | 京都府知事(11)第6353号 | 取引態様 | 仲介 |
| 不動産会社管理番号 | kyotolife_53428-211-08 | 当社管理番号 | 463 |
| 所属団体 | 京都府宅地建物取引業協会\n公益社団法人近畿地区不動産公正取引協議会 | ||
| 公正取引協議会 | 全国宅地建物取引業保証協会 | ||
| 取扱い物件情報 | 物件詳細へ | ||
※各種情報と現状に差異がある場合は、現状優先となります。問い合わせをすることで、より詳しい条件、情報を確認する事ができます。
提供:株式会社 京都ライフ 長岡店(賃貸スモッカ経由)
この物件が気になったら掲載期限まであと6日
阪急電鉄京都線 桂駅 徒歩9分 7階建 築23年に条件(家賃・エリア)が近い物件一覧
| 写真 | 家賃 管理費等 | 敷金 礼金 | 間取り 専有面積 | 築年数 | 最寄り駅 所在地 | キープ | 詳細 |
|---|---|---|---|---|---|---|---|
マンション 東海道本線 桂川駅(京都) 徒歩5分 築32年(3LDK/5階) | |||||||
![]() | 9.5万円 9,000円 | なし 15万円 | 3LDK 65.52m2 | 築32年 | 東海道本線 桂川駅(京都) 徒歩5分 阪急電鉄京都線 洛西口駅 徒歩13分 京都府京都市南区久世上久世町 | 詳細を見る | |
アパート コート・ヴィレッジ(2LDK/1階) | |||||||
![]() | 9.55万円 5,500円 | なし 9.55万円 | 2LDK 50.47m2 | 築1年 | 山陰本線 馬堀駅 徒歩20分 嵯峨野観光鉄道 トロッコ亀岡駅 徒歩30分 山陰本線 亀岡駅 徒歩49分 京都府亀岡市篠町篠赤畑 | 詳細を見る | |
アパート 阪急電鉄京都線 長岡天神駅 徒歩24分 築1年(2LDK/3階) | |||||||
![]() | 10.4万円 8,000円 | なし 10.4万円 | 2LDK 57.37m2 | 築1年 | 阪急電鉄京都線 長岡天神駅 徒歩24分 東海道本線 長岡京駅 徒歩33分 京都府長岡京市奥海印寺八戸木 | 詳細を見る | |
アパート メゾン メルベーユ(2LDK/1階) | |||||||
![]() | 9.4万円 8,000円 | なし 15万円 | 2LDK 59.69m2 | 築9年 | 京阪電気鉄道京阪線 橋本駅(京都) 徒歩17分 京都府八幡市橋本東原 | 詳細を見る | |
アパート 京阪電気鉄道京阪線 石清水八幡宮駅 徒歩6分 築1年(1LDK/2階) | |||||||
![]() | 8.9万円 8,000円 | なし 8.9万円 | 1LDK 46.87m2 | 築1年 | 京阪電気鉄道京阪線 石清水八幡宮駅 徒歩6分 京阪電気鉄道京阪線 橋本駅(京都) 徒歩23分 京都府八幡市八幡科手 | 詳細を見る | |
マンション 阪急電鉄京都線 西山天王山駅 徒歩15分 築6年(2LDK/2階) | |||||||
![]() | 9.2万円 4,500円 | 9.2万円 18.4万円 | 2LDK 51m2 | 築6年 | 阪急電鉄京都線 西山天王山駅 徒歩15分 東海道本線 山崎駅(京都) 徒歩22分 京都府乙訓郡大山崎町字円明寺夏目 | 詳細を見る | |
マンション 東海道本線 桂川駅(京都) 徒歩9分 築34年(3LDK/4階) | |||||||
![]() | 9.6万円 1万円 | なし 9.6万円 | 3LDK 61.02m2 | 築34年 | 東海道本線 桂川駅(京都) 徒歩9分 阪急電鉄京都線 洛西口駅 徒歩15分 京都府京都市南区 | 詳細を見る | |
マンション 東海道本線 桂川駅(京都) 徒歩14分 新築(2LDK/1階) | |||||||
![]() | 13.8万円 9,000円 | なし 25万円 | 2LDK 60.04m2 | 新築 | 東海道本線 桂川駅(京都) 徒歩14分 阪急電鉄京都線 洛西口駅 徒歩25分 京都府京都市西京区牛ケ瀬西柿町 | 詳細を見る | |









