賃貸マンション
バードランドひめじ壱番館の賃貸物件情報(2LDK/3階)
| 家賃 | 管理費等 | 敷金 | 礼金 | 間取り | 専有面積 |
|---|---|---|---|---|---|
| 6.2万円 | 5,000円 | なし | 6.2万円 | 2LDK | 55.2m2 |
入居決定でお祝い金最大100,000円
- 保証金
- -
- 償却・敷引
- -
- 築年数
- 築23年
- 所在階
- 3階
- 向き
- 南西
Point
ネット無料物件は節約効果が期待できます!データ通信量を気にせず無料でネットが利用できます。PCはもちろん、スマートフォンやオンラインで利用できるゲームなどさまざまな用途で楽しめます♪
提供:(株)Library Homes(SUUMO経由)

詳細情報 バードランドひめじ壱番館
物件紹介
バードランドひめじ壱番館はJR山陽本線ひめじ別所駅から徒歩18分にあるマンションです。
このお部屋は2階以上に位置しているので、通行人や周囲の住人からの視線が気になりにくく、防犯面でも安心。インターホンにはTVモニタもついているため、相手の顔を確認してから来客対応することができます。
人気の南向き・フローリングのお部屋。角部屋でもあるため、周囲の居住者の生活音も気になりにくい場所です。バス・トイレ別の仕様で、のんびりお風呂タイムも楽しめます。
通信設備面ではCATVに対応しているので、おうち時間も充実するでしょう(別途工事、契約料が必要な場合あり)。
このお部屋は2階以上に位置しているので、通行人や周囲の住人からの視線が気になりにくく、防犯面でも安心。インターホンにはTVモニタもついているため、相手の顔を確認してから来客対応することができます。
人気の南向き・フローリングのお部屋。角部屋でもあるため、周囲の居住者の生活音も気になりにくい場所です。バス・トイレ別の仕様で、のんびりお風呂タイムも楽しめます。
通信設備面ではCATVに対応しているので、おうち時間も充実するでしょう(別途工事、契約料が必要な場合あり)。
お金・契約の情報
※「-」と表示されているものは、実際は料金が発生するものもございます。詳細はお問い合わせください。
| 家賃 | 6.2万円 | 管理費・共益費 | 5,000円 |
|---|---|---|---|
| 敷金 | なし | 礼金 | 6.2万円 |
| 入居決定でお祝い金最大100,000円 | |||
| 保証金 | - | 償却・敷引 | - |
| 住宅保険料 | - | 更新料 | - |
| 契約形態 | - | 契約期間 | - |
| 入居・引渡期間 | 即時 | 現況 | - |
| 契約備考 | 短期解約違約金有2ヵ月(1年未満)1ヵ月(1年以上2年未満) 合計6.05万円(内訳:鍵交換費22000円定額補修費38500円) 2LDK 二人入居可 損保【要】 バストイレ別、バルコニー、フローリング、シャワー付洗面台、TVインターホン、室内洗濯置、シューズボックス、角住戸、温水洗浄便座、洗面所独立、駐輪場、CATV、閑静な住宅地、最上階、全居室洋室、保証人不要、二人入居相談、2駅利用可、3駅以上利用可、都市ガス、IT重説対応物件、高齢者歓迎、初期費用カード決済可 | ||
部屋の情報
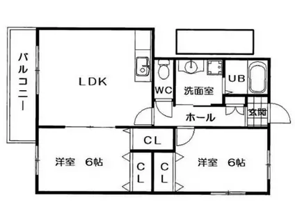
| 間取り | 2LDK | 専有面積 | 55.2m2 |
|---|---|---|---|
| 所在階 / 向き | 3階 / 南西 | バルコニー面積 | - |
| 水道 / ガス | - | ||
| 設備 | バス・トイレ別、2階以上、テレビドアホン、温水洗浄便座、南向き、角部屋、バルコニー、フローリング、洗髪洗面化粧台、CATV、洗濯機:室内 | ||
| 当社物件ID | 2651321 | ||
建物の情報
| 建物名 | バードランドひめじ壱番館 | ||
|---|---|---|---|
| 所在地 | 兵庫県姫路市別所町佐土 | ||
| 交通 | JR山陽本線 ひめじ別所駅 徒歩18分 JR山陽本線 御着駅 徒歩19分 JR山陽本線 曽根駅(兵庫) 徒歩44分 | ||
| 階数 | 3階建 | 総戸数 | - |
| 築年月 | 2003年09月 / 築23年 | エレベーター | - |
| 駐車場 | 空有 5000円 | バイク置き場 | - |
| 駐輪場 | あり | 管理人/管理会社 | - |
| 周辺環境 | その他 姫路市立別所小学校(小学校)まで1100m その他 姫路市立東中学校(中学校)まで500m その他 業務スーパー 御着店(スーパー)まで1400m その他 医療法人仁寿会石川病院(病院)まで1200m | ||
| 建物種別 | マンション | 建物構造 | RC(鉄筋コンクリート) |
この部屋の取扱い不動産会社
| 会社名 | (株)Library Homes(SUUMO経由) | ||
|---|---|---|---|
| 所在地 | 兵庫県姫路市南畝町2-97 | 交通 | - |
| 営業時間 | 10:00~19:00 | 定休日 | (年中無休) |
| 免許番号 | 兵庫県知事451441 | 取引態様 | 仲介 |
| 不動産会社管理番号 | 100502652182 | 当社管理番号 | 89 |
| 所属団体 | (公社)全日本不動産協会兵庫県本部会員 | ||
| 公正取引協議会 | (公社)近畿地区不動産公正取引協議会加盟 | ||
| 取扱い物件情報 | 物件詳細へ | ||
※各種情報と現状に差異がある場合は、現状優先となります。問い合わせをすることで、より詳しい条件、情報を確認する事ができます。
提供:(株)Library Homes(SUUMO経由)
この物件が気になったら掲載期限まであと11日
バードランドひめじ壱番館に条件(家賃・エリア)が近い物件一覧
| 写真 | 家賃 管理費等 | 敷金 礼金 | 間取り 専有面積 | 築年数 | 最寄り駅 所在地 | キープ | 詳細 |
|---|---|---|---|---|---|---|---|
アパート ヴァルトC棟(1SLDK/2階) | |||||||
![]() | 6.2万円 4,000円 | なし 6.2万円 | 1SLDK 46.32m2 | 築21年 | JR姫新線 本竜野駅 徒歩17分 JR姫新線 東觜崎駅 徒歩52分 JR山陽本線 竜野駅 徒歩63分 兵庫県たつの市龍野町堂本 | 詳細を見る | |
一戸建て 姫新線 播磨高岡駅 徒歩26分 築46年(3DK) | |||||||
![]() | 5.5万円 2,000円 | なし なし | 3DK 62m2 | 築46年 | 姫新線 播磨高岡駅 徒歩26分 兵庫県姫路市御立東1 | 詳細を見る | |
アパート ジュピターⅡ(1K/1階) | |||||||
![]() | 4.5万円 3,500円 | なし 9万円 | 1K 35.18m2 | 築14年 | 山陽電気鉄道網干線 夢前川駅 徒歩6分 山陽電気鉄道網干線 広畑駅 徒歩9分 山陽電気鉄道網干線 西飾磨駅 徒歩20分 兵庫県姫路市広畑区東新町2丁目 | 詳細を見る | |
アパート パルティーダ ORII(1LDK/1階) | |||||||
![]() | 5.8万円 4,000円 | 5.8万円 13万円 | 1LDK 40.99m2 | 築17年 | JR山陽本線 加古川駅 徒歩21分 JR山陽本線 東加古川駅 徒歩35分 兵庫県加古川市野口町坂元 | 詳細を見る | |
アパート アーバンコート1(2DK/1階) | |||||||
![]() | 4.7万円 3,000円 | なし 10万円 | 2DK 48.03m2 | 築29年 | 姫新線 本竜野駅 徒歩8分 兵庫県たつの市龍野町宮脇 | 詳細を見る | |
アパート K&Y3(1LDK/3階) | |||||||
![]() | 5.4万円 3,500円 | なし 5.4万円 | 1LDK 52.99m2 | 築12年 | 播但線 野里駅 徒歩23分 兵庫県姫路市北平野1 | 詳細を見る | |
アパート モンビーブルB(1LDK/2階) | |||||||
![]() | 6.25万円 3,500円 | なし 6.25万円 | 1LDK 50.96m2 | 築3年 | 山陽電鉄網干線 山陽網干駅 徒歩15分 山陽電鉄網干線 平松駅 徒歩25分 JR山陽本線 網干駅 徒歩30分 兵庫県姫路市網干区津市場 | 詳細を見る | |
一戸建て 山陽本線 宝殿駅 徒歩18分 築35年(4DK) | |||||||
![]() | 5.8万円 なし | 5.8万円 11.6万円 | 4DK 68m2 | 築35年 | 山陽本線 宝殿駅 徒歩18分 山陽電気鉄道本線 伊保駅 徒歩34分 山陽電気鉄道本線 山陽曽根駅 徒歩43分 兵庫県高砂市米田町島 | 詳細を見る | |








