賃貸マンション
仁志町アドレスの賃貸物件情報(1LDK/1階)
| 家賃 | 管理費等 | 敷金 | 礼金 | 間取り | 専有面積 |
|---|---|---|---|---|---|
| 8.9万円 | 3,000円 | 8.9万円 | なし | 1LDK | 35.62m2 |
入居決定でお祝い金最大100,000円
- 保証金
- -
- 償却・敷引
- -
- 築年数
- 築17年
- 所在階
- 1階
- 向き
- 南
Point
提携弁護士と併設しているので、安心して不動産取引できます!弊社は埼玉に事務所がありますが、埼玉エリアはもちろん、東京の物件も全て対応可!内見は現地待ち合わせ、現地解散、掲載物件以外もご紹介可能!
提供:(株)ID不動産(SUUMO経由)

詳細情報 仁志町アドレス
物件紹介
仁志町アドレスはJR京浜東北線西川口駅から徒歩7分にあり、駅近で通勤通学に便利なマンションです。
このお部屋は2階以上に位置しているので、通行人や周囲の住人からの視線が気になりにくく、防犯面でも安心。建物のエントランスはオートロックがついており、インターホンにはTVモニタもついているため、相手の顔を確認してから来客対応することができます。
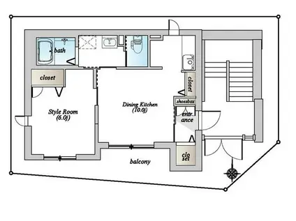
人気の南向き・フローリングのお部屋。角部屋でもあるため、周囲の居住者の生活音も気になりにくい場所です。キッチンはシステムキッチン仕様になっていますので、お料理好きの方にもぴったり。バス・トイレは別なので、のんびりお風呂タイムも楽しめるでしょう。また、雨の日でも浴室乾燥機を使えば、お洗濯も問題ありません。
通信設備面では、インターネット接続が可能です(別途工事、契約料が必要な場合あり)。
このお部屋は2階以上に位置しているので、通行人や周囲の住人からの視線が気になりにくく、防犯面でも安心。建物のエントランスはオートロックがついており、インターホンにはTVモニタもついているため、相手の顔を確認してから来客対応することができます。
人気の南向き・フローリングのお部屋。角部屋でもあるため、周囲の居住者の生活音も気になりにくい場所です。キッチンはシステムキッチン仕様になっていますので、お料理好きの方にもぴったり。バス・トイレは別なので、のんびりお風呂タイムも楽しめるでしょう。また、雨の日でも浴室乾燥機を使えば、お洗濯も問題ありません。
通信設備面では、インターネット接続が可能です(別途工事、契約料が必要な場合あり)。
お金・契約の情報
※「-」と表示されているものは、実際は料金が発生するものもございます。詳細はお問い合わせください。
| 家賃 | 8.9万円 | 管理費・共益費 | 3,000円 |
|---|---|---|---|
| 敷金 | 8.9万円 | 礼金 | なし |
| 入居決定でお祝い金最大100,000円 | |||
| 保証金 | - | 償却・敷引 | - |
| 住宅保険料 | - | 更新料 | - |
| 保証会社利用 | 必須 | 保証会社名 | - |
| 保証会社費用 | - | 保証会社備考 | 保証会社利用必 保証料 家賃等総額の50%+1200円/月 |
| 契約形態 | - | 契約期間 | - |
| 入居・引渡期間 | 相談 | 現況 | - |
| 契約備考 | 東武ストア西川口店まで768m/ローソンストア100西川口店まで434m/更新料新賃料0.5ヶ月 緊急対応くらしーど月額800円/月 1LDK 普通借家2年 損保【1.8万円2年】 バストイレ別、バルコニー、エアコン、フローリング、オートロック、室内洗濯置、陽当り良好、シューズボックス、システムキッチン、南向き、角住戸、温水洗浄便座、洗面所独立、2口コンロ、光ファイバー、礼金不要、IHクッキングヒーター、保証人不要、2沿線利用可、3駅以上利用可、駅徒歩10分以内、敷地内ごみ置き場、都市ガス、保証会社利用可 | ||
部屋の情報
| 間取り | 1LDK | 専有面積 | 35.62m2 |
|---|---|---|---|
| 所在階 / 向き | 1階 / 南 | バルコニー面積 | - |
| 水道 / ガス | - | ||
| 設備 | バス・トイレ別、オートロック、インターネット対応、システムキッチン、エアコン、温水洗浄便座、南向き、角部屋、バルコニー、フローリング、洗髪洗面化粧台、2口コンロ、コンロ:IH、洗濯機:室内 | ||
| 当社物件ID | 6871653 | ||
建物の情報
| 建物名 | 仁志町アドレス | ||
|---|---|---|---|
| 所在地 | 埼玉県川口市西川口 | ||
| 交通 | JR京浜東北線 西川口駅 徒歩7分 JR京浜東北線 蕨駅 徒歩27分 JR埼京線 戸田公園駅 徒歩29分 | ||
| 階数 | 3階建 | 総戸数 | - |
| 築年月 | 2009年04月 / 築17年 | エレベーター | - |
| 駐車場 | なし | バイク置き場 | - |
| 駐輪場 | - | 管理人/管理会社 | - |
| 周辺環境 | その他 ローソンストア100西川口店(コンビニ)まで434m その他 マツモトキヨシ西川口店(ドラッグストア)まで179m その他 社会福祉法人恩賜財団済生会支部埼玉県済生会川口総合病院(病院)まで817m その他 川口仁志郵便局(郵便局)まで290m その他 青木信用金庫西川口支店(銀行)まで292m その他 東武ストア西川口店(スーパー)まで768m | ||
| 建物種別 | マンション | 建物構造 | 鉄骨造 |
この部屋の取扱い不動産会社
| 会社名 | KTG不動産マネジメント合同会社(SUUMO経由) | ||
|---|---|---|---|
| 所在地 | 埼玉県さいたま市浦和区東高砂町 3-2 ハイフィールドビル5階 | 交通 | - |
| 営業時間 | - | 定休日 | - |
| 免許番号 | 埼玉県知事24694 | 取引態様 | 仲介 |
| 不動産会社管理番号 | 100475594973 | 当社管理番号 | 89 |
| 所属団体 | (公社)埼玉県宅地建物取引業協会会員 | ||
| 公正取引協議会 | (公社)首都圏不動産公正取引協議会加盟 | ||
| 取扱い物件情報 | 物件詳細へ | ||
※各種情報と現状に差異がある場合は、現状優先となります。問い合わせをすることで、より詳しい条件、情報を確認する事ができます。
提供:KTG不動産マネジメント合同会社(SUUMO経由)
この物件が気になったら掲載期限まであと6日
仁志町アドレスに条件(家賃・エリア)が近い物件一覧
| 写真 | 家賃 管理費等 | 敷金 礼金 | 間取り 専有面積 | 築年数 | 最寄り駅 所在地 | キープ | 詳細 |
|---|---|---|---|---|---|---|---|
マンション プランドール(1LDK/4階) | |||||||
![]() | 11万円 5,000円 | なし 11万円 | 1LDK 50.15m2 | 築11年 | JR宇都宮線 土呂駅 徒歩6分 東武野田線 大宮公園駅 徒歩20分 埼玉新都市交通伊奈線 加茂宮駅 徒歩22分 埼玉県さいたま市北区土呂町 | 詳細を見る | |
マンション YK-21ビル(2K/3階) | |||||||
![]() | 6万円 6,000円 | 12万円 6万円 | 2K 39.4m2 | 築60年 | JR京浜東北線 北浦和駅 徒歩2分 埼玉県さいたま市浦和区北浦和 | 詳細を見る | |
マンション ロイヤルマンション今井(2K/4階) | |||||||
![]() | 5.4万円 3,000円 | 5.4万円 なし | 2K 32.3m2 | 築35年 | 埼玉高速鉄道 南鳩ケ谷駅 徒歩17分 埼玉高速鉄道 川口元郷駅 徒歩22分 日暮里・舎人ライナー 舎人駅 徒歩30分 埼玉県川口市朝日 | 詳細を見る | |
アパート SOL PATIO 草加(1K/2階) | |||||||
![]() | 6.2万円 3,000円 | 6.2万円 なし | 1K 20.11m2 | 築2年 | 東武伊勢崎線 谷塚駅 徒歩15分 東武伊勢崎線 竹ノ塚駅 徒歩27分 日暮里・舎人ライナー 見沼代親水公園駅 徒歩30分 埼玉県草加市谷塚仲町 | 詳細を見る | |
アパート アーバンハイツB(2DK/3階) | |||||||
![]() | 8.7万円 3,000円 | 8.7万円 なし | 2DK 42m2 | 築38年 | JR京浜東北線 西川口駅 徒歩14分 JR埼京線 戸田公園駅 徒歩23分 JR京浜東北線 蕨駅 徒歩31分 埼玉県戸田市喜沢 | 詳細を見る | |
マンション ひかりビル(1LDK/4階) | |||||||
![]() | 8万円 3,000円 | なし なし | 1LDK 40.5m2 | 築36年 | JR京浜東北線 浦和駅 徒歩9分 埼玉県さいたま市浦和区常盤 | 詳細を見る | |
マンション ジェノヴィア西川口Ⅲ(1K/8階) | |||||||
![]() | 8.15万円 1万円 | なし なし | 1K 20.59m2 | 築1年 | 京浜東北・根岸線 西川口駅 徒歩6分 埼玉県川口市並木3丁目 | 詳細を見る | |








