賃貸マンション
東難波町3丁目マンションの賃貸物件情報(5SLDK/1階)
| 家賃 | 管理費等 | 敷金 | 礼金 | 間取り | 専有面積 |
|---|---|---|---|---|---|
| 39.9万円 | なし | 39.9万円 | 79.8万円 | 5SLDK | 194.96m2 |
入居決定でお祝い金最大100,000円
- 保証金
- -
- 償却・敷引
- -
- 築年数
- 築11年
- 所在階
- 1階
- 向き
- 南西
Point
クレジットカードでのお支払い(初期費用)OK。悪天候時やお急ぎの方には写真やパノラマ・動画などでもご内覧可能ですのでお気軽にご相談ください!
提供:ミニミニFC兵庫店シティネット(株)(SUUMO経由)

詳細情報 東難波町3丁目マンション
物件紹介
東難波町3丁目マンションは阪神本線尼崎駅から徒歩16分にあるマンションです。
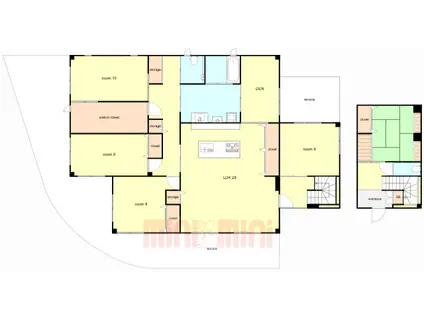
こちらは楽器相談が可能な物件。楽器演奏をお考えの方はぜひ相談してみてください。人気の南向きのお部屋。角部屋でもあるため、周囲の居住者の生活音も気になりにくい場所です。室内にはウォークインクローゼットがありますので、たくさんの荷物も効率的に収納ができます。キッチンはシステムキッチン仕様になっていますので、お料理好きの方にもぴったり。バス・トイレは別なので、のんびりお風呂タイムも楽しめるでしょう。また、雨の日でも浴室乾燥機を使えば、お洗濯も問題ありません。
床暖房があり、冬も足元から暖かく快適に過ごすことができます。
こちらは楽器相談が可能な物件。楽器演奏をお考えの方はぜひ相談してみてください。人気の南向きのお部屋。角部屋でもあるため、周囲の居住者の生活音も気になりにくい場所です。室内にはウォークインクローゼットがありますので、たくさんの荷物も効率的に収納ができます。キッチンはシステムキッチン仕様になっていますので、お料理好きの方にもぴったり。バス・トイレは別なので、のんびりお風呂タイムも楽しめるでしょう。また、雨の日でも浴室乾燥機を使えば、お洗濯も問題ありません。
床暖房があり、冬も足元から暖かく快適に過ごすことができます。
お金・契約の情報
※「-」と表示されているものは、実際は料金が発生するものもございます。詳細はお問い合わせください。
| 家賃 | 39.9万円 | 管理費・共益費 | なし |
|---|---|---|---|
| 敷金 | 39.9万円 | 礼金 | 79.8万円 |
| 入居決定でお祝い金最大100,000円 | |||
| 保証金 | - | 償却・敷引 | - |
| 住宅保険料 | - | 更新料 | - |
| 保証会社利用 | 必須 | 保証会社名 | - |
| 保証会社費用 | - | 保証会社備考 | 保証会社利用必 ■保証会社利用必須 初回保証料:総賃料50%,更新料:13,000円/年 |
| 契約形態 | - | 契約期間 | - |
| 入居・引渡期間 | 即時 | 現況 | - |
| 入居可能条件 | 事務所可、楽器相談 | ||
| 契約備考 | 5SLDK 二人入居可/楽器相談/事務所利用相談 損保【要】 バストイレ別、バルコニー、エアコン、浴室乾燥機、室内洗濯置、シューズボックス、システムキッチン、追焚機能浴室、角住戸、温水洗浄便座、洗面所独立、駐輪場、3口以上コンロ、対面式キッチン、IHクッキングヒーター、ウォークインクロゼット、二人入居相談、バイク置場、オール電化、2沿線利用可、床暖房、食器洗乾燥機、事務所相談、楽器相談、2駅利用可、3駅以上利用可、IT重説対応物件、初期費用カード決済可 | ||
部屋の情報
| 間取り | 5SLDK | 専有面積 | 194.96m2 |
|---|---|---|---|
| 所在階 / 向き | 1階 / 南西 | バルコニー面積 | - |
| 水道 / ガス | - | ||
| 設備 | バス・トイレ別、浴室乾燥機、ウォークインクローゼット、追い焚き、システムキッチン、エアコン、温水洗浄便座、南向き、角部屋、バルコニー、洗髪洗面化粧台、オール電化、床暖房、2口コンロ、コンロ:IH、洗濯機:室内 | ||
| 当社物件ID | 160073507 | ||
建物の情報
| 建物名 | 東難波町3丁目マンション | ||
|---|---|---|---|
| 所在地 | 兵庫県尼崎市東難波町 | ||
| 交通 | 阪神本線 尼崎駅(阪神) 徒歩16分 阪神本線 出屋敷駅 徒歩22分 JR東海道本線 尼崎駅(JR) 徒歩30分 | ||
| 階数 | 2階建 | 総戸数 | - |
| 築年月 | 2015年06月 / 築11年 | エレベーター | - |
| 駐車場 | 空有 付無料 | バイク置き場 | あり |
| 駐輪場 | あり | 管理人/管理会社 | - |
| 周辺環境 | その他 尼崎市立難波の梅小学校(小学校)まで799m その他 関西国際大学尼崎キャンパス 入試・広報課(大学・短大)まで2258m その他 兵庫県立尼崎総合医療センター(病院)まで110m | ||
| 建物種別 | マンション | 建物構造 | 鉄骨造 |
この部屋の取扱い不動産会社
| 会社名 | ミニミニFC阪神甲子園店シティネット(株)(SUUMO経由) | ||
|---|---|---|---|
| 所在地 | 兵庫県西宮市甲子園浦風町 19-6 | 交通 | - |
| 営業時間 | 10:00~18:00 | 定休日 | - |
| 免許番号 | 兵庫県知事10417 | 取引態様 | 仲介 |
| 不動産会社管理番号 | 100478645246 | 当社管理番号 | 89 |
| 所属団体 | (公社)全日本不動産協会兵庫県本部会員 | ||
| 公正取引協議会 | (公社)近畿地区不動産公正取引協議会加盟 | ||
| 取扱い物件情報 | 物件詳細へ | ||
※各種情報と現状に差異がある場合は、現状優先となります。問い合わせをすることで、より詳しい条件、情報を確認する事ができます。
提供:ミニミニFC阪神甲子園店シティネット(株)(SUUMO経由)
この物件が気になったら掲載期限まであと10日
東難波町3丁目マンションに条件(家賃・エリア)が近い物件一覧
| 写真 | 家賃 管理費等 | 敷金 礼金 | 間取り 専有面積 | 築年数 | 最寄り駅 所在地 | キープ | 詳細 |
|---|---|---|---|---|---|---|---|
マンション BELISTA西宮北口(4LDK/3階) | |||||||
![]() | 25.6万円 なし | 25.6万円 51.2万円 | 4LDK 85.96m2 | 築16年 | 阪急神戸線 西宮北口駅 徒歩7分 兵庫県西宮市両度町 | 詳細を見る | |
マンション MESSAGE苦楽園三番町(3LDK/3階) | |||||||
![]() | 24.5万円 1.8万円 | 24.5万円 24.5万円 | 3LDK 90.12m2 | 築4年 | 兵庫県西宮市苦楽園三番町 | 詳細を見る | |
マンション プレジオ西宮北口(3LDK/6階) | |||||||
![]() | 29.5万円 3万円 | なし 29.5万円 | 3LDK 96.04m2 | 新築 | JR東海道本線 甲子園口駅 徒歩13分 阪急神戸線 西宮北口駅 徒歩16分 阪急今津線 今津駅(阪急) 徒歩27分 兵庫県西宮市中島町 | 詳細を見る | |
アパート WORKINGBASE伊丹ウエスト(ワンルーム/1階) | |||||||
![]() | 25万円 なし | なし 25万円 | ワンルーム 92.74m2 | 築1年 | 阪急今津線 甲東園駅 徒歩32分 阪急今津線 門戸厄神駅 徒歩35分 阪急今津線 仁川駅 徒歩44分 兵庫県尼崎市西昆陽 | 詳細を見る | |
マンション セントラルガーデンタワー(3LDK/26階) | |||||||
![]() | 22万円 2万円 | 22万円 44万円 | 3LDK 96.35m2 | 築28年 | 阪神本線 西宮駅(阪神) 徒歩5分 JR東海道本線 西宮駅(JR) 徒歩7分 阪神本線 今津駅(阪神) 徒歩15分 兵庫県西宮市六湛寺町 | 詳細を見る | |
マンション ANNEX西宮ガーデンズ・フロント(1SLDK/2階) | |||||||
![]() | 24.1万円 1万円 | 5万円 なし | 1SLDK 80.98m2 | 築1年 | 阪急神戸線 西宮北口駅 徒歩2分 阪急今津線 門戸厄神駅 徒歩19分 JR東海道本線 西宮駅(JR) 徒歩22分 兵庫県西宮市高松町 | 詳細を見る | |
マンション SHAMAISON ECRACIE大屋町(3LDK/4階) | |||||||
![]() | 24.8万円 1.2万円 | 5万円 50万円 | 3LDK 98.76m2 | 築1年 | 阪急神戸線 西宮北口駅 徒歩10分 JR東海道本線 甲子園口駅 徒歩20分 阪急今津線 門戸厄神駅 徒歩20分 兵庫県西宮市大屋町 | 詳細を見る | |
テラスハウス ブリランテ苦楽園(3LDK) | |||||||
![]() | 43万円 1万円 | 43万円 64.5万円 | 3LDK 112.74m2 | 築1年 | 阪急甲陽線 苦楽園口駅 徒歩13分 阪急甲陽線 甲陽園駅 徒歩19分 兵庫県西宮市西平町 | 詳細を見る | |









