賃貸アパート
LUMINOUS幸の賃貸物件情報(2DK/1階)
| 家賃 | 管理費等 | 敷金 | 礼金 | 間取り | 専有面積 |
|---|---|---|---|---|---|
| 7.2万円 | 3,000円 | なし | なし | 2DK | 60.86m2 |
入居決定でお祝い金最大100,000円
Point
火災が起きにく安全性が高いです。インターネット無料でご利用いただけます。簡単に掃除ができるIHクッキングヒーター付きで火災のリスクを減らします。洗濯機置き場が室内にあります。
提供:(株)ナイス・ジャパン盛岡店(SUUMO経由)

詳細情報 LUMINOUS幸
物件紹介
LUMINOUS幸はJR東北本線岩手飯岡駅から徒歩4分にあり、駅近で通勤通学に便利なアパートです。
このお部屋のインターホンにはTVモニタがついているため、相手の顔を確認してから来客対応することができます。
フローリングのお部屋なのでお掃除もラクラク。キッチンはシステムキッチン仕様になっていますので、お料理好きの方にもぴったり。また、バス・トイレは別で、のんびりお風呂タイムも楽しめるでしょう。
通信設備面では、インターネットが無料で使えるので、月々の出費を抑えられるのも魅力です。また、BSアンテナもありますので、おうち時間も充実するでしょう(別途工事、BSの契約料等が必要な場合あり)。
このお部屋のインターホンにはTVモニタがついているため、相手の顔を確認してから来客対応することができます。
フローリングのお部屋なのでお掃除もラクラク。キッチンはシステムキッチン仕様になっていますので、お料理好きの方にもぴったり。また、バス・トイレは別で、のんびりお風呂タイムも楽しめるでしょう。
通信設備面では、インターネットが無料で使えるので、月々の出費を抑えられるのも魅力です。また、BSアンテナもありますので、おうち時間も充実するでしょう(別途工事、BSの契約料等が必要な場合あり)。
お金・契約の情報
※「-」と表示されているものは、実際は料金が発生するものもございます。詳細はお問い合わせください。
| 家賃 | 7.2万円 | 管理費・共益費 | 3,000円 |
|---|---|---|---|
| 敷金 | なし | 礼金 | なし |
| 入居決定でお祝い金最大100,000円 | |||
| 保証金 | - | 償却・敷引 | - |
| 住宅保険料 | - | 更新料 | - |
| 保証会社利用 | 必須 | 保証会社名 | - |
| 保証会社費用 | - | 保証会社備考 | 保証会社利用必 初回保証料:月額賃料等の60% |
| 契約形態 | - | 契約期間 | - |
| 入居・引渡期間 | - | 現況 | - |
| 契約備考 | 巡回管理 合計13.18万円(内訳:家賃保証料:45750円/火災保険料:20000円/クリーニング費:66000円) 24時間サポート:1000円/町内会費:250円 2DK 二人入居可 損保【2万円2年】 バストイレ別、バルコニー、シャワー付洗面台、TVインターホン、室内洗濯置、シューズボックス、システムキッチン、温水洗浄便座、洗面所独立、独立型キッチン、IHクッキングヒーター、照明付、駐車場1台無料、全居室洋室、オール電化、全居室フローリング、ディンプルキー、ネット使用料不要、浴室に窓、エアコン3台、クロゼット2ヶ所、屋根裏収納、駅徒歩5分以内、全居室6畳以上、洗面所に窓、洗面所にドア、BS、敷金・礼金不要 入居日:'26年4月下旬 | ||
部屋の情報
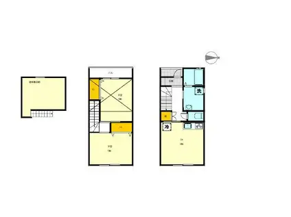
| 間取り | 2DK | 専有面積 | 60.86m2 |
|---|---|---|---|
| 所在階 / 向き | 1階 / 西 | バルコニー面積 | - |
| 水道 / ガス | - | ||
| 設備 | バス・トイレ別、テレビドアホン、インターネット対応、システムキッチン、エアコン、温水洗浄便座、バルコニー、フローリング、洗髪洗面化粧台、オール電化、コンロ:IH、BSアンテナ、インターネット使用料無料、洗濯機:室内 | ||
| 当社物件ID | 160504565 | ||
建物の情報
| 建物名 | LUMINOUS幸 | ||
|---|---|---|---|
| 所在地 | 岩手県盛岡市永井20地割 | ||
| 交通 | JR東北本線 岩手飯岡駅 徒歩4分 | ||
| 階数 | 2階建 | 総戸数 | 4戸 |
| 築年月 | 2018年05月 / 築8年 | エレベーター | - |
| 駐車場 | なし | バイク置き場 | - |
| 駐輪場 | - | 管理人/管理会社 | - |
| 建物種別 | アパート | 建物構造 | 木造 |
この部屋の取扱い不動産会社
| 会社名 | (株)ナイス・ジャパン盛岡店(SUUMO経由) | ||
|---|---|---|---|
| 所在地 | 岩手県盛岡市中ノ橋通1-5-22(ホットライン肴町) | 交通 | - |
| 営業時間 | 10:00~17:30(電話受付は17:00まで) | 定休日 | 日(予約営業可) |
| 免許番号 | 岩手県知事2466 | 取引態様 | 仲介 |
| 不動産会社管理番号 | 100491710780 | 当社管理番号 | 89 |
| 所属団体 | (公社)全日本不動産協会岩手県本部会員 | ||
| 公正取引協議会 | 東北地区不動産公正取引協議会加盟 | ||
| 取扱い物件情報 | 物件詳細へ | ||
※各種情報と現状に差異がある場合は、現状優先となります。問い合わせをすることで、より詳しい条件、情報を確認する事ができます。
提供:(株)ナイス・ジャパン盛岡店(SUUMO経由)
この物件が気になったら掲載期限まであと10日
LUMINOUS幸に条件(家賃・エリア)が近い物件一覧
| 写真 | 家賃 管理費等 | 敷金 礼金 | 間取り 専有面積 | 築年数 | 最寄り駅 所在地 | キープ | 詳細 |
|---|---|---|---|---|---|---|---|
アパート サンフレンズA(2DK/2階) | |||||||
![]() | 4.5万円 なし | 4.5万円 なし | 2DK 43.68m2 | 築37年 | 岩手県盛岡市津志田26地割 | 詳細を見る | |
アパート ベレッツァ(1LDK/1階) | |||||||
![]() | 4.6万円 2,300円 | なし 4.6万円 | 1LDK 50.21m2 | 築13年 | JR東北本線 花巻駅 徒歩36分 岩手県花巻市中根子堂前 | 詳細を見る | |
アパート メゾンセイコーII(2DK/1階) | |||||||
![]() | 5.8万円 なし | 5.8万円 なし | 2DK 53.72m2 | 築15年 | JR東北本線 花巻駅 徒歩15分 JR東北本線 村崎野駅 徒歩109分 JR東北本線 北上駅 徒歩170分 岩手県花巻市上小舟渡 | 詳細を見る | |
アパート 日詰駅前プチメゾンII(2DK/1階) | |||||||
![]() | 5万円 1,000円 | なし なし | 2DK 40m2 | 築25年 | JR東北本線 日詰駅 徒歩5分 岩手県紫波郡紫波町北日詰八反田 | 詳細を見る | |
アパート プレステージⅡ黒石野(3DK/2階) | |||||||
![]() | 4.5万円 なし | 4.5万円 なし | 3DK 58m2 | 築33年 | 岩手県盛岡市黒石野3丁目 | 詳細を見る | |
アパート メゾン シェ・トワ(2LDK/2階) | |||||||
![]() | 5万円 2,000円 | なし なし | 2LDK 50.86m2 | 築29年 | JR東北本線 花巻駅 徒歩25分 岩手県花巻市星が丘 | 詳細を見る | |
アパート ポポラス西下台(1K/2階) | |||||||
![]() | 5.5万円 3,000円 | 5.5万円 なし | 1K 28.43m2 | 築9年 | JR山田線 上盛岡駅 徒歩23分 いわて銀河鉄道線 青山駅(岩手) 徒歩24分 JR東北本線 盛岡駅 徒歩28分 岩手県盛岡市西下台町 | 詳細を見る | |
マンション センターヒルズ中ノ橋(1K/7階) | |||||||
![]() | 5.3万円 6,300円 | なし なし | 1K 27.75m2 | 築10年 | 岩手県盛岡市中ノ橋通1丁目 | 詳細を見る | |


/105x80-f1-q70-wp1)



/105x80-f1-q70-wp1)


/105x80-f1-q70-wp1)