賃貸マンション
コンフォリア西荻窪の賃貸物件情報(1K/5階)
| 家賃 | 管理費等 | 敷金 | 礼金 | 間取り | 専有面積 |
|---|---|---|---|---|---|
| 13.4万円 | 8,000円 | 13.4万円 | なし | 1K | 25.5m2 |
入居決定でお祝い金最大100,000円
- 保証金
- -
- 償却・敷引
- -
- 築年数
- 築6年
- 所在階
- 5階
- 向き
- 西
Point
室内見学承ります・お客様のご都合に合わせてオンラインまたはお近くの店舗でご提案可・初期費用分割払い可・クレジットカード利用可・引越業者割引・初期費用のお見積や入居日のご相談もお気軽にお問合せください
提供:(株)リライフ渋谷店(SUUMO経由)

詳細情報 コンフォリア西荻窪
物件紹介
コンフォリア西荻窪はJR中央線西荻窪駅から徒歩2分にあり、駅近で通勤通学に便利なマンションです。
このお部屋は2階以上に位置しているので、通行人や周囲の住人からの視線が気になりにくく、防犯面でも安心。建物のエントランスはオートロックがついており、インターホンにはTVモニタもついているため、相手の顔を確認してから来客対応することができます。
フローリングのお部屋なのでお掃除もラクラク。室内には人気のウォークインクローゼットがありますので、たくさんの荷物も効率的に収納ができます。キッチンはシステムキッチン仕様になっていますので、お料理好きの方にもぴったり。バス・トイレは別なので、のんびりお風呂タイムも楽しめるでしょう。また、雨の日でも浴室乾燥機を使えば、お洗濯も問題ありません。
通信設備面では、インターネットが無料で使えるので、月々の出費を抑えられるのも魅力です。また、BSアンテナ・CSアンテナもありますので、おうち時間も充実するでしょう(別途工事、BS・CSの契約料等が必要な場合あり)。
建物にはエレベーターがついているので、重い荷物があっても安心。共用部には宅配ボックスが設定されているので、不在の時にも荷物を受け取ることができます。また、ペット飼育の相談ができますので、あなたの大切な家族の一員も快適に暮らせるか、ぜひ確認してみてください。
このお部屋は2階以上に位置しているので、通行人や周囲の住人からの視線が気になりにくく、防犯面でも安心。建物のエントランスはオートロックがついており、インターホンにはTVモニタもついているため、相手の顔を確認してから来客対応することができます。
フローリングのお部屋なのでお掃除もラクラク。室内には人気のウォークインクローゼットがありますので、たくさんの荷物も効率的に収納ができます。キッチンはシステムキッチン仕様になっていますので、お料理好きの方にもぴったり。バス・トイレは別なので、のんびりお風呂タイムも楽しめるでしょう。また、雨の日でも浴室乾燥機を使えば、お洗濯も問題ありません。
通信設備面では、インターネットが無料で使えるので、月々の出費を抑えられるのも魅力です。また、BSアンテナ・CSアンテナもありますので、おうち時間も充実するでしょう(別途工事、BS・CSの契約料等が必要な場合あり)。
建物にはエレベーターがついているので、重い荷物があっても安心。共用部には宅配ボックスが設定されているので、不在の時にも荷物を受け取ることができます。また、ペット飼育の相談ができますので、あなたの大切な家族の一員も快適に暮らせるか、ぜひ確認してみてください。
お金・契約の情報
※「-」と表示されているものは、実際は料金が発生するものもございます。詳細はお問い合わせください。
| 家賃 | 13.4万円 | 管理費・共益費 | 8,000円 |
|---|---|---|---|
| 敷金 | 13.4万円 | 礼金 | なし |
| 入居決定でお祝い金最大100,000円 | |||
| 保証金 | - | 償却・敷引 | - |
| 住宅保険料 | - | 更新料 | - |
| 保証会社利用 | 必須 | 保証会社名 | - |
| 保証会社費用 | - | 保証会社備考 | 保証会社利用必 保証料:賃料等の50%(最低2万)~ |
| 契約形態 | - | 契約期間 | - |
| 入居・引渡期間 | 即時 | 現況 | - |
| 入居可能条件 | ペット相談 | ||
| 契約備考 | 当物件は「住まいのリライフ」で取り扱っております。リライフは首都圏24店舗のネットワークで豊富な物件情報をお客様へご提供します。当物件に類似した未公開物件なども合わせてご提案可能です。お気軽にお問合せください。清掃費:3.85万円/エアコン清掃費:1.1万円 合計3.3万円(内訳:鍵交換代金3.3万円) 1K ペット相談 損保【1.65万円2年】 バストイレ別、バルコニー、エアコン、ガスコンロ対応、クロゼット、フローリング、TVインターホン、浴室乾燥機、オートロック、室内洗濯置、陽当り良好、シューズボックス、システムキッチン、追焚機能浴室、温水洗浄便座、脱衣所、エレベーター、洗面所独立、2口コンロ、駐輪場、宅配ボックス、BS・CS、防犯カメラ、ペット相談、ウォークインクロゼット、保証人不要、バイク置場、ネット使用料不要、24時間換気システム、始発駅、3駅以上利用可、3沿線以上利用可、24時間ゴミ出し可、敷地内ごみ置き場、都市ガス、浴室床暖房、玄関収納、LAN、保証会社利用可、初期費用カード決済可 敷金積み増し【ペット飼育の場合敷金1ヶ月(総額)】 | ||
部屋の情報
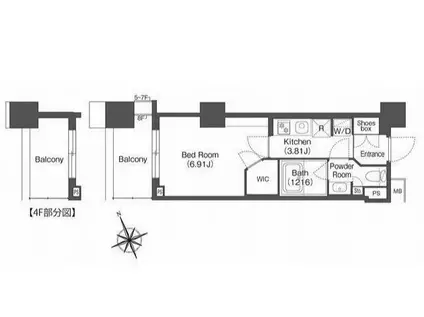
| 間取り | 1K | 専有面積 | 25.5m2 |
|---|---|---|---|
| 所在階 / 向き | 5階 / 西 | バルコニー面積 | - |
| 水道 / ガス | - | ||
| 設備 | バス・トイレ別、2階以上、オートロック、テレビドアホン、宅配ボックス、浴室乾燥機、ウォークインクローゼット、追い焚き、インターネット対応、システムキッチン、エアコン、エレベーター、温水洗浄便座、バルコニー、フローリング、洗髪洗面化粧台、2口コンロ、コンロ:ガス、CSアンテナ、BSアンテナ、インターネット使用料無料、洗濯機:室内 | ||
| 当社物件ID | 47008754 | ||
建物の情報
| 建物名 | コンフォリア西荻窪 | ||
|---|---|---|---|
| 所在地 | 東京都杉並区西荻南 | ||
| 交通 | JR中央線 西荻窪駅 徒歩2分 東京メトロ丸ノ内線 荻窪駅 徒歩23分 京王井の頭線 久我山駅 徒歩24分 | ||
| 階数 | 地下1地上11階建 | 総戸数 | 81戸 |
| 築年月 | 2021年01月 / 築6年 | エレベーター | あり |
| 駐車場 | なし | バイク置き場 | あり |
| 駐輪場 | あり | 管理人/管理会社 | - |
| 周辺環境 | その他 マルエツ プチ 松庵三丁目店(スーパー)まで728m その他 ワイズマート 西荻窪店(スーパー)まで731m その他 デイリ-ヤマザキ西荻南店(コンビニ)まで77m その他 ファミリーマート西荻窪駅南店(コンビニ)まで113m その他 ココカラファイン 西荻窪店(ドラッグストア)まで49m その他 白洋舎西荻駅店(その他)まで185m | ||
| 建物種別 | マンション | 建物構造 | RC(鉄筋コンクリート) |
この部屋の取扱い不動産会社
| 会社名 | (株)リライフ中野坂上店(SUUMO経由) | ||
|---|---|---|---|
| 所在地 | 東京都中野区本町2-49-12 誠文堂ビル1階 | 交通 | - |
| 営業時間 | 10:00~20:00 | 定休日 | なし |
| 免許番号 | 国土交通大臣10792 | 取引態様 | 仲介 |
| 不動産会社管理番号 | 100454728935 | 当社管理番号 | 89 |
| 所属団体 | (公社)東京都宅地建物取引業協会会員 | ||
| 公正取引協議会 | (公社)首都圏不動産公正取引協議会加盟 | ||
| 取扱い物件情報 | 物件詳細へ | ||
※各種情報と現状に差異がある場合は、現状優先となります。問い合わせをすることで、より詳しい条件、情報を確認する事ができます。
提供:(株)リライフ中野坂上店(SUUMO経由)
この物件が気になったら掲載期限まであと10日
コンフォリア西荻窪に条件(家賃・エリア)が近い物件一覧
| 写真 | 家賃 管理費等 | 敷金 礼金 | 間取り 専有面積 | 築年数 | 最寄り駅 所在地 | キープ | 詳細 |
|---|---|---|---|---|---|---|---|
マンション グランドスポット(ワンルーム/2階) | |||||||
![]() | 13.9万円 7,000円 | 13.9万円 13.9万円 | ワンルーム 29.76m2 | 築37年 | JR山手線 渋谷駅 徒歩8分 京王井の頭線 神泉駅 徒歩11分 東急東横線 代官山駅 徒歩14分 東京都渋谷区桜丘町 | 詳細を見る | |
マンション RARE代々木 レアヨヨギ(1LDK/2階) | |||||||
![]() | 18.6万円 1万円 | なし なし | 1LDK 33.13m2 | 築6年 | 小田急線 参宮橋駅 徒歩4分 小田急線 南新宿駅 徒歩9分 JR山手線 代々木駅 徒歩9分 東京都渋谷区代々木 | 詳細を見る | |
マンション MOMOS HOUSE(1LDK/1階) | |||||||
![]() | 14万円 5,000円 | なし 14万円 | 1LDK 41.15m2 | 築1年 | 京王線 八幡山駅 徒歩4分 京王線 芦花公園駅 徒歩10分 京王線 上北沢駅 徒歩13分 東京都杉並区上高井戸 | 詳細を見る | |
アパート ベルエクラ阿佐ヶ谷(ワンルーム/1階) | |||||||
![]() | 8.1万円 3,000円 | なし 8.1万円 | ワンルーム 17.68m2 | 築8年 | JR中央線 阿佐ケ谷駅 徒歩5分 JR総武線 阿佐ケ谷駅 徒歩5分 東京メトロ丸ノ内線 南阿佐ケ谷駅 徒歩11分 東京都杉並区阿佐谷南 | 詳細を見る | |
マンション メゾン・ラミューズ(1K/1階) | |||||||
![]() | 9.1万円 5,000円 | 9.1万円 13.65万円 | 1K 25.83m2 | 築17年 | JR総武線 高円寺駅 徒歩3分 東京メトロ丸ノ内線 新高円寺駅 徒歩15分 JR中央線 中野駅(東京) 徒歩20分 東京都杉並区高円寺北 | 詳細を見る | |
マンション ファミール中町A棟(2LDK/1階) | |||||||
![]() | 13.5万円 1万円 | 13.5万円 なし | 2LDK 47m2 | 築35年 | 東急大井町線 上野毛駅 徒歩7分 東急大井町線 等々力駅 徒歩12分 東急大井町線 尾山台駅 徒歩18分 東京都世田谷区中町 | 詳細を見る | |
マンション ザ・パーククロス千歳烏山(1K/3階) | |||||||
![]() | 9.6万円 5,000円 | 9.6万円 9.6万円 | 1K 25.32m2 | 築12年 | 京王線 千歳烏山駅 徒歩9分 京王線 仙川駅 徒歩12分 京王線 つつじケ丘駅 徒歩25分 東京都世田谷区給田 | 詳細を見る | |







