賃貸マンション
京都市東西線 醍醐駅(京都) 徒歩7分 6階建 築26年の賃貸物件情報(2SLDK/3階)
| 家賃 | 管理費等 | 敷金 | 礼金 | 間取り | 専有面積 |
|---|---|---|---|---|---|
| 8.6万円 | 7,000円 | 8.6万円 | 8.6万円 | 2SLDK | 68.94m2 |
入居決定でお祝い金最大100,000円
Point
近隣には、ダイゴロー、飲食店飽きの来ない周辺環境。お部屋も広く駅近くの人気物件になっております。
提供:株式会社 京都ライフ 小倉店(賃貸スモッカ経由)

詳細情報 京都市東西線 醍醐駅(京都) 徒歩7分 6階建 築26年
物件紹介
京都市東西線醍醐駅から徒歩7分にあり、駅近で通勤通学に便利なマンションです。
このお部屋は2階以上に位置しているので、通行人や周囲の住人からの視線が気になりにくく、防犯面でも安心です。
人気の南向きのお部屋。また、フローリングなのでお掃除もラクラク。バス・トイレ別の仕様で、のんびりお風呂タイムも楽しめます。
通信設備面ではBSアンテナがありますので、おうち時間も充実するでしょう(別途工事、契約料が必要な場合あり)。
建物にはエレベーターがついているので、重い荷物があっても安心。
このお部屋は2階以上に位置しているので、通行人や周囲の住人からの視線が気になりにくく、防犯面でも安心です。
人気の南向きのお部屋。また、フローリングなのでお掃除もラクラク。バス・トイレ別の仕様で、のんびりお風呂タイムも楽しめます。
通信設備面ではBSアンテナがありますので、おうち時間も充実するでしょう(別途工事、契約料が必要な場合あり)。
建物にはエレベーターがついているので、重い荷物があっても安心。
お金・契約の情報
※「-」と表示されているものは、実際は料金が発生するものもございます。詳細はお問い合わせください。
| 家賃 | 8.6万円 | 管理費・共益費 | 7,000円 |
|---|---|---|---|
| 敷金 | 8.6万円 | 礼金 | 8.6万円 |
| 入居決定でお祝い金最大100,000円 | |||
| 保証金 | - | 償却・敷引 | - |
| 住宅保険料 | 住宅保険料あり | 更新料 | - |
| 契約形態 | - | 契約期間 | 2年 |
| 入居・引渡期間 | 即時 | 現況 | 空室 |
| 契約備考 | どのお部屋も広々設計なのでゆっくりとくつろげます。 更新料:15,000円 保証会社:利用必須 初回:月額賃料等の25%/1年、更新時:1万円/1年 その他設備/条件:即入居可 | ||
部屋の情報
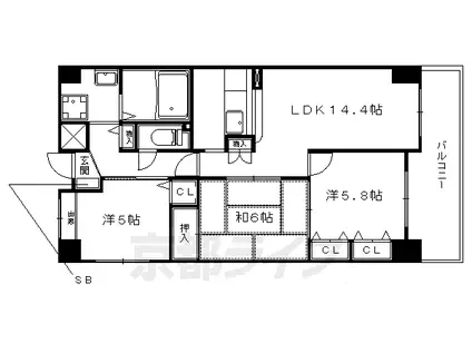
| 間取り | 2SLDK | 専有面積 | 68.94m2 |
|---|---|---|---|
| 間取り詳細 | 洋室(5.8帖)、和室(6帖)、その他(5帖)、LDK(14.4帖) | ||
| 所在階 / 向き | 3階 / 南 | バルコニー面積 | - |
| 水道 / ガス | ガス【都市】 | ||
| 設備 | バス・トイレ別、2階以上、追い焚き、エレベーター、南向き、バルコニー、フローリング、バリアフリー、BSアンテナ、洗濯機:室内 | ||
| 当社物件ID | 159387620 | ||
建物の情報
| 建物名 | 京都市東西線 醍醐駅(京都) 徒歩7分 6階建 築26年 | ||
|---|---|---|---|
| 所在地 | 京都府京都市伏見区醍醐鍵尾町 | ||
| 交通 | 京都市東西線 醍醐駅(京都) 徒歩7分 京都市東西線 石田駅(京都市営) 徒歩9分 | ||
| 階数 | 6階建 | 総戸数 | - |
| 築年月 | 2000年02月 / 築26年 | エレベーター | あり |
| 駐車場 | - | バイク置き場 | - |
| 駐輪場 | あり | 管理人/管理会社 | - |
| 建物種別 | マンション | 建物構造 | RC(鉄筋コンクリート) |
この部屋の取扱い不動産会社
| 会社名 | 株式会社 京都ライフ 小倉店(賃貸スモッカ経由) | ||
|---|---|---|---|
| 所在地 | 宇治市小倉町神楽田21-5 | 交通 | - |
| 営業時間 | - | 定休日 | - |
| 免許番号 | 京都府知事(11)第6353号 | 取引態様 | 仲介 |
| 不動産会社管理番号 | kyotolife_04771-304-11 | 当社管理番号 | 463 |
| 所属団体 | 京都府宅地建物取引業協会\n公益社団法人近畿地区不動産公正取引協議会 | ||
| 公正取引協議会 | 全国宅地建物取引業保証協会 | ||
| 取扱い物件情報 | 物件詳細へ | ||
※各種情報と現状に差異がある場合は、現状優先となります。問い合わせをすることで、より詳しい条件、情報を確認する事ができます。
提供:株式会社 京都ライフ 小倉店(賃貸スモッカ経由)
この物件が気になったら掲載期限まであと5日
京都市東西線 醍醐駅(京都) 徒歩7分 6階建 築26年に条件(家賃・エリア)が近い物件一覧
| 写真 | 家賃 管理費等 | 敷金 礼金 | 間取り 専有面積 | 築年数 | 最寄り駅 所在地 | キープ | 詳細 |
|---|---|---|---|---|---|---|---|
アパート 京都市東西線 小野駅(京都) 徒歩5分 築14年(1LDK/2階) | |||||||
![]() | 7万円 3,500円 | なし 7万円 | 1LDK 42.8m2 | 築14年 | 京都市東西線 小野駅(京都) 徒歩5分 京都市東西線 醍醐駅(京都) 徒歩13分 京都府京都市伏見区醍醐上ノ山町 | 詳細を見る | |
アパート フルーレ神明(1LDK/1階) | |||||||
![]() | 7万円 1.05万円 | なし 15万円 | 1LDK 40.89m2 | 築9年 | 近鉄京都線 伊勢田駅 徒歩11分 JR奈良線 新田駅(京都) 徒歩16分 近鉄京都線 大久保駅(京都) 徒歩21分 京都府宇治市神明石塚 | 詳細を見る | |
アパート ハーモニーテラス醍醐新開(1K/1階) | |||||||
![]() | 5.25万円 4,000円 | なし 5.25万円 | 1K 20.93m2 | 築4年 | 京都市東西線 石田駅(京都市営) 徒歩7分 京都市東西線 醍醐駅(京都) 徒歩13分 奈良線 六地蔵駅(JR) 徒歩24分 京都府京都市伏見区醍醐新開 | 詳細を見る | |
マンション シャーメゾン アオハウオリ(2LDK/2階) | |||||||
![]() | 11.4万円 9,000円 | 5万円 22.8万円 | 2LDK 65.35m2 | 新築 | 京阪電気鉄道京阪線 中書島駅 徒歩30分 京阪電気鉄道京阪線 伏見桃山駅 徒歩37分 京都府京都市伏見区横大路柿ノ本町 | 詳細を見る | |
マンション 京阪電気鉄道宇治線 木幡駅(京阪) 徒歩5分 築27年(3LDK/3階) | |||||||
![]() | 8.3万円 なし | 8.3万円 なし | 3LDK 67.96m2 | 築27年 | 京阪電気鉄道宇治線 木幡駅(京阪) 徒歩5分 奈良線 木幡駅(JR) 徒歩8分 京都府宇治市木幡西浦 | 詳細を見る | |
アパート 近鉄京都線 向島駅 徒歩8分 新築(1K/1階) | |||||||
![]() | 7.6万円 4,400円 | なし 7.6万円 | 1K 31.21m2 | 新築 | 近鉄京都線 向島駅 徒歩8分 京阪電気鉄道宇治線 観月橋駅 徒歩22分 京都府京都市伏見区向島二ノ丸町 | 詳細を見る | |
マンション 東海道本線 長岡京駅 徒歩44分 築13年(3LDK/2階) | |||||||
![]() | 9.4万円 6,000円 | 3万円 22万円 | 3LDK 71.3m2 | 築13年 | 東海道本線 長岡京駅 徒歩44分 阪急電鉄京都線 西向日駅 徒歩44分 京都府京都市伏見区羽束師鴨川町 | 詳細を見る | |
アパート 京阪電気鉄道京阪線 淀駅 徒歩18分 築46年(2DK/1階) | |||||||
![]() | 5.2万円 3,000円 | なし なし | 2DK 48m2 | 築46年 | 京阪電気鉄道京阪線 淀駅 徒歩18分 阪急電鉄京都線 西山天王山駅 徒歩47分 京都府京都市伏見区納所岸ノ下 | 詳細を見る | |









