賃貸マンション
エンクレスト博多STYLEの賃貸物件情報(1DK/8階)
| 家賃 | 管理費等 | 敷金 | 礼金 | 間取り | 専有面積 |
|---|---|---|---|---|---|
| 9万円 | なし | なし | 18万円 | 1DK | 26.11m2 |
入居決定でお祝い金最大100,000円
- 保証金
- -
- 償却・敷引
- -
- 築年数
- 築10年
- 所在階
- 8階
- 向き
- -
Point
新居のお住まいの日にちはどうぞご相談してくださいね。室内設備は洗面所独立・浴室乾燥機など大変充実しております。築9年の設備が充実した物件となっています。
提供:イースマイル博多店(株)スリーエイチ(SUUMO経由)

詳細情報 エンクレスト博多STYLE
物件紹介
エンクレスト博多STYLEは地下鉄七隈線渡辺通駅から徒歩10分にあり、駅近で通勤通学に便利なマンションです。
このお部屋は2階以上に位置しているので、通行人や周囲の住人からの視線が気になりにくく、防犯面でも安心。建物のエントランスはオートロックがついており、インターホンにはTVモニタもついているため、相手の顔を確認してから来客対応することができます。
おしゃれなデザイナーズ物件!人気の南向きのお部屋。また、フローリングなのでお掃除もラクラク。キッチンはシステムキッチン仕様になっていますので、お料理好きの方にもぴったり。バス・トイレは別なので、のんびりお風呂タイムも楽しめるでしょう。また、雨の日でも浴室乾燥機を使えば、お洗濯も問題ありません。
通信設備面では、インターネットが無料で使えるので、月々の出費を抑えられるのも魅力です。また、CATVにも対応しているので、おうち時間も充実するでしょう(別途工事、CATVの契約料等が必要な場合あり)。
建物にはエレベーターがついているので、重い荷物があっても安心。共用部には宅配ボックスが設定されているので、不在の時にも荷物を受け取ることができます。
このお部屋は2階以上に位置しているので、通行人や周囲の住人からの視線が気になりにくく、防犯面でも安心。建物のエントランスはオートロックがついており、インターホンにはTVモニタもついているため、相手の顔を確認してから来客対応することができます。
おしゃれなデザイナーズ物件!人気の南向きのお部屋。また、フローリングなのでお掃除もラクラク。キッチンはシステムキッチン仕様になっていますので、お料理好きの方にもぴったり。バス・トイレは別なので、のんびりお風呂タイムも楽しめるでしょう。また、雨の日でも浴室乾燥機を使えば、お洗濯も問題ありません。
通信設備面では、インターネットが無料で使えるので、月々の出費を抑えられるのも魅力です。また、CATVにも対応しているので、おうち時間も充実するでしょう(別途工事、CATVの契約料等が必要な場合あり)。
建物にはエレベーターがついているので、重い荷物があっても安心。共用部には宅配ボックスが設定されているので、不在の時にも荷物を受け取ることができます。
お金・契約の情報
※「-」と表示されているものは、実際は料金が発生するものもございます。詳細はお問い合わせください。
| 家賃 | 9万円 | 管理費・共益費 | なし |
|---|---|---|---|
| 敷金 | なし | 礼金 | 18万円 |
| 入居決定でお祝い金最大100,000円 | |||
| 保証金 | - | 償却・敷引 | - |
| 住宅保険料 | - | 更新料 | - |
| 保証会社利用 | 必須 | 保証会社名 | - |
| 保証会社費用 | - | 保証会社備考 | 保証会社利用必 初回保証委託料30%/毎月・月額総額1%、その他 |
| 契約形態 | - | 契約期間 | - |
| 入居・引渡期間 | 相談 | 現況 | - |
| 契約備考 | 当店は総合仲介業者です。他社がインターネット掲載している物件も全てご紹介可能ですので、気になっている物件がございましたらお気軽にご連絡下さい。初期費用のクレジットカード決済も可能で分割支払いも可能です。店頭にお客様専用駐車場も4台完備しておりますのでお車でもご来店下さい! 合計3.85万円(内訳:消毒代1.65万円鍵交換代2.2万円) 室内清掃費用 27500円 町費 月額250円 えんくらぶ 月額1100円 1DK 二人入居可/子供可 普通借家2年 損保【要】 バストイレ別、バルコニー、エアコン、ガスコンロ対応、クロゼット、フローリング、シャワー付洗面台、TVインターホン、浴室乾燥機、オートロック、室内洗濯置、シューズボックス、システムキッチン、追焚機能浴室、温水洗浄便座、脱衣所、エレベーター、洗面所独立、洗面化粧台、駐輪場、宅配ボックス、CATV、外壁タイル張り、閑静な住宅地、敷金不要、3口以上コンロ、対面式キッチン、防犯カメラ、出窓、全居室収納、グリル付、全居室洋室、バイク置場、24時間緊急通報システム、全居室フローリング、ガスレンジ付、デザイナーズ、2沿線利用可、駅まで平坦、ネット使用料不要、全室南向き、バリアフリー、24時間換気システム、南面リビング、浴室1坪以上、エレベーター2基、2駅利用可、3駅以上利用可、3沿線以上利用可、駅徒歩10分以内、バス停徒歩3分以内、敷地内ごみ置き場、セキュリティ会社加入済、全居室6畳以上、オープンキッチン、プロパンガス、洗面所にドア、ワイドバルコニー、南面バルコニー、初期費用カード決済可 | ||
部屋の情報
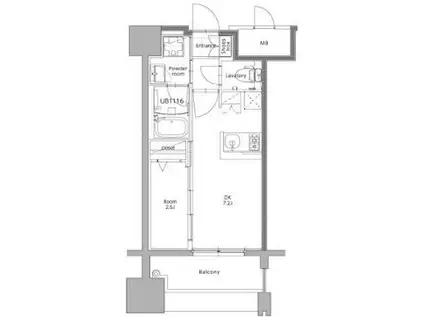
| 間取り | 1DK | 専有面積 | 26.11m2 |
|---|---|---|---|
| 所在階 / 向き | 8階 / - | バルコニー面積 | - |
| 水道 / ガス | - | ||
| 設備 | バス・トイレ別、2階以上、オートロック、テレビドアホン、宅配ボックス、浴室乾燥機、追い焚き、インターネット対応、システムキッチン、エアコン、エレベーター、温水洗浄便座、南向き、バルコニー、フローリング、洗髪洗面化粧台、2口コンロ、コンロ:ガス、デザイナーズ、CATV、インターネット使用料無料、洗濯機:室内 | ||
| 当社物件ID | 22268628 | ||
建物の情報
| 建物名 | エンクレスト博多STYLE | ||
|---|---|---|---|
| 所在地 | 福岡県福岡市博多区住吉 | ||
| 交通 | 地下鉄七隈線 渡辺通駅 徒歩10分 西鉄天神大牟田線 薬院駅 徒歩15分 JR鹿児島本線 博多駅 徒歩17分 | ||
| 階数 | 15階建 | 総戸数 | - |
| 築年月 | 2017年02月 / 築10年 | エレベーター | あり |
| 駐車場 | 空有 20350円/機械式駐 | バイク置き場 | あり |
| 駐輪場 | あり | 管理人/管理会社 | - |
| 周辺環境 | その他 ニューヨークストア住吉店(スーパー)まで619m その他 いせやフーズクラブ(スーパー)まで532m その他 西友サニー渡辺通店(スーパー)まで696m その他 ザ・ダイソー上川端店(その他)まで1063m その他 ミスターマックス Select 美野島店(その他)まで1202m その他 ミニストップ住吉2丁目店(コンビニ)まで234m | ||
| 建物種別 | マンション | 建物構造 | RC(鉄筋コンクリート) |
この部屋の取扱い不動産会社
| 会社名 | イースマイル博多店(株)スリーエイチ(SUUMO経由) | ||
|---|---|---|---|
| 所在地 | 福岡県福岡市博多区博多駅南1-14-6 クレベール博多1階 | 交通 | - |
| 営業時間 | 9:30~18:30 | 定休日 | なし |
| 免許番号 | 福岡県知事18562 | 取引態様 | 仲介 |
| 不動産会社管理番号 | 100492407685 | 当社管理番号 | 89 |
| 所属団体 | (公社)福岡県宅地建物取引業協会会員 | ||
| 公正取引協議会 | (一社)九州不動産公正取引協議会加盟 | ||
| 取扱い物件情報 | 物件詳細へ | ||
※各種情報と現状に差異がある場合は、現状優先となります。問い合わせをすることで、より詳しい条件、情報を確認する事ができます。
提供:イースマイル博多店(株)スリーエイチ(SUUMO経由)
この物件が気になったら掲載期限まであと12日
エンクレスト博多STYLEに条件(家賃・エリア)が近い物件一覧
| 写真 | 家賃 管理費等 | 敷金 礼金 | 間取り 専有面積 | 築年数 | 最寄り駅 所在地 | キープ | 詳細 |
|---|---|---|---|---|---|---|---|
マンション サンバード春日(2LDK/5階) | |||||||
![]() | 7.9万円 1,000円 | なし 7.9万円 | 2LDK 60m2 | 築40年 | 西鉄天神大牟田線 白木原駅 徒歩14分 鹿児島本線 大野城駅 徒歩16分 鹿児島本線 春日駅(福岡) 徒歩19分 福岡県春日市春日公園3丁目 | 詳細を見る | |
マンション ザ・レジデンス博多(1K/5階) | |||||||
| 7万円 5,000円 | なし 14万円 | 1K 25.35m2 | 築8年 | 福岡市空港線 博多駅 徒歩17分 西鉄天神大牟田線 西鉄平尾駅 徒歩17分 西鉄天神大牟田線 高宮駅(福岡) 徒歩22分 福岡県福岡市博多区美野島3丁目15-18 | 詳細を見る | ||
マンション クレアールガーデンズ春日(3LDK/2階) | |||||||
![]() | 12万円 なし | 12万円 24万円 | 3LDK 85.39m2 | 築26年 | 博多南線 博多南駅 徒歩27分 鹿児島本線 春日駅(福岡) 徒歩32分 鹿児島本線 南福岡駅 徒歩37分 福岡県春日市昇町6丁目 | 詳細を見る | |
マンション アルティザ博多ミッドシティ(1LDK/12階) | |||||||
| 9.7万円 なし | なし 9.7万円 | 1LDK 30.82m2 | 築1年 | 鹿児島本線 竹下駅 徒歩3分 西鉄天神大牟田線 大橋駅(福岡) 徒歩21分 西鉄天神大牟田線 高宮駅(福岡) 徒歩27分 福岡県福岡市博多区竹下4丁目 | 詳細を見る | ||
アパート エコロジースクエア須玖南(2LDK/1階) | |||||||
![]() | 7.1万円 3,800円 | なし 10.65万円 | 2LDK 59.81m2 | 築17年 | 西鉄天神大牟田線 井尻駅 徒歩19分 鹿児島本線 笹原駅 徒歩23分 鹿児島本線 南福岡駅 徒歩24分 福岡県春日市須玖南3丁目 | 詳細を見る | |
マンション クレイノきよみ通(1K/1階) | |||||||
![]() | 7.8万円 5,000円 | なし 11.7万円 | 1K 23.6m2 | 築10年 | 鹿児島本線 博多駅 徒歩24分 福岡県福岡市博多区山王2丁目 | 詳細を見る | |
マンション アントゥール薬院(1K/13階) | |||||||
| 9.6万円 1万円 | なし なし | 1K 30.51m2 | 築25年 | 福岡市七隈線 薬院駅 徒歩4分 福岡市七隈線 薬院大通駅 徒歩6分 福岡市七隈線 渡辺通駅 徒歩8分 福岡県福岡市中央区 | 詳細を見る | ||
マンション サーパス井尻東(3SLDK/5階) | |||||||
![]() | 13.8万円 なし | 13.8万円 13.8万円 | 3SLDK 75.8m2 | 築31年 | JR鹿児島本線 笹原駅 徒歩11分 西鉄天神大牟田線 井尻駅 徒歩18分 西鉄天神大牟田線 雑餉隈駅 徒歩20分 福岡県福岡市博多区 | 詳細を見る | |






