賃貸マンション
京都市烏丸線 十条駅(京都市営) 徒歩4分 7階建 築7年の賃貸物件情報(2LDK/4階)
| 家賃 | 管理費等 | 敷金 | 礼金 | 間取り | 専有面積 |
|---|---|---|---|---|---|
| 15.037万円 | 1.463万円 | なし | 20万円 | 2LDK | 47.2m2 |
入居決定でお祝い金最大100,000円
Point
プレサンス Wi−Fi無料 京都市南区から高級分譲、プレサンスシリーズが登場です。
提供:株式会社 京都ライフ 伏見桃山店(賃貸スモッカ経由)

詳細情報 京都市烏丸線 十条駅(京都市営) 徒歩4分 7階建 築7年
物件紹介
京都市烏丸線十条駅から徒歩4分にあり、駅近で通勤通学に便利なマンションです。
このお部屋は2階以上に位置しているので通行人や周囲の住人からの視線が気になりにくく、建物のエントランスはオートロックがついているので防犯性が高くなっています。
人気の角部屋で周囲の居住者の生活音も気になりにくく、また、フローリングのお部屋なのでお掃除もラクラク。キッチンはシステムキッチン仕様になっていますので、お料理好きの方にもぴったり。バス・トイレは別なので、のんびりお風呂タイムも楽しめるでしょう。また、雨の日でも浴室乾燥機を使えば、お洗濯も問題ありません。
通信設備面では、インターネット接続が可能です。また、BSアンテナ・CSアンテナがありCATVにも対応しているので、おうち時間も充実するでしょう(別途工事、契約料が必要な場合あり)。
床暖房があり、冬も足元から暖かく快適に過ごすことができます。建物にはエレベーターがついているので、重い荷物があっても安心。共用部には宅配ボックスが設定されているので、不在の時にも荷物を受け取ることができます。
このお部屋は2階以上に位置しているので通行人や周囲の住人からの視線が気になりにくく、建物のエントランスはオートロックがついているので防犯性が高くなっています。
人気の角部屋で周囲の居住者の生活音も気になりにくく、また、フローリングのお部屋なのでお掃除もラクラク。キッチンはシステムキッチン仕様になっていますので、お料理好きの方にもぴったり。バス・トイレは別なので、のんびりお風呂タイムも楽しめるでしょう。また、雨の日でも浴室乾燥機を使えば、お洗濯も問題ありません。
通信設備面では、インターネット接続が可能です。また、BSアンテナ・CSアンテナがありCATVにも対応しているので、おうち時間も充実するでしょう(別途工事、契約料が必要な場合あり)。
床暖房があり、冬も足元から暖かく快適に過ごすことができます。建物にはエレベーターがついているので、重い荷物があっても安心。共用部には宅配ボックスが設定されているので、不在の時にも荷物を受け取ることができます。
お金・契約の情報
※「-」と表示されているものは、実際は料金が発生するものもございます。詳細はお問い合わせください。
| 家賃 | 15.037万円 | 管理費・共益費 | 1.463万円 |
|---|---|---|---|
| 敷金 | なし | 礼金 | 20万円 |
| 入居決定でお祝い金最大100,000円 | |||
| 保証金 | - | 償却・敷引 | - |
| 住宅保険料 | 住宅保険料あり | 更新料 | - |
| 契約形態 | - | 契約期間 | 1年 |
| 入居・引渡期間 | 即時 | 現況 | 空室 |
| 契約備考 | 駅や、イオンモールが徒歩圏内で大変便利です。さらに充実した設備と美しいデザインが光ります。Wi−Fi無料で使えるのも嬉しい特典です。お気軽に京都ライフまでお問い合わせ下さい。 入居者サポート:880円 更新料:無し 保証会社:利用必須 初回:月額賃料等の50%、月額:保証料として月額賃料等の2%(カード発行必須) その他設備/条件:分譲賃貸、コンロ2口以上、独立洗面台、TVドアホン、即入居可 | ||
部屋の情報
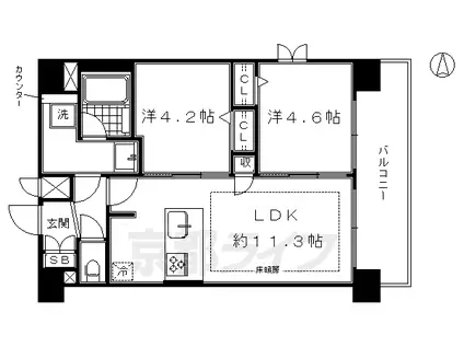
| 間取り | 2LDK | 専有面積 | 47.2m2 |
|---|---|---|---|
| 間取り詳細 | 洋室(4.6帖)、洋室(4.2帖)、LDK(11.3帖) | ||
| 所在階 / 向き | 4階 / 東 | バルコニー面積 | - |
| 水道 / ガス | ガス【都市】 | ||
| 設備 | バス・トイレ別、2階以上、オートロック、宅配ボックス、浴室乾燥機、追い焚き、インターネット対応、システムキッチン、カウンターキッチン、エアコン、エレベーター、温水洗浄便座、角部屋、バルコニー、フローリング、床暖房、コンロ:ガス、CATV、CSアンテナ、BSアンテナ、洗濯機:室内 | ||
| 当社物件ID | 160169296 | ||
建物の情報
| 建物名 | 京都市烏丸線 十条駅(京都市営) 徒歩4分 7階建 築7年 | ||
|---|---|---|---|
| 所在地 | 京都府京都市南区東九条西河辺町 | ||
| 交通 | 京都市烏丸線 十条駅(京都市営) 徒歩4分 京都市烏丸線 九条駅(京都) 徒歩7分 | ||
| 階数 | 7階建 | 総戸数 | - |
| 築年月 | 2019年08月 / 築7年 | エレベーター | あり |
| 駐車場 | - | バイク置き場 | あり |
| 駐輪場 | あり | 管理人/管理会社 | - |
| 建物種別 | マンション | 建物構造 | RC(鉄筋コンクリート) |
この部屋の取扱い不動産会社
| 会社名 | 株式会社 京都ライフ 伏見桃山店(賃貸スモッカ経由) | ||
|---|---|---|---|
| 所在地 | 京都市伏見区観音寺町215-1 CONNECT桃山2F | 交通 | - |
| 営業時間 | - | 定休日 | - |
| 免許番号 | 京都府知事(11)第6353号 | 取引態様 | 仲介 |
| 不動産会社管理番号 | kyotolife_77654-406-25 | 当社管理番号 | 463 |
| 所属団体 | 京都府宅地建物取引業協会\n公益社団法人近畿地区不動産公正取引協議会 | ||
| 公正取引協議会 | 全国宅地建物取引業保証協会 | ||
| 取扱い物件情報 | 物件詳細へ | ||
※各種情報と現状に差異がある場合は、現状優先となります。問い合わせをすることで、より詳しい条件、情報を確認する事ができます。
提供:株式会社 京都ライフ 伏見桃山店(賃貸スモッカ経由)
この物件が気になったら掲載期限まであと5日
京都市烏丸線 十条駅(京都市営) 徒歩4分 7階建 築7年に条件(家賃・エリア)が近い物件一覧
| 写真 | 家賃 管理費等 | 敷金 礼金 | 間取り 専有面積 | 築年数 | 最寄り駅 所在地 | キープ | 詳細 |
|---|---|---|---|---|---|---|---|
マンション 京都市烏丸線 十条駅(京都市営) 徒歩4分 新築(1LDK/7階) | |||||||
![]() | 9.65万円 8,470円 | なし なし | 1LDK 32.56m2 | 新築 | 京都市烏丸線 十条駅(京都市営) 徒歩4分 東海道本線 京都駅 徒歩14分 京都府京都市南区東九条柳下町 | 詳細を見る | |
アパート 奈良線 木幡駅(JR) 徒歩1分 築1年(2LDK/2階) | |||||||
![]() | 10.3万円 8,000円 | なし 20.6万円 | 2LDK 48.45m2 | 築1年 | 奈良線 木幡駅(JR) 徒歩1分 京阪電気鉄道宇治線 木幡駅(京阪) 徒歩4分 京都府宇治市木幡 | 詳細を見る | |
マンション 東海道本線 京都駅 徒歩15分 築2年(1LDK/5階) | |||||||
![]() | 11.1万円 1.1万円 | なし 11.1万円 | 1LDK 32.52m2 | 築2年 | 東海道本線 京都駅 徒歩15分 京都市烏丸線 京都駅 徒歩15分 京都府京都市南区八条源町 | 詳細を見る | |
マンション 京都市烏丸線 十条駅(京都市営) 徒歩4分 新築(1LDK/7階) | |||||||
![]() | 11.74万円 1.029万円 | なし なし | 1LDK 39.6m2 | 新築 | 京都市烏丸線 十条駅(京都市営) 徒歩4分 東海道本線 京都駅 徒歩14分 京都府京都市南区東九条柳下町 | 詳細を見る | |
一戸建て 阪急電鉄京都線 長岡天神駅 徒歩13分 築65年(7LDK) | |||||||
![]() | 14.5万円 なし | なし 14.5万円 | 7LDK 169.6m2 | 築65年 | 阪急電鉄京都線 長岡天神駅 徒歩13分 東海道本線 長岡京駅 徒歩23分 阪急電鉄京都線 西向日駅 徒歩48分 京都府長岡京市梅が丘 | 詳細を見る | |
一戸建て 東海道本線 西大路駅 徒歩18分 築40年(2LDK) | |||||||
![]() | 12.5万円 なし | 12.5万円 12.5万円 | 2LDK 65.64m2 | 築40年 | 東海道本線 西大路駅 徒歩18分 近鉄京都線 上鳥羽口駅 徒歩27分 京都府京都市南区吉祥院前田町 | 詳細を見る | |
アパート アイル京都八条(1LDK/1階) | |||||||
![]() | 13.14万円 8,000円 | なし 13.14万円 | 1LDK 50.23m2 | 築1年 | 近鉄京都線 東寺駅 徒歩15分 JR東海道本線 西大路駅 徒歩16分 JR東海道本線 京都駅 徒歩20分 京都府京都市南区八条源町 | 詳細を見る | |
マンション 東海道本線 京都駅 徒歩15分 築2年(1LDK/4階) | |||||||
![]() | 9.24万円 7,100円 | なし 9.95万円 | 1LDK 32.3m2 | 築2年 | 東海道本線 京都駅 徒歩15分 京都市烏丸線 京都駅 徒歩15分 京都府京都市南区八条源町 | 詳細を見る | |







