賃貸マンション
清澄マンションの賃貸物件情報(2DK/8階)
| 家賃 | 管理費等 | 敷金 | 礼金 | 間取り | 専有面積 |
|---|---|---|---|---|---|
| 11.4万円 | なし | 11.4万円 | 11.4万円 | 2DK | 39.6m2 |
入居決定でお祝い金最大100,000円
- 保証金
- -
- 償却・敷引
- -
- 築年数
- 築53年
- 所在階
- 8階
- 向き
- -
Point
まずはお問い合わせ!
不動産会社は街のプロ、あなたに合った物件がきっと見つかります。
提供:(株)ルームワン新宿店(SUUMO経由)

詳細情報 清澄マンション
物件紹介
清澄マンションは都営大江戸線清澄白河駅から徒歩4分にあり、駅近で通勤通学に便利なマンションです。
このお部屋は2階以上に位置しているので、通行人や周囲の住人からの視線が気になりにくく、防犯面でも安心です。
人気の南向きのお部屋。また、フローリングなのでお掃除もラクラク。バス・トイレ別の仕様で、のんびりお風呂タイムも楽しめます。
通信設備面では、インターネットが無料で使えるので、月々の出費を抑えられるのも魅力です。また、BSアンテナ・CSアンテナがありCATVにも対応しているので、おうち時間も充実するでしょう(別途工事、BS・CS・CATVの契約料等が必要な場合あり)。
建物にはエレベーターがついているので、重い荷物があっても安心。
このお部屋は2階以上に位置しているので、通行人や周囲の住人からの視線が気になりにくく、防犯面でも安心です。
人気の南向きのお部屋。また、フローリングなのでお掃除もラクラク。バス・トイレ別の仕様で、のんびりお風呂タイムも楽しめます。
通信設備面では、インターネットが無料で使えるので、月々の出費を抑えられるのも魅力です。また、BSアンテナ・CSアンテナがありCATVにも対応しているので、おうち時間も充実するでしょう(別途工事、BS・CS・CATVの契約料等が必要な場合あり)。
建物にはエレベーターがついているので、重い荷物があっても安心。
お金・契約の情報
※「-」と表示されているものは、実際は料金が発生するものもございます。詳細はお問い合わせください。
| 家賃 | 11.4万円 | 管理費・共益費 | なし |
|---|---|---|---|
| 敷金 | 11.4万円 | 礼金 | 11.4万円 |
| 入居決定でお祝い金最大100,000円 | |||
| 保証金 | - | 償却・敷引 | - |
| 住宅保険料 | - | 更新料 | - |
| 保証会社利用 | 必須 | 保証会社名 | - |
| 保証会社費用 | - | 保証会社備考 | 保証会社利用必 初回50%~ |
| 契約形態 | - | 契約期間 | - |
| 入居・引渡期間 | 相談 | 現況 | - |
| 契約備考 | お部屋探しは東京部屋貴族へ。お部屋探しはもちろん、ライフラインの手続きや鍵の手配、引っ越しまでの全てを一括対応。引っ越しはしたいけど、忙しくて中々お時間が取れないという方に大変喜ばれております。お客様にとって不要な物件は一切ご紹介せず、デメリットとなる情報は隠さずに正直にご提示。もう、いくつもの不動産屋物件情報サイトを確認する必要はございません。是非お電話を。〈お電話番号〉 合計2.2万円(内訳:鍵交換代:11000円/事務手数料:11000円) 更新料新賃料(ヶ月):1.00ヶ月 2DK 普通借家2年 損保【1.5万円2年】 バストイレ別、バルコニー、エアコン、フローリング、エレベーター、駐輪場、最上階、敷金1ヶ月、2沿線利用可、ネット使用料不要、保証金不要、2駅利用可、3駅以上利用可、3沿線以上利用可、駅徒歩5分以内、駅徒歩10分以内、礼金1ヶ月、初期費用カード決済可 | ||
部屋の情報
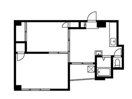
| 間取り | 2DK | 専有面積 | 39.6m2 |
|---|---|---|---|
| 所在階 / 向き | 8階 / - | バルコニー面積 | - |
| 水道 / ガス | - | ||
| 設備 | バス・トイレ別、2階以上、インターネット対応、エアコン、エレベーター、バルコニー、フローリング、インターネット使用料無料 | ||
| 当社物件ID | 17247418 | ||
建物の情報
| 建物名 | 清澄マンション | ||
|---|---|---|---|
| 所在地 | 東京都江東区清澄 | ||
| 交通 | 都営大江戸線 清澄白河駅 徒歩4分 東京メトロ半蔵門線 清澄白河駅 徒歩4分 都営新宿線 森下駅(東京) 徒歩12分 | ||
| 階数 | 8階建 | 総戸数 | - |
| 築年月 | 1973年05月 / 築53年 | エレベーター | あり |
| 駐車場 | なし | バイク置き場 | - |
| 駐輪場 | あり | 管理人/管理会社 | - |
| 周辺環境 | その他 ビエラ江東橋(ショッピングセンター)まで2190m その他 まいばすけっと清澄1丁目店(スーパー)まで260m その他 アブアブ赤札堂清澄店(スーパー)まで350m その他 ローソン清澄三丁目店(コンビニ)まで180m その他 セブンイレブン清澄白河駅前店(コンビニ)まで290m その他 ココカラファイン清澄白河店(ドラッグストア)まで320m | ||
| 建物種別 | マンション | 建物構造 | SRC(鉄骨鉄筋コンクリート) |
この部屋の取扱い不動産会社
| 会社名 | 東京部屋貴族 (株)アズプラ(SUUMO経由) | ||
|---|---|---|---|
| 所在地 | 東京都千代田区神田淡路町2-4 ユニオンビル2階 | 交通 | - |
| 営業時間 | 10時~21時 最終受付19時まで | 定休日 | 不定休 |
| 免許番号 | 東京都知事112636 | 取引態様 | 仲介 |
| 不動産会社管理番号 | 100475407237 | 当社管理番号 | 89 |
| 所属団体 | (公社)全日本不動産協会埼玉県本部会員 | ||
| 公正取引協議会 | (公社)首都圏不動産公正取引協議会加盟 | ||
| 取扱い物件情報 | 物件詳細へ | ||
※各種情報と現状に差異がある場合は、現状優先となります。問い合わせをすることで、より詳しい条件、情報を確認する事ができます。
提供:東京部屋貴族 (株)アズプラ(SUUMO経由)
この物件が気になったら掲載期限まであと10日
清澄マンションに条件(家賃・エリア)が近い物件一覧
| 写真 | 家賃 管理費等 | 敷金 礼金 | 間取り 専有面積 | 築年数 | 最寄り駅 所在地 | キープ | 詳細 |
|---|---|---|---|---|---|---|---|
アパート M SONIA KUGAHARA(ワンルーム/1階) | |||||||
![]() | 9.3万円 3,000円 | 9.3万円 13.95万円 | ワンルーム 24.57m2 | 築1年 | 東急池上線 久が原駅 徒歩8分 東急池上線 御嶽山駅 徒歩9分 東急多摩川線 鵜の木駅 徒歩13分 東京都大田区西嶺町 | 詳細を見る | |
マンション コンフォリア東大井Ⅱ(1DK/12階) | |||||||
![]() | 13.8万円 1万円 | 13.8万円 なし | 1DK 25.01m2 | 築2年 | 京浜急行電鉄本線 立会川駅 徒歩5分 京浜急行電鉄本線 鮫洲駅 徒歩7分 京浜東北・根岸線 大井町駅 徒歩11分 東京都品川区東大井3丁目 | 詳細を見る | |
マンション スプランディッド大島(1DK/2階) | |||||||
![]() | 13.9万円 1万円 | なし なし | 1DK 30.3m2 | 築1年 | 東京都新宿線 大島駅(東京) 徒歩6分 東京都江東区大島8丁目 | 詳細を見る | |
マンション クレストコート門前仲町(1DK/10階) | |||||||
![]() | 15.5万円 1.2万円 | 15.5万円 なし | 1DK 26.14m2 | 築1年 | 都営大江戸線 門前仲町駅 徒歩7分 JR京葉線 越中島駅 徒歩11分 東京メトロ日比谷線 八丁堀駅(東京) 徒歩15分 東京都江東区永代 | 詳細を見る | |
マンション パークホームズ東陽町(1LDK/1階) | |||||||
![]() | 14.5万円 1.5万円 | なし 14.5万円 | 1LDK 33m2 | 築2年 | 東京メトロ東西線 東陽町駅 徒歩6分 東京メトロ東西線 木場駅 徒歩11分 東京メトロ東西線 門前仲町駅 徒歩25分 東京都江東区東陽 | 詳細を見る | |
マンション XEBEC池上Ⅲ(1K/2階) | |||||||
![]() | 10.7万円 1.5万円 | なし 10.7万円 | 1K 25.84m2 | 築8年 | 東急池上線 池上駅 徒歩5分 東急池上線 千鳥町駅 徒歩13分 東京都大田区池上3丁目 | 詳細を見る | |
マンション アーバネックス南品川2(1K/2階) | |||||||
![]() | 11.2万円 1.5万円 | 11.2万円 11.2万円 | 1K 20.64m2 | 築5年 | 京急本線 新馬場駅 徒歩5分 JR京浜東北線 大井町駅 徒歩12分 JR山手線 大崎駅 徒歩15分 東京都品川区南品川 | 詳細を見る | |
アパート イリス羽田(1K/1階) | |||||||
![]() | 7.2万円 8,000円 | なし なし | 1K 19.04m2 | 築9年 | 京急空港線 穴守稲荷駅 徒歩5分 京急空港線 大鳥居駅 徒歩8分 京急空港線 天空橋駅 徒歩14分 東京都大田区羽田 | 詳細を見る | |








