賃貸一戸建て
鹿児島本線 羽犬塚駅 徒歩121分 2階建 築46年の賃貸物件情報(6DK)
| 家賃 | 管理費等 | 敷金 | 礼金 | 間取り | 専有面積 |
|---|---|---|---|---|---|
| 9.8万円 | 1,000円 | なし | 9.8万円 | 6DK | 137.47m2 |
入居決定でお祝い金最大100,000円
Point
オール電化なので光熱費の管理も楽ですね
提供:株式会社駅前不動産 八女店(賃貸スモッカ経由)

詳細情報 鹿児島本線 羽犬塚駅 徒歩121分 2階建 築46年
物件紹介
鹿児島本線羽犬塚駅から徒歩121分にある一戸建てです。
このお部屋は2階以上に位置しているので、通行人や周囲の住人からの視線が気になりにくく、防犯面でも安心です。
人気の南向きのお部屋。バス・トイレ別の仕様で、のんびりお風呂タイムも楽しめます。
このお部屋は2階以上に位置しているので、通行人や周囲の住人からの視線が気になりにくく、防犯面でも安心です。
人気の南向きのお部屋。バス・トイレ別の仕様で、のんびりお風呂タイムも楽しめます。
お金・契約の情報
※「-」と表示されているものは、実際は料金が発生するものもございます。詳細はお問い合わせください。
| 家賃 | 9.8万円 | 管理費・共益費 | 1,000円 |
|---|---|---|---|
| 敷金 | なし | 礼金 | 9.8万円 |
| 入居決定でお祝い金最大100,000円 | |||
| 保証金 | - | 償却・敷引 | - |
| 住宅保険料 | 住宅保険料あり | 更新料 | - |
| 契約形態 | - | 契約期間 | - |
| 入居・引渡期間 | 相談 | 現況 | 空室 |
| 契約備考 | 家財保険 加入義務有 期間2年:21,500円 保証会社:利用必須 98000 その他設備/条件:最上階の物件 | ||
部屋の情報
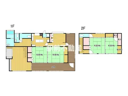
| 間取り | 6DK | 専有面積 | 137.47m2 |
|---|---|---|---|
| 間取り詳細 | DK(5帖)、洋室(6帖)、洋室(5帖)、和室(8帖)、和室(8帖)、和室(8帖)、和室(6帖) | ||
| 所在階 / 向き | 2階 / 南 | バルコニー面積 | - |
| 水道 / ガス | - | ||
| 設備 | バス・トイレ別、2階以上、温水洗浄便座、南向き、オール電化、コンロ:IH、専用庭、洗濯機:室内 | ||
| 当社物件ID | 158770193 | ||
建物の情報
| 建物名 | 鹿児島本線 羽犬塚駅 徒歩121分 2階建 築46年 | ||
|---|---|---|---|
| 所在地 | 福岡県八女市祈祷院 | ||
| 交通 | 鹿児島本線 羽犬塚駅 徒歩121分 | ||
| 階数 | 2階建 | 総戸数 | - |
| 築年月 | 1980年09月 / 築46年 | エレベーター | - |
| 駐車場 | - | バイク置き場 | - |
| 駐輪場 | あり | 管理人/管理会社 | - |
| 建物種別 | 一戸建て | 建物構造 | 木造 |
この部屋の取扱い不動産会社
| 会社名 | 株式会社駅前不動産 八女店(賃貸スモッカ経由) | ||
|---|---|---|---|
| 所在地 | 福岡県八女市本町1-302-1 | 交通 | - |
| 営業時間 | - | 定休日 | - |
| 免許番号 | 国土交通大臣免許(4)第7725号 | 取引態様 | 一般 |
| 不動産会社管理番号 | ekimaefudosan_210_2000455548 | 当社管理番号 | 463 |
| 所属団体 | (各都道府県)宅地建物取引業協会 | ||
| 公正取引協議会 | (社)全国宅地建物取引業保証協会 | ||
| 取扱い物件情報 | 物件詳細へ | ||
※各種情報と現状に差異がある場合は、現状優先となります。問い合わせをすることで、より詳しい条件、情報を確認する事ができます。
提供:株式会社駅前不動産 八女店(賃貸スモッカ経由)
この物件が気になったら掲載期限まであと6日
鹿児島本線 羽犬塚駅 徒歩121分 2階建 築46年に条件(家賃・エリア)が近い物件一覧
| 写真 | 家賃 管理費等 | 敷金 礼金 | 間取り 専有面積 | 築年数 | 最寄り駅 所在地 | キープ | 詳細 |
|---|---|---|---|---|---|---|---|
アパート メゾンド瀬高 A(2LDK/2階) | |||||||
![]() | 7.1万円 2,500円 | なし 7.1万円 | 2LDK 56.44m2 | 築1年 | 鹿児島本線 瀬高駅 徒歩8分 鹿児島本線 南瀬高駅 徒歩35分 福岡県みやま市瀬高町下庄 | 詳細を見る | |
アパート 鹿児島本線 瀬高駅 徒歩14分 築8年(2LDK/2階) | |||||||
![]() | 6.1万円 4,000円 | なし 9万円 | 2LDK 62.1m2 | 築8年 | 鹿児島本線 瀬高駅 徒歩14分 鹿児島本線 南瀬高駅 徒歩36分 福岡県みやま市瀬高町下庄 | 詳細を見る | |
アパート ボニータ カサス Ⅱ(1LDK/1階) | |||||||
![]() | 6万円 3,000円 | なし 6万円 | 1LDK 50.01m2 | 築2年 | 鹿児島本線 羽犬塚駅 徒歩83分 福岡県八女市馬場 | 詳細を見る | |
一戸建て 鹿児島本線 西牟田駅 徒歩24分 築11年(2LDK) | |||||||
![]() | 6.4万円 3,000円 | なし 6.4万円 | 2LDK 56.18m2 | 築11年 | 鹿児島本線 西牟田駅 徒歩24分 鹿児島本線 羽犬塚駅 徒歩38分 福岡県筑後市大字熊野 | 詳細を見る | |
アパート ビオス広川A棟(2SLDK/2階) | |||||||
![]() | 5.9万円 3,000円 | なし 5.9万円 | 2SLDK 58m2 | 築7年 | JR鹿児島本線 西牟田駅 徒歩78分 JR鹿児島本線 羽犬塚駅 徒歩92分 福岡県八女郡広川町大字新代 | 詳細を見る | |
アパート ボニータ カサス Ⅰ(2LDK/2階) | |||||||
![]() | 6.05万円 3,000円 | なし 6.05万円 | 2LDK 59.58m2 | 築2年 | 鹿児島本線 羽犬塚駅 徒歩83分 福岡県八女市馬場 | 詳細を見る | |
一戸建て 西鉄天神大牟田線 八丁牟田駅 徒歩80分 築8年(3LDK) | |||||||
![]() | 8万円 なし | なし 16万円 | 3LDK 87.76m2 | 築8年 | 西鉄天神大牟田線 八丁牟田駅 徒歩80分 西鉄天神大牟田線 大溝駅 徒歩83分 福岡県久留米市城島町青木島 | 詳細を見る | |
アパート メゾンド瀬高 C(2LDK/2階) | |||||||
![]() | 7.2万円 2,500円 | なし 7.2万円 | 2LDK 56.44m2 | 築1年 | JR鹿児島本線 瀬高駅 徒歩9分 福岡県みやま市瀬高町下庄 | 詳細を見る | |









