賃貸マンション
阪急電鉄京都線 西京極駅 徒歩18分 10階建 築18年の賃貸物件情報(2LDK/5階)
| 家賃 | 管理費等 | 敷金 | 礼金 | 間取り | 専有面積 |
|---|---|---|---|---|---|
| 12.3万円 | 7,000円 | なし | 18万円 | 2LDK | 70.88m2 |
入居決定でお祝い金最大100,000円
Point
分譲仕様賃貸マンション 右京区西京極エリアに分譲仕様、豪華絢爛賃貸
提供:株式会社 京都ライフ 烏丸五条店(賃貸スモッカ経由)

詳細情報 阪急電鉄京都線 西京極駅 徒歩18分 10階建 築18年
物件紹介
阪急電鉄京都線西京極駅から徒歩18分にあるマンションです。
このお部屋は2階以上に位置しているので通行人や周囲の住人からの視線が気になりにくく、建物のエントランスはオートロックがついているので防犯性が高くなっています。
人気の南向き・フローリングのお部屋。室内にはウォークインクローゼットがありますので、たくさんの荷物も効率的に収納ができます。キッチンはシステムキッチン仕様になっていますので、お料理好きの方にもぴったり。バス・トイレは別なので、のんびりお風呂タイムも楽しめるでしょう。また、雨の日でも浴室乾燥機を使えば、お洗濯も問題ありません。
通信設備面ではBSアンテナ・CSアンテナがありますので、おうち時間も充実するでしょう(別途工事、契約料が必要な場合あり)。
建物にはエレベーターがついているので、重い荷物があっても安心。
このお部屋は2階以上に位置しているので通行人や周囲の住人からの視線が気になりにくく、建物のエントランスはオートロックがついているので防犯性が高くなっています。
人気の南向き・フローリングのお部屋。室内にはウォークインクローゼットがありますので、たくさんの荷物も効率的に収納ができます。キッチンはシステムキッチン仕様になっていますので、お料理好きの方にもぴったり。バス・トイレは別なので、のんびりお風呂タイムも楽しめるでしょう。また、雨の日でも浴室乾燥機を使えば、お洗濯も問題ありません。
通信設備面ではBSアンテナ・CSアンテナがありますので、おうち時間も充実するでしょう(別途工事、契約料が必要な場合あり)。
建物にはエレベーターがついているので、重い荷物があっても安心。
お金・契約の情報
※「-」と表示されているものは、実際は料金が発生するものもございます。詳細はお問い合わせください。
| 家賃 | 12.3万円 | 管理費・共益費 | 7,000円 |
|---|---|---|---|
| 敷金 | なし | 礼金 | 18万円 |
| 入居決定でお祝い金最大100,000円 | |||
| 保証金 | - | 償却・敷引 | - |
| 住宅保険料 | 住宅保険料あり | 更新料 | - |
| 契約形態 | - | 契約期間 | 2年 |
| 入居・引渡期間 | 2026年02月上旬 | 現況 | 賃貸中 |
| 契約備考 | 右京区西京極エリアに分譲仕様、豪華絢爛ファミリー賃貸マンションが登場。思わず言葉が詰まります。システムキッチンに浴室乾燥機、追い炊き機能付浴槽、シャンプードレッサーなど魅力的な設備も充実。設計段階から使い勝手を徹底的に追求。入居者目線で使いやすい間取になってます。人気物件の為悩んでいる暇はありません・・・ 更新料:無し 保証会社:利用必須 初回:1万円 その他設備/条件:コンロ2口以上、独立洗面台 | ||
部屋の情報
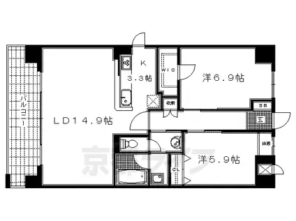
| 間取り | 2LDK | 専有面積 | 70.88m2 |
|---|---|---|---|
| 間取り詳細 | 洋室(6.9帖)、洋室(5.9帖)、LDK(18.2帖) | ||
| 所在階 / 向き | 5階 / 南 | バルコニー面積 | - |
| 水道 / ガス | ガス【都市】 | ||
| 設備 | バス・トイレ別、2階以上、オートロック、浴室乾燥機、ウォークインクローゼット、追い焚き、システムキッチン、カウンターキッチン、エアコン、エレベーター、南向き、バルコニー、フローリング、コンロ:ガス、CSアンテナ、BSアンテナ、洗濯機:室内 | ||
| 当社物件ID | 160066716 | ||
建物の情報
| 建物名 | 阪急電鉄京都線 西京極駅 徒歩18分 10階建 築18年 | ||
|---|---|---|---|
| 所在地 | 京都府京都市右京区梅津南広町 | ||
| 交通 | 阪急電鉄京都線 西京極駅 徒歩18分 阪急電鉄京都線 西院駅(阪急) 徒歩24分 | ||
| 階数 | 10階建 | 総戸数 | - |
| 築年月 | 2008年10月 / 築18年 | エレベーター | あり |
| 駐車場 | - | バイク置き場 | - |
| 駐輪場 | あり | 管理人/管理会社 | - |
| 建物種別 | マンション | 建物構造 | SRC(鉄骨鉄筋コンクリート) |
この部屋の取扱い不動産会社
| 会社名 | 株式会社 京都ライフ 烏丸五条店(賃貸スモッカ経由) | ||
|---|---|---|---|
| 所在地 | 京都市下京区烏丸通五条下ル大坂町377 Gloire烏丸五条1階 | 交通 | - |
| 営業時間 | - | 定休日 | - |
| 免許番号 | 京都府知事(11)第6353号 | 取引態様 | 仲介 |
| 不動産会社管理番号 | kyotolife_40757-501-23 | 当社管理番号 | 463 |
| 所属団体 | 京都府宅地建物取引業協会\n公益社団法人近畿地区不動産公正取引協議会 | ||
| 公正取引協議会 | 全国宅地建物取引業保証協会 | ||
| 取扱い物件情報 | 物件詳細へ | ||
※各種情報と現状に差異がある場合は、現状優先となります。問い合わせをすることで、より詳しい条件、情報を確認する事ができます。
提供:株式会社 京都ライフ 烏丸五条店(賃貸スモッカ経由)
この物件が気になったら掲載期限まであと6日
阪急電鉄京都線 西京極駅 徒歩18分 10階建 築18年に条件(家賃・エリア)が近い物件一覧
| 写真 | 家賃 管理費等 | 敷金 礼金 | 間取り 専有面積 | 築年数 | 最寄り駅 所在地 | キープ | 詳細 |
|---|---|---|---|---|---|---|---|
マンション 東海道本線 西大路駅 徒歩14分 築1年(2K/6階) | |||||||
![]() | 8万円 7,080円 | なし なし | 2K 27.55m2 | 築1年 | 東海道本線 西大路駅 徒歩14分 阪急電鉄京都線 西院駅(阪急) 徒歩20分 京都府京都市下京区西七条北衣田町 | 詳細を見る | |
アパート ARVO壬生森町(2LDK/2階) | |||||||
![]() | 12.8万円 5,000円 | 3万円 28万円 | 2LDK 60.85m2 | 築7年 | 阪急電鉄京都線 西院駅(阪急) 徒歩8分 山陰本線 二条駅 徒歩10分 阪急電鉄京都線 大宮駅(京都) 徒歩13分 京都府京都市中京区壬生森町 | 詳細を見る | |
アパート 近鉄京都線 小倉駅(京都) 徒歩6分 築10年(1LDK/1階) | |||||||
![]() | 8.1万円 5,000円 | 3万円 17万円 | 1LDK 44.32m2 | 築10年 | 近鉄京都線 小倉駅(京都) 徒歩6分 奈良線 JR小倉駅 徒歩11分 京都府宇治市小倉町寺内 | 詳細を見る | |
アパート 阪急電鉄嵐山線 松尾大社駅 徒歩8分 築26年(2LDK/2階) | |||||||
![]() | 8万円 5,000円 | 3万円 10万円 | 2LDK 60.75m2 | 築26年 | 阪急電鉄嵐山線 松尾大社駅 徒歩8分 山陰本線 太秦駅(JR) 徒歩22分 京都府京都市右京区梅津前田町 | 詳細を見る | |
アパート 阪急電鉄京都線 西院駅(阪急) 徒歩9分 築1年(1LDK/3階) | |||||||
![]() | 8.6万円 5,000円 | なし 5万円 | 1LDK 29.75m2 | 築1年 | 阪急電鉄京都線 西院駅(阪急) 徒歩9分 山陰本線 丹波口駅 徒歩13分 京都府京都市中京区壬生下溝町 | 詳細を見る | |
マンション 京都市東西線 太秦天神川駅 徒歩9分 新築(1K/2階) | |||||||
![]() | 7.77万円 1万円 | なし なし | 1K 25.52m2 | 新築 | 京都市東西線 太秦天神川駅 徒歩9分 山陰本線 花園駅(京都) 徒歩18分 京都府京都市右京区山ノ内宮脇町 | 詳細を見る | |
マンション リシュドール梅小路(1DK/11階) | |||||||
![]() | 8.4万円 8,000円 | なし 8.4万円 | 1DK 27.22m2 | 築1年 | JR山陰本線 丹波口駅 徒歩8分 JR山陰本線 梅小路京都西駅 徒歩13分 JR東海道本線 西大路駅 徒歩25分 京都府京都市下京区朱雀分木町 | 詳細を見る | |
一戸建て 阪急電鉄京都線 西院駅(阪急) 徒歩4分 築54年(3DK) | |||||||
![]() | 8万円 なし | 10万円 15万円 | 3DK 35.71m2 | 築54年 | 阪急電鉄京都線 西院駅(阪急) 徒歩4分 京福嵐山本線 西院駅(京福) 徒歩5分 京都市東西線 西大路御池駅 徒歩9分 京都府京都市右京区西院西今田町 | 詳細を見る | |









