賃貸マンション
エヌステージジェイアール新白岡駅前の賃貸物件情報(1K/6階)
| 家賃 | 管理費等 | 敷金 | 礼金 | 間取り | 専有面積 |
|---|---|---|---|---|---|
| 5.58万円 | 1.8万円 | なし | なし | 1K | 22.48m2 |
入居決定でお祝い金最大100,000円
- 保証金
- -
- 償却・敷引
- -
- 築年数
- 新築(築1年)
- 所在階
- 6階
- 向き
- 南
Point
最寄り駅まで徒歩1分の駅近物件です。
提供:ハウスコム埼玉株式会社 大宮店

詳細情報 エヌステージジェイアール新白岡駅前
物件紹介
エヌステージジェイアール新白岡駅前は東北本線新白岡駅から徒歩1分にあり、駅近で通勤通学に便利なマンションです。
このお部屋は2階以上に位置しているので、通行人や周囲の住人からの視線が気になりにくく、防犯面でも安心。建物のエントランスはオートロックがついており、インターホンにはTVモニタもついているため、相手の顔を確認してから来客対応することができます。
人気の南向きのお部屋。また、フローリングなのでお掃除もラクラク。キッチンはシステムキッチン仕様になっていますので、お料理好きの方にもぴったり。バス・トイレは別なので、のんびりお風呂タイムも楽しめるでしょう。また、雨の日でも浴室乾燥機を使えば、お洗濯も問題ありません。
通信設備面では、インターネット接続が可能です。また、BSアンテナ・CSアンテナもありますので、おうち時間も充実するでしょう(別途工事、契約料が必要な場合あり)。
建物にはエレベーターがついているので、重い荷物があっても安心。共用部には宅配ボックスが設定されているので、不在の時にも荷物を受け取ることができます。
コンビニまで徒歩37分の場所にあり、日用品や食料品のお買い物にも便利です。
このお部屋は2階以上に位置しているので、通行人や周囲の住人からの視線が気になりにくく、防犯面でも安心。建物のエントランスはオートロックがついており、インターホンにはTVモニタもついているため、相手の顔を確認してから来客対応することができます。
人気の南向きのお部屋。また、フローリングなのでお掃除もラクラク。キッチンはシステムキッチン仕様になっていますので、お料理好きの方にもぴったり。バス・トイレは別なので、のんびりお風呂タイムも楽しめるでしょう。また、雨の日でも浴室乾燥機を使えば、お洗濯も問題ありません。
通信設備面では、インターネット接続が可能です。また、BSアンテナ・CSアンテナもありますので、おうち時間も充実するでしょう(別途工事、契約料が必要な場合あり)。
建物にはエレベーターがついているので、重い荷物があっても安心。共用部には宅配ボックスが設定されているので、不在の時にも荷物を受け取ることができます。
コンビニまで徒歩37分の場所にあり、日用品や食料品のお買い物にも便利です。
お金・契約の情報
※「-」と表示されているものは、実際は料金が発生するものもございます。詳細はお問い合わせください。
| 家賃 | 5.58万円 | 管理費・共益費 | 1.8万円 |
|---|---|---|---|
| 敷金 | なし | 礼金 | なし |
| 入居決定でお祝い金最大100,000円 | |||
| 保証金 | - | 償却・敷引 | - |
| 住宅保険料 | 1円 | 更新料 | - |
| その他費用 | プレミアデスク(2年/税込):2.2万円、60500円: | ||
| 保証会社利用 | 必須 | 保証会社名 | - |
| 保証会社費用 | - | 保証会社備考 | 【ルームID】月額総賃料の50%/月次保証料、月額総賃料の1.5%/1年毎10,000円 【オリコフォレントインシュア】→月額総賃料の50%〜 /年間保証料 |
| 契約形態 | - | 契約期間 | 2年 |
| 入居・引渡期間 | 即時 | 現況 | - |
| 入居可能条件 | 事務所不可、楽器不可、ペット不可 | ||
| 契約備考 | 短期解約違約金:1年未満2カ月 解約予告:2カ月前 プレミアデスク代の中に登録料4400円(税込)を含みます。 プレミアデスク(2年/税込):16500円 契約時ルームクリーニング費用(税込):55000円 その他設備/条件:独立洗面台、セキュリティ会社有、クローゼット、シューズボックス | ||
部屋の情報
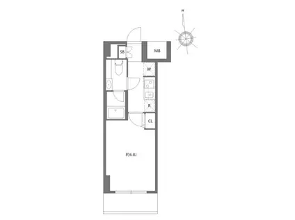
| 間取り | 1K | 専有面積 | 22.48m2 |
|---|---|---|---|
| 間取り詳細 | 洋室(6.8帖)、K(2帖) | ||
| 所在階 / 向き | 6階 / 南 | バルコニー面積 | - |
| 水道 / ガス | 水道【公営】、ガス【都市】 | ||
| 設備 | バス・トイレ別、オートロック、宅配ボックス、浴室乾燥機、インターネット対応、システムキッチン、エアコン、エレベーター、温水洗浄便座、フローリング、2口コンロ、コンロ:ガス、CSアンテナ、BSアンテナ、シャワー、給湯 | ||
| 当社物件ID | 158546904 | ||
建物の情報
| 建物名 | エヌステージジェイアール新白岡駅前 | ||
|---|---|---|---|
| 所在地 | 埼玉県白岡市新白岡8丁目 | ||
| 交通 | 東北本線 新白岡駅 徒歩1分 湘南新宿ライン宇須 新白岡駅 徒歩3分 | ||
| 階数 | 9階建 | 総戸数 | - |
| 築年月 | 2025年03月 / 新築(築1年) | エレベーター | あり |
| 駐車場 | ご確認ください | バイク置き場 | あり |
| 駐輪場 | あり | 管理人/管理会社 | - |
| 周辺環境 | コンビニ 徒歩37分(2896m) 販売店 徒歩15分(1169m) その他 ドラッグストア その他 公園 その他 銀行 その他 * | ||
| 建物種別 | マンション | 建物構造 | RC(鉄筋コンクリート) |
この部屋の取扱い不動産会社
| 会社名 | ハウスコム埼玉株式会社 大宮東口店 | ||
|---|---|---|---|
| 所在地 | 埼玉県さいたま市大宮区92-7ハイカラ堂ビル2階 | 交通 | - |
| 営業時間 | 10:00~18:00 | 定休日 | 水曜定休 |
| 免許番号 | 埼玉県知事(1)第24888号 | 取引態様 | 仲介 |
| 不動産会社管理番号 | HC5-4736265-0608-0221 | 当社管理番号 | 468 |
| 所属団体 | 、 | ||
| 取扱い物件情報 | 物件詳細へ | ||
※各種情報と現状に差異がある場合は、現状優先となります。問い合わせをすることで、より詳しい条件、情報を確認する事ができます。
提供:ハウスコム埼玉株式会社 大宮東口店
この物件が気になったら掲載期限まであと5日
エヌステージジェイアール新白岡駅前の空き部屋一覧
全部で64の空き部屋があります。
エヌステージジェイアール新白岡駅前に条件(家賃・エリア)が近い物件一覧
| 写真 | 家賃 管理費等 | 敷金 礼金 | 間取り 専有面積 | 築年数 | 最寄り駅 所在地 | キープ | 詳細 |
|---|---|---|---|---|---|---|---|
マンション セレナモンド(1LDK/1階) | |||||||
![]() | 8.4万円 5,000円 | 8.4万円 8.4万円 | 1LDK 35.37m2 | 新築 | JR宇都宮線 久喜駅 徒歩3分 東武伊勢崎線 久喜駅 徒歩3分 埼玉県久喜市久喜東 | 詳細を見る | |
アパート メゾン.ミナミ(1K/1階) | |||||||
![]() | 4.2万円 2,200円 | なし なし | 1K 21.45m2 | 築28年 | 東北本線 久喜駅 徒歩13分 埼玉県久喜市南2丁目 | 詳細を見る | |
アパート コリーヌ ブランシェ(2LDK/1階) | |||||||
![]() | 7万円 3,000円 | なし なし | 2LDK 54.36m2 | 築19年 | 東北本線 新白岡駅 徒歩11分 埼玉県白岡市新白岡9丁目 | 詳細を見る | |
アパート ディアコートA棟(1LDK/1階) | |||||||
![]() | 6.3万円 3,000円 | なし 6.3万円 | 1LDK 42.42m2 | 築15年 | JR宇都宮線 白岡駅 徒歩9分 埼玉県白岡市小久喜 | 詳細を見る | |
マンション レオパレスコトー ブロン(1K/2階) | |||||||
![]() | 5.8万円 7,000円 | なし 5.8万円 | 1K 20.81m2 | 築19年 | 東北本線 白岡駅 徒歩27分 埼玉県白岡市西10丁目 | 詳細を見る | |
アパート 河野ビル(1K/3階) | |||||||
![]() | 5.1万円 なし | 5.1万円 5.1万円 | 1K 27.67m2 | 築32年 | 東北本線 白岡駅 徒歩3分 埼玉県白岡市小久喜 | 詳細を見る | |
マンション レオパレスGOLD(1K/1階) | |||||||
![]() | 5.7万円 7,000円 | なし 5.7万円 | 1K 23.18m2 | 築28年 | 東北本線 白岡駅 徒歩21分 埼玉県白岡市白岡 | 詳細を見る | |
白岡市の町名から探す
白岡市の部屋を間取りから探す
白岡市の駅から探す
白岡市と隣接している市区町村から探す
- 白岡市(240)




/105x80-f1-q70-wp1)


/105x80-f1-q70-wp1)
/105x80-f1-q70-wp1)