賃貸アパート
レオパレスアストレア Ⅰの賃貸物件情報(1K/2階)
| 家賃 | 管理費等 | 敷金 | 礼金 | 間取り | 専有面積 |
|---|---|---|---|---|---|
| 4.6万円 | 4,000円 | なし | 4.6万円 | 1K | 22.35m2 |
入居決定でお祝い金最大100,000円
Point
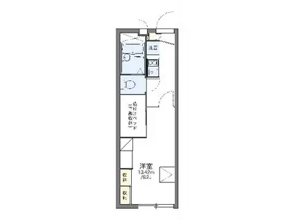
共用部には宅配ボックスを設置しているため、家で何時間も待機する必要がなくなります。
提供:ハウスコム静岡株式会社 藤枝店

詳細情報 レオパレスアストレア Ⅰ
物件紹介
このお部屋は2階以上に位置しているので、通行人や周囲の住人からの視線が気になりにくく、防犯面でも安心です。
バス・トイレ別の仕様で、のんびりお風呂タイムも楽しめます。
通信設備面では、インターネット接続が可能です(別途工事、契約料が必要な場合あり)。
共用部には宅配ボックスが設定されているので、不在の時にも荷物を受け取ることができます。
バス・トイレ別の仕様で、のんびりお風呂タイムも楽しめます。
通信設備面では、インターネット接続が可能です(別途工事、契約料が必要な場合あり)。
共用部には宅配ボックスが設定されているので、不在の時にも荷物を受け取ることができます。
お金・契約の情報
※「-」と表示されているものは、実際は料金が発生するものもございます。詳細はお問い合わせください。
| 家賃 | 4.6万円 | 管理費・共益費 | 4,000円 |
|---|---|---|---|
| 敷金 | なし | 礼金 | 4.6万円 |
| 入居決定でお祝い金最大100,000円 | |||
| 保証金 | - | 償却・敷引 | - |
| 住宅保険料 | 1円 | 更新料 | - |
| その他費用 | 抗菌施工(任意):2.376万円 | ||
| 保証会社利用 | 必須 | 保証会社名 | - |
| 保証会社費用 | - | 保証会社備考 | 保証料:60590円(契約内容により100〜120%で変動有)※記載金額は120%の場合 |
| 契約形態 | - | 契約期間 | - |
| 入居・引渡期間 | 2026年01月下旬 | 現況 | - |
| 契約備考 | 月額(環境維持費 550円) 鍵交換費用:16500 室内清掃費用:41800 その他設備/条件:室内洗濯機置き場 | ||
部屋の情報
| 間取り | 1K | 専有面積 | 22.35m2 |
|---|---|---|---|
| 所在階 / 向き | 2階 / - | バルコニー面積 | - |
| 水道 / ガス | - | ||
| 設備 | バス・トイレ別、宅配ボックス、光ファイバー対応、エアコン、温水洗浄便座、コンロ:電気 | ||
| 当社物件ID | 4414624 | ||
建物の情報
| 建物名 | レオパレスアストレア Ⅰ | ||
|---|---|---|---|
| 所在地 | 静岡県焼津市東小川3丁目 | ||
| 交通 | 東海道本線 焼津駅 バス乗車時間:8分 縦小路柳屋本店バス停で下車 徒歩3分 | ||
| 階数 | 2階建 | 総戸数 | 18戸 |
| 築年月 | 2006年03月 / 築20年 | エレベーター | - |
| 駐車場 | 空有 4,950円/月 | バイク置き場 | - |
| 駐輪場 | - | 管理人/管理会社 | - |
| 周辺環境 | その他 ドラッグストア その他 公園 その他 銀行 その他 * | ||
| 建物種別 | アパート | 建物構造 | 軽量鉄骨造 |
この部屋の取扱い不動産会社
| 会社名 | ハウスコム静岡株式会社 藤枝店 | ||
|---|---|---|---|
| 所在地 | 静岡県藤枝市2-18タチバナビル1階 | 交通 | - |
| 営業時間 | 10:00~18:00 | 定休日 | - |
| 免許番号 | 静岡県知事(1)第14629号 | 取引態様 | 仲介 |
| 不動産会社管理番号 | HC5-81390-209-0112 | 当社管理番号 | 468 |
| 所属団体 | 、 | ||
| 取扱い物件情報 | 物件詳細へ | ||
※各種情報と現状に差異がある場合は、現状優先となります。問い合わせをすることで、より詳しい条件、情報を確認する事ができます。
提供:ハウスコム静岡株式会社 藤枝店
この物件が気になったら掲載期限まであと5日
レオパレスアストレア Ⅰに条件(家賃・エリア)が近い物件一覧
| 写真 | 家賃 管理費等 | 敷金 礼金 | 間取り 専有面積 | 築年数 | 最寄り駅 所在地 | キープ | 詳細 |
|---|---|---|---|---|---|---|---|
マンション チェルシーズハウス(1K/3階) | |||||||
![]() | 5万円 なし | 5万円 5万円 | 1K 28.85m2 | 築35年 | JR東海道本線 静岡駅 徒歩19分 静岡鉄道静岡清水線 新静岡駅 徒歩24分 静岡鉄道静岡清水線 日吉町駅 徒歩28分 静岡県静岡市葵区駒形通 | 詳細を見る | |
マンション しかハイツ(ワンルーム/3階) | |||||||
![]() | 3.1万円 5,000円 | なし なし | ワンルーム 17.32m2 | 築49年 | 東海道本線 東静岡駅 徒歩15分 静岡県静岡市駿河区小鹿1丁目 | 詳細を見る | |
アパート ラ・メール清香A(3DK/1階) | |||||||
![]() | 5万円 なし | なし なし | 3DK 57.96m2 | 築30年 | 静岡県静岡市清水区駒越南町 | 詳細を見る | |
アパート レオパレスブルーリーフタウン(1K/1階) | |||||||
![]() | 5万円 4,000円 | なし 5万円 | 1K 22.35m2 | 築19年 | 東海道本線 藤枝駅 徒歩20分 静岡県藤枝市青葉町3丁目 | 詳細を見る | |
マンション レオパレスメゾンドールシェルⅣ(1K/3階) | |||||||
![]() | 3.9万円 6,000円 | なし 3.9万円 | 1K 20.81m2 | 築18年 | 東海道本線 島田駅(静岡) 徒歩14分 静岡県島田市旭1丁目 | 詳細を見る | |
マンション ユージックス伝馬(1K/1階) | |||||||
![]() | 5万円 3,000円 | 5万円 5万円 | 1K 22.24m2 | 築28年 | 静岡鉄道静岡清水線 日吉町駅 徒歩4分 静岡鉄道静岡清水線 新静岡駅 徒歩8分 JR東海道本線 静岡駅 徒歩9分 静岡県静岡市葵区伝馬町 | 詳細を見る | |
アパート サンシティウインディア B(3DK/1階) | |||||||
![]() | 4万円 3,000円 | なし なし | 3DK 56.08m2 | 築35年 | JR東海道本線 西焼津駅 徒歩80分 静岡県藤枝市若王子 | 詳細を見る | |
アパート プラザ・ドゥ・ラドー(1K/2階) | |||||||
![]() | 2.9万円 1,000円 | なし なし | 1K 19m2 | 築37年 | 静岡県静岡市葵区昭府2丁目 | 詳細を見る | |



/105x80-f1-q70-wp1)





