賃貸マンション
アプローズ諸岡の賃貸物件情報(4LDK/6階)
| 家賃 | 管理費等 | 敷金 | 礼金 | 間取り | 専有面積 |
|---|---|---|---|---|---|
| 18万円 | なし | なし | 36万円 | 4LDK | 94.23m2 |
入居決定でお祝い金最大100,000円
- 保証金
- -
- 償却・敷引
- -
- 築年数
- 築26年
- 所在階
- 6階
- 向き
- 南
Point
駐車場1台無料、ルーフバルコニー、94㎡
提供:株式会社DR・エステート ドッとあーる賃貸井尻店(賃貸スモッカ経由)

詳細情報 アプローズ諸岡
物件紹介
アプローズ諸岡は鹿児島本線笹原駅から徒歩16分にあるマンションです。
このお部屋は2階以上に位置しているので通行人や周囲の住人からの視線が気になりにくく、建物のエントランスはオートロックがついているので防犯性が高くなっています。
人気の南向き・フローリングのお部屋。室内にはウォークインクローゼットがありますので、たくさんの荷物も効率的に収納ができます。キッチンはシステムキッチン仕様になっていますので、お料理好きの方にもぴったり。バス・トイレは別なので、のんびりお風呂タイムも楽しめるでしょう。また、雨の日でも浴室乾燥機を使えば、お洗濯も問題ありません。
通信設備面ではBSアンテナがありCATVにも対応しているので、おうち時間も充実するでしょう(別途工事、契約料が必要な場合あり)。
建物にはエレベーターがついているので、重い荷物があっても安心。共用部には宅配ボックスが設定されているので、不在の時にも荷物を受け取ることができます。
このお部屋は2階以上に位置しているので通行人や周囲の住人からの視線が気になりにくく、建物のエントランスはオートロックがついているので防犯性が高くなっています。
人気の南向き・フローリングのお部屋。室内にはウォークインクローゼットがありますので、たくさんの荷物も効率的に収納ができます。キッチンはシステムキッチン仕様になっていますので、お料理好きの方にもぴったり。バス・トイレは別なので、のんびりお風呂タイムも楽しめるでしょう。また、雨の日でも浴室乾燥機を使えば、お洗濯も問題ありません。
通信設備面ではBSアンテナがありCATVにも対応しているので、おうち時間も充実するでしょう(別途工事、契約料が必要な場合あり)。
建物にはエレベーターがついているので、重い荷物があっても安心。共用部には宅配ボックスが設定されているので、不在の時にも荷物を受け取ることができます。
お金・契約の情報
※「-」と表示されているものは、実際は料金が発生するものもございます。詳細はお問い合わせください。
| 家賃 | 18万円 | 管理費・共益費 | なし |
|---|---|---|---|
| 敷金 | なし | 礼金 | 36万円 |
| 入居決定でお祝い金最大100,000円 | |||
| 保証金 | - | 償却・敷引 | - |
| 住宅保険料 | 住宅保険料あり | 更新料 | - |
| 契約形態 | - | 契約期間 | 2年 |
| 入居・引渡期間 | 即時 | 現況 | 空室 |
| 契約備考 | 駐車場1台無料、ルーフバルコニー、94㎡ すぐ近く(415m)の場所にスーパーマーケットがあります。素敵な景色が堪能できる、地上11階建ての物件。遮音性が高く静かな住環境の鉄筋コンクリート(RC)構造。機能性やデザインが特徴的なお部屋。追焚機能設置の浴室なので翌日の入浴にも利便性が高いです。快適で充実した毎日を送りたいなら、<>までご連絡ください。鹿児島本線笹原付近の物件情報を数多く取り扱っております。 その他設備/条件:分譲賃貸、TVドアホン、即入居可 | ||
部屋の情報
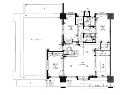
| 間取り | 4LDK | 専有面積 | 94.23m2 |
|---|---|---|---|
| 間取り詳細 | LDK(16.8帖)、洋室(7帖)、洋室(6帖)、洋室(6帖)、和室(6帖) | ||
| 所在階 / 向き | 6階 / 南 | バルコニー面積 | - |
| 水道 / ガス | ガス【プロパン】 | ||
| 設備 | バス・トイレ別、2階以上、オートロック、宅配ボックス、浴室乾燥機、ウォークインクローゼット、追い焚き、システムキッチン、エレベーター、南向き、バルコニー、フローリング、コンロ:ガス、CATV、BSアンテナ、洗濯機:室内 | ||
| 当社物件ID | 159544270 | ||
建物の情報
| 建物名 | アプローズ諸岡 | ||
|---|---|---|---|
| 所在地 | 福岡県福岡市博多区諸岡3丁目 | ||
| 交通 | 鹿児島本線 笹原駅 徒歩16分 西鉄天神大牟田線 井尻駅 徒歩16分 鹿児島本線 竹下駅 徒歩20分 | ||
| 階数 | 11階建 | 総戸数 | - |
| 築年月 | 2001年05月 / 築26年 | エレベーター | あり |
| 駐車場 | 空有 | バイク置き場 | - |
| 駐輪場 | - | 管理人/管理会社 | - |
| 建物種別 | マンション | 建物構造 | RC(鉄筋コンクリート) |
この部屋の取扱い不動産会社
| 会社名 | 株式会社DR・エステート ドッとあーる賃貸井尻店(賃貸スモッカ経由) | ||
|---|---|---|---|
| 所在地 | 福岡市南区井尻3丁目10番12号政都ビル1F | 交通 | - |
| 営業時間 | - | 定休日 | - |
| 免許番号 | 福岡県知事免許(3)第17172号 | 取引態様 | 仲介 |
| 不動産会社管理番号 | dresuteto_010150001816636 | 当社管理番号 | 463 |
| 取扱い物件情報 | 物件詳細へ | ||
※各種情報と現状に差異がある場合は、現状優先となります。問い合わせをすることで、より詳しい条件、情報を確認する事ができます。
提供:株式会社DR・エステート ドッとあーる賃貸井尻店(賃貸スモッカ経由)
この物件が気になったら掲載期限まであと7日
アプローズ諸岡に条件(家賃・エリア)が近い物件一覧
| 写真 | 家賃 管理費等 | 敷金 礼金 | 間取り 専有面積 | 築年数 | 最寄り駅 所在地 | キープ | 詳細 |
|---|---|---|---|---|---|---|---|
マンション MODERN PALAZZO 博多デュオグランデウエスト(2LDK/12階) | |||||||
| 17.9万円 5,000円 | なし なし | 2LDK 53.06m2 | 築2年 | 福岡市空港線 博多駅 徒歩14分 福岡市七隈線 渡辺通駅 徒歩18分 福岡市空港線 祇園駅(福岡) 徒歩19分 福岡県福岡市博多区美野島1丁目5-12 | 詳細を見る | ||
マンション クレアールガーデンズ春日(3LDK/2階) | |||||||
![]() | 12万円 なし | 12万円 24万円 | 3LDK 85.39m2 | 築27年 | 博多南線 博多南駅 徒歩27分 鹿児島本線 春日駅(福岡) 徒歩32分 鹿児島本線 南福岡駅 徒歩37分 福岡県春日市昇町6丁目 | 詳細を見る | |
アパート GRANDVALLEY 博多(2LDK/1階) | |||||||
![]() | 13.7万円 5,500円 | なし 27.4万円 | 2LDK 56.02m2 | 築1年 | 鹿児島本線 竹下駅 徒歩14分 西鉄天神大牟田線 井尻駅 徒歩19分 鹿児島本線 笹原駅 徒歩20分 福岡県福岡市博多区諸岡3丁目 | 詳細を見る | |
アパート メゾン パルク(1LDK/3階) | |||||||
![]() | 13.4万円 8,000円 | なし 40.2万円 | 1LDK 53.52m2 | 築1年 | 西鉄天神大牟田線 高宮駅(福岡) 徒歩12分 鹿児島本線 竹下駅 徒歩18分 西鉄天神大牟田線 大橋駅(福岡) 徒歩22分 福岡県福岡市南区清水3丁目 | 詳細を見る | |
マンション レブリアント板付(2LDK/5階) | |||||||
![]() | 10.8万円 5,000円 | なし なし | 2LDK 60.01m2 | 築9年 | 鹿児島本線 笹原駅 徒歩20分 西鉄天神大牟田線 井尻駅 徒歩22分 西鉄天神大牟田線 雑餉隈駅 徒歩27分 福岡県福岡市博多区 | 詳細を見る | |
マンション S-ROOM曰佐 西館(2LDK/3階) | |||||||
![]() | 12.1万円 5,000円 | なし なし | 2LDK 62.28m2 | 築2年 | 西鉄天神大牟田線 井尻駅 徒歩27分 博多南線 博多南駅 徒歩28分 鹿児島本線 笹原駅 徒歩32分 福岡県福岡市南区曰佐5丁目 | 詳細を見る | |
マンション ギャラクシー南福岡駅前(2LDK/10階) | |||||||
![]() | 13.8万円 4,000円 | なし 27.6万円 | 2LDK 53.4m2 | 築4年 | 鹿児島本線 南福岡駅 徒歩5分 西鉄天神大牟田線 雑餉隈駅 徒歩6分 西鉄天神大牟田線 桜並木駅 徒歩7分 福岡県福岡市博多区竹丘町1丁目 | 詳細を見る | |
アパート D-RESIDENCE光丘町B棟(2LDK/1階) | |||||||
![]() | 12.3万円 6,000円 | なし 12.3万円 | 2LDK 54.72m2 | 築1年 | 鹿児島本線 春日駅(福岡) 徒歩8分 鹿児島本線 南福岡駅 徒歩11分 西鉄天神大牟田線 春日原駅 徒歩11分 福岡県福岡市博多区光丘町2丁目 | 詳細を見る | |








