賃貸マンション
ハウスオブリザ平岸壱番館の賃貸物件情報(1LDK/1階)
| 家賃 | 管理費等 | 敷金 | 礼金 | 間取り | 専有面積 |
|---|---|---|---|---|---|
| 4.3万円 | 2,000円 | なし | なし | 1LDK | 29.2m2 |
入居決定でお祝い金最大100,000円
Point
当店なら仲介無料・フリーレント可能物件が多数ございます♪
提供:アパマンショップ南平岸店

詳細情報 ハウスオブリザ平岸壱番館
物件紹介
ハウスオブリザ平岸壱番館は札幌市南北線南平岸駅から徒歩9分にあり、駅近で通勤通学に便利なマンションです。
建物のエントランスはオートロックがついており、防犯性が高くなっています。
バス・トイレ別の仕様で、のんびりお風呂タイムも楽しめます。
通信設備面では、インターネットが無料で使えるので、月々の出費を抑えられるのも魅力です。また、BSアンテナがありCATVにも対応しているので、おうち時間も充実するでしょう(別途工事、BS・CATVの契約料等が必要な場合あり)。
また、こちらは石油暖房OKな物件。石油ストーブの利用を考えている方にはおすすめです。
建物のエントランスはオートロックがついており、防犯性が高くなっています。
バス・トイレ別の仕様で、のんびりお風呂タイムも楽しめます。
通信設備面では、インターネットが無料で使えるので、月々の出費を抑えられるのも魅力です。また、BSアンテナがありCATVにも対応しているので、おうち時間も充実するでしょう(別途工事、BS・CATVの契約料等が必要な場合あり)。
また、こちらは石油暖房OKな物件。石油ストーブの利用を考えている方にはおすすめです。
お金・契約の情報
※「-」と表示されているものは、実際は料金が発生するものもございます。詳細はお問い合わせください。
| 家賃 | 4.3万円 | 管理費・共益費 | 2,000円 |
|---|---|---|---|
| 敷金 | なし | 礼金 | なし |
| 入居決定でお祝い金最大100,000円 | |||
| 保証金 | - | 償却・敷引 | - |
| 住宅保険料 | 1.8万円(2年) | 更新料 | - |
| 保証会社利用 | 必須 | 保証会社名 | Casa |
| 保証会社費用 | - | 保証会社備考 | 初回保証料月額賃料の50%、年間更新料1万円、口座手数料330円 |
| 契約形態 | - | 契約期間 | 2年 |
| 入居・引渡期間 | 2026年02月中旬 | 現況 | - |
| 入居可能条件 | 事務所可、2人入居可 | ||
| 契約備考 | リペアサービス 1320円/除雪料(12〜3月) 4400円/室内清掃費用 30800円、[退去時費用:エアコン清掃料 16,500円 ※故意・過失等別途実費] | ||
部屋の情報
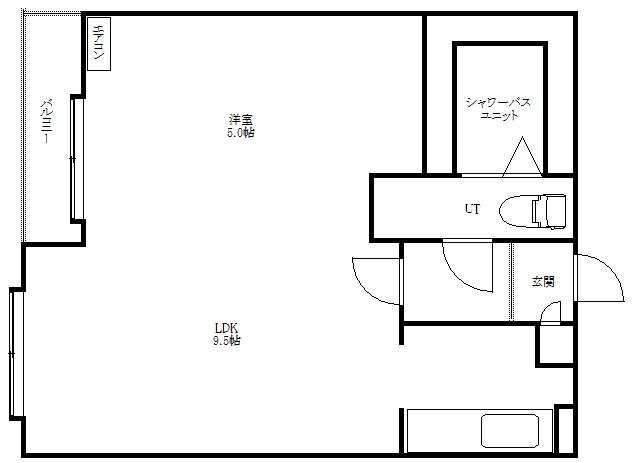
| 間取り | 1LDK | 専有面積 | 29.2m2 |
|---|---|---|---|
| 間取り詳細 | LD(7帖)、K(2帖)、洋室(5帖) | ||
| 所在階 / 向き | 1階 / 東 | バルコニー面積 | - |
| 水道 / ガス | ガス【プロパン】 | ||
| 設備 | バス・トイレ別、オートロック、光ファイバー対応、温水洗浄便座、バルコニー、トランクルーム、CATV、BSアンテナ、インターネット使用料無料、シャワー、給湯、石油暖房、洗濯機:室内 | ||
| 当社物件ID | 35104952 | ||
建物の情報
| 建物名 | ハウスオブリザ平岸壱番館 | ||
|---|---|---|---|
| 所在地 | 北海道札幌市豊平区平岸五条13丁目 | ||
| 交通 | 札幌市南北線 南平岸駅 徒歩9分 | ||
| 階数 | 3階建 | 総戸数 | 35戸 |
| 築年月 | 1987年10月 / 築39年 | エレベーター | - |
| 駐車場 | 空有 7,700円/月 | バイク置き場 | - |
| 駐輪場 | あり | 管理人/管理会社 | - |
| 周辺環境 | 病院 北海道整形外科記念病院 徒歩5分(350m) その他 ローソン 南平岸駅前店 徒歩9分(650m) その他 セブンイレブン札幌南平岸店 徒歩8分(600m) その他 マックスバリュ平岸店 徒歩9分(700m) その他 ゲオ札幌南平岸店 徒歩13分(1000m) その他 平岸六条郵便局 徒歩3分(240m) その他 イオン札幌西岡店 徒歩14分(1100m) その他 スポーツフィールドキャロット 徒歩7分(500m) | ||
| 建物種別 | マンション | 建物構造 | 鉄骨造 |
この部屋の取扱い不動産会社
| 会社名 | アパマンショップ平岸店 | ||
|---|---|---|---|
| 所在地 | 北海道札幌市豊平区平岸2条7丁目 4-17 | 交通 | 札幌市南北線平岸から徒歩1分 |
| 営業時間 | 09:00〜19:00 | 定休日 | - |
| 免許番号 | 北海道知事石狩(5)6754 | 取引態様 | 仲介 |
| 不動産会社管理番号 | 92407299 | 当社管理番号 | 4 |
| 所属団体 | (公社) 全日本不動産協会北海道本部 | ||
| 公正取引協議会 | (一社) 北海道不動産公正取引協議会加盟 | ||
| 取扱い物件情報 | 物件詳細へ | ||
※各種情報と現状に差異がある場合は、現状優先となります。問い合わせをすることで、より詳しい条件、情報を確認する事ができます。
提供:アパマンショップ平岸店
この物件が気になったら掲載期限まであと12日
ハウスオブリザ平岸壱番館に条件(家賃・エリア)が近い物件一覧
| 写真 | 家賃 管理費等 | 敷金 礼金 | 間取り 専有面積 | 築年数 | 最寄り駅 所在地 | キープ | 詳細 |
|---|---|---|---|---|---|---|---|
アパート パレスほしみ(2LDK/1階) | |||||||
![]() | 5.3万円 なし | なし なし | 2LDK 53.21m2 | 築26年 | 函館本線 ほしみ駅 徒歩3分 北海道小樽市銭函3丁目 | 詳細を見る | |
マンション RITZ HILL(1LDK/1階) | |||||||
![]() | 5.3万円 3,000円 | なし なし | 1LDK 36.4m2 | 築8年 | 北海道北広島市大曲幸町4丁目 | 詳細を見る | |
アパート ミモザハウス(ワンルーム/2階) | |||||||
![]() | 3.2万円 なし | なし なし | ワンルーム 21.12m2 | 築32年 | 札幌市東豊線 美園駅 徒歩3分 北海道札幌市豊平区美園七条5丁目 | 詳細を見る | |
マンション ピュア東彩館V(1SLDK/2階) | |||||||
![]() | 6.8万円 3,000円 | なし なし | 1SLDK 50.6m2 | 築7年 | JR函館本線 小樽駅 徒歩9分 JR函館本線 南小樽駅 徒歩23分 北海道小樽市富岡 | 詳細を見る | |
アパート プラザケアンズ B棟(1DK/2階) | |||||||
![]() | 3.3万円 なし | なし なし | 1DK 20.25m2 | 築31年 | 札幌市南北線 南平岸駅 徒歩12分 北海道札幌市豊平区平岸六条13丁目 | 詳細を見る | |
アパート ビックウエストⅠ(1LDK/2階) | |||||||
![]() | 4万円 2,000円 | 4万円 なし | 1LDK 25.28m2 | 築24年 | 札幌市東豊線 月寒中央駅 徒歩15分 北海道札幌市豊平区月寒西四条10丁目 | 詳細を見る | |
マンション SKコスモビル(2DK/3階) | |||||||
![]() | 4.5万円 なし | 4.5万円 なし | 2DK 42.23m2 | 築39年 | 北海道札幌市豊平区月寒東二条20丁目 | 詳細を見る | |
マンション パークヒルズ真々地II(3DK/2階) | |||||||
![]() | 5.5万円 2,500円 | なし なし | 3DK 53.25m2 | 築49年 | JR千歳線 千歳駅(北海道) 徒歩36分 JR千歳線 南千歳駅 徒歩53分 JR千歳線 新千歳空港駅 徒歩89分 北海道千歳市真々地 | 詳細を見る | |








