賃貸アパート
プレミアガーデン本郷の賃貸物件情報(3LDK/1階)
| 家賃 | 管理費等 | 敷金 | 礼金 | 間取り | 専有面積 |
|---|---|---|---|---|---|
| 70万円 | なし | 210万円 | 70万円 | 3LDK | 108.4m2 |
入居決定でお祝い金最大100,000円
- 保証金
- -
- 償却・敷引
- -
- 築年数
- 築25年
- 所在階
- 1階
- 向き
- 南東
Point
創業45年の信頼と直営140店舗のネットワークを活かし、専任物件だけでなく他社物件もご紹介いたします。オンライン接客、オンライン内見のサービス対応、初期費用のクレジット決済も可能です。
提供:(株)タウンハウジング東京 上野店(SUUMO経由)

詳細情報 プレミアガーデン本郷
物件紹介
プレミアガーデン本郷は都営三田線白山駅から徒歩6分にあり、駅近で通勤通学に便利なアパートです。
建物のエントランスはオートロックがついており、インターホンにはTVモニタもついているため、相手の顔を確認してから来客対応することができます。
こちらは楽器相談が可能な物件。楽器演奏をお考えの方はぜひ相談してみてください。人気の南向き・フローリングのお部屋。室内にはウォークインクローゼットがありますので、たくさんの荷物も効率的に収納ができます。キッチンはシステムキッチン仕様になっていますので、お料理好きの方にもぴったり。バス・トイレは別なので、のんびりお風呂タイムも楽しめるでしょう。また、雨の日でも浴室乾燥機を使えば、お洗濯も問題ありません。
通信設備面では、インターネット接続が可能です。また、BSアンテナ・CSアンテナがありCATVにも対応しているので、おうち時間も充実するでしょう(別途工事、契約料が必要な場合あり)。
床暖房があり、冬も足元から暖かく快適に過ごすことができます。ペット飼育の相談ができますので、あなたの大切な家族の一員も快適に暮らせるか、ぜひ確認してみてください。
建物のエントランスはオートロックがついており、インターホンにはTVモニタもついているため、相手の顔を確認してから来客対応することができます。
こちらは楽器相談が可能な物件。楽器演奏をお考えの方はぜひ相談してみてください。人気の南向き・フローリングのお部屋。室内にはウォークインクローゼットがありますので、たくさんの荷物も効率的に収納ができます。キッチンはシステムキッチン仕様になっていますので、お料理好きの方にもぴったり。バス・トイレは別なので、のんびりお風呂タイムも楽しめるでしょう。また、雨の日でも浴室乾燥機を使えば、お洗濯も問題ありません。
通信設備面では、インターネット接続が可能です。また、BSアンテナ・CSアンテナがありCATVにも対応しているので、おうち時間も充実するでしょう(別途工事、契約料が必要な場合あり)。
床暖房があり、冬も足元から暖かく快適に過ごすことができます。ペット飼育の相談ができますので、あなたの大切な家族の一員も快適に暮らせるか、ぜひ確認してみてください。
お金・契約の情報
※「-」と表示されているものは、実際は料金が発生するものもございます。詳細はお問い合わせください。
| 家賃 | 70万円 | 管理費・共益費 | なし |
|---|---|---|---|
| 敷金 | 210万円 | 礼金 | 70万円 |
| 入居決定でお祝い金最大100,000円 | |||
| 保証金 | - | 償却・敷引 | - |
| 住宅保険料 | - | 更新料 | - |
| 保証会社利用 | 必須 | 保証会社名 | - |
| 保証会社費用 | - | 保証会社備考 | 保証会社利用必 お問い合わせください/管理会社指定保証会社 |
| 契約形態 | - | 契約期間 | - |
| 入居・引渡期間 | - | 現況 | - |
| 入居可能条件 | 楽器相談、ペット相談 | ||
| 契約備考 | 東京メトロ千代田線千駄木駅徒歩14分/初期費用クレジット決済可(一部)/IT重説対応/オンライン相談・内見可 更新料新賃料(ヶ月):1.00ヶ月 3LDK 二人入居可/子供可/ペット相談/楽器相談 普通借家2年 損保【2万円2年】 バストイレ別、バルコニー、エアコン、ガスコンロ対応、クロゼット、フローリング、TVインターホン、浴室乾燥機、オートロック、室内洗濯置、陽当り良好、シューズボックス、システムキッチン、追焚機能浴室、温水洗浄便座、脱衣所、洗面所独立、CATV、光ファイバー、閑静な住宅地、BS・CS、3口以上コンロ、ペット相談、グリル付、ウォークインクロゼット、保証人不要、二人入居相談、全居室フローリング、玄関ホール、LDK15畳以上、テラス、床暖房、保証金不要、楽器相談、オーブンレンジ、クロゼット2ヶ所、上階無し、敷地内ごみ置き場、東南向き、都市ガス、高速ネット対応、礼金1ヶ月、初期費用カード決済可 入居日:'26年4月上旬 | ||
部屋の情報
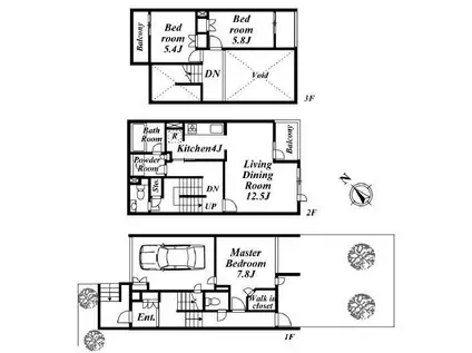
| 間取り | 3LDK | 専有面積 | 108.4m2 |
|---|---|---|---|
| 所在階 / 向き | 1階 / 南東 | バルコニー面積 | - |
| 水道 / ガス | - | ||
| 設備 | バス・トイレ別、オートロック、テレビドアホン、浴室乾燥機、ウォークインクローゼット、追い焚き、インターネット対応、システムキッチン、エアコン、温水洗浄便座、南向き、バルコニー、フローリング、洗髪洗面化粧台、床暖房、2口コンロ、コンロ:ガス、CATV、CSアンテナ、BSアンテナ、洗濯機:室内 | ||
| 当社物件ID | 160491431 | ||
建物の情報
| 建物名 | プレミアガーデン本郷 | ||
|---|---|---|---|
| 所在地 | 東京都文京区向丘 | ||
| 交通 | 都営三田線 白山駅(東京) 徒歩6分 東京メトロ南北線 東大前駅 徒歩6分 東京メトロ南北線 本駒込駅 徒歩10分 | ||
| 階数 | 3階建 | 総戸数 | - |
| 築年月 | 2002年03月 / 築25年 | エレベーター | - |
| 駐車場 | 空有 付無料 | バイク置き場 | - |
| 駐輪場 | - | 管理人/管理会社 | - |
| 周辺環境 | その他 周辺(その他)まで10m その他 コープとうきょう(スーパー)まで450m その他 TSUTAYA(その他)まで500m その他 白山交番(警察署・交番)まで400m | ||
| 建物種別 | アパート | 建物構造 | RC(鉄筋コンクリート) |
この部屋の取扱い不動産会社
| 会社名 | (株)タウンハウジング東京 上野店(SUUMO経由) | ||
|---|---|---|---|
| 所在地 | 東京都台東区上野4-5-5 アクティオーレ上野ビル3階 | 交通 | - |
| 営業時間 | AM10:00~PM7:00 | 定休日 | 水曜日 |
| 免許番号 | 国土交通大臣9926 | 取引態様 | 仲介 |
| 不動産会社管理番号 | 100491083881 | 当社管理番号 | 89 |
| 所属団体 | (公社)東京都宅地建物取引業協会会員 | ||
| 公正取引協議会 | (公社)首都圏不動産公正取引協議会加盟 | ||
| 取扱い物件情報 | 物件詳細へ | ||
※各種情報と現状に差異がある場合は、現状優先となります。問い合わせをすることで、より詳しい条件、情報を確認する事ができます。
提供:(株)タウンハウジング東京 上野店(SUUMO経由)
この物件が気になったら掲載期限まであと11日
プレミアガーデン本郷に条件(家賃・エリア)が近い物件一覧
| 写真 | 家賃 管理費等 | 敷金 礼金 | 間取り 専有面積 | 築年数 | 最寄り駅 所在地 | キープ | 詳細 |
|---|---|---|---|---|---|---|---|
マンション コンフォリア新宿イーストサイドタワー(1LDK/17階) | |||||||
![]() | 48万円 なし | 96万円 なし | 1LDK 71.99m2 | 築15年 | 都営大江戸線 東新宿駅 徒歩2分 東京メトロ副都心線 新宿三丁目駅 徒歩6分 西武新宿線 西武新宿駅 徒歩10分 東京都新宿区新宿 | 詳細を見る | |
マンション グラツィオーソ神楽坂イースト(3LDK/6階) | |||||||
![]() | 45万円 2.5万円 | 45万円 45万円 | 3LDK 94.8m2 | 築22年 | 東京メトロ東西線 神楽坂駅 徒歩8分 JR中央線 飯田橋駅 徒歩9分 東京メトロ有楽町線 江戸川橋駅 徒歩11分 東京都新宿区東五軒町 | 詳細を見る | |
マンション 二番町テラス(2LDK/9階) | |||||||
![]() | 99万円 なし | 198万円 99万円 | 2LDK 107.64m2 | 築17年 | 東京メトロ有楽町線 麹町駅 徒歩1分 JR中央線 四ツ谷駅 徒歩7分 東京メトロ半蔵門線 半蔵門駅 徒歩8分 東京都千代田区二番町 | 詳細を見る | |
マンション THE TOWER JUJO(3LDK/28階) | |||||||
![]() | 45万円 なし | 45万円 なし | 3LDK 83.03m2 | 築2年 | JR埼京線 十条駅(東京) 徒歩1分 JR京浜東北線 東十条駅 徒歩11分 都営三田線 新板橋駅 徒歩18分 東京都北区上十条 | 詳細を見る | |
マンション クリオ市谷薬王寺(3LDK/11階) | |||||||
![]() | 45万円 2万円 | 45万円 45万円 | 3LDK 80.86m2 | 築1年 | 都営大江戸線 牛込柳町駅 徒歩6分 都営新宿線 曙橋駅 徒歩8分 都営大江戸線 若松河田駅 徒歩12分 東京都新宿区市谷薬王寺町 | 詳細を見る | |
マンション パークアクシス滝野川ラ ブリーズ(3LDK/12階) | |||||||
![]() | 46万円 1.8万円 | 46万円 46万円 | 3LDK 98.99m2 | 築13年 | 都営三田線 西巣鴨駅 徒歩5分 JR埼京線 板橋駅 徒歩10分 都電荒川線 新庚申塚駅 徒歩10分 東京都北区滝野川 | 詳細を見る | |
マンション 平河町森タワーレジデンス(1LDK/19階) | |||||||
![]() | 55万円 3万円 | 110万円 55万円 | 1LDK 75.96m2 | 築17年 | 東京メトロ有楽町線 永田町駅 徒歩1分 東京メトロ丸ノ内線 赤坂見附駅 徒歩6分 東京メトロ千代田線 国会議事堂前駅 徒歩11分 東京都千代田区平河町 | 詳細を見る | |
マンション グレイス市谷台町(2SLDK/4階) | |||||||
![]() | 42万円 1.5万円 | なし 63万円 | 2SLDK 90.12m2 | 築1年 | 都営新宿線 曙橋駅 徒歩5分 東京メトロ丸ノ内線 四谷三丁目駅 徒歩11分 都営大江戸線 若松河田駅 徒歩11分 東京都新宿区市谷台町 | 詳細を見る | |









