賃貸マンション
スタイルレジデンス渋谷笹塚の賃貸物件情報(ワンルーム/2階)
| 家賃 | 管理費等 | 敷金 | 礼金 | 間取り | 専有面積 |
|---|---|---|---|---|---|
| 9.1万円 | 8,000円 | 9.1万円 | 9.1万円 | ワンルーム | 17.65m2 |
入居決定でお祝い金最大100,000円
- 保証金
- -
- 償却・敷引
- -
- 築年数
- 築7年
- 所在階
- 2階
- 向き
- 北
Point
オンラインにて申込みから契約までのお手続きも可能です。入居日が合わずにお悩みの方、契約金のお見積もりや室内写真のご要望などお気軽にお問い合わせください。初期費用の分割払いも承ります。
提供:(株)アクセス新宿店(SUUMO経由)

詳細情報 スタイルレジデンス渋谷笹塚
物件紹介
スタイルレジデンス渋谷笹塚は京王線笹塚駅から徒歩10分にあり、駅近で通勤通学に便利なマンションです。
このお部屋は2階以上に位置しているので、通行人や周囲の住人からの視線が気になりにくく、防犯面でも安心。建物のエントランスはオートロックがついており、インターホンにはTVモニタもついているため、相手の顔を確認してから来客対応することができます。
人気の角部屋で周囲の居住者の生活音も気になりにくく、また、フローリングのお部屋なのでお掃除もラクラク。バス・トイレ別の仕様で、のんびりお風呂タイムも楽しめます。また、浴室乾燥機を使えば、雨の日でもお洗濯は問題ありません。
通信設備面ではCATVに対応しているので、おうち時間も充実するでしょう(別途工事、契約料が必要な場合あり)。
共用部には宅配ボックスが設定されているので、不在の時にも荷物を受け取ることができます。
このお部屋は2階以上に位置しているので、通行人や周囲の住人からの視線が気になりにくく、防犯面でも安心。建物のエントランスはオートロックがついており、インターホンにはTVモニタもついているため、相手の顔を確認してから来客対応することができます。
人気の角部屋で周囲の居住者の生活音も気になりにくく、また、フローリングのお部屋なのでお掃除もラクラク。バス・トイレ別の仕様で、のんびりお風呂タイムも楽しめます。また、浴室乾燥機を使えば、雨の日でもお洗濯は問題ありません。
通信設備面ではCATVに対応しているので、おうち時間も充実するでしょう(別途工事、契約料が必要な場合あり)。
共用部には宅配ボックスが設定されているので、不在の時にも荷物を受け取ることができます。
お金・契約の情報
※「-」と表示されているものは、実際は料金が発生するものもございます。詳細はお問い合わせください。
| 家賃 | 9.1万円 | 管理費・共益費 | 8,000円 |
|---|---|---|---|
| 敷金 | 9.1万円 | 礼金 | 9.1万円 |
| 入居決定でお祝い金最大100,000円 | |||
| 保証金 | - | 償却・敷引 | - |
| 住宅保険料 | - | 更新料 | - |
| 保証会社利用 | 必須 | 保証会社名 | - |
| 保証会社費用 | - | 保証会社備考 | 保証会社利用必 初回保証料:賃料・管理費の50パーセント 年額保証料:10 000円 |
| 契約形態 | - | 契約期間 | - |
| 入居・引渡期間 | 即時 | 現況 | - |
| 契約備考 | 【仲介手数料無料(0円)対象物件】初期費用の分割・クレジットカード決済可能です!お気軽にご相談下さい。退去時室内クリーニング代実費精算。短期違約金として、2年未満の解約は賃料・管理費の2ヶ月となります。 合計3.3万円(内訳:鍵交換代3.3万円) 更新料 新賃料1.00ヶ月分 口座振替手数料 月額330円 24時間管理費 月額1100円 ワンルーム 普通借家2年 損保【1.8万円2年】 バストイレ別、バルコニー、エアコン、クロゼット、フローリング、TVインターホン、浴室乾燥機、オートロック、室内洗濯置、シューズボックス、角住戸、温水洗浄便座、洗面所独立、洗面化粧台、宅配ボックス、CATV、即入居可、2面採光、防犯カメラ、IHクッキングヒーター、仲介手数料不要、24時間緊急通報システム、2沿線利用可、ディンプルキー、保証金不要、ルーフバルコニー、24時間換気システム、2駅利用可、3駅以上利用可、駅徒歩10分以内、敷地内ごみ置き場、都市ガス、玄関収納、初期費用カード決済可 | ||
部屋の情報
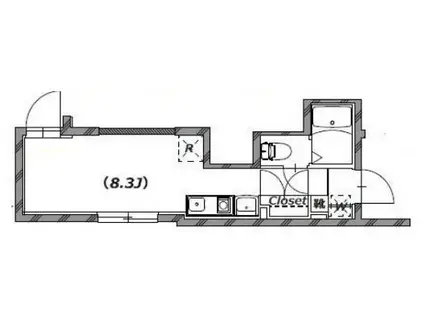
| 間取り | ワンルーム | 専有面積 | 17.65m2 |
|---|---|---|---|
| 所在階 / 向き | 2階 / 北 | バルコニー面積 | - |
| 水道 / ガス | - | ||
| 設備 | バス・トイレ別、2階以上、オートロック、テレビドアホン、宅配ボックス、浴室乾燥機、エアコン、温水洗浄便座、角部屋、バルコニー、フローリング、洗髪洗面化粧台、コンロ:IH、CATV、洗濯機:室内 | ||
| 当社物件ID | 29700537 | ||
建物の情報
| 建物名 | スタイルレジデンス渋谷笹塚 | ||
|---|---|---|---|
| 所在地 | 東京都渋谷区笹塚 | ||
| 交通 | 京王線 笹塚駅 徒歩10分 京王新線 幡ケ谷駅 徒歩12分 東京メトロ丸ノ内線 方南町駅 徒歩15分 | ||
| 階数 | 4階建 | 総戸数 | 14戸 |
| 築年月 | 2019年03月 / 築7年 | エレベーター | - |
| 駐車場 | なし | バイク置き場 | - |
| 駐輪場 | - | 管理人/管理会社 | - |
| 周辺環境 | その他 幡ヶ谷駅(その他)まで1115m その他 笹塚駅(その他)まで1058m その他 方南町駅(その他)まで1210m その他 株式会社ライフコーポレーション 幡ヶ谷店(スーパー)まで1004m その他 ライフ 笹塚店(スーパー)まで1001m その他 セブンイレブン 渋谷笹塚駅北店(コンビニ)まで911m | ||
| 建物種別 | マンション | 建物構造 | RC(鉄筋コンクリート) |
この部屋の取扱い不動産会社
| 会社名 | (株)アクセス渋谷宮益坂店(SUUMO経由) | ||
|---|---|---|---|
| 所在地 | 東京都渋谷区渋谷2-19-20 VORT渋谷宮益坂II 11階 | 交通 | - |
| 営業時間 | 10:00~19:00 | 定休日 | 毎週水曜日(祝日の場合は営業) |
| 免許番号 | 東京都知事94469 | 取引態様 | 仲介 |
| 不動産会社管理番号 | 100479680457 | 当社管理番号 | 89 |
| 所属団体 | (公社)東京都宅地建物取引業協会会員 | ||
| 公正取引協議会 | (公社)首都圏不動産公正取引協議会加盟 | ||
| 取扱い物件情報 | 物件詳細へ | ||
※各種情報と現状に差異がある場合は、現状優先となります。問い合わせをすることで、より詳しい条件、情報を確認する事ができます。
提供:(株)アクセス渋谷宮益坂店(SUUMO経由)
この物件が気になったら掲載期限まであと10日
スタイルレジデンス渋谷笹塚に条件(家賃・エリア)が近い物件一覧
| 写真 | 家賃 管理費等 | 敷金 礼金 | 間取り 専有面積 | 築年数 | 最寄り駅 所在地 | キープ | 詳細 |
|---|---|---|---|---|---|---|---|
マンション プレステージハマノ(1K/3階) | |||||||
![]() | 12万円 5,000円 | 12万円 12万円 | 1K 29.12m2 | 築12年 | 東急目黒線 武蔵小山駅 徒歩5分 東急目黒線 西小山駅 徒歩10分 東京都目黒区目黒本町 | 詳細を見る | |
アパート フローレス戸越(ワンルーム/2階) | |||||||
![]() | 6.5万円 なし | 6.5万円 6.5万円 | ワンルーム 18.44m2 | 築41年 | 東急大井町線 戸越公園駅 徒歩4分 都営浅草線 中延駅 徒歩5分 東急池上線 荏原中延駅 徒歩8分 東京都品川区戸越 | 詳細を見る | |
マンション エクセル下馬(1K/3階) | |||||||
![]() | 9.5万円 なし | 9.5万円 9.5万円 | 1K 26m2 | 築18年 | 東急田園都市線 三軒茶屋駅 徒歩11分 東急世田谷線 西太子堂駅 徒歩18分 東急東横線 祐天寺駅 徒歩21分 東京都世田谷区下馬 | 詳細を見る | |
マンション プライムアーバン早稲田(1K/9階) | |||||||
![]() | 10.9万円 8,000円 | 10.9万円 10.9万円 | 1K 23.02m2 | 築23年 | 東京メトロ有楽町線 江戸川橋駅 徒歩6分 東京メトロ東西線 早稲田駅(メトロ) 徒歩10分 東京メトロ東西線 神楽坂駅 徒歩16分 東京都新宿区早稲田鶴巻町 | 詳細を見る | |
マンション パークサイド芝(1K/6階) | |||||||
![]() | 14万円 1万円 | 14万円 14万円 | 1K 26.28m2 | 築13年 | 都営大江戸線 赤羽橋駅 徒歩6分 都営三田線 芝公園駅 徒歩7分 都営三田線 三田駅(東京) 徒歩11分 東京都港区芝 | 詳細を見る | |
アパート ヴィラハナミズキ(1K/2階) | |||||||
![]() | 6万円 3,000円 | 6万円 6万円 | 1K 22.6m2 | 築34年 | 小田急線 千歳船橋駅 徒歩10分 小田急線 経堂駅 徒歩23分 小田急線 祖師ケ谷大蔵駅 徒歩23分 東京都世田谷区桜丘 | 詳細を見る | |
マンション AXIS PATIO大森海岸(1LDK/4階) | |||||||
![]() | 14.7万円 8,000円 | なし 14.7万円 | 1LDK 38.38m2 | 築2年 | 京急本線 大森海岸駅 徒歩3分 JR京浜東北線 大森駅(東京) 徒歩10分 京急本線 平和島駅 徒歩15分 東京都品川区南大井 | 詳細を見る | |
アパート グラディート高田馬場(1K/2階) | |||||||
![]() | 11.2万円 7,000円 | なし 16.8万円 | 1K 27.21m2 | 築11年 | JR山手線 高田馬場駅 徒歩7分 西武新宿線 下落合駅(東京) 徒歩8分 JR山手線 目白駅 徒歩10分 東京都新宿区下落合 | 詳細を見る | |








