賃貸アパート
KEIAI RESIDENCE せんげん台IVケイアイレジデンスセンゲの賃貸物件情報(1LDK/1階)
| 家賃 | 管理費等 | 敷金 | 礼金 | 間取り | 専有面積 |
|---|---|---|---|---|---|
| 6.7万円 | 3,500円 | なし | 6.7万円 | 1LDK | 31.72m2 |
入居決定でお祝い金最大100,000円
- 保証金
- -
- 償却・敷引
- -
- 築年数
- 新築
- 所在階
- 1階
- 向き
- 北
Point
不在時でも荷物を受け取ることができるため、時間調整の手間が省ける宅配ボックスを備えております。オートロック機能があるので来訪者は基本的に玄関先まで来ることがなく防犯対策につながります。
提供:いい部屋ネット大東建託リーシング(株)越谷店(SUUMO経由)

詳細情報 KEIAI RESIDENCE せんげん台IVケイアイレジデンスセンゲ
物件紹介
KEIAI RESIDENCE せんげん台IVケイアイレジデンスセンゲは東武伊勢崎線せんげん台駅から徒歩6分にあり、駅近で通勤通学に便利なアパートです。
建物のエントランスはオートロックがついており、防犯性が高くなっています。
人気の角部屋で周囲の居住者の生活音も気になりにくく、また、フローリングのお部屋なのでお掃除もラクラク。室内にはウォークインクローゼットがありますので、たくさんの荷物も効率的に収納ができます。バス・トイレ別の仕様で、のんびりお風呂タイムも楽しめます。また、浴室乾燥機を使えば、雨の日でもお洗濯は問題ありません。
通信設備面では、インターネットが無料で使えるので、月々の出費を抑えられるのも魅力です。また、CATVにも対応しているので、おうち時間も充実するでしょう(別途工事、CATVの契約料等が必要な場合あり)。
共用部には宅配ボックスが設定されているので、不在の時にも荷物を受け取ることができます。
建物のエントランスはオートロックがついており、防犯性が高くなっています。
人気の角部屋で周囲の居住者の生活音も気になりにくく、また、フローリングのお部屋なのでお掃除もラクラク。室内にはウォークインクローゼットがありますので、たくさんの荷物も効率的に収納ができます。バス・トイレ別の仕様で、のんびりお風呂タイムも楽しめます。また、浴室乾燥機を使えば、雨の日でもお洗濯は問題ありません。
通信設備面では、インターネットが無料で使えるので、月々の出費を抑えられるのも魅力です。また、CATVにも対応しているので、おうち時間も充実するでしょう(別途工事、CATVの契約料等が必要な場合あり)。
共用部には宅配ボックスが設定されているので、不在の時にも荷物を受け取ることができます。
お金・契約の情報
※「-」と表示されているものは、実際は料金が発生するものもございます。詳細はお問い合わせください。
| 家賃 | 6.7万円 | 管理費・共益費 | 3,500円 |
|---|---|---|---|
| 敷金 | なし | 礼金 | 6.7万円 |
| 入居決定でお祝い金最大100,000円 | |||
| 保証金 | - | 償却・敷引 | - |
| 住宅保険料 | - | 更新料 | - |
| 保証会社利用 | 必須 | 保証会社名 | - |
| 保証会社費用 | - | 保証会社備考 | 保証会社利用必 加入要 初回保証料:家賃総額50% 月額保証料:900円/月 |
| 契約形態 | - | 契約期間 | - |
| 入居・引渡期間 | - | 現況 | - |
| 契約備考 | ■KEIAICLUB会費:2750円(税込)/月・火災保険(楽天損害保険株式会社様)・24時間サポート(※楽天損保加入者のみ)・インターネット使用料※火災保険はKEIAICLUB内に付帯しておりますので、別途費用はかかりません。■新築のため写真はイメージ画像となります。 合計4.4万円(内訳:契約事務手数料1.65万円鍵交換代2.75万円) 更新料 新賃料1.00ヶ月分 室内清掃費用 66000円 駐輪場330円 1LDK 二人入居可 損保【要】 バストイレ別、バルコニー、エアコン、フローリング、浴室乾燥機、オートロック、室内洗濯置、シューズボックス、角住戸、温水洗浄便座、脱衣所、洗面所独立、2口コンロ、駐輪場、宅配ボックス、CATV、対面式キッチン、IHクッキングヒーター、ウォークインクロゼット、二人入居相談、ディンプルキー、ネット使用料不要、保証金不要、24時間換気システム、ガス暖房、未入居、駅徒歩10分以内、プロパンガス、室内物干機、IT重説対応物件 入居日:'26年3月上旬 | ||
部屋の情報
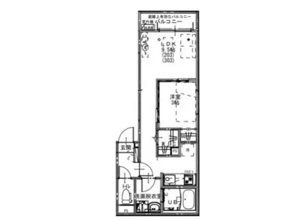
| 間取り | 1LDK | 専有面積 | 31.72m2 |
|---|---|---|---|
| 所在階 / 向き | 1階 / 北 | バルコニー面積 | - |
| 水道 / ガス | - | ||
| 設備 | バス・トイレ別、オートロック、宅配ボックス、浴室乾燥機、ウォークインクローゼット、インターネット対応、エアコン、温水洗浄便座、角部屋、バルコニー、フローリング、洗髪洗面化粧台、2口コンロ、コンロ:IH、CATV、インターネット使用料無料、洗濯機:室内 | ||
| 当社物件ID | 160065321 | ||
建物の情報
| 建物名 | KEIAI RESIDENCE せんげん台IVケイアイレジデンスセンゲ | ||
|---|---|---|---|
| 所在地 | 埼玉県越谷市千間台東 | ||
| 交通 | 東武伊勢崎線 せんげん台駅 徒歩6分 東武伊勢崎線 大袋駅 徒歩21分 | ||
| 階数 | 3階建 | 総戸数 | 9戸 |
| 築年月 | 2026年02月 / 新築 | エレベーター | - |
| 駐車場 | なし | バイク置き場 | - |
| 駐輪場 | あり | 管理人/管理会社 | - |
| 周辺環境 | その他 せんげん台(その他)まで464m その他 ジャパンミート卸売市場 越谷店(スーパー)まで1003m その他 セブンタウンせんげん台(ショッピングセンター)まで269m その他 セブンイレブン 越谷平方南町店(コンビニ)まで1214m その他 ドラッグストアセキ千間台店(ドラッグストア)まで738m その他 越谷平方郵便局(郵便局)まで1084m | ||
| 建物種別 | アパート | 建物構造 | 木造 |
この部屋の取扱い不動産会社
| 会社名 | いい部屋ネット大東建託リーシング(株)越谷店(SUUMO経由) | ||
|---|---|---|---|
| 所在地 | 埼玉県越谷市赤山本町 4-4 ユーエイアドバンスシュウビル1階 | 交通 | - |
| 営業時間 | 10:00~12:30 / 13:30~18:00 | 定休日 | 火曜日・水曜日 |
| 免許番号 | 国土交通大臣9120 | 取引態様 | 仲介 |
| 不動産会社管理番号 | 100478324613 | 当社管理番号 | 89 |
| 所属団体 | (公財)日本賃貸住宅管理協会会員 | ||
| 公正取引協議会 | (公社)首都圏不動産公正取引協議会加盟 | ||
| 取扱い物件情報 | 物件詳細へ | ||
※各種情報と現状に差異がある場合は、現状優先となります。問い合わせをすることで、より詳しい条件、情報を確認する事ができます。
提供:いい部屋ネット大東建託リーシング(株)越谷店(SUUMO経由)
この物件が気になったら掲載期限まであと11日
KEIAI RESIDENCE せんげん台IVケイアイレジデンスセンゲに条件(家賃・エリア)が近い物件一覧
| 写真 | 家賃 管理費等 | 敷金 礼金 | 間取り 専有面積 | 築年数 | 最寄り駅 所在地 | キープ | 詳細 |
|---|---|---|---|---|---|---|---|
マンション レオパレスプレシャス SRK(1K/1階) | |||||||
![]() | 7.1万円 7,000円 | なし 7.1万円 | 1K 19.87m2 | 築19年 | 東武伊勢崎線 獨協大学前駅 徒歩4分 東武伊勢崎線 新田駅(埼玉) 徒歩18分 東武伊勢崎線 草加駅 徒歩26分 埼玉県草加市栄町 | 詳細を見る | |
アパート フローラルアイダ(2LDK/1階) | |||||||
![]() | 7.5万円 4,000円 | 7.5万円 なし | 2LDK 52.17m2 | 築33年 | 埼玉高速鉄道 浦和美園駅 徒歩14分 埼玉県さいたま市緑区大字大門 | 詳細を見る | |
マンション TRAD仲仙(ワンルーム/3階) | |||||||
![]() | 4.5万円 3,000円 | なし なし | ワンルーム 18m2 | 築36年 | 埼玉新都市交通 鉄道博物館駅 徒歩13分 埼玉県さいたま市北区東大成町2丁目 | 詳細を見る | |
アパート グリーンハイツ欅(1K/2階) | |||||||
![]() | 4.5万円 なし | 4.5万円 なし | 1K 23m2 | 築36年 | JR京浜東北線 北浦和駅 徒歩17分 JR京浜東北線 与野駅 徒歩18分 JR京浜東北線 さいたま新都心駅 徒歩30分 埼玉県さいたま市浦和区領家 | 詳細を見る | |
アパート カーサ・エスペランザ 弐番館(2LDK/2階) | |||||||
![]() | 7.5万円 2,300円 | なし 11.25万円 | 2LDK 54.38m2 | 築13年 | 東武野田線 藤の牛島駅 徒歩9分 東武伊勢崎線 一ノ割駅 徒歩29分 埼玉県春日部市藤塚 | 詳細を見る | |
マンション MAXIV西川口(1K/4階) | |||||||
![]() | 7万円 1万円 | なし 7万円 | 1K 22.33m2 | 築5年 | JR京浜東北線 西川口駅 徒歩5分 JR京浜東北線 川口駅 徒歩25分 埼玉県川口市並木 | 詳細を見る | |
アパート レオネクストしうん(1K/2階) | |||||||
![]() | 5.9万円 5,000円 | なし 5.9万円 | 1K 26.08m2 | 築17年 | JR京浜東北線 浦和駅 徒歩41分 埼玉県さいたま市緑区道祖土 | 詳細を見る | |
マンション ルナルミエール越谷(1K/2階) | |||||||
![]() | 6.3万円 7,000円 | なし なし | 1K 26.08m2 | 築13年 | 東武伊勢崎線 北越谷駅 徒歩23分 埼玉県越谷市大字南荻島 | 詳細を見る | |








