賃貸マンション
シャルマンコーポ土浦の賃貸物件情報(4LDK/1階)
| 家賃 | 管理費等 | 敷金 | 礼金 | 間取り | 専有面積 |
|---|---|---|---|---|---|
| 9.5万円 | なし | 19万円 | 9.5万円 | 4LDK | 93.95m2 |
入居決定でお祝い金最大100,000円
- 保証金
- -
- 償却・敷引
- -
- 築年数
- 築36年
- 所在階
- 1階
- 向き
- 南西
Point
都市ガス、冷暖房3基付
提供:香陵住販(株)土浦支店(SUUMO経由)

詳細情報 シャルマンコーポ土浦
物件紹介
シャルマンコーポ土浦はJR常磐線土浦駅から徒歩20分にあるマンションです。
人気の南向きのお部屋。キッチンはシステムキッチン仕様になっていますので、お料理好きの方にもぴったり。また、バス・トイレは別で、のんびりお風呂タイムも楽しめるでしょう。
通信設備面ではCATVに対応しているので、おうち時間も充実するでしょう(別途工事、契約料が必要な場合あり)。
建物にはエレベーターがついているので、重い荷物があっても安心。
人気の南向きのお部屋。キッチンはシステムキッチン仕様になっていますので、お料理好きの方にもぴったり。また、バス・トイレは別で、のんびりお風呂タイムも楽しめるでしょう。
通信設備面ではCATVに対応しているので、おうち時間も充実するでしょう(別途工事、契約料が必要な場合あり)。
建物にはエレベーターがついているので、重い荷物があっても安心。
お金・契約の情報
※「-」と表示されているものは、実際は料金が発生するものもございます。詳細はお問い合わせください。
| 家賃 | 9.5万円 | 管理費・共益費 | なし |
|---|---|---|---|
| 敷金 | 19万円 | 礼金 | 9.5万円 |
| 入居決定でお祝い金最大100,000円 | |||
| 保証金 | - | 償却・敷引 | - |
| 住宅保険料 | - | 更新料 | - |
| 契約形態 | - | 契約期間 | - |
| 入居・引渡期間 | 相談 | 現況 | - |
| 契約備考 | イオンモール土浦まで1800m/つくば駅まで9400m/安心入居サポート:1,000円(税込1,100円)/月 鍵交換代有り DS室内消毒料:13,200円(税込) 消火剤:5,500円(税込) 保証会社加入必須(初回保証料:家賃総額100%・更新保証料:10,000円/1年毎・月額保証料:家賃総額の1%) 専用庭有 4LDK 事務所利用不可 損保【2万円2年】 バストイレ別、バルコニー、ガスコンロ対応、クロゼット、室内洗濯置、シューズボックス、システムキッチン、追焚機能浴室、温水洗浄便座、エレベーター、洗面所独立、CATV、3口以上コンロ、対面式キッチン、分譲賃貸、専用庭、エアコン3台、3駅以上利用可、敷地内ごみ置き場、専有面積25坪以上、南西向き、都市ガス | ||
部屋の情報
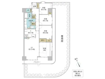
| 間取り | 4LDK | 専有面積 | 93.95m2 |
|---|---|---|---|
| 所在階 / 向き | 1階 / 南西 | バルコニー面積 | 22m2 |
| 水道 / ガス | - | ||
| 設備 | バス・トイレ別、追い焚き、システムキッチン、エアコン、エレベーター、温水洗浄便座、南向き、バルコニー、洗髪洗面化粧台、2口コンロ、コンロ:ガス、CATV、専用庭、洗濯機:室内 | ||
| 当社物件ID | 159196998 | ||
建物の情報
| 建物名 | シャルマンコーポ土浦 | ||
|---|---|---|---|
| 所在地 | 茨城県土浦市文京町 | ||
| 交通 | JR常磐線 土浦駅 徒歩20分 JR常磐線 荒川沖駅 徒歩101分 JR常磐線 神立駅 徒歩105分 | ||
| 階数 | 11階建 | 総戸数 | 164戸 |
| 築年月 | 1991年03月 / 築36年 | エレベーター | あり |
| 駐車場 | なし | バイク置き場 | - |
| 駐輪場 | - | 管理人/管理会社 | - |
| 周辺環境 | その他 土浦第一中(中学校)まで250m その他 土浦小(小学校)まで884m | ||
| 建物種別 | マンション | 建物構造 | SRC(鉄骨鉄筋コンクリート) |
この部屋の取扱い不動産会社
| 会社名 | 香陵住販(株)つくば支店(SUUMO経由) | ||
|---|---|---|---|
| 所在地 | 茨城県つくば市東新井 19-7 | 交通 | - |
| 営業時間 | 9:30 ~ 18:00 | 定休日 | 水曜日 |
| 免許番号 | 国土交通大臣7026 | 取引態様 | 仲介 |
| 不動産会社管理番号 | 100450347797 | 当社管理番号 | 89 |
| 所属団体 | (公社)茨城県宅地建物取引業協会会員 | ||
| 公正取引協議会 | (公社)首都圏不動産公正取引協議会加盟 | ||
| 取扱い物件情報 | 物件詳細へ | ||
※各種情報と現状に差異がある場合は、現状優先となります。問い合わせをすることで、より詳しい条件、情報を確認する事ができます。
提供:香陵住販(株)つくば支店(SUUMO経由)
この物件が気になったら掲載期限まであと10日
シャルマンコーポ土浦に条件(家賃・エリア)が近い物件一覧
| 写真 | 家賃 管理費等 | 敷金 礼金 | 間取り 専有面積 | 築年数 | 最寄り駅 所在地 | キープ | 詳細 |
|---|---|---|---|---|---|---|---|
アパート メゾンヒガシ12B(1LDK/2階) | |||||||
![]() | 6.2万円 2,000円 | なし なし | 1LDK 40.92m2 | 築27年 | 茨城県つくば市東 | 詳細を見る | |
マンション SHELL ROOM(3LDK/5階) | |||||||
![]() | 9万円 3,000円 | なし なし | 3LDK 80.5m2 | 築24年 | つくばエクスプレス つくば駅 徒歩69分 茨城県つくば市花畑 | 詳細を見る | |
アパート コスタII(1LDK/1階) | |||||||
![]() | 6.1万円 2,900円 | なし 6.1万円 | 1LDK 50.52m2 | 築3年 | JR常磐線 荒川沖駅 徒歩18分 JR常磐線 ひたち野うしく駅 徒歩56分 JR常磐線 土浦駅 徒歩75分 茨城県土浦市中村南 | 詳細を見る | |
マンション プリムローズ(2LDK/1階) | |||||||
![]() | 9.3万円 5,000円 | なし 9.3万円 | 2LDK 55.6m2 | 築12年 | つくばエクスプレス 研究学園駅 徒歩35分 つくばエクスプレス つくば駅 徒歩43分 つくばエクスプレス 万博記念公園駅(茨城) 徒歩80分 茨城県つくば市 | 詳細を見る | |
アパート CASA LIGIERII(1LDK/2階) | |||||||
![]() | 6.7万円 3,000円 | なし なし | 1LDK 43.34m2 | 築10年 | つくばエクスプレス つくば駅 徒歩21分 茨城県つくば市天久保 | 詳細を見る | |
アパート SPINEL A棟(2LDK/1階) | |||||||
![]() | 9.4万円 6,000円 | なし 18.8万円 | 2LDK 50.68m2 | 新築 | つくばエクスプレス 研究学園駅 徒歩44分 茨城県つくば市東光台1丁目 | 詳細を見る | |
アパート つくば市倉掛 (1LDK/2階) | |||||||
![]() | 7.1万円 4,000円 | 7.1万円 なし | 1LDK 42.23m2 | 新築 | つくばエクスプレス つくば駅 徒歩28分 茨城県つくば市倉掛 | 詳細を見る | |
アパート ブリッサ(1LDK/2階) | |||||||
![]() | 6.8万円 2,900円 | なし 6.8万円 | 1LDK 46.54m2 | 築2年 | JR常磐線 神立駅 徒歩9分 茨城県かすみがうら市稲吉 | 詳細を見る | |







/105x80-f1-q70-wp1)
