賃貸マンション
エースタンダード芝浦の賃貸物件情報(1K/3階)
| 家賃 | 管理費等 | 敷金 | 礼金 | 間取り | 専有面積 |
|---|---|---|---|---|---|
| 13万円 | 8,000円 | 13万円 | 13万円 | 1K | 25.5m2 |
入居決定でお祝い金最大100,000円
- 保証金
- -
- 償却・敷引
- -
- 築年数
- 築10年
- 所在階
- 3階
- 向き
- 東
Point
ディンプルキーなので一般的なシリンダーキーに比べて防犯性が高く、ピッキング対策に効果的です。デザイン性の高いシステムキッチン。料理好きな方におすすめです。2駅利用可の好アクセス環境です。
提供:恵比寿不動産 (株)ライフアドバンス(SUUMO経由)

詳細情報 エースタンダード芝浦
物件紹介
エースタンダード芝浦は新交通ゆりかもめ芝浦ふ頭駅から徒歩3分にあり、駅近で通勤通学に便利なマンションです。
このお部屋は2階以上に位置しているので、通行人や周囲の住人からの視線が気になりにくく、防犯面でも安心。建物のエントランスはオートロックがついており、インターホンにはTVモニタもついているため、相手の顔を確認してから来客対応することができます。
フローリングのお部屋なのでお掃除もラクラク。キッチンはシステムキッチン仕様になっていますので、お料理好きの方にもぴったり。バス・トイレは別なので、のんびりお風呂タイムも楽しめるでしょう。また、雨の日でも浴室乾燥機を使えば、お洗濯も問題ありません。
通信設備面では、インターネットが無料で使えるので、月々の出費を抑えられるのも魅力です。また、BSアンテナ・CSアンテナがありCATVにも対応しているので、おうち時間も充実するでしょう(別途工事、BS・CS・CATVの契約料等が必要な場合あり)。
建物にはエレベーターがついているので、重い荷物があっても安心。共用部には宅配ボックスが設定されているので、不在の時にも荷物を受け取ることができます。
このお部屋は2階以上に位置しているので、通行人や周囲の住人からの視線が気になりにくく、防犯面でも安心。建物のエントランスはオートロックがついており、インターホンにはTVモニタもついているため、相手の顔を確認してから来客対応することができます。
フローリングのお部屋なのでお掃除もラクラク。キッチンはシステムキッチン仕様になっていますので、お料理好きの方にもぴったり。バス・トイレは別なので、のんびりお風呂タイムも楽しめるでしょう。また、雨の日でも浴室乾燥機を使えば、お洗濯も問題ありません。
通信設備面では、インターネットが無料で使えるので、月々の出費を抑えられるのも魅力です。また、BSアンテナ・CSアンテナがありCATVにも対応しているので、おうち時間も充実するでしょう(別途工事、BS・CS・CATVの契約料等が必要な場合あり)。
建物にはエレベーターがついているので、重い荷物があっても安心。共用部には宅配ボックスが設定されているので、不在の時にも荷物を受け取ることができます。
お金・契約の情報
※「-」と表示されているものは、実際は料金が発生するものもございます。詳細はお問い合わせください。
| 家賃 | 13万円 | 管理費・共益費 | 8,000円 |
|---|---|---|---|
| 敷金 | 13万円 | 礼金 | 13万円 |
| 入居決定でお祝い金最大100,000円 | |||
| 保証金 | - | 償却・敷引 | - |
| 住宅保険料 | - | 更新料 | - |
| 保証会社利用 | 必須 | 保証会社名 | - |
| 保証会社費用 | - | 保証会社備考 | 保証会社利用必 初回40%,更新1万円/年,月額15万円以上は1.4万円/年 |
| 契約形態 | - | 契約期間 | - |
| 入居・引渡期間 | 相談 | 現況 | - |
| 契約備考 | ゆりかもめ日の出駅徒歩12分 合計7.26万円(内訳:鍵交換代:16500円/室内清掃費用:39600円/鍵発行手数料:16500円) 更新料新賃料(ヶ月):1.00ヶ月 1K 普通借家2年 損保【1.8万円2年】 バストイレ別、バルコニー、エアコン、ガスコンロ対応、フローリング、TVインターホン、浴室乾燥機、オートロック、室内洗濯置、システムキッチン、温水洗浄便座、エレベーター、洗面所独立、2口コンロ、宅配ボックス、CATV、BS・CS、敷金1ヶ月、全居室フローリング、2沿線利用可、ディンプルキー、ネット専用回線、ネット使用料不要、エアコン全室、保証金不要、2駅利用可、駅徒歩5分以内、都市ガス、礼金1ヶ月 | ||
部屋の情報
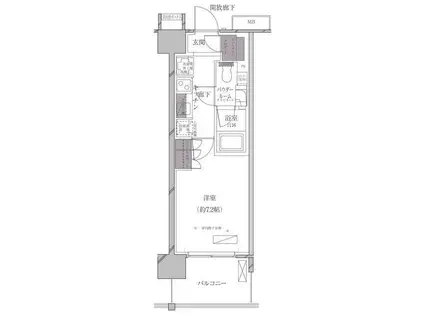
| 間取り | 1K | 専有面積 | 25.5m2 |
|---|---|---|---|
| 所在階 / 向き | 3階 / 東 | バルコニー面積 | - |
| 水道 / ガス | - | ||
| 設備 | バス・トイレ別、2階以上、オートロック、テレビドアホン、宅配ボックス、浴室乾燥機、インターネット対応、システムキッチン、エアコン、エレベーター、温水洗浄便座、バルコニー、フローリング、洗髪洗面化粧台、2口コンロ、コンロ:ガス、CATV、CSアンテナ、BSアンテナ、インターネット使用料無料、洗濯機:室内 | ||
| 当社物件ID | 160180969 | ||
建物の情報
| 建物名 | エースタンダード芝浦 | ||
|---|---|---|---|
| 所在地 | 東京都港区海岸 | ||
| 交通 | 新交通ゆりかもめ 芝浦ふ頭駅 徒歩3分 JR京浜東北線 田町駅(東京) 徒歩13分 都営三田線 三田駅(東京) 徒歩13分 | ||
| 階数 | 12階建 | 総戸数 | - |
| 築年月 | 2017年01月 / 築10年 | エレベーター | あり |
| 駐車場 | 空有 44000円 | バイク置き場 | - |
| 駐輪場 | - | 管理人/管理会社 | - |
| 周辺環境 | その他 ムスブ田町SHOPS&REASTAURANTS(ショッピングセンター)まで820m その他 まいばすけっと海岸3丁目店(スーパー)まで110m その他 ピーコックストア芝浦アイランド店(スーパー)まで590m その他 ジュンマート(コンビニ)まで50m その他 ファミリーマート海岸三丁目店(コンビニ)まで60m その他 ムスブ田町SHOPS&RESTAURANTS(ショッピングセンター)まで830m | ||
| 建物種別 | マンション | 建物構造 | RC(鉄筋コンクリート) |
この部屋の取扱い不動産会社
| 会社名 | 恵比寿不動産 都心チーム(株)ライフアドバンス(SUUMO経由) | ||
|---|---|---|---|
| 所在地 | 東京都渋谷区東3-25-11 TOKYUREIT恵比寿ビル4階 | 交通 | - |
| 営業時間 | 10時~19時 | 定休日 | 水曜日 |
| 免許番号 | 東京都知事97301 | 取引態様 | 仲介 |
| 不動産会社管理番号 | 100481786724 | 当社管理番号 | 89 |
| 所属団体 | (公社)全日本不動産協会東京都本部会員 | ||
| 公正取引協議会 | (公社)首都圏不動産公正取引協議会加盟 | ||
| 取扱い物件情報 | 物件詳細へ | ||
※各種情報と現状に差異がある場合は、現状優先となります。問い合わせをすることで、より詳しい条件、情報を確認する事ができます。
提供:恵比寿不動産 都心チーム(株)ライフアドバンス(SUUMO経由)
この物件が気になったら掲載期限まであと10日
エースタンダード芝浦に条件(家賃・エリア)が近い物件一覧
| 写真 | 家賃 管理費等 | 敷金 礼金 | 間取り 専有面積 | 築年数 | 最寄り駅 所在地 | キープ | 詳細 |
|---|---|---|---|---|---|---|---|
マンション CASA KEITO カーサ ケイト(1LDK/9階) | |||||||
![]() | 17.7万円 1.3万円 | 17.7万円 17.7万円 | 1LDK 40.47m2 | 築8年 | 都営浅草線 東日本橋駅 徒歩3分 都営新宿線 浜町駅 徒歩4分 JR総武線快速 馬喰町駅 徒歩8分 東京都中央区東日本橋 | 詳細を見る | |
マンション T&G神田マンション(1K/13階) | |||||||
![]() | 12.9万円 6,000円 | 12.9万円 12.9万円 | 1K 26.52m2 | 築22年 | 総武本線 新日本橋駅 徒歩3分 山手線 神田駅(東京) 徒歩6分 東京都千代田区神田美倉町 | 詳細を見る | |
マンション パークキューブ神田(1K/10階) | |||||||
![]() | 15.3万円 1万円 | 15.3万円 15.3万円 | 1K 30.7m2 | 築21年 | 東京都新宿線 岩本町駅 徒歩3分 中央本線 神田駅(東京) 徒歩3分 山手線 秋葉原駅 徒歩6分 東京都千代田区神田須田町2丁目 | 詳細を見る | |
マンション ミリアレジデンス品川中延(ワンルーム/3階) | |||||||
![]() | 10.9万円 1.2万円 | なし 10.9万円 | ワンルーム 21.56m2 | 築4年 | 都営浅草線 中延駅 徒歩7分 湘南新宿ライン宇須 西大井駅 徒歩8分 東京都品川区二葉 | 詳細を見る | |
マンション ZOOM東陽町(1K/15階) | |||||||
![]() | 12万円 1万円 | 12万円 12万円 | 1K 30.22m2 | 築10年 | 東京地下鉄東西線 東陽町駅 徒歩5分 東京都江東区東陽3丁目 | 詳細を見る | |
マンション レガリス清澄白河ブロッサム(1K/8階) | |||||||
![]() | 12万円 1万円 | 12万円 12万円 | 1K 25.63m2 | 築11年 | 東京地下鉄半蔵門線 清澄白河駅 徒歩4分 東京地下鉄東西線 門前仲町駅 徒歩8分 東京都大江戸線 門前仲町駅 徒歩8分 東京都江東区清澄2丁目 | 詳細を見る | |
マンション ハーモニーレジデンス東京イーストガーデン(2K/4階) | |||||||
![]() | 12.2万円 1.8万円 | なし なし | 2K 26.57m2 | 築8年 | 総武・中央緩行線 亀戸駅 徒歩8分 東京都新宿線 西大島駅 徒歩10分 総武本線 錦糸町駅 徒歩14分 東京都江東区亀戸1丁目 | 詳細を見る | |
マンション エスティメゾン大島(1LDK/15階) | |||||||
![]() | 17.7万円 1.2万円 | 17.7万円 17.7万円 | 1LDK 44.4m2 | 築19年 | 都営新宿線 大島駅(東京) 徒歩2分 都営新宿線 西大島駅 徒歩12分 都営新宿線 東大島駅 徒歩15分 東京都江東区大島 | 詳細を見る | |








