賃貸マンション
かなやまビルの賃貸物件情報(3DK/3階)
| 家賃 | 管理費等 | 敷金 | 礼金 | 間取り | 専有面積 |
|---|---|---|---|---|---|
| 7.5万円 | なし | 15万円 | 7.5万円 | 3DK | 71.28m2 |
入居決定でお祝い金最大100,000円
- 保証金
- -
- 償却・敷引
- -
- 築年数
- 築34年
- 所在階
- 3階
- 向き
- 南
Point
JR・市内電停4分、アルパーク6分1フロアー1戸。ベランダ広々南と北にあります。
提供:(株)井口不動産(SUUMO経由)

詳細情報 かなやまビル
物件紹介
かなやまビルはJR山陽本線新井口駅から徒歩4分にあり、駅近で通勤通学に便利なマンションです。
このお部屋は2階以上に位置しているので、通行人や周囲の住人からの視線が気になりにくく、防犯面でも安心です。
人気の南向き・フローリングのお部屋。角部屋でもあるため、周囲の居住者の生活音も気になりにくい場所です。バス・トイレ別の仕様で、のんびりお風呂タイムも楽しめます。
ペット飼育の相談ができますので、あなたの大切な家族の一員も快適に暮らせるか、ぜひ確認してみてください。
このお部屋は2階以上に位置しているので、通行人や周囲の住人からの視線が気になりにくく、防犯面でも安心です。
人気の南向き・フローリングのお部屋。角部屋でもあるため、周囲の居住者の生活音も気になりにくい場所です。バス・トイレ別の仕様で、のんびりお風呂タイムも楽しめます。
ペット飼育の相談ができますので、あなたの大切な家族の一員も快適に暮らせるか、ぜひ確認してみてください。
お金・契約の情報
※「-」と表示されているものは、実際は料金が発生するものもございます。詳細はお問い合わせください。
| 家賃 | 7.5万円 | 管理費・共益費 | なし |
|---|---|---|---|
| 敷金 | 15万円 | 礼金 | 7.5万円 |
| 入居決定でお祝い金最大100,000円 | |||
| 保証金 | - | 償却・敷引 | - |
| 住宅保険料 | - | 更新料 | - |
| 保証会社利用 | 必須 | 保証会社名 | 全保連 |
| 保証会社費用 | - | 保証会社備考 | 全保連利用必 保証料は、契約時初回のみのタイプと、初回賃料50パーセント+毎年更新料必須タイプのいずれかを選択していただきます |
| 契約形態 | - | 契約期間 | - |
| 入居・引渡期間 | 即時 | 現況 | - |
| 入居可能条件 | 事務所可、ペット相談 | ||
| 契約備考 | JR市内電停まで320m/市電徒歩まで320m/1F事務所/リフォーム:西暦2023年03月お風呂・キッチン・換気扇を新しくしました/弊社管理物件 3DK ペット相談/事務所利用相談/ルームシェア相談 損保【2万円2年】 バストイレ別、ガスコンロ対応、陽当り良好、南向き、角住戸、脱衣所、洗面所独立、洗面化粧台、駐輪場、押入、閑静な住宅地、最上階、ペット相談、駐車場1台無料、二人入居相談、バイク置場、2面バルコニー、3面採光、2沿線利用可、駅まで平坦、キッチンに窓、浴室に窓、事務所相談、1フロア1住戸、平坦地、ルームシェア相談、南面リビング、一部フローリング、両面バルコニー、3方角住戸、2駅利用可、駅徒歩5分以内、上階無し、平面駐車場、当社管理物件、和室8畳以上、都市ガス、ワイドバルコニー、南面バルコニー | ||
部屋の情報
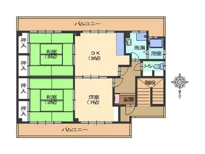
| 間取り | 3DK | 専有面積 | 71.28m2 |
|---|---|---|---|
| 所在階 / 向き | 3階 / 南 | バルコニー面積 | - |
| 水道 / ガス | - | ||
| 設備 | バス・トイレ別、2階以上、南向き、角部屋、バルコニー、フローリング、洗髪洗面化粧台、コンロ:ガス | ||
| 当社物件ID | 126745517 | ||
建物の情報
| 建物名 | かなやまビル | ||
|---|---|---|---|
| 所在地 | 広島県広島市西区井口 | ||
| 交通 | JR山陽本線 新井口駅 徒歩4分 広島電鉄宮島線 商工センター入口駅 徒歩4分 広島電鉄宮島線 井口駅(広島) 徒歩8分 | ||
| 階数 | 3階建 | 総戸数 | 3戸 |
| 築年月 | 1992年10月 / 築34年 | エレベーター | - |
| 駐車場 | 空有 付無料 | バイク置き場 | あり |
| 駐輪場 | あり | 管理人/管理会社 | - |
| 周辺環境 | その他 井口公園(公園)まで450m その他 おおすみストアー(スーパー)まで290m その他 ウォンツ(ドラッグストア)まで800m その他 アルパーク(ショッピングセンター)まで480m その他 井口小学校(小学校)まで750m その他 井口郵便局(郵便局)まで400m | ||
| 建物種別 | マンション | 建物構造 | RC(鉄筋コンクリート) |
この部屋の取扱い不動産会社
| 会社名 | (株)井口不動産(SUUMO経由) | ||
|---|---|---|---|
| 所在地 | 広島県広島市西区井口1-5-12 | 交通 | - |
| 営業時間 | AM9:00~PM6:00 | 定休日 | 日曜・祝日 |
| 免許番号 | 広島県知事2286 | 取引態様 | 仲介 |
| 不動産会社管理番号 | 100427066329 | 当社管理番号 | 89 |
| 所属団体 | (公社)広島県宅地建物取引業協会会員 | ||
| 公正取引協議会 | 中国地区不動産公正取引協議会加盟 | ||
| 取扱い物件情報 | 物件詳細へ | ||
※各種情報と現状に差異がある場合は、現状優先となります。問い合わせをすることで、より詳しい条件、情報を確認する事ができます。
提供:(株)井口不動産(SUUMO経由)
この物件が気になったら掲載期限まであと10日
かなやまビルに条件(家賃・エリア)が近い物件一覧
| 写真 | 家賃 管理費等 | 敷金 礼金 | 間取り 専有面積 | 築年数 | 最寄り駅 所在地 | キープ | 詳細 |
|---|---|---|---|---|---|---|---|
一戸建て 広島県山県郡北広島町 築30年(3LDK) | |||||||
![]() | 6万円 なし | 18万円 6万円 | 3LDK 89.34m2 | 築30年 | 広島県山県郡北広島町中祖 | 詳細を見る | |
一戸建て 山陽本線 西広島駅 徒歩24分 築49年(3DK) | |||||||
![]() | 4.5万円 なし | 13.5万円 なし | 3DK 70.38m2 | 築49年 | 山陽本線 西広島駅 徒歩24分 可部線 三滝駅 徒歩37分 広島電鉄宮島線 広電西広島駅(己斐) 徒歩43分 広島県広島市西区己斐大迫3丁目 | 詳細を見る | |
一戸建て 広島県廿日市市 築23年(4SLDK) | |||||||
![]() | 9万円 なし | 27万円 9万円 | 4SLDK 128.34m2 | 築23年 | 広島県廿日市市四季が丘2丁目 | 詳細を見る | |
マンション カーサ佐伯(4LDK/2階) | |||||||
![]() | 10万円 なし | 30万円 なし | 4LDK 83.88m2 | 築33年 | 広島電鉄宮島線 高須駅(広島) 徒歩3分 広島県広島市西区高須1丁目 | 詳細を見る | |
マンション ESSOR・K(1K/3階) | |||||||
![]() | 4.5万円 なし | 4.5万円 なし | 1K 24.08m2 | 築32年 | アストラムライン 城北駅 徒歩8分 山陽本線 新白島駅(JR) 徒歩11分 広島県広島市西区楠木町1丁目 | 詳細を見る | |






