賃貸アパート
グランドール西志津Bの賃貸物件情報(2LDK/2階)
| 家賃 | 管理費等 | 敷金 | 礼金 | 間取り | 専有面積 |
|---|---|---|---|---|---|
| 6.5万円 | 2,000円 | 13万円 | なし | 2LDK | 49.99m2 |
入居決定でお祝い金最大100,000円
Point
生活便利で人気の西志津1丁目!! スーパーやコンビニが歩いて5分以内にあり、駅まで平坦なので通勤通学の際も楽に通えます。
提供:(株)三藤不動産(SUUMO経由)

詳細情報 グランドール西志津B
物件紹介
グランドール西志津Bは京成本線志津駅から徒歩8分にあり、駅近で通勤通学に便利なアパートです。
このお部屋は2階以上に位置しているので、通行人や周囲の住人からの視線が気になりにくく、防犯面でも安心です。
人気の南向きのお部屋。角部屋でもあるため、周囲の居住者の生活音も気になりにくい場所です。バス・トイレ別の仕様で、のんびりお風呂タイムも楽しめます。
このお部屋は2階以上に位置しているので、通行人や周囲の住人からの視線が気になりにくく、防犯面でも安心です。
人気の南向きのお部屋。角部屋でもあるため、周囲の居住者の生活音も気になりにくい場所です。バス・トイレ別の仕様で、のんびりお風呂タイムも楽しめます。
お金・契約の情報
※「-」と表示されているものは、実際は料金が発生するものもございます。詳細はお問い合わせください。
| 家賃 | 6.5万円 | 管理費・共益費 | 2,000円 |
|---|---|---|---|
| 敷金 | 13万円 | 礼金 | なし |
| 入居決定でお祝い金最大100,000円 | |||
| 保証金 | - | 償却・敷引 | - |
| 住宅保険料 | - | 更新料 | - |
| 保証会社利用 | 必須 | 保証会社名 | 日本セーフティー |
| 保証会社費用 | - | 保証会社備考 | 日本セーフティー利用必 初回(保証人有りの場合) 28,000円 1年毎、更新料 10,000円 |
| 契約形態 | - | 契約期間 | - |
| 入居・引渡期間 | 相談 | 現況 | - |
| 契約備考 | 2LDK 普通借家2年 損保【2.5万円2年】 バストイレ別、バルコニー、エアコン、クロゼット、陽当り良好、シューズボックス、南向き、角住戸、脱衣所、洗面所独立、洗面化粧台、駐輪場、押入、閑静な住宅地、駅まで平坦、敷金2ヶ月、緑豊かな住宅地、浴室に窓、平坦地、南面リビング、外壁サイディング、間口10m以上、平面駐車場、LDK12畳以上、和室、全居室6畳以上、都市ガス、シャッター、通風良好 | ||
部屋の情報
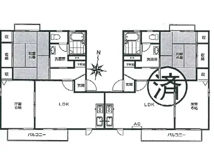
| 間取り | 2LDK | 専有面積 | 49.99m2 |
|---|---|---|---|
| 所在階 / 向き | 2階 / 南 | バルコニー面積 | - |
| 水道 / ガス | - | ||
| 設備 | バス・トイレ別、2階以上、エアコン、南向き、角部屋、バルコニー、洗髪洗面化粧台 | ||
| 当社物件ID | 100911230 | ||
建物の情報
| 建物名 | グランドール西志津B | ||
|---|---|---|---|
| 所在地 | 千葉県佐倉市西志津 | ||
| 交通 | 京成本線 志津駅 徒歩8分 京成本線 勝田台駅 徒歩15分 | ||
| 階数 | 2階建 | 総戸数 | 4戸 |
| 築年月 | 1999年04月 / 築27年 | エレベーター | - |
| 駐車場 | 空有 22000円 | バイク置き場 | - |
| 駐輪場 | あり | 管理人/管理会社 | - |
| 周辺環境 | その他 マルエツ新志津店(スーパー)まで314m その他 ローソン佐倉西志津一丁目店(コンビニ)まで157m その他 佐倉市立西志津中学校(中学校)まで726m その他 佐倉市立西志津小学校(小学校)まで1353m その他 佐倉市立志津保育園(幼稚園・保育園)まで423m その他 佐倉西志津郵便局(郵便局)まで214m | ||
| 建物種別 | アパート | 建物構造 | 軽量鉄骨造 |
この部屋の取扱い不動産会社
| 会社名 | (株)三藤不動産(SUUMO経由) | ||
|---|---|---|---|
| 所在地 | 千葉県佐倉市上志津 1660-20 | 交通 | - |
| 営業時間 | 09:00~18:00 | 定休日 | 水曜日・第三火曜日 |
| 免許番号 | 千葉県知事3817 | 取引態様 | 仲介 |
| 不動産会社管理番号 | 100239241150 | 当社管理番号 | 89 |
| 所属団体 | (一社)千葉県宅地建物取引業協会会員 | ||
| 公正取引協議会 | (公社)首都圏不動産公正取引協議会加盟 | ||
| 取扱い物件情報 | 物件詳細へ | ||
※各種情報と現状に差異がある場合は、現状優先となります。問い合わせをすることで、より詳しい条件、情報を確認する事ができます。
提供:(株)三藤不動産(SUUMO経由)
この物件が気になったら掲載期限まであと10日
グランドール西志津Bに条件(家賃・エリア)が近い物件一覧
| 写真 | 家賃 管理費等 | 敷金 礼金 | 間取り 専有面積 | 築年数 | 最寄り駅 所在地 | キープ | 詳細 |
|---|---|---|---|---|---|---|---|
アパート FLAT八千代村上(1LDK/1階) | |||||||
![]() | 6.3万円 5,000円 | なし なし | 1LDK 30.06m2 | 築1年 | 東葉高速鉄道 村上駅(千葉) 徒歩6分 京成本線 勝田台駅 徒歩16分 東葉高速鉄道 東葉勝田台駅 徒歩16分 千葉県八千代市村上 | 詳細を見る | |
アパート GRACE宮野木(3DK/2階) | |||||||
![]() | 5.2万円 4,000円 | なし なし | 3DK 54m2 | 築33年 | 千葉県千葉市稲毛区宮野木町 | 詳細を見る | |
マンション QUATRE SAISON(1DK/6階) | |||||||
![]() | 7.5万円 5,000円 | なし なし | 1DK 29.29m2 | 築10年 | JR総武本線 東千葉駅 徒歩10分 京成千葉線 千葉中央駅 徒歩10分 JR総武線 千葉駅 徒歩18分 千葉県千葉市中央区本町 | 詳細を見る | |
アパート ロジュマンマエバラD(2DK/1階) | |||||||
![]() | 6.9万円 5,500円 | なし 1万円 | 2DK 50.42m2 | 築21年 | 千葉都市モノレール みつわ台駅 徒歩4分 JR総武本線 都賀駅 徒歩23分 千葉県千葉市若葉区みつわ台 | 詳細を見る | |
マンション モヌメントTY(1K/2階) | |||||||
![]() | 7.1万円 4,800円 | 7.1万円 なし | 1K 27.52m2 | 築19年 | JR総武線 稲毛駅 徒歩5分 京成千葉線 京成稲毛駅 徒歩12分 千葉都市モノレール 穴川駅(千葉) 徒歩20分 千葉県千葉市稲毛区小仲台 | 詳細を見る | |
アパート リーフガーデンⅠ(2LDK/2階) | |||||||
![]() | 6.5万円 2,300円 | なし 8.13万円 | 2LDK 58.86m2 | 築18年 | JR外房線 誉田駅 徒歩11分 千葉県千葉市緑区誉田町 | 詳細を見る | |
アパート PARK HILLS MIYAKO(1LDK/1階) | |||||||
![]() | 8万円 6,000円 | なし 4万円 | 1LDK 40.9m2 | 築11年 | 千葉都市モノレール 桜木駅(千葉) 徒歩33分 JR総武線快速 千葉駅 徒歩42分 千葉県千葉市中央区都町 | 詳細を見る | |
アパート サニーヒルズIIIIIIV(2LDK/2階) | |||||||
![]() | 9.9万円 5,500円 | なし 9.9万円 | 2LDK 61.47m2 | 築13年 | 千葉都市モノレール 穴川駅(千葉) 徒歩9分 JR総武線 稲毛駅 徒歩21分 千葉県千葉市稲毛区園生町 | 詳細を見る | |








