賃貸マンション
プレサンス北浜オリジンの賃貸物件情報(1LDK/12階)
| 家賃 | 管理費等 | 敷金 | 礼金 | 間取り | 専有面積 |
|---|---|---|---|---|---|
| 12.423万円 | 1.277万円 | なし | 15万円 | 1LDK | 32.33m2 |
入居決定でお祝い金最大100,000円
Point
ファミリーマート カツラギ瓦町店まで徒歩4分と近場にコンビニがあるのもポイント。築6年の物件。多くの方にご好評をいただいている、清潔感のある賃貸物件です。駅まで徒歩5分の位置に立地する、アクセス良好な物件です。毎日の暮らしを輝かせる、素敵なお部屋を探しませんか。大阪市中央区エリアや地下鉄堺筋線北浜付
提供:HOUSE LIST 心斎橋

詳細情報 プレサンス北浜オリジン
物件紹介
プレサンス北浜オリジンは大阪市堺筋線北浜駅から徒歩5分にあり、駅近で通勤通学に便利なマンションです。
このお部屋は2階以上に位置しているので、通行人や周囲の住人からの視線が気になりにくく、防犯面でも安心。建物のエントランスはオートロックがついており、インターホンにはTVモニタもついているため、相手の顔を確認してから来客対応することができます。
おしゃれなデザイナーズ物件!フローリングのお部屋なのでお掃除もラクラク。キッチンはシステムキッチン仕様になっていますので、お料理好きの方にもぴったり。バス・トイレは別なので、のんびりお風呂タイムも楽しめるでしょう。また、雨の日でも浴室乾燥機を使えば、お洗濯も問題ありません。
通信設備面では、インターネット接続が可能です。また、BSアンテナがありCATVにも対応しているので、おうち時間も充実するでしょう(別途工事、契約料が必要な場合あり)。
建物にはエレベーターがついているので、重い荷物があっても安心。共用部には宅配ボックスが設定されているので、不在の時にも荷物を受け取ることができます。
コンビニまで徒歩4分の場所にあり、日用品や食料品のお買い物にも便利です。
このお部屋は2階以上に位置しているので、通行人や周囲の住人からの視線が気になりにくく、防犯面でも安心。建物のエントランスはオートロックがついており、インターホンにはTVモニタもついているため、相手の顔を確認してから来客対応することができます。
おしゃれなデザイナーズ物件!フローリングのお部屋なのでお掃除もラクラク。キッチンはシステムキッチン仕様になっていますので、お料理好きの方にもぴったり。バス・トイレは別なので、のんびりお風呂タイムも楽しめるでしょう。また、雨の日でも浴室乾燥機を使えば、お洗濯も問題ありません。
通信設備面では、インターネット接続が可能です。また、BSアンテナがありCATVにも対応しているので、おうち時間も充実するでしょう(別途工事、契約料が必要な場合あり)。
建物にはエレベーターがついているので、重い荷物があっても安心。共用部には宅配ボックスが設定されているので、不在の時にも荷物を受け取ることができます。
コンビニまで徒歩4分の場所にあり、日用品や食料品のお買い物にも便利です。
お金・契約の情報
※「-」と表示されているものは、実際は料金が発生するものもございます。詳細はお問い合わせください。
| 家賃 | 12.423万円 | 管理費・共益費 | 1.277万円 |
|---|---|---|---|
| 敷金 | なし | 礼金 | 15万円 |
| 入居決定でお祝い金最大100,000円 | |||
| 保証金 | - | 償却・敷引 | - |
| 住宅保険料 | 住宅保険料あり(1年) | 更新料 | 1.1万円 |
| 保証会社利用 | 必須 | 保証会社名 | - |
| 保証会社費用 | - | 保証会社備考 | プレサンスギャランティ 初回50% 更新料1.5%/月 |
| 契約形態 | - | 契約期間 | 1年 |
| 入居・引渡期間 | 相談 | 現況 | 居住中 |
| 契約備考 | ローソン 安土町二丁目店まで徒歩5分と近場にコンビニがあるのもポイント。築6年の設備が充実した物件です。多くの方にご好評をいただいている、清潔感のある賃貸物件です。駅まで5分と、駅近でアクセスも良好な物件です。大阪市中央区に特化した当社は、確かな地域情報と豊富な賃貸情報を取り扱っています。知識をあまりお持ちでない方にも親切にサポートいたしますので、ぜひお部屋探しは当社にお任せください(^o^) | ||
部屋の情報
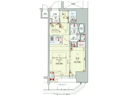
| 間取り | 1LDK | 専有面積 | 32.33m2 |
|---|---|---|---|
| 間取り詳細 | LDK(8.5帖)、洋室(4帖) | ||
| 所在階 / 向き | 12階 / 西 | バルコニー面積 | 5m2 |
| 水道 / ガス | 水道【公営】、ガス【都市】 | ||
| 設備 | バス・トイレ別、オートロック、テレビドアホン、宅配ボックス、浴室乾燥機、インターネット対応、システムキッチン、カウンターキッチン、エアコン、エレベーター、温水洗浄便座、バルコニー、フローリング、洗髪洗面化粧台、2口コンロ、コンロ:ガス、デザイナーズ、CATV、BSアンテナ、シャワー、洗濯機:室内、タイル張り | ||
| 当社物件ID | 30661619 | ||
建物の情報
| 建物名 | プレサンス北浜オリジン | ||
|---|---|---|---|
| 所在地 | 大阪府大阪市中央区瓦町1丁目- | ||
| 交通 | 大阪市堺筋線 北浜駅(大阪) 徒歩5分 大阪市中央線 堺筋本町駅 徒歩5分 | ||
| 階数 | 15階建 | 総戸数 | 56戸 |
| 築年月 | 2019年09月 / 築7年 | エレベーター | あり |
| 駐車場 | - | バイク置き場 | - |
| 駐輪場 | あり | 管理人/管理会社 | - |
| 周辺環境 | コンビニ 徒歩4分(259m) 販売店 徒歩9分(720m) | ||
| 建物種別 | マンション | 建物構造 | RC(鉄筋コンクリート) |
この部屋の取扱い不動産会社
| 会社名 | HOUSE LIST 心斎橋 | ||
|---|---|---|---|
| 所在地 | 大阪府大阪市中央区南船場4-5-3 戎心斎橋ビル1F | 交通 | 御堂筋線 心斎橋駅 3番出口1分 |
| 営業時間 | 10時~21時 | 定休日 | なし |
| 免許番号 | 大阪府知事(1)60296 | 取引態様 | 仲介 |
| 不動産会社管理番号 | 336617 | 当社管理番号 | 405 |
| 取扱い物件情報 | 物件詳細へ | ||
※各種情報と現状に差異がある場合は、現状優先となります。問い合わせをすることで、より詳しい条件、情報を確認する事ができます。
提供:HOUSE LIST 心斎橋
この物件が気になったら掲載期限まであと4日
プレサンス北浜オリジンに条件(家賃・エリア)が近い物件一覧
| 写真 | 家賃 管理費等 | 敷金 礼金 | 間取り 専有面積 | 築年数 | 最寄り駅 所在地 | キープ | 詳細 |
|---|---|---|---|---|---|---|---|
アパート 南海電鉄泉北線 深井駅 徒歩20分 築15年(2LDK/1階) | |||||||
![]() | 8.8万円 6,500円 | なし 14万円 | 2LDK 55.2m2 | 築15年 | 南海電鉄泉北線 深井駅 徒歩20分 南海電鉄高野線 初芝駅 徒歩37分 南海電鉄高野線 萩原天神駅 徒歩39分 大阪府堺市中区深井畑山町 | 詳細を見る | |
マンション プレサンス梅田東アルファ(1DK/6階) | |||||||
| 9.3万円 1万円 | なし 9.3万円 | 1DK 31.2m2 | 築12年 | 京阪電鉄中之島線 なにわ橋駅 徒歩6分 大阪市堺筋線 北浜駅(大阪) 徒歩8分 大阪市谷町線 南森町駅 徒歩10分 大阪府大阪市北区西天満4丁目1-14 | 詳細を見る | ||
マンション シャーメゾン ワイズベル(2LDK/1階) | |||||||
![]() | 12.5万円 1.1万円 | 2万円 25万円 | 2LDK 61m2 | 築1年 | 南海電鉄南海本線 諏訪ノ森駅 徒歩2分 阪堺電気軌道阪堺線 船尾駅(大阪) 徒歩5分 南海電鉄南海本線 石津川駅 徒歩15分 大阪府堺市西区浜寺諏訪森町西2丁 | 詳細を見る | |
マンション アルテーヌ浜寺元町(2LDK/3階) | |||||||
![]() | 14万円 1.2万円 | 2万円 29万円 | 2LDK 67m2 | 新築 | 南海電鉄南海本線 浜寺公園駅 徒歩12分 南海電鉄南海本線 諏訪ノ森駅 徒歩15分 南海電鉄南海本線 羽衣駅 徒歩19分 大阪府堺市西区浜寺元町3丁 | 詳細を見る | |
マンション ディームス江坂(1K/3階) | |||||||
| 8.5万円 1万円 | なし なし | 1K 24.8m2 | 築9年 | 北大阪急行南北線 江坂駅 徒歩6分 阪急電鉄宝塚線 庄内駅(大阪) 徒歩27分 阪急電鉄千里線 豊津駅(大阪) 徒歩28分 大阪府吹田市江の木町10-3 | 詳細を見る | ||
アパート 阪和線 上野芝駅 徒歩17分 築12年(2LDK/3階) | |||||||
![]() | 9万円 7,000円 | なし 13.5万円 | 2LDK 54.23m2 | 築12年 | 阪和線 上野芝駅 徒歩17分 阪和線 津久野駅 徒歩23分 南海電鉄泉北線 深井駅 徒歩25分 大阪府堺市中区深井北町 | 詳細を見る | |
マンション ルアン緑地(3LDK/6階) | |||||||
| 13万円 8,000円 | 13万円 39万円 | 3LDK 67.52m2 | 築30年 | 北大阪急行南北線 緑地公園駅 徒歩10分 大阪市御堂筋線 江坂駅 徒歩21分 阪急電鉄宝塚線 服部天神駅 徒歩30分 大阪府吹田市江坂町4丁目28-3 | 詳細を見る | ||
マンション グランエール(3LDK/4階) | |||||||
| 12万円 1万円 | なし 24万円 | 3LDK 77.15m2 | 築26年 | 阪急電鉄千里線 南千里駅 徒歩17分 阪急電鉄千里線 千里山駅 徒歩21分 阪急電鉄千里線 関大前駅 徒歩30分 大阪府吹田市佐井寺3丁目12-3 | 詳細を見る | ||





