賃貸マンション
ビレッジハウス書写台4号棟の賃貸物件情報(3DK/2階)
| 家賃 | 管理費等 | 敷金 | 礼金 | 間取り | 専有面積 |
|---|---|---|---|---|---|
| 3.64万円 | なし | なし | なし | 3DK | 49.2m2 |
入居決定でお祝い金最大100,000円
- 保証金
- -
- 償却・敷引
- -
- 築年数
- 築63年
- 所在階
- 2階
- 向き
- 南東
Point
まずはお問い合わせ!
不動産会社は街のプロ、あなたに合った物件がきっと見つかります。
提供:ビレッジハウス・マネジメント株式会社 住まい相談センター

詳細情報 ビレッジハウス書写台4号棟
物件紹介
ビレッジハウス書写台4号棟はJR姫新線余部駅から徒歩25分にあるマンションです。
このお部屋は2階以上に位置しているので、通行人や周囲の住人からの視線が気になりにくく、防犯面でも安心。インターホンにはTVモニタもついているため、相手の顔を確認してから来客対応することができます。
人気の南向きのお部屋。また、フローリングなのでお掃除もラクラク。バス・トイレ別の仕様で、のんびりお風呂タイムも楽しめます。
通信設備面では、インターネット接続が可能です(別途工事、契約料が必要な場合あり)。
ペット飼育の相談ができますので、あなたの大切な家族の一員も快適に暮らせるか、ぜひ確認してみてください。
このお部屋は2階以上に位置しているので、通行人や周囲の住人からの視線が気になりにくく、防犯面でも安心。インターホンにはTVモニタもついているため、相手の顔を確認してから来客対応することができます。
人気の南向きのお部屋。また、フローリングなのでお掃除もラクラク。バス・トイレ別の仕様で、のんびりお風呂タイムも楽しめます。
通信設備面では、インターネット接続が可能です(別途工事、契約料が必要な場合あり)。
ペット飼育の相談ができますので、あなたの大切な家族の一員も快適に暮らせるか、ぜひ確認してみてください。
お金・契約の情報
※「-」と表示されているものは、実際は料金が発生するものもございます。詳細はお問い合わせください。
| 家賃 | 3.64万円 | 管理費・共益費 | なし |
|---|---|---|---|
| 敷金 | なし | 礼金 | なし |
| フリーレント | 1ヶ月 | ||
| 入居決定でお祝い金最大100,000円 | |||
| 保証金 | - | 償却・敷引 | - |
| 住宅保険料 | 1万円(2年) | 更新料 | - |
| 保証会社利用 | - | 保証会社名 | - |
| 保証会社費用 | - | 保証会社備考 | - |
| 契約形態 | - | 契約期間 | - |
| 入居・引渡期間 | - | 現況 | 空室 |
| 入居可能条件 | 2人入居可、高齢者相談、学生可、ペット相談 | ||
| 契約備考 | 契約種類:普通契約、24時間緊急対応、ウォシュレット、ウォームレット、洗面台 | ||
部屋の情報
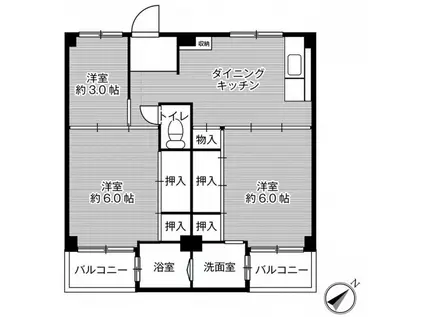
| 間取り | 3DK | 専有面積 | 49.2m2 |
|---|---|---|---|
| 所在階 / 向き | 2階 / 南東 | バルコニー面積 | - |
| 水道 / ガス | - | ||
| 設備 | バス・トイレ別、テレビドアホン、エアコン、バルコニー、給湯、洗濯機:室内 | ||
| 当社物件ID | 27768500 | ||
建物の情報
| 建物名 | ビレッジハウス書写台4号棟 | ||
|---|---|---|---|
| 所在地 | 兵庫県姫路市書写台2丁目13 | ||
| 交通 | 姫新線 余部駅 徒歩26分 姫新線 播磨高岡駅 徒歩59分 姫新線 太市駅 徒歩66分 | ||
| 階数 | 4階建 | 総戸数 | - |
| 築年月 | 1963年12月 / 築63年 | エレベーター | - |
| 駐車場 | 空有 4,950円/月 円 | バイク置き場 | - |
| 駐輪場 | - | 管理人/管理会社 | 日勤 |
| 建物種別 | マンション | 建物構造 | RC(鉄筋コンクリート) |
この部屋の取扱い不動産会社
| 会社名 | ビレッジハウス・マネジメント株式会社 住まい相談センター | ||
|---|---|---|---|
| 所在地 | 東京都港区六本木6-10-1 六本木ヒルズ森タワー44階 | 交通 | 東京メトロ日比谷線「六本木駅」 直結 |
| 営業時間 | 平日:9:00-18:30/土日祝:9:00-18:00 | 定休日 | 年中無休(年末年始を除く) |
| 免許番号 | 東京都知事(2)第100758号 | 取引態様 | 貸主 |
| 不動産会社管理番号 | 00013536280 | 当社管理番号 | 459 |
| 所属団体 | 公益社団法人東京都宅地建物取引業協会会員 日本賃貸住宅管理協会会員 | ||
| 取扱い物件情報 | 物件詳細へ | ||
※各種情報と現状に差異がある場合は、現状優先となります。問い合わせをすることで、より詳しい条件、情報を確認する事ができます。
提供:ビレッジハウス・マネジメント株式会社 住まい相談センター
この物件が気になったら掲載期限まであと12日
ビレッジハウス書写台4号棟に条件(家賃・エリア)が近い物件一覧
| 写真 | 家賃 管理費等 | 敷金 礼金 | 間取り 専有面積 | 築年数 | 最寄り駅 所在地 | キープ | 詳細 |
|---|---|---|---|---|---|---|---|
アパート ルーエン・ハイム(1LDK/2階) | |||||||
![]() | 4.7万円 3,000円 | 4.7万円 なし | 1LDK 36m2 | 築22年 | 山陽電気鉄道本線 白浜の宮駅 徒歩25分 兵庫県姫路市北原 | 詳細を見る | |
アパート 清山荘(2DK/2階) | |||||||
![]() | 3.5万円 なし | なし 3.5万円 | 2DK 45m2 | 築55年 | 山陽電鉄本線 別府駅(兵庫) 徒歩10分 山陽電鉄本線 浜の宮駅 徒歩29分 山陽電鉄本線 播磨町駅 徒歩34分 兵庫県加古川市別府町元町 | 詳細を見る | |
アパート ルミナス(ワンルーム/1階) | |||||||
![]() | 2.5万円 3,000円 | なし なし | ワンルーム 18m2 | 築35年 | 山陽電気鉄道網干線 広畑駅 徒歩13分 山陽電気鉄道網干線 夢前川駅 徒歩19分 山陽本線 はりま勝原駅 徒歩22分 兵庫県姫路市広畑区正門通1丁目 | 詳細を見る | |
一戸建て 姫新線 播磨高岡駅 徒歩17分 築57年(3K) | |||||||
![]() | 5万円 なし | なし 5万円 | 3K 61.85m2 | 築57年 | 姫新線 播磨高岡駅 徒歩17分 山陽電気鉄道本線 山陽姫路駅 徒歩30分 兵庫県姫路市神子岡前3丁目 | 詳細を見る | |
アパート ワイズコンブリオ5(ワンルーム/1階) | |||||||
![]() | 4.35万円 2,300円 | なし 4.35万円 | ワンルーム 32.9m2 | 築18年 | 山陽本線 英賀保駅 徒歩10分 兵庫県姫路市飾磨区若宮町 | 詳細を見る | |
アパート 書写アパートB(ワンルーム/3階) | |||||||
![]() | 3.1万円 なし | なし 1万円 | ワンルーム 18m2 | 築34年 | JR姫新線 余部駅 徒歩42分 兵庫県姫路市書写 | 詳細を見る | |
マンション メトレス福田Ⅰ(1DK/3階) | |||||||
![]() | 3.5万円 2,000円 | 3.5万円 3.5万円 | 1DK 32m2 | 築58年 | 播但線 福崎駅 徒歩2分 兵庫県神崎郡福崎町福田 | 詳細を見る | |
一戸建て 山陽電気鉄道網干線 平松駅 徒歩12分 築59年(2K) | |||||||
![]() | 3.8万円 2,000円 | なし なし | 2K 46.28m2 | 築59年 | 山陽電気鉄道網干線 平松駅 徒歩12分 山陽電気鉄道網干線 山陽天満駅 徒歩15分 山陽本線 はりま勝原駅 徒歩30分 兵庫県姫路市大津区長松 | 詳細を見る | |








