賃貸マンション
メインステージ横濱伊勢佐木IIの賃貸物件情報(1K/4階)
| 家賃 | 管理費等 | 敷金 | 礼金 | 間取り | 専有面積 |
|---|---|---|---|---|---|
| 7.4万円 | 1.5万円 | なし | 7.4万円 | 1K | 20.95m2 |
入居決定でお祝い金最大100,000円
- 保証金
- -
- 償却・敷引
- -
- 築年数
- 築9年
- 所在階
- 4階
- 向き
- -
Point
インターネット使用料無料・ペット飼育相談可のデザイナーズ分譲賃貸マンション。横浜橋通商店街近く買い物便利。複数路線利用可能。セキュリティ、室内外設備ともに充実しています。
提供:(株)グリップ横浜本店(SUUMO経由)

詳細情報 メインステージ横濱伊勢佐木II
物件紹介
メインステージ横濱伊勢佐木IIはブルーライン伊勢佐木長者町駅から徒歩6分にあり、駅近で通勤通学に便利なマンションです。
このお部屋は2階以上に位置しているので、通行人や周囲の住人からの視線が気になりにくく、防犯面でも安心。建物のエントランスはオートロックがついており、インターホンにはTVモニタもついているため、相手の顔を確認してから来客対応することができます。
おしゃれなデザイナーズ物件!フローリングのお部屋なのでお掃除もラクラク。キッチンはシステムキッチン仕様になっていますので、お料理好きの方にもぴったり。バス・トイレは別なので、のんびりお風呂タイムも楽しめるでしょう。また、雨の日でも浴室乾燥機を使えば、お洗濯も問題ありません。
通信設備面では、インターネットが無料で使えるので、月々の出費を抑えられるのも魅力です。また、BSアンテナ・CSアンテナもありますので、おうち時間も充実するでしょう(別途工事、BS・CSの契約料等が必要な場合あり)。
建物にはエレベーターがついているので、重い荷物があっても安心。共用部には宅配ボックスが設定されているので、不在の時にも荷物を受け取ることができます。また、ペット飼育の相談ができますので、あなたの大切な家族の一員も快適に暮らせるか、ぜひ確認してみてください。
このお部屋は2階以上に位置しているので、通行人や周囲の住人からの視線が気になりにくく、防犯面でも安心。建物のエントランスはオートロックがついており、インターホンにはTVモニタもついているため、相手の顔を確認してから来客対応することができます。
おしゃれなデザイナーズ物件!フローリングのお部屋なのでお掃除もラクラク。キッチンはシステムキッチン仕様になっていますので、お料理好きの方にもぴったり。バス・トイレは別なので、のんびりお風呂タイムも楽しめるでしょう。また、雨の日でも浴室乾燥機を使えば、お洗濯も問題ありません。
通信設備面では、インターネットが無料で使えるので、月々の出費を抑えられるのも魅力です。また、BSアンテナ・CSアンテナもありますので、おうち時間も充実するでしょう(別途工事、BS・CSの契約料等が必要な場合あり)。
建物にはエレベーターがついているので、重い荷物があっても安心。共用部には宅配ボックスが設定されているので、不在の時にも荷物を受け取ることができます。また、ペット飼育の相談ができますので、あなたの大切な家族の一員も快適に暮らせるか、ぜひ確認してみてください。
お金・契約の情報
※「-」と表示されているものは、実際は料金が発生するものもございます。詳細はお問い合わせください。
| 家賃 | 7.4万円 | 管理費・共益費 | 1.5万円 |
|---|---|---|---|
| 敷金 | なし | 礼金 | 7.4万円 |
| 入居決定でお祝い金最大100,000円 | |||
| 保証金 | - | 償却・敷引 | - |
| 住宅保険料 | - | 更新料 | - |
| 保証会社利用 | 必須 | 保証会社名 | - |
| 保証会社費用 | - | 保証会社備考 | 保証会社利用必 初回保証料:総賃料50% (指定保証会社のプランによる) |
| 契約形態 | - | 契約期間 | - |
| 入居・引渡期間 | 即時 | 現況 | - |
| 入居可能条件 | ペット相談 | ||
| 契約備考 | 巡回管理/本物件のお問い合わせは、株式会社グリップ横浜本店(TEL)までお願いいたします。短期解約違約金あり。 合計4.62万円(内訳:24時間入居者サポート1.65万円鍵交換代2.97万円) 更新料 新賃料1.50ヶ月分 1K ペット相談/ルームシェア相談 普通借家2年 損保【1.6万円2年】 バストイレ別、バルコニー、エアコン、ガスコンロ対応、クロゼット、フローリング、TVインターホン、浴室乾燥機、オートロック、室内洗濯置、シューズボックス、システムキッチン、温水洗浄便座、脱衣所、エレベーター、洗面所独立、2口コンロ、駐輪場、宅配ボックス、外壁タイル張り、即入居可、BS・CS、敷金不要、防犯カメラ、ペット相談、分譲賃貸、保証人不要、デザイナーズ、2沿線利用可、ディンプルキー、CS、ネット専用回線、駅まで平坦、ネット使用料不要、ダブルロックキー、保証金不要、24時間換気システム、平坦地、ルームシェア相談、人感照明センサー、耐火構造、耐震構造、2駅利用可、3駅以上利用可、3沿線以上利用可、バス2路線、駅徒歩10分以内、24時間ゴミ出し可、風除室、敷地内ごみ置き場、セキュリティ会社加入済、耐震ラッチ吊戸棚、都市ガス、玄関収納、ダウンライト、BS、高速ネット対応、LAN、マルチメディアコンセント、IT重説対応物件 敷金積み増し【ペット飼育の場合敷金1ヶ月(総額)】 | ||
部屋の情報
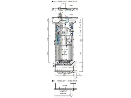
| 間取り | 1K | 専有面積 | 20.95m2 |
|---|---|---|---|
| 所在階 / 向き | 4階 / - | バルコニー面積 | 4m2 |
| 水道 / ガス | - | ||
| 設備 | バス・トイレ別、2階以上、オートロック、テレビドアホン、宅配ボックス、浴室乾燥機、インターネット対応、システムキッチン、エアコン、エレベーター、温水洗浄便座、バルコニー、フローリング、洗髪洗面化粧台、2口コンロ、コンロ:ガス、デザイナーズ、CSアンテナ、BSアンテナ、インターネット使用料無料、洗濯機:室内 | ||
| 当社物件ID | 26834525 | ||
建物の情報
| 建物名 | メインステージ横濱伊勢佐木II | ||
|---|---|---|---|
| 所在地 | 神奈川県横浜市南区永楽町 | ||
| 交通 | ブルーライン 伊勢佐木長者町駅 徒歩6分 JR京浜東北線 関内駅 徒歩15分 京急本線 黄金町駅 徒歩15分 | ||
| 階数 | 11階建 | 総戸数 | 101戸 |
| 築年月 | 2017年06月 / 築9年 | エレベーター | あり |
| 駐車場 | なし | バイク置き場 | - |
| 駐輪場 | あり | 管理人/管理会社 | - |
| 周辺環境 | その他 まいばすけっと 真金町1丁目店(スーパー)まで163m その他 ファミリーマート 和田屋万世町店(コンビニ)まで242m その他 ローソン 真金町店(コンビニ)まで263m その他 セブンイレブン よこはまばし店(コンビニ)まで408m その他 SANTOKU長者町店(スーパー)まで360m その他 横浜橋通商店街(その他)まで361m | ||
| 建物種別 | マンション | 建物構造 | RC(鉄筋コンクリート) |
この部屋の取扱い不動産会社
| 会社名 | (株)グリップ横浜本店(SUUMO経由) | ||
|---|---|---|---|
| 所在地 | 神奈川県横浜市西区高島2-7-1 ファーストプレイス横浜2階 | 交通 | - |
| 営業時間 | 9:30~18:30 | 定休日 | 毎週火・水曜日・年末年始 |
| 免許番号 | 神奈川県知事27217 | 取引態様 | 仲介 |
| 不動産会社管理番号 | 100399612441 | 当社管理番号 | 89 |
| 所属団体 | (公社)神奈川県宅地建物取引業協会会員 | ||
| 公正取引協議会 | (公社)首都圏不動産公正取引協議会加盟 | ||
| 取扱い物件情報 | 物件詳細へ | ||
※各種情報と現状に差異がある場合は、現状優先となります。問い合わせをすることで、より詳しい条件、情報を確認する事ができます。
提供:(株)グリップ横浜本店(SUUMO経由)
この物件が気になったら掲載期限まであと10日
メインステージ横濱伊勢佐木IIに条件(家賃・エリア)が近い物件一覧
| 写真 | 家賃 管理費等 | 敷金 礼金 | 間取り 専有面積 | 築年数 | 最寄り駅 所在地 | キープ | 詳細 |
|---|---|---|---|---|---|---|---|
マンション 登戸ハイツ(ワンルーム/2階) | |||||||
![]() | 4.9万円 2,000円 | 4.9万円 なし | ワンルーム 15.96m2 | 築35年 | 小田急線 登戸駅 徒歩6分 神奈川県川崎市多摩区登戸新町 | 詳細を見る | |
マンション エトワールASAO(1K/1階) | |||||||
![]() | 6.6万円 なし | 6.6万円 6.6万円 | 1K 26.8m2 | 築22年 | 小田急電鉄小田原線 読売ランド前駅 徒歩18分 神奈川県川崎市麻生区細山5丁目 | 詳細を見る | |
マンション クローバー津田山(1K/2階) | |||||||
![]() | 4.7万円 2,000円 | 4.7万円 なし | 1K 17.62m2 | 築32年 | JR南武線 津田山駅 徒歩7分 JR南武線 久地駅 徒歩9分 東急田園都市線 溝の口駅 徒歩20分 神奈川県川崎市高津区下作延 | 詳細を見る | |
アパート ヒルテラス湘南B(1K/2階) | |||||||
![]() | 4.8万円 2,000円 | 4.8万円 4.8万円 | 1K 19.87m2 | 築26年 | 小田急電鉄江ノ島線 六会日大前駅 徒歩12分 神奈川県藤沢市亀井野 | 詳細を見る | |
マンション アルファメゾン(3LDK/5階) | |||||||
![]() | 10.5万円 8,000円 | 10.5万円 10.5万円 | 3LDK 67m2 | 築36年 | 京急久里浜線 北久里浜駅 徒歩12分 京急久里浜線 新大津駅 徒歩18分 京急本線 堀ノ内駅 徒歩19分 神奈川県横須賀市根岸町 | 詳細を見る | |
アパート レオパレスサンスーシー白旗(1K/1階) | |||||||
![]() | 6.4万円 5,000円 | なし 6.4万円 | 1K 19.87m2 | 築21年 | 小田急電鉄江ノ島線 藤沢本町駅 徒歩17分 神奈川県藤沢市白旗3丁目 | 詳細を見る | |
アパート コーポ.サザンヒルズ(1K/2階) | |||||||
![]() | 5万円 なし | 5万円 5万円 | 1K 19m2 | 築34年 | ブルーライン 阪東橋駅 徒歩15分 京急本線 黄金町駅 徒歩20分 JR京浜東北線 石川町駅 徒歩22分 神奈川県横浜市南区八幡町 | 詳細を見る | |








