賃貸マンション
女性限定マンション 笠原マンションの賃貸物件情報(ワンルーム/3階)
| 家賃 | 管理費等 | 敷金 | 礼金 | 間取り | 専有面積 |
|---|---|---|---|---|---|
| 5.4万円 | なし | なし | なし | ワンルーム | 20m2 |
入居決定でお祝い金最大100,000円
- 保証金
- 16.2万円
- 償却・敷引
- -
- 築年数
- 築42年
- 所在階
- 3階
- 向き
- -
Point
JCOMでインターネット(40メガ)Wifi無料!BS視聴可能。駅前に商業施設が多数揃っており、生活便利です!
提供:フロンティアハウス(SUUMO経由)

詳細情報 女性限定マンション 笠原マンション
物件紹介
女性限定マンション 笠原マンションはJR東海道本線六甲道駅から徒歩9分にあり、駅近で通勤通学に便利なマンションです。
このお部屋は2階以上に位置しているので、通行人や周囲の住人からの視線が気になりにくく、防犯面でも安心です。
バス・トイレ別の仕様で、のんびりお風呂タイムも楽しめます。
このお部屋は2階以上に位置しているので、通行人や周囲の住人からの視線が気になりにくく、防犯面でも安心です。
バス・トイレ別の仕様で、のんびりお風呂タイムも楽しめます。
お金・契約の情報
※「-」と表示されているものは、実際は料金が発生するものもございます。詳細はお問い合わせください。
| 家賃 | 5.4万円 | 管理費・共益費 | なし |
|---|---|---|---|
| 敷金 | なし | 礼金 | なし |
| フリーレント | あり | ||
| 入居決定でお祝い金最大100,000円 | |||
| 保証金 | 16.2万円 | 償却・敷引 | - |
| 住宅保険料 | - | 更新料 | - |
| 保証会社利用 | 必須 | 保証会社名 | - |
| 保証会社費用 | - | 保証会社備考 | 保証会社利用必 【全保連・セーフティ・いえらぶ】初回保証料:家賃合計50%、更新料:15,000円/年or1,500円/月、自動引落330~440/月 |
| 契約形態 | - | 契約期間 | - |
| 入居・引渡期間 | 即時 | 現況 | - |
| 契約備考 | 24時間トラブルサポート:990円/月短期違約金:契約後1年未満の解約で別途1ヶ月分 ワンルーム フリーレント1ヶ月相談可 普通借家2年 損保【1.9万円2年】 バストイレ別、バルコニー、エアコン、ガスコンロ対応、室内洗濯置、2口コンロ、即入居可、最上階、2沿線利用可、フリーレント、都市ガス | ||
部屋の情報
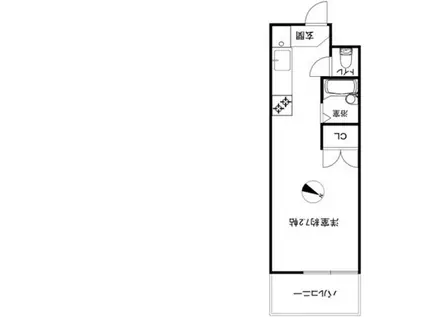
| 間取り | ワンルーム | 専有面積 | 20m2 |
|---|---|---|---|
| 所在階 / 向き | 3階 / - | バルコニー面積 | - |
| 水道 / ガス | - | ||
| 設備 | バス・トイレ別、2階以上、エアコン、バルコニー、2口コンロ、コンロ:ガス、洗濯機:室内 | ||
| 当社物件ID | 160495716 | ||
建物の情報
| 建物名 | 女性限定マンション 笠原マンション | ||
|---|---|---|---|
| 所在地 | 兵庫県神戸市灘区中郷町 | ||
| 交通 | JR東海道本線 六甲道駅 徒歩9分 阪神本線 石屋川駅 徒歩11分 阪神本線 新在家駅 徒歩12分 | ||
| 階数 | 3階建 | 総戸数 | - |
| 築年月 | 1984年03月 / 築42年 | エレベーター | - |
| 駐車場 | なし | バイク置き場 | - |
| 駐輪場 | - | 管理人/管理会社 | - |
| 周辺環境 | その他 コープミニやまと(スーパー)まで240m その他 ダイエー六甲道店(スーパー)まで620m その他 セブンイレブン神戸大和町4丁目店(コンビニ)まで197m その他 医療法人康雄会西病院(病院)まで542m その他 神戸大和郵便局(郵便局)まで196m その他 神戸信用金庫石屋川支店(銀行)まで480m | ||
| 建物種別 | マンション | 建物構造 | RC(鉄筋コンクリート) |
この部屋の取扱い不動産会社
| 会社名 | フロンティアハウス(SUUMO経由) | ||
|---|---|---|---|
| 所在地 | 兵庫県神戸市灘区宮山町3-3-43 | 交通 | - |
| 営業時間 | 9:30~18:30 | 定休日 | 水曜日 |
| 免許番号 | 兵庫県知事10075 | 取引態様 | 仲介 |
| 不動産会社管理番号 | 100491251365 | 当社管理番号 | 89 |
| 所属団体 | (一社)兵庫県宅地建物取引業協会会員 | ||
| 公正取引協議会 | (公社)近畿地区不動産公正取引協議会加盟 | ||
| 取扱い物件情報 | 物件詳細へ | ||
※各種情報と現状に差異がある場合は、現状優先となります。問い合わせをすることで、より詳しい条件、情報を確認する事ができます。
提供:フロンティアハウス(SUUMO経由)
この物件が気になったら掲載期限まであと11日
女性限定マンション 笠原マンションに条件(家賃・エリア)が近い物件一覧
| 写真 | 家賃 管理費等 | 敷金 礼金 | 間取り 専有面積 | 築年数 | 最寄り駅 所在地 | キープ | 詳細 |
|---|---|---|---|---|---|---|---|
アパート 山陽電気鉄道本線 大蔵谷駅 徒歩6分 築9年(ワンルーム/1階) | |||||||
![]() | 5.2万円 3,000円 | なし 10.4万円 | ワンルーム 28.57m2 | 築9年 | 山陽電気鉄道本線 大蔵谷駅 徒歩6分 山陽本線 朝霧駅 徒歩12分 山陽電気鉄道本線 人丸前駅 徒歩15分 兵庫県明石市朝霧町2丁目 | 詳細を見る | |
アパート ペルル5(1LDK/2階) | |||||||
![]() | 8万円 4,500円 | 8万円 なし | 1LDK 42.5m2 | 築1年 | 山陽電気鉄道本線 藤江駅 徒歩5分 山陽本線 西明石駅 徒歩20分 山陽電気鉄道本線 中八木駅 徒歩20分 兵庫県明石市藤江 | 詳細を見る | |
マンション ビレッジハウス志染(3K/2階) | |||||||
![]() | 5.14万円 なし | なし なし | 3K 43.5m2 | 築46年 | 神戸電鉄粟生線 志染駅 徒歩19分 神戸電鉄粟生線 恵比須駅 徒歩30分 神戸電鉄粟生線 広野ゴルフ場前駅 徒歩31分 兵庫県三木市志染町西自由が丘 | 詳細を見る | |
アパート 神戸電鉄粟生線 恵比須駅 徒歩8分 築14年(1K/2階) | |||||||
![]() | 5.8万円 4,000円 | なし 5.8万円 | 1K 35.26m2 | 築14年 | 神戸電鉄粟生線 恵比須駅 徒歩8分 兵庫県三木市大塚 | 詳細を見る | |
アパート SUNRISE三木(1K/2階) | |||||||
![]() | 5.2万円 5,000円 | なし なし | 1K 23.19m2 | 築3年 | 神戸電鉄粟生線 三木駅(神戸電鉄) 徒歩6分 神戸電鉄粟生線 大村駅(兵庫) 徒歩16分 神戸電鉄粟生線 三木上の丸駅 徒歩22分 兵庫県三木市末広2 | 詳細を見る | |
マンション ピアン自由が丘4号棟(4DK/5階) | |||||||
![]() | 4.6万円 なし | なし 7万円 | 4DK 63.35m2 | 築49年 | 神戸電鉄粟生線 志染駅 徒歩9分 神戸電鉄粟生線 恵比須駅 徒歩29分 神戸電鉄粟生線 広野ゴルフ場前駅 徒歩29分 兵庫県三木市志染町西自由が丘2丁目 | 詳細を見る | |
アパート ワンルームみやび(ワンルーム/1階) | |||||||
![]() | 4.3万円 3,000円 | なし 4.3万円 | ワンルーム 22.8m2 | 築10年 | 神戸電鉄粟生線 広野ゴルフ場前駅 徒歩10分 神戸電鉄粟生線 緑が丘駅(兵庫) 徒歩15分 兵庫県三木市緑が丘町西2丁目 | 詳細を見る | |
アパート ヴィアノ緑が丘 ウエスト(1K/2階) | |||||||
![]() | 5.5万円 4,000円 | なし 10万円 | 1K 28.5m2 | 築20年 | 神戸電鉄粟生線 緑が丘駅(兵庫) 徒歩4分 兵庫県三木市緑が丘町本町1丁目 | 詳細を見る | |







