賃貸マンション
レジディア祐天寺の賃貸物件情報(1LDK/6階)
| 家賃 | 管理費等 | 敷金 | 礼金 | 間取り | 専有面積 |
|---|---|---|---|---|---|
| 24.8万円 | 2万円 | 24.8万円 | 24.8万円 | 1LDK | 49.76m2 |
入居決定でお祝い金最大100,000円
- 保証金
- -
- 償却・敷引
- -
- 築年数
- 築20年
- 所在階
- 6階
- 向き
- 南西
Point
♪仲介手数料無料の物件です♪理想のお部屋探しを全力でサポート!都心マンションに特化した専門スタッフがアテンドします☆お問い合わせはSkyYardPropertyまで☆
提供:NAVI HOME(株)恵比寿店(SUUMO経由)

詳細情報 レジディア祐天寺
物件紹介
レジディア祐天寺は東急東横線祐天寺駅から徒歩5分にあり、駅近で通勤通学に便利なマンションです。
このお部屋は2階以上に位置しているので、通行人や周囲の住人からの視線が気になりにくく、防犯面でも安心。建物のエントランスはオートロックがついており、インターホンにはTVモニタもついているため、相手の顔を確認してから来客対応することができます。
人気の南向き・フローリングのお部屋。室内にはウォークインクローゼットがありますので、たくさんの荷物も効率的に収納ができます。キッチンはシステムキッチン仕様になっていますので、お料理好きの方にもぴったり。バス・トイレは別なので、のんびりお風呂タイムも楽しめるでしょう。また、雨の日でも浴室乾燥機を使えば、お洗濯も問題ありません。
通信設備面では、インターネット接続が可能です。また、BSアンテナ・CSアンテナがありCATVにも対応しているので、おうち時間も充実するでしょう(別途工事、契約料が必要な場合あり)。
建物にはエレベーターがついているので、重い荷物があっても安心。共用部には宅配ボックスが設定されているので、不在の時にも荷物を受け取ることができます。また、ペット飼育の相談ができますので、あなたの大切な家族の一員も快適に暮らせるか、ぜひ確認してみてください。
このお部屋は2階以上に位置しているので、通行人や周囲の住人からの視線が気になりにくく、防犯面でも安心。建物のエントランスはオートロックがついており、インターホンにはTVモニタもついているため、相手の顔を確認してから来客対応することができます。
人気の南向き・フローリングのお部屋。室内にはウォークインクローゼットがありますので、たくさんの荷物も効率的に収納ができます。キッチンはシステムキッチン仕様になっていますので、お料理好きの方にもぴったり。バス・トイレは別なので、のんびりお風呂タイムも楽しめるでしょう。また、雨の日でも浴室乾燥機を使えば、お洗濯も問題ありません。
通信設備面では、インターネット接続が可能です。また、BSアンテナ・CSアンテナがありCATVにも対応しているので、おうち時間も充実するでしょう(別途工事、契約料が必要な場合あり)。
建物にはエレベーターがついているので、重い荷物があっても安心。共用部には宅配ボックスが設定されているので、不在の時にも荷物を受け取ることができます。また、ペット飼育の相談ができますので、あなたの大切な家族の一員も快適に暮らせるか、ぜひ確認してみてください。
お金・契約の情報
※「-」と表示されているものは、実際は料金が発生するものもございます。詳細はお問い合わせください。
| 家賃 | 24.8万円 | 管理費・共益費 | 2万円 |
|---|---|---|---|
| 敷金 | 24.8万円 | 礼金 | 24.8万円 |
| 入居決定でお祝い金最大100,000円 | |||
| 保証金 | - | 償却・敷引 | - |
| 住宅保険料 | - | 更新料 | - |
| 保証会社利用 | 必須 | 保証会社名 | - |
| 保証会社費用 | - | 保証会社備考 | 保証会社利用必 初回契約時:40%、更新時:10 000円、月額:1 000円 |
| 契約形態 | - | 契約期間 | - |
| 入居・引渡期間 | 相談 | 現況 | - |
| 入居可能条件 | ペット相談 | ||
| 契約備考 | 合計3.3万円(内訳:入居者限定会員サービス会費(2年)1.1万円鍵交換代2.2万円) 更新料 新賃料1.00ヶ月分 インターネット使用料 月額1650円 1LDK 二人入居可/子供可/ペット相談 普通借家2年 損保【2.15万円2年】 バストイレ別、バルコニー、エアコン、ガスコンロ対応、クロゼット、フローリング、TVインターホン、浴室乾燥機、オートロック、室内洗濯置、陽当り良好、システムキッチン、追焚機能浴室、温水洗浄便座、脱衣所、エレベーター、洗面所独立、洗面化粧台、2口コンロ、駐輪場、宅配ボックス、CATV、BS・CS、対面式キッチン、防犯カメラ、ペット相談、全居室収納、オートバス、グリル付、全居室洋室、ウォークインクロゼット、保証人不要、仲介手数料不要、敷金1ヶ月、二人入居相談、全居室フローリング、2沿線利用可、ディンプルキー、CS、ネット専用回線、ダブルロックキー、24時間換気システム、学生相談、エレベーター2基、耐震構造、2駅利用可、3駅以上利用可、駅徒歩5分以内、駅徒歩10分以内、24時間ゴミ出し可、敷地内ごみ置き場、南西向き、LDK12畳以上、全居室6畳以上、都市ガス、南面バルコニー、BS、礼金1ヶ月、保証会社利用可 敷金積み増し【ペット飼育の場合敷金2ヶ月(総額)】 | ||
部屋の情報
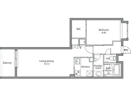
| 間取り | 1LDK | 専有面積 | 49.76m2 |
|---|---|---|---|
| 所在階 / 向き | 6階 / 南西 | バルコニー面積 | - |
| 水道 / ガス | - | ||
| 設備 | バス・トイレ別、2階以上、オートロック、テレビドアホン、宅配ボックス、浴室乾燥機、ウォークインクローゼット、追い焚き、インターネット対応、システムキッチン、エアコン、エレベーター、温水洗浄便座、南向き、バルコニー、フローリング、洗髪洗面化粧台、2口コンロ、コンロ:ガス、CATV、CSアンテナ、BSアンテナ、洗濯機:室内 | ||
| 当社物件ID | 1680117 | ||
建物の情報
| 建物名 | レジディア祐天寺 | ||
|---|---|---|---|
| 所在地 | 東京都目黒区中目黒 | ||
| 交通 | 東急東横線 祐天寺駅 徒歩5分 東京メトロ日比谷線 中目黒駅 徒歩13分 東急東横線 学芸大学駅 徒歩16分 | ||
| 階数 | 地下1地上7階建 | 総戸数 | 117戸 |
| 築年月 | 2006年08月 / 築20年 | エレベーター | あり |
| 駐車場 | 近隣 300m35000円 | バイク置き場 | - |
| 駐輪場 | あり | 管理人/管理会社 | - |
| 周辺環境 | その他 ホットヨガスタジオLAVA 中目黒店(その他)まで1098m その他 Cibolabo(チボラボ) イルジャン(飲食店)まで661m その他 ロイヤルホスト目黒店(飲食店)まで1644m その他 To the sea HEALTH LIVING(トゥーザシ(飲食店)まで773m その他 オオゼキ 祐天寺店(スーパー)まで502m その他 セブンイレブン 五本木店(コンビニ)まで838m | ||
| 建物種別 | マンション | 建物構造 | RC(鉄筋コンクリート) |
この部屋の取扱い不動産会社
| 会社名 | Sky Yard Property(株)新宿店(SUUMO経由) | ||
|---|---|---|---|
| 所在地 | 東京都新宿区西新宿1-3-3 品川ステーションビル新宿5階 | 交通 | - |
| 営業時間 | 9:30-19:00 | 定休日 | 無 |
| 免許番号 | 東京都知事107337 | 取引態様 | 仲介 |
| 不動産会社管理番号 | 100489757726 | 当社管理番号 | 89 |
| 所属団体 | (公社)東京都宅地建物取引業協会会員 | ||
| 公正取引協議会 | (公社)首都圏不動産公正取引協議会加盟 | ||
| 取扱い物件情報 | 物件詳細へ | ||
※各種情報と現状に差異がある場合は、現状優先となります。問い合わせをすることで、より詳しい条件、情報を確認する事ができます。
提供:Sky Yard Property(株)新宿店(SUUMO経由)
この物件が気になったら掲載期限まであと10日
レジディア祐天寺に条件(家賃・エリア)が近い物件一覧
| 写真 | 家賃 管理費等 | 敷金 礼金 | 間取り 専有面積 | 築年数 | 最寄り駅 所在地 | キープ | 詳細 |
|---|---|---|---|---|---|---|---|
マンション サンライズマンション(2LDK/2階) | |||||||
![]() | 16.5万円 3,000円 | 12.7万円 なし | 2LDK 55.31m2 | 築26年 | 京急本線 梅屋敷駅(東京) 徒歩13分 京急本線 大森町駅 徒歩14分 東京モノレール 昭和島駅 徒歩16分 東京都大田区大森南 | 詳細を見る | |
マンション 京浜急行電鉄本線 梅屋敷駅(東京) 徒歩4分 築37年(3LDK/2階) | |||||||
![]() | 19.3万円 7,000円 | 19.3万円 19.3万円 | 3LDK 84.68m2 | 築37年 | 京浜急行電鉄本線 梅屋敷駅(東京) 徒歩4分 京浜急行電鉄本線 大森町駅 徒歩12分 東京都大田区大森西6丁目 | 詳細を見る | |
アパート ノリアセット(2LDK/2階) | |||||||
![]() | 18.5万円 3,000円 | 18.5万円 18.5万円 | 2LDK 62.72m2 | 新築 | 京浜急行電鉄本線 大森町駅 徒歩9分 京浜急行電鉄本線 梅屋敷駅(東京) 徒歩16分 東京都大田区大森東3丁目 | 詳細を見る | |
マンション ラフィーネ大森(3LDK/3階) | |||||||
![]() | 29.8万円 2,000円 | 29.8万円 なし | 3LDK 116.22m2 | 築22年 | 京急本線 平和島駅 徒歩14分 京急本線 大森町駅 徒歩16分 JR京浜東北線 大森駅(東京) 徒歩16分 東京都大田区大森西 | 詳細を見る | |
アパート フォレスタ世田谷(2LDK/2階) | |||||||
![]() | 16.9万円 1,000円 | 16.9万円 16.9万円 | 2LDK 47.7m2 | 築55年 | 東急池上線 雪が谷大塚駅 徒歩6分 東急東横線 田園調布駅 徒歩16分 東急目黒線 多摩川駅 徒歩16分 東京都世田谷区東玉川 | 詳細を見る | |
タウンハウス 大田菜園長屋(2LDK) | |||||||
![]() | 15.7万円 5,000円 | 15.7万円 なし | 2LDK 52.17m2 | 築10年 | 京浜急行電鉄本線 雑色駅 徒歩8分 京浜急行電鉄本線 六郷土手駅 徒歩13分 東京都大田区東六郷3丁目 | 詳細を見る | |
マンション ミレニアムハイム(1LDK/4階) | |||||||
![]() | 14.9万円 5,000円 | 14.9万円 14.9万円 | 1LDK 43.36m2 | 築26年 | 京浜東北・根岸線 蒲田駅 徒歩18分 京浜急行電鉄本線 大森町駅 徒歩18分 東京都大田区中央8丁目 | 詳細を見る | |
マンション メゾン 3E(2DK/1階) | |||||||
![]() | 15.2万円 3,000円 | 15.2万円 15.2万円 | 2DK 50.69m2 | 築35年 | 東急多摩川線 下丸子駅 徒歩2分 東急多摩川線 鵜の木駅 徒歩10分 東京都大田区下丸子3丁目 | 詳細を見る | |








