賃貸マンション
MODERN EIGHT高宮LIETOの賃貸物件情報(1LDK/9階)
| 家賃 | 管理費等 | 敷金 | 礼金 | 間取り | 専有面積 |
|---|---|---|---|---|---|
| 8.5万円 | 6,000円 | なし | なし | 1LDK | 29.8m2 |
入居決定でお祝い金最大100,000円
Point
当店では初期費用クレジット払い、分割払い相談可能。
提供:(株)トーマスリビング天神店(SUUMO経由)

詳細情報 MODERN EIGHT高宮LIETO
物件紹介
MODERN EIGHT高宮LIETOは西鉄天神大牟田線高宮駅から徒歩20分にあるマンションです。
このお部屋は2階以上に位置しているので、通行人や周囲の住人からの視線が気になりにくく、防犯面でも安心。建物のエントランスはオートロックがついており、インターホンにはTVモニタもついているため、相手の顔を確認してから来客対応することができます。
人気の角部屋で周囲の居住者の生活音も気になりにくく、また、フローリングのお部屋なのでお掃除もラクラク。キッチンはシステムキッチン仕様になっていますので、お料理好きの方にもぴったり。バス・トイレは別なので、のんびりお風呂タイムも楽しめるでしょう。また、雨の日でも浴室乾燥機を使えば、お洗濯も問題ありません。
通信設備面では、インターネットが無料で使えるので、月々の出費を抑えられるのも魅力です(別途工事等が必要な場合あり)。
建物にはエレベーターがついているので、重い荷物があっても安心。共用部には宅配ボックスが設定されているので、不在の時にも荷物を受け取ることができます。また、ペット飼育の相談ができますので、あなたの大切な家族の一員も快適に暮らせるか、ぜひ確認してみてください。
このお部屋は2階以上に位置しているので、通行人や周囲の住人からの視線が気になりにくく、防犯面でも安心。建物のエントランスはオートロックがついており、インターホンにはTVモニタもついているため、相手の顔を確認してから来客対応することができます。
人気の角部屋で周囲の居住者の生活音も気になりにくく、また、フローリングのお部屋なのでお掃除もラクラク。キッチンはシステムキッチン仕様になっていますので、お料理好きの方にもぴったり。バス・トイレは別なので、のんびりお風呂タイムも楽しめるでしょう。また、雨の日でも浴室乾燥機を使えば、お洗濯も問題ありません。
通信設備面では、インターネットが無料で使えるので、月々の出費を抑えられるのも魅力です(別途工事等が必要な場合あり)。
建物にはエレベーターがついているので、重い荷物があっても安心。共用部には宅配ボックスが設定されているので、不在の時にも荷物を受け取ることができます。また、ペット飼育の相談ができますので、あなたの大切な家族の一員も快適に暮らせるか、ぜひ確認してみてください。
お金・契約の情報
※「-」と表示されているものは、実際は料金が発生するものもございます。詳細はお問い合わせください。
| 家賃 | 8.5万円 | 管理費・共益費 | 6,000円 |
|---|---|---|---|
| 敷金 | なし | 礼金 | なし |
| 入居決定でお祝い金最大100,000円 | |||
| 保証金 | - | 償却・敷引 | - |
| 住宅保険料 | - | 更新料 | - |
| 保証会社利用 | 必須 | 保証会社名 | - |
| 保証会社費用 | - | 保証会社備考 | 保証会社利用必 初回保証料:50%or80% 更新料:50%のみ1万円/年 |
| 契約形態 | - | 契約期間 | - |
| 入居・引渡期間 | 相談 | 現況 | - |
| 入居可能条件 | ペット相談 | ||
| 契約備考 | 店内の換気・消毒をしてお客様のご来店をお待ちしています。初期費用のクレジットカード払い可(分割可能)です。他の会社様が掲載している物件でもご紹介可能です。◆公共交通機関をご利用して来られる方は、駅までの送迎サービスを行っています。◆仲介手数料0円の物件も取り扱っております。◆電話・Line・メールにて対応可能です。お急ぎの方はお電話下さい。メールの場合お返事に1日頂く場合も御座います。 町費400円/月、トーマスclub880円/月 1LDK 単身者可/二人入居可/子供可/ペット相談 普通借家2年 バストイレ別、エアコン、クロゼット、フローリング、シャワー付洗面台、TVインターホン、浴室乾燥機、オートロック、室内洗濯置、シューズボックス、システムキッチン、追焚機能浴室、角住戸、温水洗浄便座、エレベーター、駐輪場、宅配ボックス、外壁タイル張り、2面採光、3口以上コンロ、対面式キッチン、防犯カメラ、ペット相談、全居室収納、バイク置場、全居室フローリング、ネット使用料不要、食器洗乾燥機、築2年以内、未入居、敷地内ごみ置き場、敷金・礼金不要、IT重説対応物件、初期費用カード決済可 | ||
部屋の情報
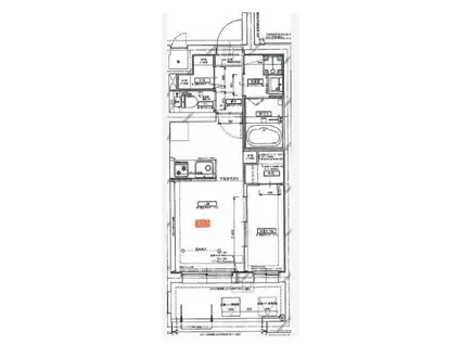
| 間取り | 1LDK | 専有面積 | 29.8m2 |
|---|---|---|---|
| 所在階 / 向き | 9階 / - | バルコニー面積 | - |
| 水道 / ガス | - | ||
| 設備 | バス・トイレ別、2階以上、オートロック、テレビドアホン、宅配ボックス、浴室乾燥機、追い焚き、インターネット対応、システムキッチン、エアコン、エレベーター、温水洗浄便座、角部屋、フローリング、2口コンロ、インターネット使用料無料、洗濯機:室内 | ||
| 当社物件ID | 160259443 | ||
建物の情報
| 建物名 | MODERN EIGHT高宮LIETO | ||
|---|---|---|---|
| 所在地 | 福岡県福岡市南区大池 | ||
| 交通 | 西鉄天神大牟田線 高宮駅(福岡) 徒歩20分 | ||
| 階数 | 10階建 | 総戸数 | - |
| 築年月 | 2026年03月 / 築1年 | エレベーター | あり |
| 駐車場 | 空有 18700円 | バイク置き場 | あり |
| 駐輪場 | あり | 管理人/管理会社 | - |
| 周辺環境 | その他 サニー 野間店(スーパー)まで598m その他 セブンイレブン 福岡野間大池店(コンビニ)まで79m その他 ドラッグストアコスモス パセオ店(ドラッグストア)まで491m その他 フードウェイ野間大池店(スーパー)まで961m その他 恵光会原病院(病院)まで1084m | ||
| 建物種別 | マンション | 建物構造 | RC(鉄筋コンクリート) |
この部屋の取扱い不動産会社
| 会社名 | (株)トーマスリビング天神店(SUUMO経由) | ||
|---|---|---|---|
| 所在地 | 福岡県福岡市中央区天神2-3-5 | 交通 | - |
| 営業時間 | 10:00~19:00 | 定休日 | 毎週火曜・年末年始 |
| 免許番号 | 国土交通大臣8479 | 取引態様 | 仲介 |
| 不動産会社管理番号 | 100484201633 | 当社管理番号 | 89 |
| 所属団体 | (公社)全日本不動産協会福岡県本部会員 | ||
| 公正取引協議会 | (一社)九州不動産公正取引協議会加盟 | ||
| 取扱い物件情報 | 物件詳細へ | ||
※各種情報と現状に差異がある場合は、現状優先となります。問い合わせをすることで、より詳しい条件、情報を確認する事ができます。
提供:(株)トーマスリビング天神店(SUUMO経由)
この物件が気になったら掲載期限まであと10日
MODERN EIGHT高宮LIETOに条件(家賃・エリア)が近い物件一覧
| 写真 | 家賃 管理費等 | 敷金 礼金 | 間取り 専有面積 | 築年数 | 最寄り駅 所在地 | キープ | 詳細 |
|---|---|---|---|---|---|---|---|
アパート D-ROOM平田台(2LDK/3階) | |||||||
![]() | 10.5万円 5,000円 | なし 21万円 | 2LDK 55.68m2 | 新築 | 鹿児島本線 大野城駅 徒歩25分 鹿児島本線 水城駅 徒歩27分 西鉄天神大牟田線 白木原駅 徒歩33分 福岡県春日市平田台4丁目 | 詳細を見る | |
マンション コーネル井尻(3LDK/3階) | |||||||
![]() | 8.1万円 3,000円 | なし 16.2万円 | 3LDK 72.15m2 | 築35年 | JR鹿児島本線 笹原駅 徒歩3分 西鉄天神大牟田線 井尻駅 徒歩6分 西鉄天神大牟田線 雑餉隈駅 徒歩21分 福岡県福岡市南区井尻 | 詳細を見る | |
アパート トリシア野多目Ⅰ(2LDK/3階) | |||||||
![]() | 11.6万円 6,000円 | なし 10万円 | 2LDK 56.26m2 | 新築 | 鹿児島本線 笹原駅 徒歩42分 福岡県福岡市南区野多目2丁目 | 詳細を見る | |
アパート 鹿児島本線 笹原駅 徒歩42分 新築(2LDK/1階) | |||||||
![]() | 11.4万円 6,000円 | なし 10万円 | 2LDK 56.26m2 | 新築 | 鹿児島本線 笹原駅 徒歩42分 福岡県福岡市南区野多目2丁目 | 詳細を見る | |
マンション カーサ・ド・ビー(1K/3階) | |||||||
![]() | 7.2万円 5,500円 | なし 14.4万円 | 1K 39.11m2 | 築19年 | 西鉄天神大牟田線 井尻駅 徒歩4分 鹿児島本線 笹原駅 徒歩12分 西鉄天神大牟田線 大橋駅(福岡) 徒歩22分 福岡県福岡市南区井尻5丁目 | 詳細を見る | |
マンション シャトー・ベラ(1K/1階) | |||||||
![]() | 5.4万円 4,000円 | なし 8万円 | 1K 25.8m2 | 築23年 | 鹿児島本線 水城駅 徒歩4分 福岡県大野城市下大利2丁目 | 詳細を見る | |
マンション 権藤ビル(2LDK/3階) | |||||||
![]() | 6.4万円 3,000円 | なし 12.8万円 | 2LDK 56m2 | 築49年 | 西鉄天神大牟田線 大橋駅(福岡) 徒歩21分 西鉄天神大牟田線 井尻駅 徒歩25分 鹿児島本線 笹原駅 徒歩34分 福岡県福岡市南区三宅3丁目 | 詳細を見る | |
マンション アゼリアⅡ(3LDK/2階) | |||||||
![]() | 9.1万円 5,000円 | なし 18.2万円 | 3LDK 62.72m2 | 築28年 | 西鉄天神大牟田線 春日原駅 徒歩12分 鹿児島本線 春日駅(福岡) 徒歩17分 西鉄天神大牟田線 雑餉隈駅 徒歩25分 福岡県大野城市筒井2丁目 | 詳細を見る | |









