賃貸マンション
屋上庭園付きマンション アースアートビルの賃貸物件情報(2LDK/2階)
| 家賃 | 管理費等 | 敷金 | 礼金 | 間取り | 専有面積 |
|---|---|---|---|---|---|
| 18.5万円 | 1万円 | 18.5万円 | 9.25万円 | 2LDK | 49.7m2 |
入居決定でお祝い金最大100,000円
- 保証金
- -
- 償却・敷引
- -
- 築年数
- 築1年
- 所在階
- 2階
- 向き
- 南
Point
エントランスでマンモスのレリーフがお出迎え 恐竜の足跡や本物の化石を探してみませんか?トランクルーム・防音室・家族、友人、ペットと楽しめる屋上庭園!入居者様の生活スタイルを変える新築マンションです!!
提供:アートハウス(株)(SUUMO経由)

詳細情報 屋上庭園付きマンション アースアートビル
物件紹介
屋上庭園付きマンション アースアートビルは東急東横線大倉山駅から徒歩5分にあり、駅近で通勤通学に便利なマンションです。
このお部屋は2階以上に位置しているので、通行人や周囲の住人からの視線が気になりにくく、防犯面でも安心。建物のエントランスはオートロックがついており、インターホンにはTVモニタもついているため、相手の顔を確認してから来客対応することができます。
おしゃれなデザイナーズ物件!また、楽器相談が可能な物件となっているので、楽器演奏をお考えの方はぜひ相談してみてください。人気の南向きのお部屋。角部屋でもあるため、周囲の居住者の生活音も気になりにくい場所です。室内にはウォークインクローゼットがありますので、たくさんの荷物も効率的に収納ができます。キッチンはシステムキッチン仕様になっていますので、お料理好きの方にもぴったり。バス・トイレは別なので、のんびりお風呂タイムも楽しめるでしょう。また、雨の日でも浴室乾燥機を使えば、お洗濯も問題ありません。
通信設備面では、インターネットが無料で使えるので、月々の出費を抑えられるのも魅力です。また、BSアンテナ・CSアンテナもありますので、おうち時間も充実するでしょう(別途工事、BS・CSの契約料等が必要な場合あり)。
共用部には宅配ボックスが設定されているので、不在の時にも荷物を受け取ることができます。また、ペット飼育の相談ができますので、あなたの大切な家族の一員も快適に暮らせるか、ぜひ確認してみてください。
このお部屋は2階以上に位置しているので、通行人や周囲の住人からの視線が気になりにくく、防犯面でも安心。建物のエントランスはオートロックがついており、インターホンにはTVモニタもついているため、相手の顔を確認してから来客対応することができます。
おしゃれなデザイナーズ物件!また、楽器相談が可能な物件となっているので、楽器演奏をお考えの方はぜひ相談してみてください。人気の南向きのお部屋。角部屋でもあるため、周囲の居住者の生活音も気になりにくい場所です。室内にはウォークインクローゼットがありますので、たくさんの荷物も効率的に収納ができます。キッチンはシステムキッチン仕様になっていますので、お料理好きの方にもぴったり。バス・トイレは別なので、のんびりお風呂タイムも楽しめるでしょう。また、雨の日でも浴室乾燥機を使えば、お洗濯も問題ありません。
通信設備面では、インターネットが無料で使えるので、月々の出費を抑えられるのも魅力です。また、BSアンテナ・CSアンテナもありますので、おうち時間も充実するでしょう(別途工事、BS・CSの契約料等が必要な場合あり)。
共用部には宅配ボックスが設定されているので、不在の時にも荷物を受け取ることができます。また、ペット飼育の相談ができますので、あなたの大切な家族の一員も快適に暮らせるか、ぜひ確認してみてください。
お金・契約の情報
※「-」と表示されているものは、実際は料金が発生するものもございます。詳細はお問い合わせください。
| 家賃 | 18.5万円 | 管理費・共益費 | 1万円 |
|---|---|---|---|
| 敷金 | 18.5万円 | 礼金 | 9.25万円 |
| 入居決定でお祝い金最大100,000円 | |||
| 保証金 | - | 償却・敷引 | - |
| 住宅保険料 | - | 更新料 | - |
| 保証会社利用 | 必須 | 保証会社名 | - |
| 保証会社費用 | - | 保証会社備考 | 保証会社利用必 初年度 賃料と共益費50% 翌年以降は年間委託保険料 年/10000円 |
| 契約形態 | - | 契約期間 | - |
| 入居・引渡期間 | 即時 | 現況 | - |
| 入居可能条件 | 事務所可、楽器相談、ペット相談 | ||
| 契約備考 | 大倉山駅徒歩5分/巡回管理 鍵交換費用16000円・退去時クリーニング費用 88000円・火災保険料は人数によって異なります・ペット飼育費 小型犬1匹につき3000円2匹まで可 2LDK ルームシェア相談 損保【1.6万円2年】 バストイレ別、ガスコンロ対応、TVインターホン、浴室乾燥機、オートロック、室内洗濯置、陽当り良好、システムキッチン、南向き、追焚機能浴室、温水洗浄便座、洗面所独立、2口コンロ、駐輪場、宅配ボックス、即入居可、閑静な住宅地、BS・CS、防犯カメラ、ペット相談、ウォークインクロゼット、デザイナーズ、エアコン2台、ネット使用料不要、トランクルーム、1フロア2住戸、事務所相談、ルーフバルコニー、楽器相談、ルームシェア相談、南面2室、人感照明センサー、ペット専用設備、両面バルコニー、フラットフロア、浴室未使用、トイレ未使用、防音サッシ、3方角住戸、耐震構造、防音室、屋上、可動間仕切り、太陽光発電システム、3沿線以上利用可、駅徒歩5分以内、ベタ基礎、折上天井、敷地内遊び場、庭10坪以上、当社管理物件、食品庫、備付食器棚、キッチン未使用、都市ガス、三面鏡付洗面化粧台、南面バルコニー、室内物干機、シューズWIC | ||
部屋の情報
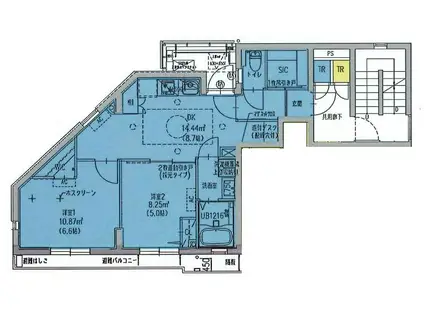
| 間取り | 2LDK | 専有面積 | 49.7m2 |
|---|---|---|---|
| 所在階 / 向き | 2階 / 南 | バルコニー面積 | 8m2 |
| 水道 / ガス | - | ||
| 設備 | バス・トイレ別、2階以上、オートロック、テレビドアホン、宅配ボックス、浴室乾燥機、ウォークインクローゼット、追い焚き、インターネット対応、システムキッチン、エアコン、温水洗浄便座、南向き、角部屋、バルコニー、トランクルーム、洗髪洗面化粧台、2口コンロ、コンロ:ガス、デザイナーズ、CSアンテナ、BSアンテナ、インターネット使用料無料、洗濯機:室内 | ||
| 当社物件ID | 160206624 | ||
建物の情報
| 建物名 | 屋上庭園付きマンション アースアートビル | ||
|---|---|---|---|
| 所在地 | 神奈川県横浜市港北区大曽根 | ||
| 交通 | 東急東横線 大倉山駅(神奈川) 徒歩5分 東急東横線 菊名駅 徒歩21分 | ||
| 階数 | 3階建 | 総戸数 | 4戸 |
| 築年月 | 2026年01月 / 築1年 | エレベーター | - |
| 駐車場 | なし | バイク置き場 | - |
| 駐輪場 | あり | 管理人/管理会社 | - |
| 周辺環境 | その他 大倉山記念病院(病院)まで250m その他 大曾根南公園(公園)まで90m | ||
| 建物種別 | マンション | 建物構造 | RC(鉄筋コンクリート) |
この部屋の取扱い不動産会社
| 会社名 | アートハウス(株)(SUUMO経由) | ||
|---|---|---|---|
| 所在地 | 神奈川県横浜市港北区大倉山3-3-39 アートビル1階 | 交通 | - |
| 営業時間 | - | 定休日 | - |
| 免許番号 | 神奈川県知事26020 | 取引態様 | 代理 |
| 不動産会社管理番号 | 100481873800 | 当社管理番号 | 89 |
| 所属団体 | (公社)神奈川県宅地建物取引業協会会員 | ||
| 公正取引協議会 | (公社)首都圏不動産公正取引協議会加盟 | ||
| 取扱い物件情報 | 物件詳細へ | ||
※各種情報と現状に差異がある場合は、現状優先となります。問い合わせをすることで、より詳しい条件、情報を確認する事ができます。
提供:アートハウス(株)(SUUMO経由)
この物件が気になったら掲載期限まであと10日
屋上庭園付きマンション アースアートビルに条件(家賃・エリア)が近い物件一覧
| 写真 | 家賃 管理費等 | 敷金 礼金 | 間取り 専有面積 | 築年数 | 最寄り駅 所在地 | キープ | 詳細 |
|---|---|---|---|---|---|---|---|
アパート D PAINA松見町(1LDK/3階) | |||||||
![]() | 11.9万円 5,500円 | なし 23.8万円 | 1LDK 42.11m2 | 新築 | JR横浜線 大口駅 徒歩14分 東急東横線 妙蓮寺駅 徒歩15分 JR横浜線 菊名駅 徒歩24分 神奈川県横浜市神奈川区松見町 | 詳細を見る | |
マンション サンクレールカワサキ(1LDK/7階) | |||||||
![]() | 15.4万円 8,000円 | 15.4万円 15.4万円 | 1LDK 43.5m2 | 築8年 | 京急本線 京急川崎駅 徒歩6分 JR東海道本線 川崎駅 徒歩9分 JR京浜東北線 川崎駅 徒歩9分 神奈川県川崎市川崎区本町 | 詳細を見る | |
マンション プライムガーデン湘南藤沢(3LDK/2階) | |||||||
![]() | 13.2万円 6,000円 | 26.4万円 13.2万円 | 3LDK 70m2 | 築32年 | 東海道本線 藤沢駅 徒歩18分 神奈川県藤沢市弥勒寺3丁目 | 詳細を見る | |
マンション カーサ・ルミナーレ(2LDK/4階) | |||||||
![]() | 22.2万円 6,000円 | 22.2万円 44.4万円 | 2LDK 70.03m2 | 築1年 | 東急田園都市線 高津駅(神奈川) 徒歩7分 神奈川県川崎市高津区二子 | 詳細を見る | |
テラスハウス グレイス鎌倉A(2LDK) | |||||||
![]() | 13.5万円 4,500円 | なし 13.5万円 | 2LDK 65.01m2 | 築18年 | 江ノ島電鉄 鎌倉駅 徒歩18分 神奈川県鎌倉市大町3丁目 | 詳細を見る | |
アパート CARPE LUXカープラックス(1LDK/1階) | |||||||
![]() | 13万円 6,500円 | なし 26万円 | 1LDK 40.87m2 | 築9年 | JR南武線 鹿島田駅 徒歩13分 JR南武線 矢向駅 徒歩17分 JR横須賀線 新川崎駅 徒歩18分 神奈川県川崎市幸区下平間 | 詳細を見る | |
マンション アリエッタ(3LDK/2階) | |||||||
![]() | 15.6万円 9,500円 | なし 31.2万円 | 3LDK 74.37m2 | 築1年 | 神奈川県藤沢市大庭 | 詳細を見る | |








