賃貸マンション
コートヤードの賃貸物件情報(1K/2階)
| 家賃 | 管理費等 | 敷金 | 礼金 | 間取り | 専有面積 |
|---|---|---|---|---|---|
| 8.2万円 | 5,000円 | 8.2万円 | 12.3万円 | 1K | 22.37m2 |
入居決定でお祝い金最大100,000円
- 保証金
- -
- 償却・敷引
- -
- 築年数
- 築15年
- 所在階
- 2階
- 向き
- -
Point
まずはお問い合わせ!
不動産会社は街のプロ、あなたに合った物件がきっと見つかります。
提供:(株)ハウスパートナー日暮里店(SUUMO経由)

詳細情報 コートヤード
物件紹介
コートヤードはJR京浜東北線東十条駅から徒歩5分にあり、駅近で通勤通学に便利なマンションです。
このお部屋は2階以上に位置しているので、通行人や周囲の住人からの視線が気になりにくく、防犯面でも安心。建物のエントランスはオートロックがついており、インターホンにはTVモニタもついているため、相手の顔を確認してから来客対応することができます。
フローリングのお部屋なのでお掃除もラクラク。キッチンはシステムキッチン仕様になっていますので、お料理好きの方にもぴったり。また、バス・トイレは別で、のんびりお風呂タイムも楽しめるでしょう。
通信設備面では、インターネット接続が可能です(別途工事、契約料が必要な場合あり)。
このお部屋は2階以上に位置しているので、通行人や周囲の住人からの視線が気になりにくく、防犯面でも安心。建物のエントランスはオートロックがついており、インターホンにはTVモニタもついているため、相手の顔を確認してから来客対応することができます。
フローリングのお部屋なのでお掃除もラクラク。キッチンはシステムキッチン仕様になっていますので、お料理好きの方にもぴったり。また、バス・トイレは別で、のんびりお風呂タイムも楽しめるでしょう。
通信設備面では、インターネット接続が可能です(別途工事、契約料が必要な場合あり)。
お金・契約の情報
※「-」と表示されているものは、実際は料金が発生するものもございます。詳細はお問い合わせください。
| 家賃 | 8.2万円 | 管理費・共益費 | 5,000円 |
|---|---|---|---|
| 敷金 | 8.2万円 | 礼金 | 12.3万円 |
| 入居決定でお祝い金最大100,000円 | |||
| 保証金 | - | 償却・敷引 | - |
| 住宅保険料 | - | 更新料 | - |
| 保証会社利用 | 必須 | 保証会社名 | - |
| 保証会社費用 | - | 保証会社備考 | 保証会社利用必 初回総賃料の100% |
| 契約形態 | - | 契約期間 | - |
| 入居・引渡期間 | - | 現況 | - |
| 契約備考 | JR京浜東北・根岸線王子駅徒歩20分/かぎこう27500円 クリーニング費用:45100円 消臭・除菌代:11000円 24時間サポート:16500円/2年。 更新料新賃料(ヶ月):1.00ヶ月 1K 普通借家2年 損保【要】 バストイレ別、バルコニー、エアコン、ガスコンロ対応、フローリング、シャワー付洗面台、TVインターホン、オートロック、室内洗濯置、シューズボックス、システムキッチン、脱衣所、洗面所独立、洗面化粧台、2口コンロ、駐輪場、光ファイバー、保証人不要、敷金1ヶ月、保証金不要、都市ガス、高速ネット対応、IT重説対応物件、初期費用カード決済可 入居日:'26年3月下旬 | ||
部屋の情報
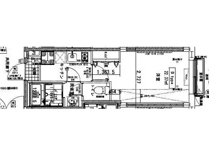
| 間取り | 1K | 専有面積 | 22.37m2 |
|---|---|---|---|
| 所在階 / 向き | 2階 / - | バルコニー面積 | - |
| 水道 / ガス | - | ||
| 設備 | バス・トイレ別、2階以上、オートロック、テレビドアホン、インターネット対応、システムキッチン、エアコン、バルコニー、フローリング、洗髪洗面化粧台、2口コンロ、コンロ:ガス、洗濯機:室内 | ||
| 当社物件ID | 7806042 | ||
建物の情報
| 建物名 | コートヤード | ||
|---|---|---|---|
| 所在地 | 東京都北区中十条 | ||
| 交通 | JR京浜東北線 東十条駅 徒歩5分 JR埼京線 十条駅(東京) 徒歩7分 東京メトロ南北線 王子神谷駅 徒歩18分 | ||
| 階数 | 3階建 | 総戸数 | 14戸 |
| 築年月 | 2011年03月 / 築15年 | エレベーター | - |
| 駐車場 | なし | バイク置き場 | - |
| 駐輪場 | あり | 管理人/管理会社 | - |
| 周辺環境 | その他 みずほ銀行王子支店(銀行)まで1390m その他 まいばすけっと十条銀座東通り店(スーパー)まで580m その他 セブンイレブン北区東十条駅前店(コンビニ)まで260m その他 サンスクエア(ショッピングセンター)まで1630m その他 医療法人財団明理会中央総合病院(病院)まで670m その他 中十条交番(警察署・交番)まで290m | ||
| 建物種別 | マンション | 建物構造 | 鉄骨造 |
この部屋の取扱い不動産会社
| 会社名 | (株)ハウスパートナー日暮里店(SUUMO経由) | ||
|---|---|---|---|
| 所在地 | 東京都荒川区西日暮里2-18-2イトウビル6階 | 交通 | - |
| 営業時間 | 10:00~18:00 | 定休日 | 毎週水曜日 |
| 免許番号 | 国土交通大臣9556 | 取引態様 | 仲介 |
| 不動産会社管理番号 | 100488737829 | 当社管理番号 | 89 |
| 所属団体 | (公社)全日本不動産協会東京都本部会員 | ||
| 公正取引協議会 | (公社)首都圏不動産公正取引協議会加盟 | ||
| 取扱い物件情報 | 物件詳細へ | ||
※各種情報と現状に差異がある場合は、現状優先となります。問い合わせをすることで、より詳しい条件、情報を確認する事ができます。
提供:(株)ハウスパートナー日暮里店(SUUMO経由)
この物件が気になったら掲載期限まであと10日
コートヤードに条件(家賃・エリア)が近い物件一覧
| 写真 | 家賃 管理費等 | 敷金 礼金 | 間取り 専有面積 | 築年数 | 最寄り駅 所在地 | キープ | 詳細 |
|---|---|---|---|---|---|---|---|
アパート ヌーヴォープリエール(ワンルーム/1階) | |||||||
![]() | 7.8万円 5,000円 | 7.8万円 7.8万円 | ワンルーム 18.32m2 | 築8年 | 都営大江戸線 落合南長崎駅 徒歩7分 西武池袋線 椎名町駅 徒歩12分 西武池袋線 東長崎駅 徒歩12分 東京都豊島区南長崎 | 詳細を見る | |
マンション クレヴィスタ板橋西台Ⅲ(1K/3階) | |||||||
![]() | 8.5万円 1.5万円 | 8.5万円 8.5万円 | 1K 25.51m2 | 築8年 | 東京都三田線 高島平駅 徒歩9分 東京都板橋区高島平9丁目 | 詳細を見る | |
マンション ロイジェント大山西町(1K/2階) | |||||||
![]() | 10.1万円 1.2万円 | なし なし | 1K 25.6m2 | 築4年 | 東武東上線 大山駅(東京) 徒歩7分 東武東上線 中板橋駅 徒歩13分 都営三田線 板橋区役所前駅 徒歩18分 東京都板橋区大山西町 | 詳細を見る | |
マンション ユリカロゼ五反野Ⅲ(1K/7階) | |||||||
![]() | 9.1万円 1.5万円 | なし 9.1万円 | 1K 25.81m2 | 築1年 | 東武伊勢崎・大師線 小菅駅 徒歩6分 東武伊勢崎・大師線 五反野駅 徒歩10分 東京都足立区足立2丁目 | 詳細を見る | |
マンション ビヤンドビル(ワンルーム/2階) | |||||||
![]() | 5.5万円 なし | 5.5万円 5.5万円 | ワンルーム 19m2 | 築34年 | 東武伊勢崎・大師線 大師前駅 徒歩7分 東京都足立区西新井本町2丁目 | 詳細を見る | |
マンション プラーズ南池袋(1LDK/2階) | |||||||
![]() | 12.5万円 5,500円 | 12.5万円 なし | 1LDK 42m2 | 築39年 | 都電荒川線 鬼子母神前駅 徒歩6分 東京メトロ丸ノ内線 池袋駅 徒歩11分 JR山手線 目白駅 徒歩14分 東京都豊島区南池袋 | 詳細を見る | |
マンション サンテミリオン目白台(1K/1階) | |||||||
![]() | 7.9万円 6,000円 | 7.9万円 7.9万円 | 1K 20.04m2 | 築24年 | 東京メトロ有楽町線 護国寺駅 徒歩10分 都電荒川線 早稲田駅(都電) 徒歩11分 都電荒川線 面影橋駅 徒歩14分 東京都文京区目白台 | 詳細を見る | |
マンション LA BELLE VIE(1LDK/2階) | |||||||
![]() | 13万円 6,000円 | なし 13万円 | 1LDK 41.16m2 | 築3年 | JR埼京線 北赤羽駅 徒歩3分 東京メトロ南北線 赤羽岩淵駅 徒歩22分 JR京浜東北線 赤羽駅 徒歩26分 東京都北区赤羽北 | 詳細を見る | |









