賃貸マンション
カーサラスク目白台の賃貸物件情報(1K/7階)
| 家賃 | 管理費等 | 敷金 | 礼金 | 間取り | 専有面積 |
|---|---|---|---|---|---|
| 11.5万円 | 5,000円 | 11.5万円 | 11.5万円 | 1K | 25.37m2 |
入居決定でお祝い金最大100,000円
- 保証金
- -
- 償却・敷引
- -
- 築年数
- 築12年
- 所在階
- 7階
- 向き
- 南
- 交通
- 東京地下鉄有楽町線 護国寺駅 徒歩5分
東京地下鉄副都心線 雑司が谷駅(東京メトロ) 徒歩11分
東京地下鉄有楽町線 東池袋駅 徒歩15分
- 所在地
- 東京都文京区目白台2丁目
カーサラスク目白台
[地図を表示]
Point
仲手0.5 駅近くの便利な立地 南向きのお部屋です
提供:株式会社サンコーホーム(賃貸スモッカ経由)

詳細情報 カーサラスク目白台
物件紹介
カーサラスク目白台は東京地下鉄有楽町線護国寺駅から徒歩5分にあり、駅近で通勤通学に便利なマンションです。
このお部屋は2階以上に位置しているので通行人や周囲の住人からの視線が気になりにくく、建物のエントランスはオートロックがついているので防犯性が高くなっています。
人気の南向きのお部屋。また、フローリングなのでお掃除もラクラク。キッチンはシステムキッチン仕様になっていますので、お料理好きの方にもぴったり。バス・トイレは別なので、のんびりお風呂タイムも楽しめるでしょう。また、雨の日でも浴室乾燥機を使えば、お洗濯も問題ありません。
通信設備面では、インターネット接続が可能です。また、BSアンテナ・CSアンテナもありますので、おうち時間も充実するでしょう(別途工事、契約料が必要な場合あり)。
建物にはエレベーターがついているので、重い荷物があっても安心。共用部には宅配ボックスが設定されているので、不在の時にも荷物を受け取ることができます。
このお部屋は2階以上に位置しているので通行人や周囲の住人からの視線が気になりにくく、建物のエントランスはオートロックがついているので防犯性が高くなっています。
人気の南向きのお部屋。また、フローリングなのでお掃除もラクラク。キッチンはシステムキッチン仕様になっていますので、お料理好きの方にもぴったり。バス・トイレは別なので、のんびりお風呂タイムも楽しめるでしょう。また、雨の日でも浴室乾燥機を使えば、お洗濯も問題ありません。
通信設備面では、インターネット接続が可能です。また、BSアンテナ・CSアンテナもありますので、おうち時間も充実するでしょう(別途工事、契約料が必要な場合あり)。
建物にはエレベーターがついているので、重い荷物があっても安心。共用部には宅配ボックスが設定されているので、不在の時にも荷物を受け取ることができます。
お金・契約の情報
※「-」と表示されているものは、実際は料金が発生するものもございます。詳細はお問い合わせください。
| 家賃 | 11.5万円 | 管理費・共益費 | 5,000円 |
|---|---|---|---|
| 敷金 | 11.5万円 | 礼金 | 11.5万円 |
| 入居決定でお祝い金最大100,000円 | |||
| 保証金 | - | 償却・敷引 | - |
| 住宅保険料 | 住宅保険料あり | 更新料 | - |
| 契約形態 | - | 契約期間 | 2年 |
| 入居・引渡期間 | 相談 | 現況 | 居住中 |
| 契約備考 | 初期費用のクレジットカード払いや各種分割払い可能です。諸条件ご相談ください。その他インターネット掲載物件は当店で併せてご紹介可能です 更新料:1ヶ月 保証会社:利用必須 DHF保証:契約時総賃料の35%、毎月総賃料の1%、更新時更新料の1%、退去時原状回復費1% その他設備/条件:防犯カメラ、コンロ2口以上、独立洗面台、TVドアホン | ||
部屋の情報
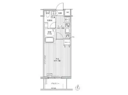
| 間取り | 1K | 専有面積 | 25.37m2 |
|---|---|---|---|
| 間取り詳細 | 洋室(8.3帖)、K(2.2帖) | ||
| 所在階 / 向き | 7階 / 南 | バルコニー面積 | - |
| 水道 / ガス | - | ||
| 設備 | バス・トイレ別、2階以上、オートロック、宅配ボックス、浴室乾燥機、インターネット対応、システムキッチン、エアコン、エレベーター、温水洗浄便座、南向き、バルコニー、フローリング、コンロ:ガス、CSアンテナ、BSアンテナ、洗濯機:室内 | ||
| 当社物件ID | 102653738 | ||
建物の情報
| 建物名 | カーサラスク目白台 | ||
|---|---|---|---|
| 所在地 | 東京都文京区目白台2丁目 | ||
| 交通 | 東京地下鉄有楽町線 護国寺駅 徒歩5分 東京地下鉄副都心線 雑司が谷駅(東京メトロ) 徒歩11分 東京地下鉄有楽町線 東池袋駅 徒歩15分 | ||
| 階数 | 10階建 | 総戸数 | - |
| 築年月 | 2015年02月 / 築12年 | エレベーター | あり |
| 駐車場 | - | バイク置き場 | - |
| 駐輪場 | あり | 管理人/管理会社 | - |
| 建物種別 | マンション | 建物構造 | RC(鉄筋コンクリート) |
この部屋の取扱い不動産会社
| 会社名 | 株式会社サンコーホーム(賃貸スモッカ経由) | ||
|---|---|---|---|
| 所在地 | 東京都台東区上野5丁目23-8 キューアス御徒町ビル3F | 交通 | - |
| 営業時間 | - | 定休日 | - |
| 免許番号 | 東京都知事免許(2)第96594号 | 取引態様 | 仲介 |
| 不動産会社管理番号 | sankohome_120160010141014 | 当社管理番号 | 463 |
| 所属団体 | (公社)全国宅地建物取引業協会連合会\n公益社団法人首都圏不動産公正取引協議会 | ||
| 公正取引協議会 | (公社)全国宅地建物取引業保証協会 | ||
| 取扱い物件情報 | 物件詳細へ | ||
※各種情報と現状に差異がある場合は、現状優先となります。問い合わせをすることで、より詳しい条件、情報を確認する事ができます。
提供:株式会社サンコーホーム(賃貸スモッカ経由)
この物件が気になったら掲載期限まであと7日
カーサラスク目白台に条件(家賃・エリア)が近い物件一覧
| 写真 | 家賃 管理費等 | 敷金 礼金 | 間取り 専有面積 | 築年数 | 最寄り駅 所在地 | キープ | 詳細 |
|---|---|---|---|---|---|---|---|
マンション カーサブリランテ本駒込(ワンルーム/3階) | |||||||
![]() | 17.4万円 1万円 | なし 17.4万円 | ワンルーム 35.63m2 | 築1年 | 東京地下鉄南北線 本駒込駅 徒歩5分 東京都三田線 千石駅 徒歩14分 東京地下鉄南北線 駒込駅 徒歩15分 東京都文京区本駒込1丁目 | 詳細を見る | |
マンション レジディア文京湯島(ワンルーム/5階) | |||||||
![]() | 15.6万円 2万円 | なし なし | ワンルーム 31.4m2 | 築24年 | 東京地下鉄丸ノ内線 本郷三丁目駅 徒歩7分 東京地下鉄千代田線 湯島駅 徒歩8分 中央本線 御茶ノ水駅 徒歩10分 東京都文京区湯島2丁目 | 詳細を見る | |
マンション GRAN PASEO本郷三丁目(1K/2階) | |||||||
![]() | 13.7万円 1.5万円 | なし 13.7万円 | 1K 25.7m2 | 築6年 | 東京地下鉄丸ノ内線 本郷三丁目駅 徒歩7分 東京地下鉄千代田線 湯島駅 徒歩8分 中央本線 御茶ノ水駅 徒歩12分 東京都文京区本郷3丁目 | 詳細を見る | |
マンション クラリティア文京湯島(1DK/1階) | |||||||
![]() | 15.4万円 1.5万円 | 15.4万円 なし | 1DK 25.06m2 | 築1年 | 東京地下鉄千代田線 湯島駅 徒歩5分 東京地下鉄銀座線 末広町駅(東京) 徒歩7分 中央本線 御茶ノ水駅 徒歩9分 東京都文京区湯島3丁目 | 詳細を見る | |
マンション AQUA SWEET NIPPORI(1K/5階) | |||||||
![]() | 9.1万円 1万円 | なし 9.1万円 | 1K 24.13m2 | 築19年 | JR常磐線 三河島駅 徒歩5分 京成本線 新三河島駅 徒歩5分 JR山手線 日暮里駅 徒歩9分 東京都荒川区西日暮里 | 詳細を見る | |
マンション エリタージュ(1K/3階) | |||||||
![]() | 9.8万円 4,000円 | 9.8万円 9.8万円 | 1K 25m2 | 築1年 | 日暮里舎人ライナー 赤土小学校前駅 徒歩4分 山手線 田端駅 徒歩15分 東京都荒川区東尾久4丁目 | 詳細を見る | |
マンション パレステュディオ神田イースト(1K/3階) | |||||||
![]() | 9万円 1.5万円 | なし なし | 1K 23.25m2 | 築23年 | JR総武線快速 馬喰町駅 徒歩2分 東京メトロ日比谷線 小伝馬町駅 徒歩4分 JR総武線 浅草橋駅 徒歩10分 東京都千代田区東神田 | 詳細を見る | |
マンション ベルファース神田神保町(1DK/11階) | |||||||
![]() | 18万円 1万円 | 18万円 なし | 1DK 25.05m2 | 築3年 | 東京地下鉄半蔵門線 神保町駅 徒歩4分 東京都三田線 神保町駅 徒歩4分 総武・中央緩行線 水道橋駅 徒歩8分 東京都千代田区神田神保町1丁目 | 詳細を見る | |









