賃貸マンション
コンフォリア・リヴ木場イーストIの賃貸物件情報(1DK/2階)
| 家賃 | 管理費等 | 敷金 | 礼金 | 間取り | 専有面積 |
|---|---|---|---|---|---|
| 13.7万円 | 8,000円 | 13.7万円 | なし | 1DK | 25.16m2 |
入居決定でお祝い金最大100,000円
- 保証金
- -
- 償却・敷引
- -
- 築年数
- 築1年
- 所在階
- 2階
- 向き
- 北
Point
【オンラインでのご相談・ご契約も可能】★日常生活に便利なコンビニ・スーパーも近く生活環境良好/オートロックで安心のセキュリティ/独立洗面台やシステムキッチン・浴室乾燥機・宅配ボックスなど充実な設備★退
提供:(株)クレアスレント上野店(SUUMO経由)

詳細情報 コンフォリア・リヴ木場イーストI
物件紹介
コンフォリア・リヴ木場イーストIは東京メトロ東西線木場駅から徒歩5分にあり、駅近で通勤通学に便利なマンションです。
このお部屋は2階以上に位置しているので、通行人や周囲の住人からの視線が気になりにくく、防犯面でも安心。建物のエントランスはオートロックがついており、インターホンにはTVモニタもついているため、相手の顔を確認してから来客対応することができます。
おしゃれなデザイナーズ物件!フローリングのお部屋なのでお掃除もラクラク。キッチンはシステムキッチン仕様になっていますので、お料理好きの方にもぴったり。バス・トイレは別なので、のんびりお風呂タイムも楽しめるでしょう。また、雨の日でも浴室乾燥機を使えば、お洗濯も問題ありません。
通信設備面では、インターネットが無料で使えるので、月々の出費を抑えられるのも魅力です。また、BSアンテナ・CSアンテナもありますので、おうち時間も充実するでしょう(別途工事、BS・CSの契約料等が必要な場合あり)。
建物にはエレベーターがついているので、重い荷物があっても安心。共用部には宅配ボックスが設定されているので、不在の時にも荷物を受け取ることができます。また、ペット飼育の相談ができますので、あなたの大切な家族の一員も快適に暮らせるか、ぜひ確認してみてください。
このお部屋は2階以上に位置しているので、通行人や周囲の住人からの視線が気になりにくく、防犯面でも安心。建物のエントランスはオートロックがついており、インターホンにはTVモニタもついているため、相手の顔を確認してから来客対応することができます。
おしゃれなデザイナーズ物件!フローリングのお部屋なのでお掃除もラクラク。キッチンはシステムキッチン仕様になっていますので、お料理好きの方にもぴったり。バス・トイレは別なので、のんびりお風呂タイムも楽しめるでしょう。また、雨の日でも浴室乾燥機を使えば、お洗濯も問題ありません。
通信設備面では、インターネットが無料で使えるので、月々の出費を抑えられるのも魅力です。また、BSアンテナ・CSアンテナもありますので、おうち時間も充実するでしょう(別途工事、BS・CSの契約料等が必要な場合あり)。
建物にはエレベーターがついているので、重い荷物があっても安心。共用部には宅配ボックスが設定されているので、不在の時にも荷物を受け取ることができます。また、ペット飼育の相談ができますので、あなたの大切な家族の一員も快適に暮らせるか、ぜひ確認してみてください。
お金・契約の情報
※「-」と表示されているものは、実際は料金が発生するものもございます。詳細はお問い合わせください。
| 家賃 | 13.7万円 | 管理費・共益費 | 8,000円 |
|---|---|---|---|
| 敷金 | 13.7万円 | 礼金 | なし |
| 入居決定でお祝い金最大100,000円 | |||
| 保証金 | - | 償却・敷引 | - |
| 住宅保険料 | - | 更新料 | - |
| 保証会社利用 | 必須 | 保証会社名 | - |
| 保証会社費用 | - | 保証会社備考 | 保証会社利用必 初回保証料総賃料50%月額1% |
| 契約形態 | - | 契約期間 | - |
| 入居・引渡期間 | 即時 | 現況 | - |
| 入居可能条件 | ペット相談 | ||
| 契約備考 | 退去時クリーニング費用38500円。エアコンクリーニング費用11000円。ペット飼育時敷金1か月追加。1年未満解約時違約金1か月。※仕様・図面・写真等に相違があった場合は現況を優先します 更新料 新賃料1.00ヶ月分 室内清掃費用 38500円 1DK ペット相談 普通借家2年 損保【1.66万円2年】 バストイレ別、バルコニー、エアコン、ガスコンロ対応、クロゼット、フローリング、TVインターホン、浴室乾燥機、オートロック、室内洗濯置、シューズボックス、システムキッチン、温水洗浄便座、脱衣所、エレベーター、洗面所独立、洗面化粧台、2口コンロ、宅配ボックス、即入居可、礼金不要、防犯カメラ、ペット相談、デザイナーズ、ディンプルキー、ネット使用料不要、ダブルロックキー、防音サッシ、3駅以上利用可、敷地内ごみ置き場、都市ガス | ||
部屋の情報
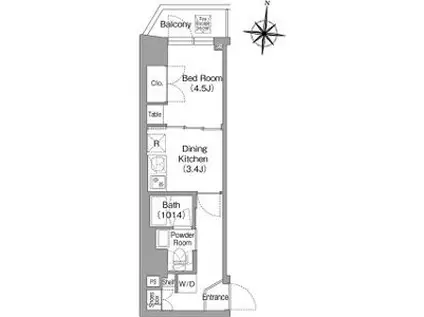
| 間取り | 1DK | 専有面積 | 25.16m2 |
|---|---|---|---|
| 所在階 / 向き | 2階 / 北 | バルコニー面積 | - |
| 水道 / ガス | - | ||
| 設備 | バス・トイレ別、2階以上、オートロック、テレビドアホン、宅配ボックス、浴室乾燥機、インターネット対応、システムキッチン、エアコン、エレベーター、温水洗浄便座、バルコニー、フローリング、洗髪洗面化粧台、2口コンロ、コンロ:ガス、デザイナーズ、インターネット使用料無料、洗濯機:室内 | ||
| 当社物件ID | 160118755 | ||
建物の情報
| 建物名 | コンフォリア・リヴ木場イーストI | ||
|---|---|---|---|
| 所在地 | 東京都江東区東陽 | ||
| 交通 | 東京メトロ東西線 木場駅 徒歩5分 東京メトロ東西線 東陽町駅 徒歩9分 東京メトロ東西線 門前仲町駅 徒歩20分 | ||
| 階数 | 9階建 | 総戸数 | - |
| 築年月 | 2025年11月 / 築1年 | エレベーター | あり |
| 駐車場 | なし | バイク置き場 | - |
| 駐輪場 | - | 管理人/管理会社 | - |
| 周辺環境 | その他 ドトールコーヒーショップ 木場店(飲食店)まで311m その他 エニタイムフィットネス 木場店(その他)まで454m その他 まいばすけっと 木場駅前店(スーパー)まで328m その他 まいばすけっと 東陽5丁目店(スーパー)まで731m その他 ローソンストア100 LS東陽一丁目店(コンビニ)まで47m その他 キャンドゥ 東陽3丁目店(その他)まで219m | ||
| 建物種別 | マンション | 建物構造 | RC(鉄筋コンクリート) |
この部屋の取扱い不動産会社
| 会社名 | (株)クレアスレント上野店(SUUMO経由) | ||
|---|---|---|---|
| 所在地 | 東京都台東区上野7-2-2 東叡堂ビル4階 | 交通 | - |
| 営業時間 | 10時~19時 | 定休日 | 毎週水曜日 |
| 免許番号 | 国土交通大臣10473 | 取引態様 | 仲介 |
| 不動産会社管理番号 | 100480187441 | 当社管理番号 | 89 |
| 所属団体 | (公社)東京都宅地建物取引業協会会員 | ||
| 公正取引協議会 | (公社)首都圏不動産公正取引協議会加盟 | ||
| 取扱い物件情報 | 物件詳細へ | ||
※各種情報と現状に差異がある場合は、現状優先となります。問い合わせをすることで、より詳しい条件、情報を確認する事ができます。
提供:(株)クレアスレント上野店(SUUMO経由)
この物件が気になったら掲載期限まであと11日
コンフォリア・リヴ木場イーストIに条件(家賃・エリア)が近い物件一覧
| 写真 | 家賃 管理費等 | 敷金 礼金 | 間取り 専有面積 | 築年数 | 最寄り駅 所在地 | キープ | 詳細 |
|---|---|---|---|---|---|---|---|
アパート セントラル萩中(1LDK/1階) | |||||||
![]() | 11.4万円 なし | 11.4万円 なし | 1LDK 39.96m2 | 築9年 | 京浜急行電鉄空港線 糀谷駅 徒歩8分 東京都大田区萩中2丁目 | 詳細を見る | |
マンション ルーブル蒲田伍番館(1K/8階) | |||||||
![]() | 9万円 なし | なし 9万円 | 1K 20.66m2 | 築22年 | 東急池上線 蓮沼駅 徒歩4分 JR京浜東北線 蒲田駅 徒歩5分 東急多摩川線 矢口渡駅 徒歩15分 東京都大田区西蒲田 | 詳細を見る | |
マンション AXAS南蒲田ASYLCOURT(1K/3階) | |||||||
![]() | 9.5万円 8,000円 | なし 9.5万円 | 1K 25.52m2 | 築12年 | 京急空港線 糀谷駅 徒歩8分 京急本線 京急蒲田駅 徒歩12分 JR京浜東北線 蒲田駅 徒歩19分 東京都大田区南蒲田 | 詳細を見る | |
マンション 門前仲町レジデンス参番館(1K/13階) | |||||||
![]() | 10.8万円 7,000円 | 11.5万円 なし | 1K 23.14m2 | 築16年 | 東京地下鉄東西線 門前仲町駅 徒歩7分 東京都江東区富岡1丁目 | 詳細を見る | |
マンション VILLA VICINA(1LDK/1階) | |||||||
![]() | 14.2万円 4,000円 | 14.2万円 28.4万円 | 1LDK 44.5m2 | 築18年 | 総武・中央緩行線 錦糸町駅 徒歩13分 東京地下鉄半蔵門線 錦糸町駅 徒歩13分 東京都浅草線 本所吾妻橋駅 徒歩15分 東京都墨田区亀沢3丁目 | 詳細を見る | |
マンション プラウドフラット墨田曳舟ディアージュ(1LDK/1階) | |||||||
![]() | 18.8万円 1.2万円 | 18.8万円 なし | 1LDK 40.32m2 | 築3年 | 京成電鉄押上線 京成曳舟駅 徒歩3分 東武伊勢崎・大師線 曳舟駅 徒歩4分 東武鉄道亀戸線 曳舟駅 徒歩4分 東京都墨田区東向島2丁目 | 詳細を見る | |
マンション プレール・ドゥーク本所吾妻橋3(1K/3階) | |||||||
![]() | 10.1万円 8,000円 | なし 10.1万円 | 1K 25.95m2 | 築8年 | 東京都浅草線 本所吾妻橋駅 徒歩8分 東武伊勢崎・大師線 とうきょうスカイツリー駅 徒歩10分 東京地下鉄半蔵門線 押上駅 徒歩13分 東京都墨田区本所4丁目 | 詳細を見る | |
タウンハウス 大田菜園長屋(2LDK) | |||||||
![]() | 15.9万円 5,000円 | 15.9万円 7.95万円 | 2LDK 52.17m2 | 築9年 | 京浜急行電鉄本線 雑色駅 徒歩8分 京浜急行電鉄本線 六郷土手駅 徒歩13分 東京都大田区東六郷3丁目 | 詳細を見る | |









