賃貸マンション
井吹東シティコート17号棟 Aタイプの賃貸物件情報(3DK/3階)
| 家賃 | 管理費等 | 敷金 | 礼金 | 間取り | 専有面積 |
|---|---|---|---|---|---|
| 7.31万円 | 2,000円 | 7.31万円 | なし | 3DK | 60.5m2 |
入居決定でお祝い金最大100,000円
- 保証金
- -
- 償却・敷引
- -
- 築年数
- 築31年
- 所在階
- 3階
- 向き
- 南東
Point
BSアンテナ工事済みの、嬉しい条件が整った物件となっています。費用を抑えることの出来る賃貸物件でありながら、中は綺麗です。CATVは充実のチャンネルが魅力の、夜更かし注意の楽しすぎるコンテンツです。
提供:(株)REPRO神戸本店(SUUMO経由)

詳細情報 井吹東シティコート17号棟 Aタイプ
物件紹介
井吹東シティコート17号棟 Aタイプは地下鉄西神・山手線西神南駅から徒歩13分にあるマンションです。
このお部屋は2階以上に位置しているので、通行人や周囲の住人からの視線が気になりにくく、防犯面でも安心です。
こちらは楽器相談が可能な物件。楽器演奏をお考えの方はぜひ相談してみてください。人気の南向きのお部屋。また、フローリングなのでお掃除もラクラク。バス・トイレ別の仕様で、のんびりお風呂タイムも楽しめます。
通信設備面では、インターネット接続が可能です。また、BSアンテナがありCATVにも対応しているので、おうち時間も充実するでしょう(別途工事、契約料が必要な場合あり)。
このお部屋は2階以上に位置しているので、通行人や周囲の住人からの視線が気になりにくく、防犯面でも安心です。
こちらは楽器相談が可能な物件。楽器演奏をお考えの方はぜひ相談してみてください。人気の南向きのお部屋。また、フローリングなのでお掃除もラクラク。バス・トイレ別の仕様で、のんびりお風呂タイムも楽しめます。
通信設備面では、インターネット接続が可能です。また、BSアンテナがありCATVにも対応しているので、おうち時間も充実するでしょう(別途工事、契約料が必要な場合あり)。
お金・契約の情報
※「-」と表示されているものは、実際は料金が発生するものもございます。詳細はお問い合わせください。
| 家賃 | 7.31万円 | 管理費・共益費 | 2,000円 |
|---|---|---|---|
| 敷金 | 7.31万円 | 礼金 | なし |
| 入居決定でお祝い金最大100,000円 | |||
| 保証金 | - | 償却・敷引 | - |
| 住宅保険料 | - | 更新料 | - |
| 契約形態 | - | 契約期間 | - |
| 入居・引渡期間 | 相談 | 現況 | - |
| 入居可能条件 | 楽器相談 | ||
| 契約備考 | 巡回管理 3DK 二人入居可/子供可/楽器相談 損保【0.8万円1年】 バストイレ別、バルコニー、ガスコンロ対応、クロゼット、フローリング、室内洗濯置、陽当り良好、追焚機能浴室、駐輪場、CATV、光ファイバー、閑静な住宅地、最上階、仲介手数料不要、バイク置場、2沿線利用可、緑豊かな住宅地、バリアフリー、楽器相談、2駅利用可、バス停徒歩3分以内、和室、都市ガス、BS、通風良好 | ||
部屋の情報
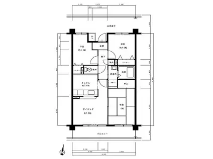
| 間取り | 3DK | 専有面積 | 60.5m2 |
|---|---|---|---|
| 所在階 / 向き | 3階 / 南東 | バルコニー面積 | - |
| 水道 / ガス | - | ||
| 設備 | バス・トイレ別、2階以上、追い焚き、インターネット対応、南向き、バルコニー、フローリング、コンロ:ガス、CATV、BSアンテナ、洗濯機:室内 | ||
| 当社物件ID | 160274979 | ||
建物の情報
| 建物名 | 井吹東シティコート17号棟 Aタイプ | ||
|---|---|---|---|
| 所在地 | 兵庫県神戸市西区井吹台東町 | ||
| 交通 | 地下鉄西神・山手線 西神南駅 徒歩13分 地下鉄西神・山手線 西神中央駅 徒歩40分 JR山陽本線 明石駅 バス乗車時間:30分 最寄りバス停で下車 徒歩2分 | ||
| 階数 | 3階建 | 総戸数 | - |
| 築年月 | 1995年12月 / 築31年 | エレベーター | - |
| 駐車場 | 空有 9900円 | バイク置き場 | あり |
| 駐輪場 | あり | 管理人/管理会社 | - |
| 周辺環境 | その他 マルアイ いぶき東フレア店(スーパー)まで402m その他 セリオ(ショッピングセンター)まで1194m その他 井吹東小学校(小学校)まで690m その他 神戸市立井吹台中学校(中学校)まで1413m | ||
| 建物種別 | マンション | 建物構造 | RC(鉄筋コンクリート) |
この部屋の取扱い不動産会社
| 会社名 | (株)REPRO神戸本店(SUUMO経由) | ||
|---|---|---|---|
| 所在地 | 兵庫県神戸市西区池上2-30-1 | 交通 | - |
| 営業時間 | 10:00-19:00 | 定休日 | 無休 |
| 免許番号 | 兵庫県知事11099 | 取引態様 | 仲介 |
| 不動産会社管理番号 | 100484703320 | 当社管理番号 | 89 |
| 所属団体 | (公社)全日本不動産協会兵庫県本部会員 | ||
| 公正取引協議会 | (公社)近畿地区不動産公正取引協議会加盟 | ||
| 取扱い物件情報 | 物件詳細へ | ||
※各種情報と現状に差異がある場合は、現状優先となります。問い合わせをすることで、より詳しい条件、情報を確認する事ができます。
提供:(株)REPRO神戸本店(SUUMO経由)
この物件が気になったら掲載期限まであと10日
井吹東シティコート17号棟 Aタイプに条件(家賃・エリア)が近い物件一覧
| 写真 | 家賃 管理費等 | 敷金 礼金 | 間取り 専有面積 | 築年数 | 最寄り駅 所在地 | キープ | 詳細 |
|---|---|---|---|---|---|---|---|
アパート アンダンテ大久保(2LDK/2階) | |||||||
![]() | 8.8万円 4,500円 | 2万円 なし | 2LDK 61.6m2 | 築22年 | 山陽本線 大久保駅(兵庫) 徒歩15分 山陽電気鉄道本線 中八木駅 徒歩33分 東海道・山陽新幹線 西明石駅 徒歩44分 兵庫県明石市大久保町大窪 | 詳細を見る | |
アパート エルビエントⅡ(2LDK/3階) | |||||||
![]() | 11.6万円 6,500円 | 3万円 25万円 | 2LDK 58.38m2 | 築8年 | 山陽本線 大久保駅(兵庫) 徒歩11分 山陽電気鉄道本線 中八木駅 徒歩26分 山陽電気鉄道本線 藤江駅 徒歩37分 兵庫県明石市大久保町大窪 | 詳細を見る | |
アパート エアフォルク(2LDK/2階) | |||||||
![]() | 9.1万円 5,500円 | 3万円 なし | 2LDK 61.6m2 | 築20年 | 山陽新幹線 西明石駅 徒歩16分 JR山陽本線 西明石駅 徒歩16分 山陽電鉄本線 藤江駅 徒歩34分 兵庫県明石市明南町 | 詳細を見る | |
マンション 山陽本線 明石駅 徒歩7分 築5年(1LDK/2階) | |||||||
![]() | 10.5万円 1万円 | 10.5万円 10.5万円 | 1LDK 42.23m2 | 築5年 | 山陽本線 明石駅 徒歩7分 山陽電気鉄道本線 人丸前駅 徒歩15分 兵庫県明石市本町1丁目 | 詳細を見る | |
アパート 神戸電鉄粟生線 広野ゴルフ場前駅 徒歩17分 築19年(1K/1階) | |||||||
![]() | 5万円 5,000円 | なし 5万円 | 1K 29.98m2 | 築19年 | 神戸電鉄粟生線 広野ゴルフ場前駅 徒歩17分 神戸電鉄粟生線 緑が丘駅(兵庫) 徒歩19分 神戸電鉄粟生線 押部谷駅 徒歩40分 兵庫県三木市緑が丘町西2丁目 | 詳細を見る | |
アパート ペルル5(1LDK/1階) | |||||||
![]() | 7.3万円 4,500円 | 7.3万円 なし | 1LDK 42.5m2 | 新築 | 山陽電気鉄道本線 藤江駅 徒歩5分 山陽本線 西明石駅 徒歩20分 山陽電気鉄道本線 中八木駅 徒歩20分 兵庫県明石市藤江 | 詳細を見る | |
アパート SHAMAISON雅あさぎり(2LDK/2階) | |||||||
![]() | 10.3万円 6,500円 | 5万円 なし | 2LDK 65.08m2 | 築1年 | 山陽電鉄本線 大蔵谷駅 徒歩12分 JR山陽本線 朝霧駅 徒歩17分 山陽電鉄本線 人丸前駅 徒歩21分 兵庫県明石市朝霧町 | 詳細を見る | |
アパート JAサンビレッジ大塚B(2LDK/2階) | |||||||
![]() | 6.8万円 4,000円 | なし 13.6万円 | 2LDK 52.84m2 | 築31年 | 神戸電鉄粟生線 恵比須駅 徒歩5分 兵庫県三木市大塚 | 詳細を見る | |







