賃貸マンション
CREST TAPP名古屋山王の賃貸物件情報(1DK/12階)
| 家賃 | 管理費等 | 敷金 | 礼金 | 間取り | 専有面積 |
|---|---|---|---|---|---|
| 5.76万円 | 2万円 | なし | なし | 1DK | 26.38m2 |
入居決定でお祝い金最大100,000円
Point
まずはお問い合わせ!
不動産会社は街のプロ、あなたに合った物件がきっと見つかります。
提供:(株)ニッショー金山支店(SUUMO経由)

詳細情報 CREST TAPP名古屋山王
物件紹介
CREST TAPP名古屋山王は名鉄名古屋本線山王駅から徒歩9分にあり、駅近で通勤通学に便利なマンションです。
このお部屋は2階以上に位置しているので、通行人や周囲の住人からの視線が気になりにくく、防犯面でも安心。建物のエントランスはオートロックがついており、インターホンにはTVモニタもついているため、相手の顔を確認してから来客対応することができます。
おしゃれなデザイナーズ物件!人気の角部屋で周囲の居住者の生活音も気になりにくく、また、フローリングのお部屋なのでお掃除もラクラク。キッチンはシステムキッチン仕様になっていますので、お料理好きの方にもぴったり。バス・トイレは別なので、のんびりお風呂タイムも楽しめるでしょう。また、雨の日でも浴室乾燥機を使えば、お洗濯も問題ありません。
通信設備面では、インターネットが無料で使えるので、月々の出費を抑えられるのも魅力です。また、CATVにも対応しているので、おうち時間も充実するでしょう(別途工事、CATVの契約料等が必要な場合あり)。
建物にはエレベーターがついているので、重い荷物があっても安心。共用部には宅配ボックスが設定されているので、不在の時にも荷物を受け取ることができます。また、ペット飼育の相談ができますので、あなたの大切な家族の一員も快適に暮らせるか、ぜひ確認してみてください。
コンビニまで徒歩10分の場所にあり、日用品や食料品のお買い物にも便利です。
このお部屋は2階以上に位置しているので、通行人や周囲の住人からの視線が気になりにくく、防犯面でも安心。建物のエントランスはオートロックがついており、インターホンにはTVモニタもついているため、相手の顔を確認してから来客対応することができます。
おしゃれなデザイナーズ物件!人気の角部屋で周囲の居住者の生活音も気になりにくく、また、フローリングのお部屋なのでお掃除もラクラク。キッチンはシステムキッチン仕様になっていますので、お料理好きの方にもぴったり。バス・トイレは別なので、のんびりお風呂タイムも楽しめるでしょう。また、雨の日でも浴室乾燥機を使えば、お洗濯も問題ありません。
通信設備面では、インターネットが無料で使えるので、月々の出費を抑えられるのも魅力です。また、CATVにも対応しているので、おうち時間も充実するでしょう(別途工事、CATVの契約料等が必要な場合あり)。
建物にはエレベーターがついているので、重い荷物があっても安心。共用部には宅配ボックスが設定されているので、不在の時にも荷物を受け取ることができます。また、ペット飼育の相談ができますので、あなたの大切な家族の一員も快適に暮らせるか、ぜひ確認してみてください。
コンビニまで徒歩10分の場所にあり、日用品や食料品のお買い物にも便利です。
お金・契約の情報
※「-」と表示されているものは、実際は料金が発生するものもございます。詳細はお問い合わせください。
| 家賃 | 5.76万円 | 管理費・共益費 | 2万円 |
|---|---|---|---|
| 敷金 | なし | 礼金 | なし |
| 入居決定でお祝い金最大100,000円 | |||
| 保証金 | - | 償却・敷引 | - |
| 住宅保険料 | 1.7万円(2年) | 更新料 | - |
| 保証会社利用 | 必須 | 保証会社名 | クレディセゾン |
| 保証会社費用 | - | 保証会社備考 | 初回保証料30%〜 年10,000円 |
| 契約形態 | - | 契約期間 | 2年 |
| 入居・引渡期間 | 2026年03月上旬 | 現況 | - |
| 入居可能条件 | ペット可 | ||
| 契約備考 | ■短期違約金:1年未満の解約で総賃料2ヶ月、1年以上、2年未満の解約で総賃料1ヶ月■ペット飼育時、1匹につき敷金1ヶ月+賃料100円UP(小型犬・猫 合計2匹まで)■解約予告2ヶ月前 24時間駆けつけサービス 990円、[退去時費用:室内清掃費 38,500円、エアコンクリーニング 16,500円 ※故意・過失等別途実費] | ||
部屋の情報
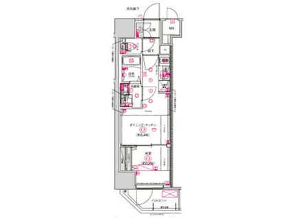
| 間取り | 1DK | 専有面積 | 26.38m2 |
|---|---|---|---|
| 間取り詳細 | DK(6.4帖)、洋室(2.9帖) | ||
| 所在階 / 向き | 12階 / 北 | バルコニー面積 | - |
| 水道 / ガス | ガス【都市】 | ||
| 設備 | バス・トイレ別、オートロック、テレビドアホン、宅配ボックス、浴室乾燥機、光ファイバー対応、システムキッチン、エレベーター、温水洗浄便座、角部屋、バルコニー、フローリング、コンロ:ガス、CATV、インターネット使用料無料、シャワー、給湯、洗濯機:室内 | ||
| 当社物件ID | 160173296 | ||
建物の情報
| 建物名 | CREST TAPP名古屋山王 | ||
|---|---|---|---|
| 所在地 | 愛知県名古屋市中川区西日置1丁目 | ||
| 交通 | 名鉄名古屋本線 山王駅(愛知) 徒歩9分 | ||
| 階数 | 15階建 | 総戸数 | 84戸 |
| 築年月 | 2026年02月 / 築1年 | エレベーター | あり |
| 駐車場 | - | バイク置き場 | - |
| 駐輪場 | あり | 管理人/管理会社 | - |
| 周辺環境 | その他 セブン−イレブン名古屋西日置2丁目店 徒歩5分(333m) その他 セブン−イレブン名古屋露橋1丁目店 徒歩11分(805m) その他 ローソン 徒歩10分(785m) その他 名鉄名古屋本線山王駅 徒歩10分(767m) その他 名古屋山王郵便局 徒歩14分(1062m) その他 ヤマナカ松原店 徒歩13分(1003m) その他 ドン・キホーテ パウ中川山王店 徒歩17分(1290m) その他 (株)大垣共立銀行/尾頭橋支店 徒歩17分(1338m) | ||
| 建物種別 | マンション | 建物構造 | RC(鉄筋コンクリート) |
この部屋の取扱い不動産会社
| 会社名 | アパマンショップ名古屋駅東口店 | ||
|---|---|---|---|
| 所在地 | 愛知県名古屋市中村区名駅4丁目 25-21 石田ビル 5F | 交通 | 名古屋市東山線名古屋から徒歩6分 |
| 営業時間 | 10:00〜18:00 | 定休日 | - |
| 免許番号 | 愛知県知事(6)18993 | 取引態様 | 仲介 |
| 不動産会社管理番号 | 112064685 | 当社管理番号 | 4 |
| 所属団体 | (公社)全日本不動産協会愛知県本部 | ||
| 公正取引協議会 | 東海不動産公正取引協議会加盟 | ||
| 取扱い物件情報 | 物件詳細へ | ||
※各種情報と現状に差異がある場合は、現状優先となります。問い合わせをすることで、より詳しい条件、情報を確認する事ができます。
提供:アパマンショップ名古屋駅東口店
この物件が気になったら掲載期限まであと10日
CREST TAPP名古屋山王の空き部屋一覧
全部で84の空き部屋があります。
CREST TAPP名古屋山王に条件(家賃・エリア)が近い物件一覧
| 写真 | 家賃 管理費等 | 敷金 礼金 | 間取り 専有面積 | 築年数 | 最寄り駅 所在地 | キープ | 詳細 |
|---|---|---|---|---|---|---|---|
マンション ALIVIS SHIMO-SHINJO SOL TERRACE(1LDK/2階) | |||||||
| 9.2万円 1.5万円 | なし なし | 1LDK 30.03m2 | 築1年 | 阪急電鉄千里線 下新庄駅 徒歩6分 阪急電鉄千里線 淡路駅 徒歩15分 おおさか東線 南吹田駅 徒歩22分 大阪府吹田市西御旅町8-47 | 詳細を見る | ||
マンション メイクスWアート上前津V(1DK/3階) | |||||||
![]() | 7.15万円 8,000円 | なし 7.15万円 | 1DK 26.86m2 | 築2年 | 地下鉄名城線 東別院駅 徒歩9分 地下鉄鶴舞線 上前津駅 徒歩10分 地下鉄鶴舞線 大須観音駅 徒歩14分 愛知県名古屋市中区橘 | 詳細を見る | |
マンション ポルタニグラ大須(1LDK/10階) | |||||||
![]() | 7.1万円 1万円 | なし なし | 1LDK 28.27m2 | 築9年 | 名鉄名古屋本線 山王駅(愛知) 徒歩10分 地下鉄鶴舞線 大須観音駅 徒歩14分 JR東海道本線 尾頭橋駅 徒歩17分 愛知県名古屋市中区松原 | 詳細を見る | |
マンション メイクスデザイン名駅南(1K/12階) | |||||||
![]() | 6.1万円 8,000円 | なし なし | 1K 23.49m2 | 築7年 | 地下鉄鶴舞線 大須観音駅 徒歩13分 近鉄名古屋線 米野駅 徒歩24分 あおなみ線 ささしまライブ駅 徒歩25分 愛知県名古屋市中村区名駅南 | 詳細を見る | |
アパート ESPRESSO 清須(ワンルーム/1階) | |||||||
![]() | 6.5万円 4,000円 | 6.5万円 6.5万円 | ワンルーム 34.3m2 | 築8年 | JR東海交通城北線 尾張星の宮駅 徒歩3分 東海道本線 枇杷島駅 徒歩20分 名鉄名古屋本線 丸ノ内駅 徒歩23分 愛知県清須市寺野美鈴 | 詳細を見る | |
マンション エステムコート名古屋セントリア(1DK/15階) | |||||||
![]() | 6.9万円 6,150円 | なし なし | 1DK 25.85m2 | 築4年 | 名古屋臨海高速鉄道 ささしまライブ駅 徒歩12分 愛知県名古屋市中村区名駅南3丁目 | 詳細を見る | |
マンション メイクスアート名駅南Ⅳ(1LDK/7階) | |||||||
![]() | 8.1万円 8,000円 | なし なし | 1LDK 29.91m2 | 築1年 | 名古屋臨海高速鉄道 ささしまライブ駅 徒歩12分 名古屋市鶴舞線 大須観音駅 徒歩13分 名鉄名古屋本線 山王駅(愛知) 徒歩13分 愛知県名古屋市中村区名駅南3丁目 | 詳細を見る | |
マンション アドバンス名古屋アウリィ(1K/2階) | |||||||
![]() | 6.35万円 5,000円 | なし なし | 1K 24.07m2 | 築1年 | 名鉄名古屋本線 山王駅(愛知) 徒歩12分 愛知県名古屋市中村区名駅南5丁目 | 詳細を見る | |






