賃貸マンション
プレステージ青山の賃貸物件情報(3LDK/2階)
| 家賃 | 管理費等 | 敷金 | 礼金 | 間取り | 専有面積 |
|---|---|---|---|---|---|
| 9万円 | なし | 18万円 | 9万円 | 3LDK | 75m2 |
入居決定でお祝い金最大100,000円
Point
学生向け物件、ファミリー向け多数取り揃えています!!
提供:アパマンショップ新潟大学前店
/424x317-f1-q70-wp1)
詳細情報 プレステージ青山
物件紹介
プレステージ青山は越後線青山駅から徒歩7分にあり、駅近で通勤通学に便利なマンションです。
このお部屋は2階以上に位置しているので、通行人や周囲の住人からの視線が気になりにくく、防犯面でも安心。建物のエントランスはオートロックがついており、インターホンにはTVモニタもついているため、相手の顔を確認してから来客対応することができます。
人気の南向きのお部屋。また、フローリングなのでお掃除もラクラク。キッチンはシステムキッチン仕様になっていますので、お料理好きの方にもぴったり。バス・トイレは別なので、のんびりお風呂タイムも楽しめるでしょう。また、雨の日でも浴室乾燥機を使えば、お洗濯も問題ありません。
通信設備面ではBSアンテナがありますので、おうち時間も充実するでしょう(別途工事、契約料が必要な場合あり)。
建物にはエレベーターがついているので、重い荷物があっても安心。共用部には宅配ボックスが設定されているので、不在の時にも荷物を受け取ることができます。
このお部屋は2階以上に位置しているので、通行人や周囲の住人からの視線が気になりにくく、防犯面でも安心。建物のエントランスはオートロックがついており、インターホンにはTVモニタもついているため、相手の顔を確認してから来客対応することができます。
人気の南向きのお部屋。また、フローリングなのでお掃除もラクラク。キッチンはシステムキッチン仕様になっていますので、お料理好きの方にもぴったり。バス・トイレは別なので、のんびりお風呂タイムも楽しめるでしょう。また、雨の日でも浴室乾燥機を使えば、お洗濯も問題ありません。
通信設備面ではBSアンテナがありますので、おうち時間も充実するでしょう(別途工事、契約料が必要な場合あり)。
建物にはエレベーターがついているので、重い荷物があっても安心。共用部には宅配ボックスが設定されているので、不在の時にも荷物を受け取ることができます。
お金・契約の情報
※「-」と表示されているものは、実際は料金が発生するものもございます。詳細はお問い合わせください。
| 家賃 | 9万円 | 管理費・共益費 | なし |
|---|---|---|---|
| 敷金 | 18万円 | 礼金 | 9万円 |
| 入居決定でお祝い金最大100,000円 | |||
| 保証金 | - | 償却・敷引 | - |
| 住宅保険料 | - | 更新料 | - |
| 契約形態 | - | 契約期間 | 2年 |
| 入居・引渡期間 | 相談 | 現況 | - |
| 契約備考 | 鍵交換代 19800円 | ||
部屋の情報
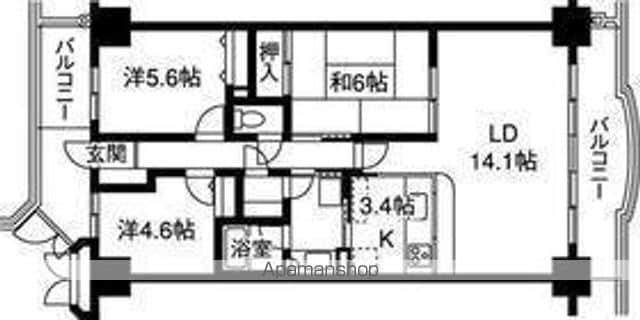
| 間取り | 3LDK | 専有面積 | 75m2 |
|---|---|---|---|
| 間取り詳細 | K(3.4帖)、洋室(4.6帖)、和室(6帖) | ||
| 所在階 / 向き | 2階 / - | バルコニー面積 | - |
| 水道 / ガス | ガス【都市】 | ||
| 設備 | バス・トイレ別、オートロック、テレビドアホン、宅配ボックス、追い焚き、システムキッチン、エレベーター、温水洗浄便座、バルコニー、フローリング、シャワー、給湯、冷房、洗濯機:室内 | ||
| 当社物件ID | 13072062 | ||
建物の情報
| 建物名 | プレステージ青山 | ||
|---|---|---|---|
| 所在地 | 新潟県新潟市西区青山2丁目 | ||
| 交通 | 越後線 青山駅(新潟) 徒歩7分 | ||
| 階数 | 14階建 | 総戸数 | - |
| 築年月 | 1993年05月 / 築34年 | エレベーター | あり |
| 駐車場 | - | バイク置き場 | - |
| 駐輪場 | あり | 管理人/管理会社 | - |
| 周辺環境 | 小学校 坂井輪小学校 徒歩37分(2889m) その他 イオン新潟青山店 徒歩7分(517m) その他 ウエルシア新潟小新店 徒歩26分(2078m) その他 セブンイレブン新潟小新4丁目店 徒歩26分(2062m) その他 ファミリーマート新潟平島店 徒歩10分(779m) その他 ホームセンタームサシ新潟西店 徒歩34分(2662m) その他 ユニー(株)/アピタ新潟西店 徒歩30分(2369m) その他 リオン・ドール寺尾店 徒歩29分(2280m) | ||
| 建物種別 | マンション | 建物構造 | SRC(鉄骨鉄筋コンクリート) |
この部屋の取扱い不動産会社
| 会社名 | アパマンショップ新潟大学前店 | ||
|---|---|---|---|
| 所在地 | 新潟県新潟市西区大学南2丁目 8−18 | 交通 | 越後線内野から徒歩17分 |
| 営業時間 | 09:00〜17:00(G.W休暇5/3〜5/6) | 定休日 | - |
| 免許番号 | 新潟県知事(6)4142 | 取引態様 | 仲介 |
| 不動産会社管理番号 | 1003336778 | 当社管理番号 | 4 |
| 所属団体 | (公社)全日本不動産協会新潟県本部 | ||
| 公正取引協議会 | (公社) 首都圏不動産公正取引協議会加盟 | ||
| 取扱い物件情報 | 物件詳細へ | ||
※各種情報と現状に差異がある場合は、現状優先となります。問い合わせをすることで、より詳しい条件、情報を確認する事ができます。
提供:アパマンショップ新潟大学前店
この物件が気になったら掲載期限まであと13日
プレステージ青山に条件(家賃・エリア)が近い物件一覧
| 写真 | 家賃 管理費等 | 敷金 礼金 | 間取り 専有面積 | 築年数 | 最寄り駅 所在地 | キープ | 詳細 |
|---|---|---|---|---|---|---|---|
マンション マ・メゾン(2DK/1階) | |||||||
![]() | 6.5万円 なし | 6.5万円 なし | 2DK 51.76m2 | 築30年 | 新潟県新潟市中央区南出来島 | 詳細を見る | |
アパート レオパレスK.グランスペランザ(1K/2階) | |||||||
![]() | 5.7万円 6,000円 | なし 5.7万円 | 1K 26.08m2 | 築23年 | 新潟県長岡市下々条町 | 詳細を見る | |
アパート レオネクストシエロアズール(1K/1階) | |||||||
![]() | 6.4万円 4,000円 | なし 6.4万円 | 1K 23.61m2 | 築18年 | 新潟県長岡市西津町 | 詳細を見る | |
アパート LUNA(1LDK/1階) | |||||||
![]() | 5.7万円 3,000円 | なし なし | 1LDK 31.21m2 | 築15年 | JR越後線 白山駅(新潟) 徒歩9分 新潟県新潟市中央区関屋下川原町 | 詳細を見る | |
アパート ライトコート21(2K/1階) | |||||||
![]() | 5.5万円 なし | 5.5万円 5.5万円 | 2K 43.06m2 | 築26年 | JR越後線 関屋駅(新潟) 徒歩10分 JR越後線 青山駅(新潟) 徒歩21分 JR越後線 白山駅(新潟) 徒歩29分 新潟県新潟市中央区文京町 | 詳細を見る | |
アパート 向日葵 1(2LDK/2階) | |||||||
![]() | 7.35万円 4,100円 | なし 7.35万円 | 2LDK 63.03m2 | 新築 | JR弥彦線 燕三条駅 徒歩15分 新潟県燕市 | 詳細を見る | |
アパート マリオンIV 207(1LDK/2階) | |||||||
![]() | 6万円 5,000円 | なし 6万円 | 1LDK 36.7m2 | 築10年 | JR越後線 新潟大学前駅 徒歩8分 新潟県新潟市西区坂井 | 詳細を見る | |
アパート ハイエストヒル寺尾(3DK/1階) | |||||||
![]() | 6.5万円 なし | 6.5万円 6.5万円 | 3DK 66.24m2 | 築25年 | JR越後線 新潟大学前駅 徒歩15分 JR越後線 寺尾駅 徒歩15分 JR越後線 小針駅 徒歩40分 新潟県新潟市西区寺尾上 | 詳細を見る | |









