賃貸アパート
パルフェ大槻の賃貸物件情報(1LDK/2階)
| 家賃 | 管理費等 | 敷金 | 礼金 | 間取り | 専有面積 |
|---|---|---|---|---|---|
| 5.3万円 | 2,000円 | なし | なし | 1LDK | 43m2 |
入居決定でお祝い金最大100,000円
Point
白石市のお部屋探しはピタットハウス岩沼店(株)FNEXTにお任せ下さい♪県南地域の物件情報多数♪セキスイハイム施工♪経済的な希少オール電化エコキュート♪入居者売電あり♪東南角部屋日当たり良好♪
提供:ピタットハウス岩沼店(株)F-NEXT(SUUMO経由)

詳細情報 パルフェ大槻
物件紹介
パルフェ大槻はJR東北本線白石駅から徒歩10分にあり、駅近で通勤通学に便利なアパートです。
このお部屋は2階以上に位置しているので、通行人や周囲の住人からの視線が気になりにくく、防犯面でも安心です。
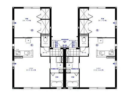
人気の南向き・フローリングのお部屋。角部屋でもあるため、周囲の居住者の生活音も気になりにくい場所です。キッチンはシステムキッチン仕様になっていますので、お料理好きの方にもぴったり。また、バス・トイレは別で、のんびりお風呂タイムも楽しめるでしょう。
通信設備面ではBSアンテナがありますので、おうち時間も充実するでしょう(別途工事、契約料が必要な場合あり)。
このお部屋は2階以上に位置しているので、通行人や周囲の住人からの視線が気になりにくく、防犯面でも安心です。
人気の南向き・フローリングのお部屋。角部屋でもあるため、周囲の居住者の生活音も気になりにくい場所です。キッチンはシステムキッチン仕様になっていますので、お料理好きの方にもぴったり。また、バス・トイレは別で、のんびりお風呂タイムも楽しめるでしょう。
通信設備面ではBSアンテナがありますので、おうち時間も充実するでしょう(別途工事、契約料が必要な場合あり)。
お金・契約の情報
※「-」と表示されているものは、実際は料金が発生するものもございます。詳細はお問い合わせください。
| 家賃 | 5.3万円 | 管理費・共益費 | 2,000円 |
|---|---|---|---|
| 敷金 | なし | 礼金 | なし |
| 入居決定でお祝い金最大100,000円 | |||
| 保証金 | - | 償却・敷引 | - |
| 住宅保険料 | - | 更新料 | - |
| 保証会社利用 | 必須 | 保証会社名 | - |
| 保証会社費用 | - | 保証会社備考 | 保証会社利用必 初回保証料賃料総額の50%及び毎月賃料総額の1.2% |
| 契約形態 | - | 契約期間 | - |
| 入居・引渡期間 | - | 現況 | - |
| 契約備考 | 巡回管理 合計1.65万円(内訳:ハイム´SCLUB(2年間分)16,500円) 1LDK 損保【要】 バストイレ別、バルコニー、エアコン、フローリング、シャワー付洗面台、室内洗濯置、陽当り良好、シューズボックス、システムキッチン、南向き、追焚機能浴室、角住戸、温水洗浄便座、脱衣所、洗面所独立、2口コンロ、最上階、対面式キッチン、IHクッキングヒーター、保証人不要、東南角住戸、オール電化、全居室フローリング、物置、1フロア2住戸、電子キー、南面リビング、太陽光発電システム、駅徒歩10分以内、平面駐車場、LDK12畳以上、エコキュート、南面バルコニー、室内物干機、BS、IT重説対応物件、初期費用カード決済可、通風良好 入居日:'26年4月下旬 | ||
部屋の情報
| 間取り | 1LDK | 専有面積 | 43m2 |
|---|---|---|---|
| 所在階 / 向き | 2階 / 南 | バルコニー面積 | - |
| 水道 / ガス | - | ||
| 設備 | バス・トイレ別、2階以上、追い焚き、システムキッチン、エアコン、温水洗浄便座、南向き、角部屋、バルコニー、フローリング、洗髪洗面化粧台、オール電化、2口コンロ、コンロ:IH、BSアンテナ、洗濯機:室内 | ||
| 当社物件ID | 23709402 | ||
建物の情報
| 建物名 | パルフェ大槻 | ||
|---|---|---|---|
| 所在地 | 宮城県白石市南町 | ||
| 交通 | JR東北本線 白石駅(宮城) 徒歩10分 東北新幹線 白石蔵王駅 徒歩23分 | ||
| 階数 | 2階建 | 総戸数 | - |
| 築年月 | 2013年03月 / 築14年 | エレベーター | - |
| 駐車場 | 空有 3300円 | バイク置き場 | - |
| 駐輪場 | - | 管理人/管理会社 | - |
| 周辺環境 | その他 ヨークベニマル白石店(スーパー)まで312m その他 COOP MIYAGI白石店(スーパー)まで1133m その他 サンクス白石沢端店(コンビニ)まで511m その他 調剤薬局ツルハドラッグ宮城白石店(ドラッグストア)まで149m その他 仙台銀行白石支店(銀行)まで435m その他 白石南郵便局(郵便局)まで99m | ||
| 建物種別 | アパート | 建物構造 | 軽量鉄骨造 |
この部屋の取扱い不動産会社
| 会社名 | ピタットハウス岩沼店(株)F-NEXT(SUUMO経由) | ||
|---|---|---|---|
| 所在地 | 宮城県岩沼市桜5-4-47 | 交通 | - |
| 営業時間 | 9:00~18:00 | 定休日 | 毎週水曜日 |
| 免許番号 | 宮城県知事7203 | 取引態様 | 仲介 |
| 不動産会社管理番号 | 100492540477 | 当社管理番号 | 89 |
| 所属団体 | (公社)全日本不動産協会宮城県本部会員 | ||
| 公正取引協議会 | 東北地区不動産公正取引協議会加盟 | ||
| 取扱い物件情報 | 物件詳細へ | ||
※各種情報と現状に差異がある場合は、現状優先となります。問い合わせをすることで、より詳しい条件、情報を確認する事ができます。
提供:ピタットハウス岩沼店(株)F-NEXT(SUUMO経由)
この物件が気になったら掲載期限まであと10日
パルフェ大槻に条件(家賃・エリア)が近い物件一覧
| 写真 | 家賃 管理費等 | 敷金 礼金 | 間取り 専有面積 | 築年数 | 最寄り駅 所在地 | キープ | 詳細 |
|---|---|---|---|---|---|---|---|
アパート ローズガーデンII(2DK/1階) | |||||||
![]() | 4.9万円 なし | なし なし | 2DK 44.78m2 | 築24年 | JR東北本線 大河原駅(宮城) 徒歩13分 宮城県柴田郡大河原町字高砂町 | 詳細を見る | |
アパート プリマヴェーラI(2LDK/2階) | |||||||
![]() | 5.1万円 1,700円 | なし なし | 2LDK 61.98m2 | 築20年 | 東北新幹線 白石蔵王駅 徒歩4分 JR東北本線 白石駅(宮城) 徒歩23分 宮城県白石市旭町 | 詳細を見る | |
アパート チェリークレスト(2LDK/1階) | |||||||
![]() | 4.8万円 2,000円 | なし なし | 2LDK 51.23m2 | 築22年 | JR東北本線 大河原駅(宮城) 徒歩27分 JR東北本線 北白川駅 徒歩45分 JR東北本線 船岡駅(宮城) 徒歩65分 宮城県柴田郡大河原町字広表 | 詳細を見る | |
アパート セイバリー(1K/1階) | |||||||
![]() | 4.55万円 1,800円 | なし 4.55万円 | 1K 35m2 | 築5年 | JR東北本線 白石駅(宮城) 徒歩10分 宮城県白石市字東大畑 | 詳細を見る | |
アパート ラヴェルナ(2LDK/1階) | |||||||
![]() | 6.2万円 4,000円 | なし なし | 2LDK 49.59m2 | 築1年 | JR東北本線 大河原駅(宮城) 徒歩20分 JR東北本線 船岡駅(宮城) 徒歩46分 阿武隈急行 東船岡駅 徒歩68分 宮城県柴田郡大河原町大谷山下 | 詳細を見る | |
アパート メゾンヨシダB(2DK/2階) | |||||||
![]() | 3.8万円 500円 | なし なし | 2DK 35.6m2 | 築36年 | 東北本線 大河原駅(宮城) 徒歩26分 宮城県柴田郡大河原町字新青川 | 詳細を見る | |
アパート ラージ K(2LDK/2階) | |||||||
![]() | 4.5万円 1,800円 | なし なし | 2LDK 58.52m2 | 築17年 | 宮城県刈田郡蔵王町宮坂山 | 詳細を見る | |
アパート アーバンシティ末広(2DK/1階) | |||||||
![]() | 4.5万円 なし | なし なし | 2DK 39.7m2 | 築30年 | JR東北本線 大河原駅(宮城) 徒歩5分 宮城県柴田郡大河原町大谷末広 | 詳細を見る | |







/105x80-f1-q70-wp1)

