賃貸マンション
京阪電気鉄道宇治線 観月橋駅 徒歩12分 3階建 築22年の賃貸物件情報(2LDK/1階)
| 家賃 | 管理費等 | 敷金 | 礼金 | 間取り | 専有面積 |
|---|---|---|---|---|---|
| 7.2万円 | 3,300円 | なし | なし | 2LDK | 56.53m2 |
入居決定でお祝い金最大100,000円
Point
・大手ハウスメーカー・ 大容量のウォークインクローゼットが自慢です
提供:株式会社 京都ライフ 小倉店(賃貸スモッカ経由)

詳細情報 京阪電気鉄道宇治線 観月橋駅 徒歩12分 3階建 築22年
物件紹介
京阪電気鉄道宇治線観月橋駅から徒歩12分にあるマンションです。
建物のエントランスはオートロックがついており、防犯性が高くなっています。
人気の南向き・フローリングのお部屋。角部屋でもあるため、周囲の居住者の生活音も気になりにくい場所です。室内にはウォークインクローゼットがありますので、たくさんの荷物も効率的に収納ができます。バス・トイレ別の仕様で、のんびりお風呂タイムも楽しめます。
通信設備面ではBSアンテナがありますので、おうち時間も充実するでしょう(別途工事、契約料が必要な場合あり)。
建物のエントランスはオートロックがついており、防犯性が高くなっています。
人気の南向き・フローリングのお部屋。角部屋でもあるため、周囲の居住者の生活音も気になりにくい場所です。室内にはウォークインクローゼットがありますので、たくさんの荷物も効率的に収納ができます。バス・トイレ別の仕様で、のんびりお風呂タイムも楽しめます。
通信設備面ではBSアンテナがありますので、おうち時間も充実するでしょう(別途工事、契約料が必要な場合あり)。
お金・契約の情報
※「-」と表示されているものは、実際は料金が発生するものもございます。詳細はお問い合わせください。
| 家賃 | 7.2万円 | 管理費・共益費 | 3,300円 |
|---|---|---|---|
| 敷金 | なし | 礼金 | なし |
| 入居決定でお祝い金最大100,000円 | |||
| 保証金 | - | 償却・敷引 | - |
| 住宅保険料 | 住宅保険料あり | 更新料 | - |
| 契約形態 | - | 契約期間 | 2年 |
| 入居・引渡期間 | 2026年02月中旬 | 現況 | 賃貸中 |
| 契約備考 | 京都市伏見区 向島エリアの2LDKマンションです。敷金、更新料ナシ。嬉しい3点セパレートにウォークインクローゼット、追い焚き機能付浴室など充実の設備。オートロックでセキュリティも安心です。コンビニ、スーパーなど近くにあって便利ですよ。 ファイテック(消火剤):4,950円 アルコール殺菌・消毒:22,000円 24時間サポート:330円 更新料:無し 保証会社:利用必須 初回:2.2万円、月額:保証料として月額賃料等の2%(ハウスクリーニング代退去時支払いの場合、月額保証料は総賃料の5% ペット可の場合、初回保証料25000円/月額保証料は総賃料の2.5%) その他設備/条件:1階の物件、独立洗面台 | ||
部屋の情報
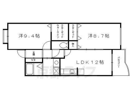
| 間取り | 2LDK | 専有面積 | 56.53m2 |
|---|---|---|---|
| 間取り詳細 | 洋室(9.4帖)、洋室(8.7帖)、LDK(12帖) | ||
| 所在階 / 向き | 1階 / 南 | バルコニー面積 | - |
| 水道 / ガス | ガス【プロパン】 | ||
| 設備 | バス・トイレ別、オートロック、ウォークインクローゼット、追い焚き、エアコン、南向き、角部屋、バルコニー、フローリング、BSアンテナ、洗濯機:室内 | ||
| 当社物件ID | 160164305 | ||
建物の情報
| 建物名 | 京阪電気鉄道宇治線 観月橋駅 徒歩12分 3階建 築22年 | ||
|---|---|---|---|
| 所在地 | 京都府京都市伏見区向島吹田河原町 | ||
| 交通 | 京阪電気鉄道宇治線 観月橋駅 徒歩12分 近鉄京都線 向島駅 徒歩20分 | ||
| 階数 | 3階建 | 総戸数 | - |
| 築年月 | 2004年05月 / 築22年 | エレベーター | - |
| 駐車場 | - | バイク置き場 | - |
| 駐輪場 | あり | 管理人/管理会社 | - |
| 建物種別 | マンション | 建物構造 | RC(鉄筋コンクリート) |
この部屋の取扱い不動産会社
| 会社名 | 株式会社 京都ライフ 小倉店(賃貸スモッカ経由) | ||
|---|---|---|---|
| 所在地 | 宇治市小倉町神楽田21-5 | 交通 | - |
| 営業時間 | - | 定休日 | - |
| 免許番号 | 京都府知事(11)第6353号 | 取引態様 | 仲介 |
| 不動産会社管理番号 | kyotolife_13406-101-11 | 当社管理番号 | 463 |
| 所属団体 | 京都府宅地建物取引業協会\n公益社団法人近畿地区不動産公正取引協議会 | ||
| 公正取引協議会 | 全国宅地建物取引業保証協会 | ||
| 取扱い物件情報 | 物件詳細へ | ||
※各種情報と現状に差異がある場合は、現状優先となります。問い合わせをすることで、より詳しい条件、情報を確認する事ができます。
提供:株式会社 京都ライフ 小倉店(賃貸スモッカ経由)
この物件が気になったら掲載期限まであと4日
京阪電気鉄道宇治線 観月橋駅 徒歩12分 3階建 築22年に条件(家賃・エリア)が近い物件一覧
| 写真 | 家賃 管理費等 | 敷金 礼金 | 間取り 専有面積 | 築年数 | 最寄り駅 所在地 | キープ | 詳細 |
|---|---|---|---|---|---|---|---|
アパート 阪急電鉄京都線 西山天王山駅 徒歩10分 築1年(1LDK/2階) | |||||||
![]() | 8.2万円 5,000円 | 8.2万円 16.4万円 | 1LDK 34.78m2 | 築1年 | 阪急電鉄京都線 西山天王山駅 徒歩10分 東海道本線 長岡京駅 徒歩22分 京都府長岡京市調子1丁目 | 詳細を見る | |
アパート D-ROOM伏見駅前(1LDK/3階) | |||||||
![]() | 10.6万円 7,000円 | なし 21.2万円 | 1LDK 42.67m2 | 新築 | 近鉄京都線 伏見駅(京都) 徒歩3分 京阪本線 墨染駅 徒歩10分 JR奈良線 JR藤森駅 徒歩19分 京都府京都市伏見区深草柴田屋敷町 | 詳細を見る | |
マンション 近鉄京都線 向島駅 徒歩5分 築23年(1K/3階) | |||||||
![]() | 5.3万円 6,000円 | 7万円 なし | 1K 24.07m2 | 築23年 | 近鉄京都線 向島駅 徒歩5分 近鉄京都線 小倉駅(京都) 徒歩33分 京都府宇治市槇島町落合 | 詳細を見る | |
マンション 阪急電鉄京都線 長岡天神駅 徒歩23分 築55年(3DK/3階) | |||||||
![]() | 6万円 なし | 6万円 12万円 | 3DK 54.52m2 | 築55年 | 阪急電鉄京都線 長岡天神駅 徒歩23分 東海道本線 山崎駅(京都) 徒歩30分 京都府乙訓郡大山崎町字円明寺葛原 | 詳細を見る | |
アパート 京阪電気鉄道宇治線 桃山南口駅 徒歩4分 築12年(1K/1階) | |||||||
![]() | 5.6万円 3,000円 | なし なし | 1K 20.35m2 | 築12年 | 京阪電気鉄道宇治線 桃山南口駅 徒歩4分 京阪電気鉄道宇治線 六地蔵駅(京阪) 徒歩15分 京都府京都市伏見区桃山町養斉 | 詳細を見る | |
マンション カサボニータ淀(1LDK/1階) | |||||||
![]() | 4.5万円 3,000円 | なし なし | 1LDK 39m2 | 築53年 | 京阪本線 淀駅 徒歩10分 京阪本線 石清水八幡宮駅 徒歩39分 JR東海道本線 長岡京駅 徒歩53分 京都府京都市伏見区淀木津町 | 詳細を見る | |
アパート 京阪電気鉄道京阪線 藤森駅 徒歩10分 築13年(1LDK/1階) | |||||||
![]() | 7.7万円 5,200円 | なし 7.7万円 | 1LDK 49.62m2 | 築13年 | 京阪電気鉄道京阪線 藤森駅 徒歩10分 京阪電気鉄道京阪線 龍谷大前深草駅 徒歩15分 京都府京都市伏見区深草瓦町 | 詳細を見る | |
マンション 京阪電気鉄道京阪線 藤森駅 徒歩11分 新築(1K/4階) | |||||||
![]() | 7.507万円 8,330円 | なし なし | 1K 27.3m2 | 新築 | 京阪電気鉄道京阪線 藤森駅 徒歩11分 近鉄京都線 竹田駅(京都) 徒歩11分 京都府京都市伏見区 | 詳細を見る | |









