賃貸マンション
メゾン・ド・クレインの賃貸物件情報(2LDK/2階)
| 家賃 | 管理費等 | 敷金 | 礼金 | 間取り | 専有面積 |
|---|---|---|---|---|---|
| 13万円 | 8,000円 | 13万円 | なし | 2LDK | 56.16m2 |
入居決定でお祝い金最大100,000円
- 保証金
- -
- 償却・敷引
- -
- 築年数
- 築39年
- 所在階
- 2階
- 向き
- 南西
Point
◎うれしい礼金なし◎宅配BOX◎お部屋探しならLiVLifeEstate株式会社におまかせください。
提供:(株)REPLAY(SUUMO経由)

詳細情報 メゾン・ド・クレイン
物件紹介
メゾン・ド・クレインは西武池袋線大泉学園駅から徒歩14分にあるマンションです。
このお部屋は2階以上に位置しているので、通行人や周囲の住人からの視線が気になりにくく、防犯面でも安心。建物のエントランスはオートロックがついており、インターホンにはTVモニタもついているため、相手の顔を確認してから来客対応することができます。
人気の南向きのお部屋。また、フローリングなのでお掃除もラクラク。キッチンはシステムキッチン仕様になっていますので、お料理好きの方にもぴったり。また、バス・トイレは別で、のんびりお風呂タイムも楽しめるでしょう。
通信設備面では、インターネット接続が可能です(別途工事、契約料が必要な場合あり)。
共用部には宅配ボックスが設定されているので、不在の時にも荷物を受け取ることができます。
このお部屋は2階以上に位置しているので、通行人や周囲の住人からの視線が気になりにくく、防犯面でも安心。建物のエントランスはオートロックがついており、インターホンにはTVモニタもついているため、相手の顔を確認してから来客対応することができます。
人気の南向きのお部屋。また、フローリングなのでお掃除もラクラク。キッチンはシステムキッチン仕様になっていますので、お料理好きの方にもぴったり。また、バス・トイレは別で、のんびりお風呂タイムも楽しめるでしょう。
通信設備面では、インターネット接続が可能です(別途工事、契約料が必要な場合あり)。
共用部には宅配ボックスが設定されているので、不在の時にも荷物を受け取ることができます。
お金・契約の情報
※「-」と表示されているものは、実際は料金が発生するものもございます。詳細はお問い合わせください。
| 家賃 | 13万円 | 管理費・共益費 | 8,000円 |
|---|---|---|---|
| 敷金 | 13万円 | 礼金 | なし |
| 入居決定でお祝い金最大100,000円 | |||
| 保証金 | - | 償却・敷引 | - |
| 住宅保険料 | - | 更新料 | - |
| 保証会社利用 | 必須 | 保証会社名 | - |
| 保証会社費用 | - | 保証会社備考 | 保証会社利用必 初回50% 毎年1万円 |
| 契約形態 | - | 契約期間 | - |
| 入居・引渡期間 | 即時 | 現況 | - |
| 契約備考 | 西東京市・東久留米市・新座市・清瀬市・練馬区・東村山市・所沢市等周辺エリアのお部屋探しなら情報量豊富なLiVLifeEstate株式会社にお任せください。賃料・初期費用の減額交渉、入居日の先延ばし交渉等、経験豊富なスタッフが全力で交渉致します。全物件初期費用カード決済OK。 合計1.65万円(内訳:鍵交換代1.65万円) 更新料 新賃料1.00ヶ月分 2LDK 二人入居可 普通借家2年 損保【2万円2年】 バストイレ別、バルコニー、エアコン、ガスコンロ対応、クロゼット、フローリング、シャワー付洗面台、TVインターホン、室内洗濯置、シューズボックス、システムキッチン、温水洗浄便座、脱衣所、洗面所独立、洗面化粧台、2口コンロ、駐輪場、宅配ボックス、押入、即入居可、礼金不要、照明付、保証人不要、駐車2台可、玄関ホール、2沿線利用可、耐火構造、2駅利用可、3駅以上利用可、敷地内ごみ置き場、南西向き、都市ガス、洗面所にドア、保証会社利用可、初期費用カード決済可 | ||
部屋の情報
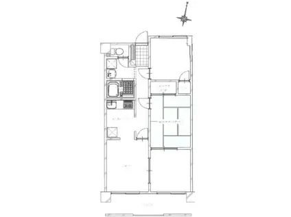
| 間取り | 2LDK | 専有面積 | 56.16m2 |
|---|---|---|---|
| 所在階 / 向き | 2階 / 南西 | バルコニー面積 | - |
| 水道 / ガス | - | ||
| 設備 | バス・トイレ別、2階以上、テレビドアホン、宅配ボックス、システムキッチン、エアコン、温水洗浄便座、南向き、バルコニー、フローリング、洗髪洗面化粧台、2口コンロ、コンロ:ガス、洗濯機:室内 | ||
| 当社物件ID | 13441060 | ||
建物の情報
| 建物名 | メゾン・ド・クレイン | ||
|---|---|---|---|
| 所在地 | 東京都練馬区石神井台 | ||
| 交通 | 西武池袋線 大泉学園駅 徒歩14分 西武池袋線 石神井公園駅 徒歩22分 西武新宿線 上石神井駅 徒歩28分 | ||
| 階数 | 4階建 | 総戸数 | 39戸 |
| 築年月 | 1987年11月 / 築39年 | エレベーター | - |
| 駐車場 | 空有 16500円 | バイク置き場 | - |
| 駐輪場 | あり | 管理人/管理会社 | - |
| 周辺環境 | その他 ファミリーマート 石神井台二丁目店(コンビニ)まで469m その他 スギ薬局 石神井台店(ドラッグストア)まで527m その他 ローソン 練馬東大泉五丁目店(コンビニ)まで544m その他 マクドナルド 富士街道石神井店(飲食店)まで665m その他 ファミリーマート 練馬石神井町店(コンビニ)まで722m その他 クリエイトSD(エス・ディー) 練馬石神井台店(ドラッグストア)まで717m | ||
| 建物種別 | マンション | 建物構造 | RC(鉄筋コンクリート) |
この部屋の取扱い不動産会社
| 会社名 | LiV Life Estate(株)ひばりヶ丘店(SUUMO経由) | ||
|---|---|---|---|
| 所在地 | 東京都西東京市ひばりが丘北3-5-19カマタビル2F | 交通 | - |
| 営業時間 | 10:00~19:00 事前連絡で時間外予約可 | 定休日 | 水曜日 |
| 免許番号 | 東京都知事106673 | 取引態様 | 仲介 |
| 不動産会社管理番号 | 100476010451 | 当社管理番号 | 89 |
| 取扱い物件情報 | 物件詳細へ | ||
※各種情報と現状に差異がある場合は、現状優先となります。問い合わせをすることで、より詳しい条件、情報を確認する事ができます。
提供:LiV Life Estate(株)ひばりヶ丘店(SUUMO経由)
この物件が気になったら掲載期限まであと10日
メゾン・ド・クレインに条件(家賃・エリア)が近い物件一覧
| 写真 | 家賃 管理費等 | 敷金 礼金 | 間取り 専有面積 | 築年数 | 最寄り駅 所在地 | キープ | 詳細 |
|---|---|---|---|---|---|---|---|
マンション 松が丘2丁目マンション(1DK/3階) | |||||||
![]() | 12.5万円 なし | 12.5万円 なし | 1DK 35m2 | 築38年 | 西武新宿線 沼袋駅 徒歩10分 都営大江戸線 新江古田駅 徒歩13分 西武新宿線 新井薬師前駅 徒歩14分 東京都中野区松が丘 | 詳細を見る | |
マンション 三高・サンロイヤル(2DK/1階) | |||||||
![]() | 8.8万円 6,000円 | 8.8万円 なし | 2DK 44.1m2 | 築35年 | 都営三田線 高島平駅 徒歩16分 東武東上線 東武練馬駅 徒歩17分 都営三田線 西台駅 徒歩17分 東京都板橋区徳丸 | 詳細を見る | |
マンション メゾン吉祥寺(2K/2階) | |||||||
![]() | 9.3万円 2,000円 | 9.3万円 なし | 2K 32m2 | 築41年 | JR中央線 吉祥寺駅 徒歩5分 京王井の頭線 井の頭公園駅 徒歩10分 東京都武蔵野市吉祥寺南町 | 詳細を見る | |
マンション シャーメゾン武蔵野参番館(2LDK/1階) | |||||||
![]() | 18万円 8,000円 | なし 36万円 | 2LDK 52.8m2 | 築9年 | 東京メトロ丸ノ内線 方南町駅 徒歩11分 東京メトロ丸ノ内線 新高円寺駅 徒歩16分 京王井の頭線 永福町駅 徒歩22分 東京都杉並区堀ノ内 | 詳細を見る | |
マンション 中野新橋レジデンス(1DK/1階) | |||||||
![]() | 12.1万円 1万円 | 12.1万円 12.1万円 | 1DK 25.3m2 | 築4年 | 東京メトロ丸ノ内線 中野新橋駅 徒歩6分 都営大江戸線 西新宿五丁目駅 徒歩10分 都営大江戸線 中野坂上駅 徒歩13分 東京都中野区弥生町 | 詳細を見る | |
マンション VORT高井戸西レジデンス(1K/3階) | |||||||
![]() | 12.5万円 1.5万円 | なし なし | 1K 25.2m2 | 築1年 | 京王電鉄井の頭線 高井戸駅 徒歩9分 東京都杉並区高井戸西3丁目 | 詳細を見る | |
アパート アイコート新江古田(2LDK/1階) | |||||||
![]() | 14.5万円 4,000円 | 14.5万円 14.5万円 | 2LDK 45.13m2 | 築5年 | 都営大江戸線 新江古田駅 徒歩4分 西武池袋線 江古田駅 徒歩12分 西武新宿線 沼袋駅 徒歩17分 東京都中野区江原町 | 詳細を見る | |
マンション ヘーベルヴィレッジ本蓮沼LOISIR壽光(2LDK/1階) | |||||||
![]() | 14.5万円 2.9万円 | 29万円 なし | 2LDK 58.67m2 | 築1年 | 都営三田線 本蓮沼駅 徒歩12分 都営三田線 板橋本町駅 徒歩14分 都営三田線 志村坂上駅 徒歩14分 東京都板橋区大原町 | 詳細を見る | |








