賃貸アパート
吉村文化の賃貸物件情報(1DK/2階)
| 家賃 | 管理費等 | 敷金 | 礼金 | 間取り | 専有面積 |
|---|---|---|---|---|---|
| 5万円 | なし | なし | なし | 1DK | 30m2 |
入居決定でお祝い金最大100,000円
- 保証金
- -
- 償却・敷引
- -
- 築年数
- 築49年
- 所在階
- 2階
- 向き
- 南
Point
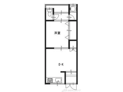
給湯あり、洋式トイレ、DKフローリング。
提供:(株)エリッツJR茨木店(SUUMO経由)

詳細情報 吉村文化
物件紹介
吉村文化は阪急京都線茨木市駅から徒歩19分にあるアパートです。
このお部屋は2階以上に位置しているので、通行人や周囲の住人からの視線が気になりにくく、防犯面でも安心です。
人気の南向きのお部屋。
このお部屋は2階以上に位置しているので、通行人や周囲の住人からの視線が気になりにくく、防犯面でも安心です。
人気の南向きのお部屋。
お金・契約の情報
※「-」と表示されているものは、実際は料金が発生するものもございます。詳細はお問い合わせください。
| 家賃 | 5万円 | 管理費・共益費 | なし |
|---|---|---|---|
| 敷金 | なし | 礼金 | なし |
| 入居決定でお祝い金最大100,000円 | |||
| 保証金 | - | 償却・敷引 | - |
| 住宅保険料 | - | 更新料 | - |
| 契約形態 | - | 契約期間 | - |
| 入居・引渡期間 | 即時 | 現況 | - |
| 契約備考 | 阪急電鉄京都線富田駅徒歩36分/給湯あり、洋式トイレ、DKフローリング。 1DK 普通借家2年 損保【1.5万円2年】 南向き、駐輪場、即入居可、礼金不要、最上階、敷金不要、仲手0.55ヶ月、保証金不要、敷金・礼金不要、IT重説対応物件、初期費用カード決済可 | ||
部屋の情報
| 間取り | 1DK | 専有面積 | 30m2 |
|---|---|---|---|
| 所在階 / 向き | 2階 / 南 | バルコニー面積 | - |
| 水道 / ガス | - | ||
| 設備 | 2階以上、南向き | ||
| 当社物件ID | 20485631 | ||
建物の情報
| 建物名 | 吉村文化 | ||
|---|---|---|---|
| 所在地 | 大阪府茨木市五十鈴町 | ||
| 交通 | 阪急京都線 茨木市駅 徒歩19分 阪急京都線 総持寺駅 徒歩22分 JR東海道本線 JR総持寺駅 徒歩30分 | ||
| 階数 | 2階建 | 総戸数 | 6戸 |
| 築年月 | 1977年03月 / 築49年 | エレベーター | - |
| 駐車場 | 近隣 200m15000円 | バイク置き場 | - |
| 駐輪場 | あり | 管理人/管理会社 | - |
| 周辺環境 | その他 岩倉公園(公園)まで2600m その他 セブンイレブン阪急茨木市駅東店(コンビニ)まで1170m その他 イオンスタイル新茨木(スーパー)まで870m その他 茨木市役所(役所)まで2070m その他 仁徳会河村メディカルクリニック(病院)まで1520m その他 総持寺駅(阪急 京都本線)(その他)まで1770m | ||
| 建物種別 | アパート | 建物構造 | 木造 |
この部屋の取扱い不動産会社
| 会社名 | (株)エリッツ天六店(SUUMO経由) | ||
|---|---|---|---|
| 所在地 | 大阪府大阪市北区本庄東1-6-21 ブリージェ天六ビル1階 | 交通 | - |
| 営業時間 | 10:00~19:00 | 定休日 | 水曜日(祝日を除く)・年末年始 |
| 免許番号 | 国土交通大臣5206 | 取引態様 | 仲介 |
| 不動産会社管理番号 | 100475026800 | 当社管理番号 | 89 |
| 取扱い物件情報 | 物件詳細へ | ||
※各種情報と現状に差異がある場合は、現状優先となります。問い合わせをすることで、より詳しい条件、情報を確認する事ができます。
提供:(株)エリッツ天六店(SUUMO経由)
この物件が気になったら掲載期限まであと10日
吉村文化に条件(家賃・エリア)が近い物件一覧
| 写真 | 家賃 管理費等 | 敷金 礼金 | 間取り 専有面積 | 築年数 | 最寄り駅 所在地 | キープ | 詳細 |
|---|---|---|---|---|---|---|---|
アパート WOOD GARDEN Ⅱ(1LDK/2階) | |||||||
| 8万円 4,000円 | なし 8.4万円 | 1LDK 30.07m2 | 築1年 | 阪急電鉄千里線 吹田駅(阪急) 徒歩8分 東海道本線 吹田駅(JR) 徒歩17分 阪急電鉄千里線 下新庄駅 徒歩18分 大阪府吹田市寿町2丁目11-8 | 詳細を見る | ||
マンション 福山ビル(1DK/4階) | |||||||
| 7万円 5,000円 | 10万円 10万円 | 1DK 30m2 | 築52年 | 東海道本線 茨木駅 徒歩3分 阪急電鉄京都線 茨木市駅 徒歩14分 大阪モノレール本線 宇野辺駅 徒歩20分 大阪府茨木市駅前1丁目3-15 | 詳細を見る | ||
マンション レオパレスグラン ビュイッソン(1K/2階) | |||||||
| 6万円 7,000円 | なし 6万円 | 1K 19.87m2 | 築24年 | 阪急電鉄京都線 茨木市駅 徒歩24分 阪急電鉄京都線 総持寺駅 徒歩25分 東海道本線 JR総持寺駅 徒歩32分 大阪府茨木市鮎川5丁目1-12 | 詳細を見る | ||
アパート GLAN CASALIA(1LDK/1階) | |||||||
| 7.7万円 5,000円 | なし なし | 1LDK 29.91m2 | 新築 | 東海道本線 吹田駅(JR) 徒歩13分 阪急電鉄千里線 吹田駅(阪急) 徒歩13分 阪急電鉄京都線 相川駅 徒歩13分 大阪府吹田市内本町3丁目7-3 | 詳細を見る | ||
アパート シルクコートA棟(ワンルーム/1階) | |||||||
| 6.5万円 5,000円 | なし 17万円 | ワンルーム 32.94m2 | 築23年 | 阪急電鉄箕面線 牧落駅 徒歩25分 大阪府箕面市稲5丁目2-34 | 詳細を見る | ||
アパート EMIA千里丘(1K/1階) | |||||||
| 6.1万円 4,000円 | なし なし | 1K 20.86m2 | 築1年 | 東海道本線 千里丘駅 徒歩12分 阪急電鉄京都線 摂津市駅 徒歩20分 大阪モノレール本線 宇野辺駅 徒歩24分 大阪府吹田市千里丘中19-16 | 詳細を見る | ||
マンション 東白マンション(1K/1階) | |||||||
| 3.2万円 2,000円 | なし なし | 1K 20.34m2 | 築35年 | 東海道本線 高槻駅 徒歩21分 阪急電鉄京都線 高槻市駅 徒歩31分 東海道本線 摂津富田駅 徒歩39分 大阪府高槻市西真上1丁目7-20 | 詳細を見る | ||
