賃貸マンション
リベルテ上野の賃貸物件情報(1K/2階)
| 家賃 | 管理費等 | 敷金 | 礼金 | 間取り | 専有面積 |
|---|---|---|---|---|---|
| 10.7万円 | 1万円 | なし | なし | 1K | 25m2 |
入居決定でお祝い金最大100,000円
- 保証金
- -
- 償却・敷引
- -
- 築年数
- 築18年
- 所在階
- 2階
- 向き
- 北
Point
★仲手無料 敷金礼金不要 入谷駅徒歩5分 リモート内見対応★
提供:株式会社サンコーホーム(賃貸スモッカ経由)

詳細情報 リベルテ上野
物件紹介
リベルテ上野は東京地下鉄日比谷線入谷駅から徒歩5分にあり、駅近で通勤通学に便利なマンションです。
このお部屋は2階以上に位置しているので通行人や周囲の住人からの視線が気になりにくく、建物のエントランスはオートロックがついているので防犯性が高くなっています。
フローリングのお部屋なのでお掃除もラクラク。キッチンはシステムキッチン仕様になっていますので、お料理好きの方にもぴったり。バス・トイレは別なので、のんびりお風呂タイムも楽しめるでしょう。また、雨の日でも浴室乾燥機を使えば、お洗濯も問題ありません。
通信設備面ではBSアンテナ・CSアンテナがあり、CATVにも対応しているので、おうち時間も充実するでしょう(別途工事、契約料が必要な場合あり)。
建物にはエレベーターがついているので、重い荷物があっても安心。共用部には宅配ボックスが設定されているので、不在の時にも荷物を受け取ることができます。
このお部屋は2階以上に位置しているので通行人や周囲の住人からの視線が気になりにくく、建物のエントランスはオートロックがついているので防犯性が高くなっています。
フローリングのお部屋なのでお掃除もラクラク。キッチンはシステムキッチン仕様になっていますので、お料理好きの方にもぴったり。バス・トイレは別なので、のんびりお風呂タイムも楽しめるでしょう。また、雨の日でも浴室乾燥機を使えば、お洗濯も問題ありません。
通信設備面ではBSアンテナ・CSアンテナがあり、CATVにも対応しているので、おうち時間も充実するでしょう(別途工事、契約料が必要な場合あり)。
建物にはエレベーターがついているので、重い荷物があっても安心。共用部には宅配ボックスが設定されているので、不在の時にも荷物を受け取ることができます。
お金・契約の情報
※「-」と表示されているものは、実際は料金が発生するものもございます。詳細はお問い合わせください。
| 家賃 | 10.7万円 | 管理費・共益費 | 1万円 |
|---|---|---|---|
| 敷金 | なし | 礼金 | なし |
| 入居決定でお祝い金最大100,000円 | |||
| 保証金 | - | 償却・敷引 | - |
| 住宅保険料 | 住宅保険料あり | 更新料 | - |
| 契約形態 | - | 契約期間 | 2年 |
| 入居・引渡期間 | 2026年05月下旬 | 現況 | 居住中 |
| 契約備考 | 初期費用のクレジットカード払いや各種分割払い可能です。諸条件ご相談ください。その他インターネット掲載物件は当店で併せてご紹介可能です 契約事務手数料:11,000円 消臭除菌代:8,800円 更新料:1ヶ月 保証会社:利用必須 ①初回+月額プラン(賃料総額の50%+月額1%〜2%)/年間保証料なし ②月額プラン(月額 賃料総額の3%〜4%)/初回・年間保証料なし その他設備/条件:防犯カメラ、コンロ2口以上、TVドアホン、敷地内ゴミ置場 | ||
部屋の情報
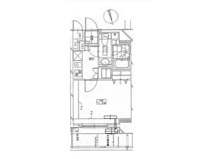
| 間取り | 1K | 専有面積 | 25m2 |
|---|---|---|---|
| 間取り詳細 | 洋室(7.5帖) | ||
| 所在階 / 向き | 2階 / 北 | バルコニー面積 | - |
| 水道 / ガス | ガス【都市】 | ||
| 設備 | バス・トイレ別、2階以上、オートロック、宅配ボックス、浴室乾燥機、システムキッチン、エアコン、エレベーター、温水洗浄便座、バルコニー、フローリング、コンロ:ガス、CATV、CSアンテナ、BSアンテナ、洗濯機:室内、タイル張り | ||
| 当社物件ID | 155739290 | ||
建物の情報
| 建物名 | リベルテ上野 | ||
|---|---|---|---|
| 所在地 | 東京都台東区松が谷4丁目 | ||
| 交通 | 東京地下鉄日比谷線 入谷駅(東京) 徒歩5分 山手線 上野駅 徒歩14分 東京地下鉄銀座線 稲荷町駅(東京) 徒歩14分 | ||
| 階数 | 13階建 | 総戸数 | - |
| 築年月 | 2008年07月 / 築18年 | エレベーター | あり |
| 駐車場 | - | バイク置き場 | あり |
| 駐輪場 | あり | 管理人/管理会社 | - |
| 建物種別 | マンション | 建物構造 | RC(鉄筋コンクリート) |
この部屋の取扱い不動産会社
| 会社名 | 株式会社サンコーホーム(賃貸スモッカ経由) | ||
|---|---|---|---|
| 所在地 | 東京都台東区上野5丁目23-8 キューアス御徒町ビル3F | 交通 | - |
| 営業時間 | - | 定休日 | - |
| 免許番号 | 東京都知事免許(2)第96594号 | 取引態様 | 仲介 |
| 不動産会社管理番号 | sankohome_120160010218053 | 当社管理番号 | 463 |
| 所属団体 | (公社)全国宅地建物取引業協会連合会\n公益社団法人首都圏不動産公正取引協議会 | ||
| 公正取引協議会 | (公社)全国宅地建物取引業保証協会 | ||
| 取扱い物件情報 | 物件詳細へ | ||
※各種情報と現状に差異がある場合は、現状優先となります。問い合わせをすることで、より詳しい条件、情報を確認する事ができます。
提供:株式会社サンコーホーム(賃貸スモッカ経由)
この物件が気になったら掲載期限まであと7日
リベルテ上野に条件(家賃・エリア)が近い物件一覧
| 写真 | 家賃 管理費等 | 敷金 礼金 | 間取り 専有面積 | 築年数 | 最寄り駅 所在地 | キープ | 詳細 |
|---|---|---|---|---|---|---|---|
マンション パークウェル神田イースト弐番館(1K/4階) | |||||||
![]() | 10万円 5,000円 | 5万円 10万円 | 1K 23.37m2 | 築23年 | 総武・中央緩行線 浅草橋駅 徒歩3分 東京都新宿線 岩本町駅 徒歩6分 山手線 秋葉原駅 徒歩7分 東京都千代田区東神田2丁目 | 詳細を見る | |
マンション プラウドフラット浅草雷門(1K/4階) | |||||||
![]() | 12.4万円 1万円 | 12.4万円 12.4万円 | 1K 25.32m2 | 築8年 | 東京地下鉄銀座線 浅草駅(東武・都営・メトロ) 徒歩4分 東武伊勢崎・大師線 浅草駅(東武・都営・メトロ) 徒歩6分 東京都大江戸線 蔵前駅 徒歩8分 東京都台東区雷門1丁目 | 詳細を見る | |
マンション RJRプレシア菊川駅前(1K/9階) | |||||||
![]() | 12.7万円 1万円 | 12.7万円 12.7万円 | 1K 26.34m2 | 築5年 | 東京都新宿線 菊川駅(東京) 徒歩3分 東京地下鉄半蔵門線 住吉駅(東京) 徒歩9分 東京都墨田区菊川3丁目 | 詳細を見る | |
マンション レジディア上野御徒町(ワンルーム/10階) | |||||||
![]() | 15.9万円 1.5万円 | なし なし | ワンルーム 29.51m2 | 築21年 | 東京地下鉄日比谷線 仲御徒町駅 徒歩2分 山手線 御徒町駅 徒歩4分 東京地下鉄銀座線 上野広小路駅 徒歩7分 東京都台東区台東4丁目 | 詳細を見る | |
マンション ヴェルトウォーターフロント(1K/3階) | |||||||
![]() | 12.9万円 1.1万円 | なし 12.9万円 | 1K 22.2m2 | 築25年 | 東京都大江戸線 勝どき駅 徒歩5分 東京地下鉄有楽町線 月島駅 徒歩12分 東京都大江戸線 月島駅 徒歩12分 東京都中央区勝どき3丁目 | 詳細を見る | |
マンション スカイコートヌーベル入谷第2(1K/5階) | |||||||
![]() | 8.95万円 7,500円 | 8.95万円 8.95万円 | 1K 25.5m2 | 築19年 | 東京地下鉄日比谷線 三ノ輪駅 徒歩6分 東京都荒川線 三ノ輪橋駅 徒歩12分 山手線 鶯谷駅 徒歩14分 東京都台東区下谷3丁目 | 詳細を見る | |
マンション ドゥーエ両国III(2K/2階) | |||||||
![]() | 12.5万円 1万円 | 12.5万円 12.5万円 | 2K 25.53m2 | 築4年 | 東京都大江戸線 両国駅 徒歩5分 東京都大江戸線 森下駅(東京) 徒歩6分 東京都新宿線 菊川駅(東京) 徒歩17分 東京都墨田区緑1丁目 | 詳細を見る | |
マンション メゾンドヴィレ日本橋茅場町(1DK/10階) | |||||||
![]() | 15.8万円 1.5万円 | 15.8万円 15.8万円 | 1DK 40.11m2 | 築27年 | 都営浅草線 日本橋駅(東京) 徒歩3分 東京メトロ東西線 茅場町駅 徒歩4分 東京メトロ日比谷線 八丁堀駅(東京) 徒歩8分 東京都中央区日本橋茅場町 | 詳細を見る | |









