賃貸マンション
ザ・パークハビオ行徳駅前の賃貸物件情報(1LDK/6階)
| 家賃 | 管理費等 | 敷金 | 礼金 | 間取り | 専有面積 |
|---|---|---|---|---|---|
| 13.8万円 | 2万円 | 13.8万円 | 13.8万円 | 1LDK | 30.04m2 |
入居決定でお祝い金最大100,000円
Point
ペット飼育・楽器演奏応相談 エアコン設置済
提供:アパマンショップ西船橋店

詳細情報 ザ・パークハビオ行徳駅前
物件紹介
ザ・パークハビオ行徳駅前は東京地下鉄東西線行徳駅から徒歩1分にあり、駅近で通勤通学に便利なマンションです。
このお部屋は2階以上に位置しているので、通行人や周囲の住人からの視線が気になりにくく、防犯面でも安心。建物のエントランスはオートロックがついており、インターホンにはTVモニタもついているため、相手の顔を確認してから来客対応することができます。
こちらは楽器相談が可能な物件。楽器演奏をお考えの方はぜひ相談してみてください。人気の南向き・フローリングのお部屋。角部屋でもあるため、周囲の居住者の生活音も気になりにくい場所です。室内にはウォークインクローゼットがありますので、たくさんの荷物も効率的に収納ができます。キッチンはシステムキッチン仕様になっていますので、お料理好きの方にもぴったり。バス・トイレは別なので、のんびりお風呂タイムも楽しめるでしょう。また、雨の日でも浴室乾燥機を使えば、お洗濯も問題ありません。
通信設備面では、インターネットが無料で使えるので、月々の出費を抑えられるのも魅力です。また、BSアンテナ・CSアンテナがありCATVにも対応しているので、おうち時間も充実するでしょう(別途工事、BS・CS・CATVの契約料等が必要な場合あり)。
建物にはエレベーターがついているので、重い荷物があっても安心。共用部には宅配ボックスが設定されているので、不在の時にも荷物を受け取ることができます。また、ペット飼育の相談ができますので、あなたの大切な家族の一員も快適に暮らせるか、ぜひ確認してみてください。
コンビニまで徒歩2分の場所にあり、日用品や食料品のお買い物にも便利です。
このお部屋は2階以上に位置しているので、通行人や周囲の住人からの視線が気になりにくく、防犯面でも安心。建物のエントランスはオートロックがついており、インターホンにはTVモニタもついているため、相手の顔を確認してから来客対応することができます。
こちらは楽器相談が可能な物件。楽器演奏をお考えの方はぜひ相談してみてください。人気の南向き・フローリングのお部屋。角部屋でもあるため、周囲の居住者の生活音も気になりにくい場所です。室内にはウォークインクローゼットがありますので、たくさんの荷物も効率的に収納ができます。キッチンはシステムキッチン仕様になっていますので、お料理好きの方にもぴったり。バス・トイレは別なので、のんびりお風呂タイムも楽しめるでしょう。また、雨の日でも浴室乾燥機を使えば、お洗濯も問題ありません。
通信設備面では、インターネットが無料で使えるので、月々の出費を抑えられるのも魅力です。また、BSアンテナ・CSアンテナがありCATVにも対応しているので、おうち時間も充実するでしょう(別途工事、BS・CS・CATVの契約料等が必要な場合あり)。
建物にはエレベーターがついているので、重い荷物があっても安心。共用部には宅配ボックスが設定されているので、不在の時にも荷物を受け取ることができます。また、ペット飼育の相談ができますので、あなたの大切な家族の一員も快適に暮らせるか、ぜひ確認してみてください。
コンビニまで徒歩2分の場所にあり、日用品や食料品のお買い物にも便利です。
お金・契約の情報
※「-」と表示されているものは、実際は料金が発生するものもございます。詳細はお問い合わせください。
| 家賃 | 13.8万円 | 管理費・共益費 | 2万円 |
|---|---|---|---|
| 敷金 | 13.8万円 | 礼金 | 13.8万円 |
| 入居決定でお祝い金最大100,000円 | |||
| 保証金 | - | 償却・敷引 | - |
| 住宅保険料 | - | 更新料 | - |
| 保証会社利用 | 必須 | 保証会社名 | - |
| 保証会社費用 | - | 保証会社備考 | 日本セーフティー 初年度保証料:賃料等合計額の50%(最低保証料2万円)2年目以降:1年毎1万円 |
| 契約形態 | - | 契約期間 | 2年 |
| 入居・引渡期間 | 2026年03月中旬 | 現況 | - |
| 入居可能条件 | 楽器可、ペット可 | ||
| 契約備考 | 駆付けサポート24借主加入 保証会社未使用時敷金2か月 ペット・楽器相談(諸条件弊社募集図面要確認) 民泊不可 鍵交換必須/退去時:室内清掃・エアコン洗浄費借主負担 付属施設空状況要確認 鍵交換代 33000円 | ||
部屋の情報
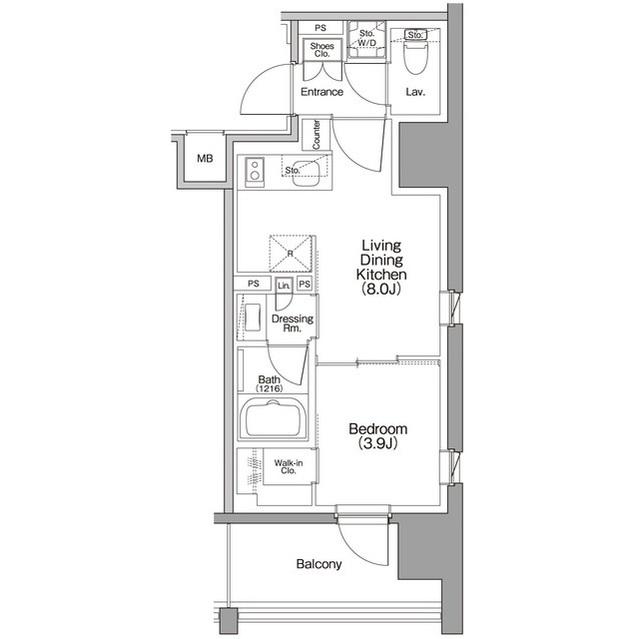
| 間取り | 1LDK | 専有面積 | 30.04m2 |
|---|---|---|---|
| 間取り詳細 | LDK(8帖)、洋室(3.9帖) | ||
| 所在階 / 向き | 6階 / 南東 | バルコニー面積 | 6m2 |
| 水道 / ガス | - | ||
| 設備 | バス・トイレ別、オートロック、テレビドアホン、宅配ボックス、浴室乾燥機、ウォークインクローゼット、追い焚き、光ファイバー対応、エレベーター、温水洗浄便座、角部屋、バルコニー、フローリング、CSアンテナ、BSアンテナ、シャワー、給湯、洗濯機:室内 | ||
| 当社物件ID | 157103036 | ||
建物の情報
| 建物名 | ザ・パークハビオ行徳駅前 | ||
|---|---|---|---|
| 所在地 | 千葉県市川市行徳駅前2丁目 | ||
| 交通 | 東京地下鉄東西線 行徳駅 徒歩1分 | ||
| 階数 | 11階建 | 総戸数 | 142戸 |
| 築年月 | 2024年02月 / 築3年 | エレベーター | あり |
| 駐車場 | 空有 1.98万円/月 | バイク置き場 | - |
| 駐輪場 | - | 管理人/管理会社 | - |
| 周辺環境 | その他 ビッグ・エー江戸川南篠崎店 徒歩56分(4406m) その他 南行徳3丁目 徒歩26分(2009m) その他 ココス瑞江店 徒歩52分(4121m) その他 ヤマダ電機 徒歩26分(2050m) その他 モスバーガー 徒歩57分(4497m) その他 吉野屋 徒歩56分(4425m) その他 松屋 徒歩56分(4468m) その他 ケンタッキー 徒歩56分(4415m) | ||
| 建物種別 | マンション | 建物構造 | RC(鉄筋コンクリート) |
この部屋の取扱い不動産会社
| 会社名 | アパマンショップ門前仲町駅前店 | ||
|---|---|---|---|
| 所在地 | 東京都江東区門前仲町1丁目 8-8 | 交通 | 東京地下鉄東西線門前仲町から徒歩1分 |
| 営業時間 | 10:00〜19:00(水曜定休) | 定休日 | 水曜日 |
| 免許番号 | 国土交通大臣(5)6971 | 取引態様 | 仲介 |
| 不動産会社管理番号 | 101895813 | 当社管理番号 | 4 |
| 所属団体 | (公社)東京都宅地建物取引業協会 | ||
| 公正取引協議会 | (公社) 首都圏不動産公正取引協議会加盟 | ||
| 取扱い物件情報 | 物件詳細へ | ||
※各種情報と現状に差異がある場合は、現状優先となります。問い合わせをすることで、より詳しい条件、情報を確認する事ができます。
提供:アパマンショップ門前仲町駅前店
この物件が気になったら掲載期限まであと12日
ザ・パークハビオ行徳駅前に条件(家賃・エリア)が近い物件一覧
| 写真 | 家賃 管理費等 | 敷金 礼金 | 間取り 専有面積 | 築年数 | 最寄り駅 所在地 | キープ | 詳細 |
|---|---|---|---|---|---|---|---|
マンション GENOVIA原木中山ⅡSKYGARDEN(1K/2階) | |||||||
![]() | 10.45万円 なし | 10.45万円 20.9万円 | 1K 20.65m2 | 築1年 | 東京地下鉄東西線 原木中山駅 徒歩4分 総武・中央緩行線 下総中山駅 徒歩16分 千葉県船橋市本中山6丁目 | 詳細を見る | |
アパート ビルトモア(1SLDK/2階) | |||||||
![]() | 12万円 7,000円 | 12万円 12万円 | 1SLDK 57.1m2 | 築6年 | 東武野田線 船橋駅 徒歩15分 京成本線 京成船橋駅 徒歩15分 JR総武線 東船橋駅 徒歩15分 千葉県船橋市市場 | 詳細を見る | |
アパート ベルシア(2LDK/2階) | |||||||
![]() | 13.8万円 6,000円 | なし 27.6万円 | 2LDK 54.98m2 | 築8年 | JR総武線 津田沼駅 徒歩15分 京成松戸線 前原駅 徒歩17分 京成松戸線 新津田沼駅 徒歩18分 千葉県船橋市前原西 | 詳細を見る | |
アパート リーブルファイン松戸小金原(1LDK/1階) | |||||||
![]() | 8.4万円 3,000円 | 8.4万円 8.4万円 | 1LDK 43.26m2 | 築1年 | 京成電鉄松戸線 常盤平駅 徒歩20分 千葉県松戸市小金原7丁目 | 詳細を見る | |
マンション ルピナス グランデ(2LDK/3階) | |||||||
![]() | 17.4万円 1.2万円 | 17.4万円 17.4万円 | 2LDK 61.53m2 | 新築 | JR武蔵野線 東松戸駅 徒歩7分 北総線 秋山駅 徒歩13分 北総線 松飛台駅 徒歩25分 千葉県松戸市東松戸 | 詳細を見る | |
マンション クオリスタ(2LDK/3階) | |||||||
![]() | 17.9万円 7,000円 | なし 35.8万円 | 2LDK 69.47m2 | 築1年 | JR総武線 東船橋駅 徒歩5分 京成本線 船橋競馬場駅 徒歩26分 京成本線 大神宮下駅 徒歩26分 千葉県船橋市東船橋 | 詳細を見る | |
一戸建て 千歳線 恵庭駅 徒歩8分 築9年(3SLDK) | |||||||
![]() | 15万円 なし | 15万円 15万円 | 3SLDK 82.81m2 | 築9年 | 千歳線 恵庭駅 徒歩8分 武蔵野線 船橋法典駅 徒歩5分 千葉県船橋市上山町1丁目 | 詳細を見る | |
マンション レジディア西船橋(1K/5階) | |||||||
![]() | 9.1万円 1.5万円 | 9.1万円 9.1万円 | 1K 21.98m2 | 築8年 | JR総武線 西船橋駅 徒歩9分 東京メトロ東西線 西船橋駅 徒歩9分 JR京葉線 西船橋駅 徒歩9分 千葉県船橋市本郷町 | 詳細を見る | |








