賃貸マンション
デュオフラッツ池尻大橋の賃貸物件情報(1SLDK/11階)
| 家賃 | 管理費等 | 敷金 | 礼金 | 間取り | 専有面積 |
|---|---|---|---|---|---|
| 31.5万円 | 1.5万円 | 31.5万円 | なし | 1SLDK | 45.92m2 |
入居決定でお祝い金最大100,000円
- 保証金
- -
- 償却・敷引
- -
- 築年数
- 新築(築1年)
- 所在階
- 11階
- 向き
- 北東
Point
室内設備は浴室乾燥機・洗面所独立などが揃っており、とても充実しています。
提供:アパマンショップ渋谷道玄坂店

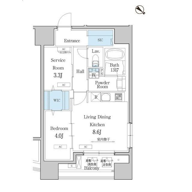
詳細情報 デュオフラッツ池尻大橋
物件紹介
デュオフラッツ池尻大橋は東急田園都市線池尻大橋駅から徒歩7分にあり、駅近で通勤通学に便利なマンションです。
このお部屋は2階以上に位置しているので、通行人や周囲の住人からの視線が気になりにくく、防犯面でも安心。建物のエントランスはオートロックがついており、インターホンにはTVモニタもついているため、相手の顔を確認してから来客対応することができます。
人気の南向き・フローリングのお部屋。角部屋でもあるため、周囲の居住者の生活音も気になりにくい場所です。室内にはウォークインクローゼットがありますので、たくさんの荷物も効率的に収納ができます。キッチンはシステムキッチン仕様になっていますので、お料理好きの方にもぴったり。バス・トイレは別なので、のんびりお風呂タイムも楽しめるでしょう。また、雨の日でも浴室乾燥機を使えば、お洗濯も問題ありません。
通信設備面では、インターネットが無料で使えるので、月々の出費を抑えられるのも魅力です。また、BSアンテナ・CSアンテナがありCATVにも対応しているので、おうち時間も充実するでしょう(別途工事、BS・CS・CATVの契約料等が必要な場合あり)。
建物にはエレベーターがついているので、重い荷物があっても安心。共用部には宅配ボックスが設定されているので、不在の時にも荷物を受け取ることができます。また、ペット飼育の相談ができますので、あなたの大切な家族の一員も快適に暮らせるか、ぜひ確認してみてください。
コンビニまで徒歩13分の場所にあり、日用品や食料品のお買い物にも便利です。
このお部屋は2階以上に位置しているので、通行人や周囲の住人からの視線が気になりにくく、防犯面でも安心。建物のエントランスはオートロックがついており、インターホンにはTVモニタもついているため、相手の顔を確認してから来客対応することができます。
人気の南向き・フローリングのお部屋。角部屋でもあるため、周囲の居住者の生活音も気になりにくい場所です。室内にはウォークインクローゼットがありますので、たくさんの荷物も効率的に収納ができます。キッチンはシステムキッチン仕様になっていますので、お料理好きの方にもぴったり。バス・トイレは別なので、のんびりお風呂タイムも楽しめるでしょう。また、雨の日でも浴室乾燥機を使えば、お洗濯も問題ありません。
通信設備面では、インターネットが無料で使えるので、月々の出費を抑えられるのも魅力です。また、BSアンテナ・CSアンテナがありCATVにも対応しているので、おうち時間も充実するでしょう(別途工事、BS・CS・CATVの契約料等が必要な場合あり)。
建物にはエレベーターがついているので、重い荷物があっても安心。共用部には宅配ボックスが設定されているので、不在の時にも荷物を受け取ることができます。また、ペット飼育の相談ができますので、あなたの大切な家族の一員も快適に暮らせるか、ぜひ確認してみてください。
コンビニまで徒歩13分の場所にあり、日用品や食料品のお買い物にも便利です。
お金・契約の情報
※「-」と表示されているものは、実際は料金が発生するものもございます。詳細はお問い合わせください。
| 家賃 | 31.5万円 | 管理費・共益費 | 1.5万円 |
|---|---|---|---|
| 敷金 | 31.5万円 | 礼金 | なし |
| 入居決定でお祝い金最大100,000円 | |||
| 保証金 | - | 償却・敷引 | - |
| 住宅保険料 | 1円 | 更新料 | - |
| 保証会社利用 | 必須 | 保証会社名 | - |
| 保証会社費用 | - | 保証会社備考 | エポスカード(RP) 保証料:賃料等の50%(最低2万)、月額保証料:賃料等の1%(更新料無) |
| 契約形態 | - | 契約期間 | 2年 |
| 入居・引渡期間 | 即時 | 現況 | - |
| 入居可能条件 | 2人入居可、ペット相談 | ||
| 契約備考 | 清掃費:48950円(退去時請求).エアコン清掃費:22000円(退去時請求) 自転車置場(有料) 月額550円.バイク置場(有料) 月額5500円.平面駐車場 月額44000円 ペット飼育可 小型犬1匹または猫2匹迄敷金1ヶ月積増 短期解約違約金有 その他設備/条件:室内洗濯機置き場、独立洗面台、防犯カメラ、シューズインクローゼット | ||
部屋の情報
| 間取り | 1SLDK | 専有面積 | 45.92m2 |
|---|---|---|---|
| 間取り詳細 | LDK(8.6帖)、洋室(4帖)、S(3.3帖) | ||
| 所在階 / 向き | 11階 / 北東 | バルコニー面積 | - |
| 水道 / ガス | 水道【公営】、ガス【都市】 | ||
| 設備 | バス・トイレ別、オートロック、テレビドアホン、宅配ボックス、浴室乾燥機、ウォークインクローゼット、追い焚き、システムキッチン、エアコン、エレベーター、温水洗浄便座、バルコニー、フローリング、インターネット使用料無料、シャワー、給湯 | ||
| 当社物件ID | 159345045 | ||
建物の情報
| 建物名 | デュオフラッツ池尻大橋 | ||
|---|---|---|---|
| 所在地 | 東京都目黒区大橋1丁目 | ||
| 交通 | 東急田園都市線 池尻大橋駅 徒歩7分 京王電鉄井の頭線 神泉駅 徒歩14分 | ||
| 階数 | 12階建 | 総戸数 | 32戸 |
| 築年月 | 2025年10月 / 新築(築1年) | エレベーター | あり |
| 駐車場 | なし | バイク置き場 | あり |
| 駐輪場 | あり | 管理人/管理会社 | - |
| 周辺環境 | コンビニ 徒歩13分(987m) 販売店 徒歩3分(210m) その他 ドラッグストア その他 公園 その他 銀行 その他 * | ||
| 建物種別 | マンション | 建物構造 | RC(鉄筋コンクリート) |
この部屋の取扱い不動産会社
| 会社名 | ハウスコム西東京株式会社 桜新町店 | ||
|---|---|---|---|
| 所在地 | 東京都世田谷区17-13GBJ桜新町ビル3階 | 交通 | - |
| 営業時間 | 10:00~18:00 | 定休日 | 水曜定休 |
| 免許番号 | 東京都知事(1)第108225号 | 取引態様 | 仲介 |
| 不動産会社管理番号 | HC5-5081837-1103-0016 | 当社管理番号 | 468 |
| 所属団体 | 、 | ||
| 取扱い物件情報 | 物件詳細へ | ||
※各種情報と現状に差異がある場合は、現状優先となります。問い合わせをすることで、より詳しい条件、情報を確認する事ができます。
提供:ハウスコム西東京株式会社 桜新町店
この物件が気になったら掲載期限まであと4日
デュオフラッツ池尻大橋に条件(家賃・エリア)が近い物件一覧
| 写真 | 家賃 管理費等 | 敷金 礼金 | 間取り 専有面積 | 築年数 | 最寄り駅 所在地 | キープ | 詳細 |
|---|---|---|---|---|---|---|---|
マンション GRAN PASEO 池尻大橋(1LDK/2階) | |||||||
![]() | 21万円 1.2万円 | なし なし | 1LDK 32.81m2 | 築1年 | 東急田園都市線 池尻大橋駅 徒歩5分 東急田園都市線 三軒茶屋駅 徒歩15分 京王井の頭線 駒場東大前駅 徒歩22分 東京都世田谷区池尻 | 詳細を見る | |
マンション ウェルスクエアイズム下北沢イースト(2LDK/3階) | |||||||
![]() | 21.5万円 1.5万円 | なし なし | 2LDK 40.43m2 | 築4年 | 小田急線 東北沢駅 徒歩4分 小田急線 下北沢駅 徒歩7分 小田急線 世田谷代田駅 徒歩15分 東京都世田谷区北沢 | 詳細を見る | |
マンション アジールコート松濤(1LDK/3階) | |||||||
![]() | 19.5万円 1.2万円 | 19.5万円 なし | 1LDK 33.56m2 | 築1年 | 京王井の頭線 神泉駅 徒歩8分 京王井の頭線 駒場東大前駅 徒歩13分 東京メトロ銀座線 渋谷駅 徒歩15分 東京都渋谷区松濤 | 詳細を見る | |
マンション 東急目黒線 不動前駅 徒歩7分 築4年(1LDK/2階) | |||||||
![]() | 26万円 2万円 | 26万円 26万円 | 1LDK 45.3m2 | 築4年 | 東急目黒線 不動前駅 徒歩7分 JR山手線 目黒駅 徒歩12分 JR山手線 五反田駅 徒歩13分 東京都品川区上大崎 | 詳細を見る | |
マンション グランパセオ明大前2(1LDK/2階) | |||||||
![]() | 18.9万円 2万円 | なし なし | 1LDK 40.32m2 | 築4年 | 京王線 明大前駅 徒歩5分 京王井の頭線 明大前駅 徒歩5分 京王線 代田橋駅 徒歩8分 東京都世田谷区松原 | 詳細を見る | |
マンション テラス広尾(3LDK/1階) | |||||||
![]() | 50万円 なし | 100万円 50万円 | 3LDK 116.5m2 | 築35年 | JR山手線 恵比寿駅 徒歩10分 東京メトロ日比谷線 広尾駅 徒歩15分 東急東横線 代官山駅 徒歩17分 東京都渋谷区広尾 | 詳細を見る | |
マンション BRILLIA代官山プレステージブリリア代官山プレステージ(ワンルーム/2階) | |||||||
![]() | 19.9万円 8,000円 | 39.8万円 19.9万円 | ワンルーム 33.09m2 | 築19年 | 東急東横線 代官山駅 徒歩3分 東京メトロ日比谷線 恵比寿駅 徒歩5分 JR山手線 恵比寿駅 徒歩7分 東京都渋谷区恵比寿西 | 詳細を見る | |
マンション レジディアタワー目黒不動前(1LDK/12階) | |||||||
![]() | 21.3万円 1万円 | 21.3万円 21.3万円 | 1LDK 37.19m2 | 築19年 | JR山手線 五反田駅 徒歩7分 東急目黒線 不動前駅 徒歩8分 JR山手線 目黒駅 徒歩14分 東京都品川区西五反田 | 詳細を見る | |








