賃貸マンション
プレール・ドゥーク志村坂上IIの賃貸物件情報(1K/3階)
| 家賃 | 管理費等 | 敷金 | 礼金 | 間取り | 専有面積 |
|---|---|---|---|---|---|
| 8.5万円 | 1万円 | なし | 8.5万円 | 1K | 25.83m2 |
入居決定でお祝い金最大100,000円
- 保証金
- -
- 償却・敷引
- -
- 築年数
- 築10年
- 所在階
- 3階
- 向き
- -
Point
【LINEで簡単にお部屋探し】【内覧代行やLINEでお部屋探し】【来店不要で契約締結も可能です!】【様々なご職業の方ご相談可能】【営業時間1020時お仕事終わりでもご対応可能です!】
提供:(株)LIFIXGROUP新宿店(SUUMO経由)

詳細情報 プレール・ドゥーク志村坂上II
物件紹介
プレール・ドゥーク志村坂上IIは都営三田線志村坂上駅から徒歩2分にあり、駅近で通勤通学に便利なマンションです。
このお部屋は2階以上に位置しているので、通行人や周囲の住人からの視線が気になりにくく、防犯面でも安心。建物のエントランスはオートロックがついており、インターホンにはTVモニタもついているため、相手の顔を確認してから来客対応することができます。
おしゃれなデザイナーズ物件!人気の角部屋で周囲の居住者の生活音も気になりにくく、また、フローリングのお部屋なのでお掃除もラクラク。キッチンはシステムキッチン仕様になっていますので、お料理好きの方にもぴったり。バス・トイレは別なので、のんびりお風呂タイムも楽しめるでしょう。また、雨の日でも浴室乾燥機を使えば、お洗濯も問題ありません。
通信設備面では、インターネットが無料で使えるので、月々の出費を抑えられるのも魅力です。また、BSアンテナ・CSアンテナがありCATVにも対応しているので、おうち時間も充実するでしょう(別途工事、BS・CS・CATVの契約料等が必要な場合あり)。
建物にはエレベーターがついているので、重い荷物があっても安心。共用部には宅配ボックスが設定されているので、不在の時にも荷物を受け取ることができます。
このお部屋は2階以上に位置しているので、通行人や周囲の住人からの視線が気になりにくく、防犯面でも安心。建物のエントランスはオートロックがついており、インターホンにはTVモニタもついているため、相手の顔を確認してから来客対応することができます。
おしゃれなデザイナーズ物件!人気の角部屋で周囲の居住者の生活音も気になりにくく、また、フローリングのお部屋なのでお掃除もラクラク。キッチンはシステムキッチン仕様になっていますので、お料理好きの方にもぴったり。バス・トイレは別なので、のんびりお風呂タイムも楽しめるでしょう。また、雨の日でも浴室乾燥機を使えば、お洗濯も問題ありません。
通信設備面では、インターネットが無料で使えるので、月々の出費を抑えられるのも魅力です。また、BSアンテナ・CSアンテナがありCATVにも対応しているので、おうち時間も充実するでしょう(別途工事、BS・CS・CATVの契約料等が必要な場合あり)。
建物にはエレベーターがついているので、重い荷物があっても安心。共用部には宅配ボックスが設定されているので、不在の時にも荷物を受け取ることができます。
お金・契約の情報
※「-」と表示されているものは、実際は料金が発生するものもございます。詳細はお問い合わせください。
| 家賃 | 8.5万円 | 管理費・共益費 | 1万円 |
|---|---|---|---|
| 敷金 | なし | 礼金 | 8.5万円 |
| 入居決定でお祝い金最大100,000円 | |||
| 保証金 | - | 償却・敷引 | - |
| 住宅保険料 | - | 更新料 | - |
| 保証会社利用 | 必須 | 保証会社名 | - |
| 保証会社費用 | - | 保証会社備考 | 保証会社利用必 初回:賃料+管理費の50% 月額:賃料+管理費の1.2% |
| 契約形態 | - | 契約期間 | - |
| 入居・引渡期間 | - | 現況 | - |
| 契約備考 | 【来店不要で契約締結も可能です!】様々なご職業の方ご相談可能短期違約金有 合計7.15万円(内訳:契約事務手数料1.1万円24時間サポート1.65万円除菌消臭代1.1万円鍵交換代3.3万円) 更新料 新賃料1.00ヶ月分 1K 普通借家2年 損保【2万円2年】 バストイレ別、バルコニー、エアコン、ガスコンロ対応、クロゼット、フローリング、TVインターホン、浴室乾燥機、オートロック、室内洗濯置、シューズボックス、システムキッチン、角住戸、温水洗浄便座、脱衣所、エレベーター、洗面所独立、洗面化粧台、2口コンロ、宅配ボックス、敷金不要、防犯カメラ、分譲賃貸、全居室洋室、保証人不要、24時間緊急通報システム、ガスレンジ付、デザイナーズ、ディンプルキー、ネット使用料不要、ダブルロックキー、保証金不要、24時間換気システム、人感照明センサー、耐震構造、2駅利用可、3駅以上利用可、防犯強化地域、駅徒歩5分以内、駅徒歩10分以内、バス停徒歩3分以内、敷地内ごみ置き場、寝室8畳以上、都市ガス、ダウンライト、保証会社利用可、IT重説対応物件、通風良好 入居日:'26年1月下旬 | ||
部屋の情報
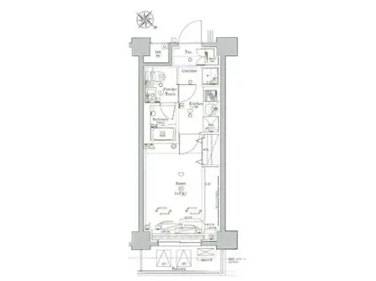
| 間取り | 1K | 専有面積 | 25.83m2 |
|---|---|---|---|
| 所在階 / 向き | 3階 / - | バルコニー面積 | - |
| 水道 / ガス | - | ||
| 設備 | バス・トイレ別、2階以上、オートロック、テレビドアホン、宅配ボックス、浴室乾燥機、インターネット対応、システムキッチン、エアコン、エレベーター、温水洗浄便座、角部屋、バルコニー、フローリング、洗髪洗面化粧台、2口コンロ、コンロ:ガス、デザイナーズ、インターネット使用料無料、洗濯機:室内 | ||
| 当社物件ID | 22451245 | ||
建物の情報
| 建物名 | プレール・ドゥーク志村坂上II | ||
|---|---|---|---|
| 所在地 | 東京都板橋区志村 | ||
| 交通 | 都営三田線 志村坂上駅 徒歩2分 都営三田線 志村三丁目駅 徒歩12分 都営三田線 本蓮沼駅 徒歩15分 | ||
| 階数 | 6階建 | 総戸数 | - |
| 築年月 | 2016年10月 / 築10年 | エレベーター | あり |
| 駐車場 | なし | バイク置き場 | - |
| 駐輪場 | - | 管理人/管理会社 | - |
| 周辺環境 | その他 志村第二小学校(小学校)まで533m その他 華屋与兵衛 志村坂下店(飲食店)まで1056m その他 うしのすけ(飲食店)まで1036m その他 マクドナルド 志村坂上店(飲食店)まで278m その他 リンガーハット 環八通り志村店(飲食店)まで1130m その他 板橋区立小豆沢体育館(公園)まで639m | ||
| 建物種別 | マンション | 建物構造 | RC(鉄筋コンクリート) |
この部屋の取扱い不動産会社
| 会社名 | (株)LIFIXGROUP高田馬場本店(SUUMO経由) | ||
|---|---|---|---|
| 所在地 | 東京都新宿区高田馬場3-2-5 ANビル6階 | 交通 | - |
| 営業時間 | 10時~20時 | 定休日 | 年末年始 |
| 免許番号 | 東京都知事93145 | 取引態様 | 仲介 |
| 不動産会社管理番号 | 100477054336 | 当社管理番号 | 89 |
| 所属団体 | (公社)東京都宅地建物取引業協会会員 | ||
| 公正取引協議会 | (公社)首都圏不動産公正取引協議会加盟 | ||
| 取扱い物件情報 | 物件詳細へ | ||
※各種情報と現状に差異がある場合は、現状優先となります。問い合わせをすることで、より詳しい条件、情報を確認する事ができます。
提供:(株)LIFIXGROUP高田馬場本店(SUUMO経由)
この物件が気になったら掲載期限まであと10日
プレール・ドゥーク志村坂上IIに条件(家賃・エリア)が近い物件一覧
| 写真 | 家賃 管理費等 | 敷金 礼金 | 間取り 専有面積 | 築年数 | 最寄り駅 所在地 | キープ | 詳細 |
|---|---|---|---|---|---|---|---|
アパート ロシェ桜川(1DK/2階) | |||||||
![]() | 10万円 3,000円 | 10万円 10万円 | 1DK 34.15m2 | 築5年 | 東武東上線 上板橋駅 徒歩6分 東京都板橋区桜川 | 詳細を見る | |
アパート LA CREALKI(1LDK/1階) | |||||||
![]() | 11.6万円 5,000円 | 11.6万円 11.6万円 | 1LDK 29.15m2 | 新築 | 東武東上線 北池袋駅 徒歩4分 東武東上線 下板橋駅 徒歩8分 JR埼京線 板橋駅 徒歩10分 東京都豊島区上池袋 | 詳細を見る | |
アパート シアターハイム下石神井(1K/1階) | |||||||
![]() | 6.3万円 3,000円 | 6.3万円 なし | 1K 19.45m2 | 築10年 | 西武新宿線 上井草駅 徒歩5分 西武新宿線 上石神井駅 徒歩10分 西武新宿線 井荻駅 徒歩18分 東京都練馬区下石神井 | 詳細を見る | |
アパート ハーモニーテラス上石神井Ⅴ(ワンルーム/2階) | |||||||
![]() | 6.7万円 4,000円 | なし 6.7万円 | ワンルーム 14.16m2 | 築1年 | 西武鉄道新宿線 上石神井駅 徒歩6分 東京都練馬区上石神井2丁目 | 詳細を見る | |
マンション パティーナ桜台DUO(ワンルーム/4階) | |||||||
![]() | 10.85万円 9,500円 | なし 10.85万円 | ワンルーム 25.94m2 | 築4年 | 西武池袋線 桜台駅(東京) 徒歩5分 西武有楽町線 新桜台駅 徒歩8分 都営大江戸線 練馬駅 徒歩12分 東京都練馬区豊玉上 | 詳細を見る | |
マンション ロイヤルパレス池袋西(1K/10階) | |||||||
![]() | 7.9万円 1.2万円 | 7.9万円 7.9万円 | 1K 22.78m2 | 築25年 | 東京地下鉄有楽町線 要町駅 徒歩8分 山手線 池袋駅 徒歩15分 東京都板橋区南町 | 詳細を見る | |
マンション ハーモニーレジデンス東京シティゲート(1K/9階) | |||||||
![]() | 9.4万円 1.2万円 | 9.4万円 9.4万円 | 1K 26.08m2 | 築15年 | 埼玉高速鉄道 赤羽岩淵駅 徒歩6分 東京都北区岩淵町 | 詳細を見る | |
マンション スパシエ新板橋(1DK/5階) | |||||||
![]() | 9.7万円 1.5万円 | 9.7万円 9.7万円 | 1DK 25.74m2 | 築5年 | 都営三田線 新板橋駅 徒歩2分 JR埼京線 板橋駅 徒歩6分 東武東上線 下板橋駅 徒歩11分 東京都北区滝野川 | 詳細を見る | |




/105x80-f1-q70-wp1)



